144673 (620684)
Текст из файла
Нижегородский государственный архитектурно – строительный университет
Институт открытого дистанционного образования
Курсовая расчетно-графическая работа
«Стальная рабочая площадка промздания»
Преподаватель
Студент: гр.
Нижний Новгород – 2010
Содержание
1. Введение
2. Исходные данные
3. Компоновка поперечной рамы
4. Определение нагрузок
4.1 Постоянная нагрузка
4.2 Снеговая нагрузка
4.3 Крановая нагрузка
4.3.1 Расчёт на вертикальную нагрузку
4.3.2 Расчёт на горизонтальную нагрузку
4.3 Ветровая нагрузка
5. Статический расчёт
5.1 Расчёт на постоянную и снеговую нагрузку
5.2 Расчёт на вертикальное давление крана
5.3 Расчёт на торможение
5.4 Расчёт на ветровую нагрузку
6. Расчётные сочетания усилий
6.1 Определение РСУ
7. Расчёт и конструирование верхней части стержня ступенчатой колонны
7.1 Определение расчётной длины колонны в плоскости рамы
7.2 Определение расчётной длины колонны из плоскости рамы
7.3 Конструктивный расчёт подкрановой части колонны
8. Конструктивный расчёт подкрановой части стержня ступенчатой колонны
8.1 Расчёт подкрановой части сплошного сечения
9. Расчёт и конструирование узла сопряжения верхней и нижней частей колонны
10. Расчёт и конструирование базы колонны
10.1 Проектирование и расчёт базы под колонну со сплошной подкрановой частью
10.2 Расчёт анкерных болтов
11. Расчёт и конструирование стропильной фермы
11.1 Конструктивная схема фермы
11.2 Конструкция кровли
11.3 Нагрузки на стропильную ферму
11.4 Определение усилий в элементах фермы
11.5 Конструирование и расчёт в элементах фермы
11.6 Расчёт сварных соединений в ферме
Используемая литература
1. Введение
Расчетно-графическая работа разработана на основании задания на проектирование, выданного кафедрой металлических конструкций Нижегородского государственного архитектурно-строительного университета.
Цель курсовой расчетно-графической работы:
- приобретение навыков в решении основных вопросов проектирования металлических конструкций;
- освоение методики компоновки простейших сооружений, выполняемых в металле;
- определение нагрузок;
- выбор расчётных схем элементов, входящих в состав сооружения;
- расчёт и конструирование несущих элементов балочной клетки, центрально нагруженных колонн и их узлов.
2. Исходные данные
Здание однопролётное отапливаемое, без фонаря.
Класс ответственности – II.
Кровля лёгкая по прогонам.
Стеновое ограждение самонесущее.
Здание с мостовым краном
Пролёт – L = 30м.
Длина здания – 120м.
Шаг колонн – Bcol = 12м.
Шаг ферм – Brt = 12м.
Отметка головки кранового рельса – Ht = 11,05м.
Грузоподъёмность крана – Q = 50т.
Режим работы крана – 4К-6К.
Климатический район строительства – II4.
Снеговой район – 4.
Ветровой район – 4.
Класс бетона B12,5; Rbn = 9,5 МПа.
Монтаж производится на болтах.
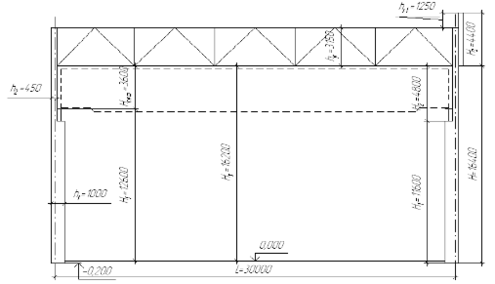
3. Компоновка поперечной рамы
1. Расстояние от головки подкранового рельса до низа несущих конструкций покрытий.
где f = 200400 – зазор, учитывающий прогибы конструкций покрытия, принимаем =350мм;
Hc = габаритная высота крана принимаемая по ТУ24-9-456-76 на краны (т II.1(3)).При Q = 50т, Hc = 3150мм;
100 – конструктивный зазор.
2. Полезная высота цеха.
увеличиваем Ht из условия кратности 1,8 принимаем HS =1,8 · 9 = 16,2м.
3. Длина верхней части колонны.
здесь hc.b – высота подкрановой балки равной 1м;
hr.a – высота рельса при Q = 50т, к.р.80 hr.a = 130мм.
4. Полная высота рамы.
здесь Hb = заглубление базы колонны ниже отметки пола принимаем 200мм.
5. Длина нижней части колонны.
6. Полная высота шатра.
где h1rt = 3150мм – высота фермы на опоре для типовой серии 1.460.2-10 с элементами из парных уголков;
hр = 1250мм – высота парапета.
7. Высота поперечного сечении верхней части колонны.
8. Высота поперечного сечения нижней части колонны.
где b0 = 250мм – привязка наружной грани колонны к разбивочной оси;
1 =750мм – расстояние от разбивочной оси ряда колонны до оси подкрановой балки.
здесь В1 = 300мм – при Q = 50т, по(т II.1(3));
, условие выполняется.
9. Компоновка каркаса по таблицам II.12; II.13.
Hc = 3150; Hcom = 3600; Ht = 12600; HS = 16200; H2 = 4800; h1 = 1000; h2 = 450;
;
;
;
Рис.1 Геометрическая схема поперечной рамы
4. Определение нагрузок
4.1 Постоянная нагрузка
- Расчётную постоянную нагрузку от веса покрытия определяем в табличной форме по (т II.2(3))
Таблица №1
| Элементы покрытия | Нормативная нагрузка | Коэффициент надёжности по нагрузке | Расчётная нагрузка |
| 1. Профилированный настил Н57-750-0,8 | 0,1 | 1,05 | 0,11 |
| 2. Минераловатная плита повышенной жёсткости t = 100мм | 0,24 | 1,2 | 0,29 |
| 3. Профилированный лист марки НС-30-750-0,6 | 0,07 | 1,05 | 0,074 |
| 4. Собственный вес металлической конструкции шатра (ферма, связи, прогоны) | 0,3 | 1,05 | 0,32 |
| Итого: | 0,7 | 1,143 | 0,8 |
– Расчётная равномерно распределённая нагрузка на ригель рамы
здесь
коэффициент надёжности по назначению определяемый по приложению к (2);
усреднённый коэффициент надёжности для постоянной нагрузки по табл.1;
нормативный вес покрытия по табл.1
– Расчётная постоянная нагрузка на колонну
4.2 Снеговая нагрузка
– Расчётная равномерно распределённая нагрузка на ригель рамы
здесь
вес снегового покрова принимаемый по (т II.3(3)) в зависимости от района строительства;
коэффициент надёжности по нагрузке, зависящий от отношения нормативного веса шатра
к
тогда
по (3);
С – коэффициент, учитывающий конфигурацию кровли здания, для кровли с уклоном не более 25о – С =1
– Расчётная снеговая нагрузка на колонну
4.3 Крановая нагрузка
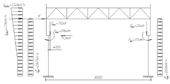
4.3.1 Расчёт на вертикальную нагрузку
– Расчётное максимальное давление на колонну, к которой приближена грузовая тележка, определяется:
при этом на другую колонну оказывается меньшее давление:
где
коэффициент надёжности по нагрузке;
коэффициент сочетания крановой нагрузки
сумма ординат линии влияния кранового давления на колонну определяемый по (т II.8(3));
вес подкрановой балки по (т II.4(3));
наибольшее давление колеса крана, по (т II.1(3));
минимальное давление колеса крана, по (т II.1(3));
От
и
возникают изгибающие моменты
и
где е – расстояние от оси подкрановой балки до оси центра тяжести нижней части колонны определяется как
4.3.2 Расчёт на горизонтальную нагрузку
– Расчётная горизонтальная поперечная сила на колонну
где
горизонтальная поперечная сила возникающая при торможении грузовой тележки;
здесь f – коэффициент трения, принимаемый 0,05;
масса крановой тележки по (т II.1(3));
n0 – число колёс крана с одной стороны при Q = 50т, n0 = 2.
4.4 Ветровая нагрузка
– Расчётная линейная ветровая нагрузка, передаваемая на стойку рамы к определённой точке по высоте, определяется:
где
коэффициент надёжности для ветровой нагрузки;
нормативное значение ветрового давления определяемая по СНиП (2) либо по (т П.3(3));
с – аэродинамический коэффициент для активного давления 0,8 для отсоса 0,6;
k – коэффициент, учитывающий изменение ветрового давления в зависимости от высоты здания и типа местности по (т П.5(3));
От активного сопротивления
,
,
.
– Эквивалентная равномерно распределённая нагрузка равна:
где
коэффициент, определяемый по (т П.10(3));
Ветровую нагрузку, приходящуюся на ригель, заменяем сосредоточенной силой
где сила от активного давления равна
От отсоса
,
,
.
Рис. 2 Расчётные ветровые и крановые нагрузки на раму.
5. Статический расчёт
5.1 Расчёт на постоянную и снеговую нагрузку
При назначении расчётной схемы вводим ряд упрощений:
колонны считаем жёстко защемлёнными на уровне низа базы;
геометрические оси колонн принимаем по середине высоты их сечения;
сквозной ригель заменяем сплошным эквивалентной жёсткости. При этом геометрическая ось ригеля считается расположенной в уровне нижнего пояса фермы;
ригель принимаем прямолинейным т.к. уклон до i < 10%.
принимаем соотношение моментов инерции верхней и нижней части колонны и ригеля в пределах:
при
при
Характеристики
Тип файла документ
Документы такого типа открываются такими программами, как Microsoft Office Word на компьютерах Windows, Apple Pages на компьютерах Mac, Open Office - бесплатная альтернатива на различных платформах, в том числе Linux. Наиболее простым и современным решением будут Google документы, так как открываются онлайн без скачивания прямо в браузере на любой платформе. Существуют российские качественные аналоги, например от Яндекса.
Будьте внимательны на мобильных устройствах, так как там используются упрощённый функционал даже в официальном приложении от Microsoft, поэтому для просмотра скачивайте PDF-версию. А если нужно редактировать файл, то используйте оригинальный файл.
Файлы такого типа обычно разбиты на страницы, а текст может быть форматированным (жирный, курсив, выбор шрифта, таблицы и т.п.), а также в него можно добавлять изображения. Формат идеально подходит для рефератов, докладов и РПЗ курсовых проектов, которые необходимо распечатать. Кстати перед печатью также сохраняйте файл в PDF, так как принтер может начудить со шрифтами.
















