144352 (620532), страница 2
Текст из файла (страница 2)
Где b – ширина фундаментной плиты (м)
NaII - расчетная нагрузка от массы сооружения на 1 пог. м. (кН)
Ro – табличное значение расчетного сопротивления грунта основания под подошвой фундамента, (кПа)
- усредненный удельный вес стеновых блоков, фундамента и грунта
d – глубина заложения фундамента, м
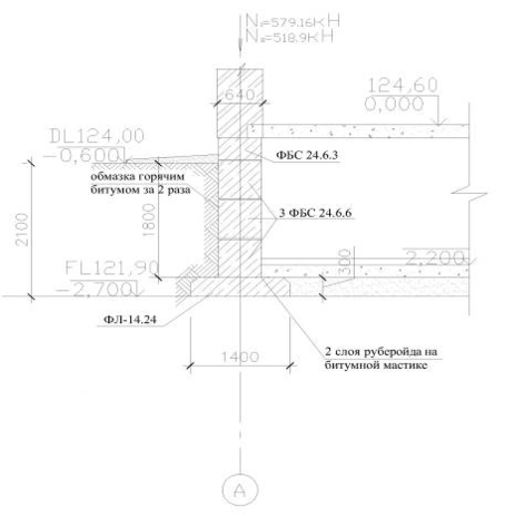
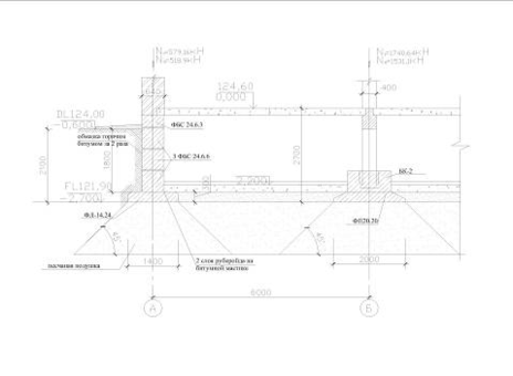
Полученная ширина подошвы ленточного фундамента b=1,44 м. является предварительной. Так как ширина определена, исходя из табличного значения расчетного сопротивления основания. По этому размеру принимаем типовую фундаментную подушку ФЛ 14.24. с hs=0,3 м, b=1400 мм (так как b=0,8–1,6)
L=2,4 м
Определяем расчетное сопротивление грунта основания по формуле СНиПа
MgMqMc-f(
)
Коэффициент
, так как рабочий слой песок средней крупности средней плотности.
Коэффициент
- зависит как от вида грунтов, залегающих непосредственно под подошвой фундамента, так и от отношения длины здания к его высоте.
Так как l/h= 95200/42600=2,24
-
- угол внутреннего трения -
-
-
– коэффициенты, принимаемые по табл. 4 СНиПа, в зависимости от расчетного значения угла внутреннего трения
грунта, находящегося непосредственно под подошвой фундамента
-
Kz=1 – коэффициент надежности (так как ширина ленточного фундамента b≤10 м)
-
b=1400 мм – меньшая сторона подошвы фундамента.
-
- расчетное значение удельного веса грунта, залегающего ниже подошвы фундамента.
-
d1=hs+hsfx(γcf/γII’)= 0,3+0,2х (22/18)=0,54 – приведенная глубина заложения наружных и внутренних фундаментов от пола подвала.
-
dB=2,1–0,5=1,6 м – глубина подвала – расстояние от уровня планировки до пола подвала.
-
осредненное расчетное значение удельного веса грунтов, залегающих выше отметки заложения подошвы фундамента
Проверяем фактическое среднее давление P, действующее под подошвой фундамента при принятом размере и заданных нагрузках:
Gф – собственный вес 1 м фундамента из подушек ФЛ-14.24, 3 стеновых блоков ФБС-6 и одного блока ФБС-3.
Gф=(1,4х0,3х1х24)+(3х(0,6х0,6х1х22))+(0,6х0,3х1х22)=10,08+23,76+3,96=37,8 кН/м3
Gгр=γх (0,7–0,3)=18х0,4=7,2 кН/м3 - вес грунта на обрезе фундамента с наружной стороны.
А=bх1=1,4х1=1,4 м2
P=402,8 кПа≤ R=413,5 кПа
Определяем разницу между R и P.
%
Вывод: Разница между средним давлением, действующим по подошве ленточного фундамента P, и расчетным сопротивлением R составляет меньше 2.66% < 10%, ширина подошвы фундамента запроектирована достаточно экономично.
-
Определение ширины столбчатого фундамента под колонну 13 этажного здания
Определяем ориентировочную ширину столбчатого фундамента.
Основные характеристики песчаной подушки, которая является рабочим слоем. Удельный вес грунта
Для песчаной подушки примем песок средней крупности средней плотности (СНиП 2.01–83)
Угол внутреннего трения
Где b – ширина фундаментной плиты (м)
NaII - расчетная нагрузка от массы сооружения на 1 пог. м. (кН)
Ro – табличное значение расчетного сопротивления грунта основания под подошвой фундамента, (кПа)
- усредненный удельный вес стеновых блоков, фундамента и грунта
d – глубина заложения фундамента, м
Полученная ширина подошвы столбчатого фундамента b=2,06 м. является предварительной. Так как ширина определена, исходя из табличного значения расчетного сопротивления основания. По этому размеру принимаем раздельный столбчатый фундамент с типовой фундаментной подушкой ФП 20.20. с hs=0,3 м, b=2000 мм и подколонником БК2 (1200х1200х600).
Определяем расчетное сопротивление грунта основания по формуле СНиПа
MgMqMc-f(
)
Коэффициент
, так как рабочий слой песок средней крупности средней плотности.
Коэффициент
– зависит как от вида грунтов, залегающих непосредственно под подошвой фундамента, так и от отношения длины здания к его высоте.
Так как l/h= 95200/42600=2,24
-
– угол внутреннего трения -
-
-
– коэффициенты, принимаемые по табл. 4 СНиПа, в зависимости от расчетного значения угла внутреннего трения
грунта, находящегося непосредственно под подошвой фундамента.
-
Kz=1 (так как ширина ленточного фундамента b≤10 м)
-
b=2000 мм – меньшая сторона подошвы фундамента.
-
– расчетное значение удельного веса грунта, залегающего ниже подошвы фундамента.
-
d1=hs+hsfx(γcf/γII’)= 0,3+0,2х (22/18)=0,54 – приведенная глубина заложения наружных и внутренних фундаментов от пола подвала.
-
dB=2,1–0,5=1,6 м – глубина подвала – расстояние от уровня планировки до пола подвала.
Проверяем фактическое среднее давление P, действующее под подошвой фундамента при принятом размере и заданных нагрузках:
Gф – собственный вес 1 м фундамента
Gф=(2х2х0,3х1х24)+(1,2х1,2х0,6х1х22)= 28,8+19,008=47,8кН/м3
А=bх1=2х2=4 м2
P=394,73 кПа≤ R=439,46 кПа
Определяем разницу между R и P.
%
Вывод: Разница между средним давлением, действующим по плите столбчатого фундамента P, и расчетным сопротивлением R составляет меньше 11.3% < 20%, ширина плиты фундамента запроектирована достаточно экономично.
с – зазор между блоками
Ro – расчетное сопротивление
-
Определение размеров песчаной подушки для ленточного фундамента под наружную стену 13 этажного здания
Согласно СНиП, находим коэффициент затухания -, по кровле подстилающего слоя:
Принимаем ширину песчаной подушки 1.5 м (опирается на слой – супесь пластичная).
Так как
, то
. Угол заложения песчаной подушки
-
-
-
-
-
Kz=1 (так как ширина ленточного фундамента b≤10 м)
-
b=4400 мм
-
-
d1=hs+hgx(γcf/γII’)= 0,3+2,7х (22/18)=3,6
-
dB=2,1–0,5=1,6 м
Определяем расчетное сопротивление грунта подстилающего песчаную подушку:
Следовательно, запроектированные размеры фундамента и принятая толщина песчаной подушки удовлетворяют требованиям СНиП.
5. Расчет свайного фундамента
5.1 Расчет свайного фундамента под наружную стену 13 этажного здания
Принимаем сваи забивные С 8 30, где l=8 м, сечение 30х30 см, толщина ростверка -500 мм.
Ориентировочная длина сваи с учетом глубины заложения ростверка и величины задки сваи в него (100 мм):
Определяем несущую способность забивной сваи:
– коэффициенты условия работы сваи в грунте
– коэффициенты условия работы сваи в грунте
А=0,3х0,3=0,09 м2, где А – площадь опирания на грунт
R=4200 кПа (табл)
Z1=2,28 м
Z2=3,44 м
Z3=4,60 м
Z4=6,20 м
Z5=8,20 м
Z6=10,075 м
Fi 1= 44
Fi 2= 50
Fi 3= 55
Fi 4= 59
Fi 5= 62
Fi 6= 65
Расчетная нагрузка, допускаемая на сваю по грунту:
- коэффициент безопасности по грунту.
- расчетная нагрузка на фундамент по 1 п.с.
- коэффициент, зависящий от вида свайного фундамента, для ленточного под стену -7,5, для отдельно стоящего -9
n – количество свай
Так как
, однорядная.
Расчетное расстояние между осями свай на 1 пог. м. стены:
Lp=1/n=1/0,81=1,2 м
Ширина ростверка:
Bp=(0,3+2х0,1+0,7)=1,2 м
Фактическая нагрузка на одну сваю:
1,2 – коэффициент перехода от 2 группе предельных состояний к 1 группе п.с.
G=(3х (0,6х0,6х1х22))= 23,76кН – вес грунтовой пригрузки ростверка
Qp=0,7х0,5х1х24=8,4 – вес ростверка
следовательно подбираем другое количество свай (n)
5.2 Расчет свайного фундамента под колонну 13 этажного здания
Ширина ростверка:
bp=(0,9+2х0,1+0,3)=1,4 м
- коэффициент, зависящий от вида свайного фундамента, для ленточного под стену -7,5, для отдельно стоящего -9
n – количество свай
Фактическая нагрузка на одну сваю:
1,2 – коэффициент перехода от 2 группе предельных состояний к 1 группе п.с.
Qp=1,3х1,3х24х0,5=20,28
Qк=0,4х0,4х24х2,3=8,83
Qn=0,82х0,6х22=8,44
5.3 Расчет свайного фундамента под наружную стену 12-ти этажного жилого дома по II предельному состоянию
Определяем ширину условного фундамента под наружную стену 13 этажного здания:
Вусл=d+2lсвхtgαср+Ср
Где d=0,03 – диаметр сваи, м
lсв=7,9 – длина сваи, м
tgαср=tg6o=0,105
Ср=0, так как однорядная
Вусл=d+2lсвхtgαср+Ср=0,03+2х7,9х0,105+0=1,68 м
Объем условного свайного фундамента:
V=1,4х10,2=14,28 м3
Объем ростверка:
V=0,5х1,2х1=0,6 м3
Объем стеновой части стены:
V=0,6х2,4 =1,44м3
Объем ростверка и объем стеновой части стены:
Vр=1,44+0,6=2,04 м3
Объем сваи на 1 пог. м. свайного фундамента:
Vсв=0,824х0,09х7,9=0,585 м3
Vобщ=0,585+2,04=2,62 м3
Объем грунта на 1 пог. м. условного свайного фундамента:
Vобщ=V-Vобщ=14,28–2,62=11,66 м3
Вес грунта на 1 пог. м. свайного фундамента:
Gгр=
- угол внутреннего трения
- расчетное значение удельного веса грунта, залегающего ниже подошвы фундамента.
осредненное расчетное значение удельного веса грунтов, залегающих выше отметки заложения подошвы фундамента
















