144340 (620521), страница 5
Текст из файла (страница 5)
М314=
100,5 кНм.
Нанося полученное значение на эпюру, получаем точки теоретического обрыва. Для определения мест фактического обрыва необходимо найти требуемую длину анкеровки арматуры:
1) W1 по [3, п. 5.14, табл. 37]:
см,
где
и
то же, что и в [п. 3.7.1];
см;
см;
принимаем W1=47 см.
2) W2 по формуле, для МТО3:
см,
1,08 кН/см
для МТО2:
42,2см,
1,08 кН/см
Принимаем длину анкеровки в МТО3 - 58 см, в МТО4 - 43 см.
3.7.3 Построение эпюры материалов на опоре В
кНм. На опоре В установлено 318A-III (As = 7,63 см2) и 312A-III (As = 3,39 см2). Несущая способность балки на опоре В, при полном количестве арматуры МUВ=218,2 кНм. Высота сжатой зоны
м (а*= 42,8 см);
,
.
Обрываем ряд арматуры 312A-III (As,обор.= 3,39 см2 ≤ As/2). Тогда As=7,63 см2 [рис. 3.10].
Рис. 3.10 - Сечение ригеля с оборванной арматурой
Определим несущую способность балки на опоре В МВ,318, при наличии только верхней арматуры. Высота сжатой зоны:
м;
где а1*= 20+18/2=29мм,
0,144,
МВ,318=
160,5 кНм.
Нанося полученное значение на эпюру, получаем точки теоретического обрыва. Для определения мест фактического обрыва необходимо найти требуемую длину анкеровки арматуры:
1) W1 по [3, п. 5.14, табл. 37]:
см,
где
и
то же, что и в (п. 3.7.1);
см;
см;
принимаем W1=25 см.
2) W1 по формуле, для МТО5:
,
для МТО6:
м,
Принимаем длину анкеровки в первом случае равной 112 см, и во втором случае равной 94 см.
Т.к. верхняя продольная арматура в первом пролёте не требуется, определим место её обрыва:
Место теоретического обрыва определяется по эпюре (момент равен нулю). Для определения места фактического обрыва необходимо найти требуемую длину анкеровки арматуры:
1) W1 по [3, п. 5.14, табл. 37]: W1=58 см.
2) W1 по формуле, для МТО7:
см,
Принимаем длину анкеровки равной 77 см.
3.7.4 Сечение на опоре С
кНм. На опоре В установлено 318A-III (As = 7,63 см2) и 312A-III (As = 3,39 см2). Несущая способность балки на опоре В, при полном количестве арматуры МUВ=218,2 кНм. Высота сжатой зоны
м (а*= 42,8 см);
,
.
Обрываем ряд арматуры 312A-III (As,обор.= 3,39 см2 ≤ As/2). Тогда As=7,63 см2 [рис. 3.10].
Рис. 3.11 - Сечение ригеля с оборванной арматурой
Определим несущую способность балки на опоре С МВ,318, при наличии только верхней арматуры. Высота сжатой зоны:
м;
где а1*= 20+18/2=29мм,
0,144,
МВ,318=
160,5 кНм.
Нанося полученное значение на эпюру, получаем точки теоретического обрыва. Для определения мест фактического обрыва необходимо найти требуемую длину анкеровки арматуры:
1) W1 по [3, п. 5.14, табл. 37]: W1= 25см [п. 3.7.3].
2) W1 по формуле, для МТО8
2) W1 по формуле, для МТО5:
,
Принимаем длину анкеровки равной 81см.
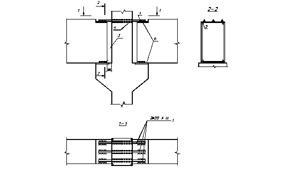
3.8. Стык ригеля у колонны
Стык ригеля у колонны выполняется ручной дуговой сваркой пропущенных через колонну соединительных стержней к закладным деталям ригеля [рис. 3.13] .
Площадь сечения соединительных стержней определяется по изгибающему моменту у грани колонны, увеличенному на 25%.
Усилия растяжения в соединительных стержнях:
=577,9кН,
где z=0.55 - 0.03 = 0.52м
Сечение стержней:
м2
Принимаем 3Ø28 с Аs=18.47см2. Общая рабочая длина сварных швов соединительных стержней с закладными деталями балок при высоте шва
cм и электродах Э42.
м [6, формула 120]
м [6, формула 121]
где βf=0.7 ; βz=1.0; Rωf =180кН; Rωz =164кН.
Длина шва с учетом непровара при двухсторонней сварке
см>13cм.
Рис 3.13 – стык ригеля у колонны на электроуглеродной сварке: 1- соединительные стержни; 2- арматурные вставки; 3 –бетон замоноличивания; 4 - металлические трубки Ø40мм, 5 –закладные детали.
4. Расчет колонны.
4.1 Общие положения
Колонна рассчитывается как внецентренно нагруженная стойка расчетной длины
равной высоте этажа [3, п.1.2]. При расчете учитывается случайный эксцентриситет
, обусловленный не учтенными в расчете факторами [3, п.1.21]. Постоянные и временные нагрузки от этажей считаются приложенными с этим эксцентриситетом. Рассчитывается колонна нижнего этажа.
4.2 Исходные данные
Здание четырехэтажное с плоским покрытием с высотой этажа 3,6 м. Сечение колонн 4040 см, схема расположения колонн приведена на рис. 1.1. Класс бетона В25. Класс арматуры A-III.
4.3 Определение усилий в средней колонне нижнего этажа
Грузовая площадь при принятой сетке колонн равна
м2.
Постоянная нагрузка
240,65 кН [4, п.1.4.1]
Временная нагрузка на перекрытие
кН. [5, табл.1]
Длительная часть временной нагрузки
кН. [5, табл.1]
Снеговая нагрузка на покрытие для IV снегового района:
[2, 5; табл.4]
Длительная часть снеговой нагрузки
кН [2, п.1.7.к]
Собственный вес колонны в пределах этажа
кН.
Продольное усилие в колонне нижнего этажа (здание 6-ти этажное).
Полное расчетное усилие
2733.92кН.
Усилие постоянной и длительной нагрузок
2107.63кН.
Значение случайного эксцентриситета выбирается из двух значений:
см;
см;
Принимаем
1 см.
Тогда моменты от случайных эксцентриситетов продольных сил относительно оси элемента будут равны:
от всех нагрузок
кН;
от постоянных и длительных нагрузок
кНм.
4.4 Предварительный подбор сечения арматуры
Пренебрегая моментами, считаем колонну центрально-сжатой и определяем предварительное сечение арматуры.
Приняв среднее значение
, получим:
26
м2.
Принимаем 432 [рис. 4.1].
см2.
Проверим условие
,
где
,
при
[3, табл.38],
=
Условие выполняется (3>2,01>0,1), следовательно сечение не переамировано, а также соответствует требованиям по минимальному количеству арматуры.
Рис. 4.1 - Поперечное сечение колонны
4.5. Расчет колонны как внецентренно сжатой стойки
Необходимо определить следующие величины.
-
Геометрические характеристики:
м4;
м2;
-
Коэффициент, учитывающий длительность действия нагрузки:
[3, 21]
где = 1 [3, табл.30];
Ml и M определяются относительно оси, проходящей через центр наименее сжатого стержня.
кНм;
кНм.
-
Коэффициент
:
но не менее
. [3, 22]
Принимаем
.
-
Критическая сила:
кН. [3, 58]
-
Коэффициент
учитывающий влияние прогиба на значение эксцентриситета
.
. [3, 19]
-
Эксцентриситет силы N относительно менее растянутой арматуры:
м
7. Относительная высота сечения
:
где
[3, 26]
-
Относительная высота сечения при расчете внецентренно сжатых элементов с симметричной арматурой
при малых эксцентриситетах
:
>
(случай малых эксцентриситетов
подтверждается).
Высота сжатой зоны сечения:
м.
-
Несущая способность проверяется по формуле
[3, 36]
где
кНм;
172,7
Таким образом условие [3, 36] выполняется (165,1 < 172,7) и несущая способность колонны обеспечена при продольной арматуре 422. Диаметр поперечной арматуры из условия сварки с диаметрами продольных стержней 22 мм принят 6 мм [4, прил. 9]. Шаг поперечной арматуры принят 40 см, что 20d=44 см и 50 см [3, п.5.22].
4.6. Расчет консоли колонны
Расчётная схема показана на рисунке 4.2.
Максимальная сила на консоль
кН.
Вылет консоли
равен:
,
где
=70 мм - зазор между ригелем и колонной;
- длина опорной площадки ригеля, которая должна удовлетворять условию:
м.
Принимаем
= 13 см, тогда
=13+7=20 см.
Расстояние от грани колонны до силы
см. Высоту колонны у грани колонны
см принимаем равной 40 см, а у свободного края
= 20 см, что удовлетворяет условиям
см и
Длина опорного листа
см. Угол наклона сжатой грани колонны 45. Для обеспечения прочности по наклонной сжатой полосе между грузом и опорой должно удовлетворятся условие:
[3, 85]
где правая часть принимается не более:
кН
и не менее:
кН
213.3 кН>
кН,
Принимаем 178,9 кН.
где
=1,5 [3, п. 3.32];
=0,1
=0,1
=2 (принимаем
=0,5) [3, п. 3.31*].
Тогда
кН,
где
[3, 87];
где
= 10 см - шаг хомутов в консоли, принимаемый не более 15 см и не более
=40/4=10 см [3, 87];
см.
Так как 225,4 < 273,6, принимаем правую часть выражения [3, 85] равной 225,4 и условие прочности удовлетворяется (174,7 кН < 225,4 кН).
Усилие в окаймляющей арматуре:
кН.
Требуемая площадь
м2.
Принимаем 214A-III с
3,08 см2.
4.7. Проектирование стыка колонны
Стык с минимальной затратой металла осуществляется ванной сваркой выпусков продольной арматуры, расположенных в угловых подрезках бетона длиной 150 мм. Из удобства монтажа стык располагается на высоте 1-го метра выше перекрытия. Между торцами колонн вставляется центрирующая прокладка размерами 10х10х0,2 см. Ядро стыка усиливается поперечными сетками из арматуры 22А-III, которые устанавливают не менее четырех штук на длине не менее 10d=10х22=220 мм продольной арматуры. Шаг сеток принимается равным 55 мм. Размеры ячеек 75 мм. Конструкция стыка показана на рисунке 4.3.
5 РАСЧЕТ ФУНДАМЕНТА
5.1 Общие сведения и исходные данные
Фундамент проектируется как центрально загруженный, ступенчатый, квадратный в плане формы. Размеры приняты кратными 30 см. Глубина заложения фундамента на естественном основании под внутренние колонны отапливаемого здания определена из условия, что его верхний обрез был ниже чистого пола на 15 см. Сборные колонны должны быть заделаны в стаканы на глубину не менее
=1,5х0,3=0,45 м, а также длины анкеровки арматуры
. Средний коэффициент надежности по нагрузке принят равным
= 1,15. Средний объемный вес материала фундамента и грунта на его обрезах
= 20 кН/м3.
Исходные данные к проектированию:
колонна сечения 3030 см заармирована 422;
расчетная нагрузка на фундамент N = 1289,9 кН;
нормативная
кН;
условное расчетное сопротивление грунта основания R0 = 0,25 МПа;
под фундаментом имеется песчано-гравийная подготовка;
класс бетона В25 (Rb =14,5 МПа, Rbt = 1,05 МПа);
класс арматуры A-III (Rs = 365 МПа).
5.2 Определение размеров подошвы, полной высоты и высоты ступеней фундамента
Высоту фундамента предварительно назначаем равной Н = 90 см.
Требуемая площадь подошвы равна
м2.
Размеры стороны фундамента
м.
Принимаем
м (АF=5,76 м2).
Высота фундамента определяется как большее из трех условий:
1) из условия продавливания фундамента колонной по поверхности пирамиды продавливания:
м,
где
м,
где
а = 0,04 м – защитный слой при наличии песчано-гравийной подушки.
2) из условия размещения колонны в стакане фундамента
м;
3) из условия обеспечения анкеровки арматуры колонны в стакане фундамента:
м,
где
. [3, 186]
Принимаем трёхступенчатый фундамент высотой Н = 90 см. Глубина стакана должна быть не менее
=0,5 м (из условия 2). Принимаем глубину стакана равной 65 см (с учётом минимальной толщины подошвы фундамента равной 20 см: 90-65=25 см) [рис. 5.1].
Высота нижней ступени Нн определяется из условия обеспечения бетоном прочности по поперечной силе без поперечного армирования в наклонном сечении по формуле:
м.
Принимаем hH = 0,3 м и h0H = 0,26 м.
Размеры второй и третьей ступеней фундамента принимаются 30 см, так как внутренние грани РHHvbbnnmm,ступеней не пересекают прямую, проведенную под углом 45 к граням колонны на отметке верха фундамента [рис. 5.1].
Необходимо произвести проверку фундамента на продавливание на поверхности пирамиды, ограниченной плоскостями, проведенными под углом 45 к боковым граням колонны по формуле
, [3, 107]
где
для тяжелого бетона;
- среднеарифметическое значение периметров верхнего и нижнего оснований пирамиды продавливания:
м;
F - продавливающая сила равная:
кН,
м2.
кН.
Условие [3, 107] выполняется, следовательно, продавливание подошвы фундамента исключено.
5.3 Расчет арматуры плиты фундамента
Арматура рассчитывается в сечениях 1-1, 2-2 и 3-3 [рис. 5.1] из условия работы фундамента на изгиб от реактивного давления грунта.
Значения изгибающих моментов в этих сечениях равны:
кНм;
кНм;
кН.
Требуемая площадь арматуры в этих сечениях равна:
м2;
м2;
м2.
Принимаем нестандартную сварную сетку с одинаковой в обоих направлениях арматурой из стержней 1510A-III (
см2) с шагом 15,6 см.
Проценты армирования расчетных сечений составят:
%;
%;
%.
Во всех сечениях условие % выполняется, следовательно конструкция заармирована в соответствии с минимальными требованиями.
5.4 Проверка подошвы фундамента на раскрытие трещин
Расчет производится по опасному сечению, по которому определилось расчетное сечение арматуры (сеч. 1-1).
Ширина раскрытия трещин определяется по формуле:
=
=
мм, [3, 144]
где
МПа < 365 МПа;
=209,4 кНм,
где
- определяется от реактивного давления грунта, от нормативного значения длительных и постоянных нагрузок [п. 4.3]
;
МПа.
При стержневой арматуре класса A-III и расположении фундамента выше уровня грунтовых вод предельное допустимое продолжительное раскрытие трещин от действия постоянных и длительных нагрузок равно
=0,3 мм, что больше 0,266 мм, следовательно ожидаемое раскрытие трещин соответствует требованию СНиПа.
СПИСОК ИСПОЛЬЗВАННОЙ ЛИТЕРАТУРЫ
1) Гуревич Я.И. Проектирование сборного междуэтажного перекрытия. - Методические указания, Хаб. ХВВСУ; 1988 – 77с.
2) СНиП 2.01.07-85, Нагрузки и воздействия. - М.; 1986.
3) СНиП 2.03.01-84, Бетонные и железобетонные конструкции, Нормы проектирования. - М.; I980.
4) Байков В.Н., Сигалов Э.Е. Железобетонные конструкции, Общий курс. - М.; 1985.
5) Бондаренко В.М., Судницын А.И. Расчёт строительных конструкций. Железобетонные и каменные конструкции.- М.; 1984.
:
учитывающий влияние прогиба на значение эксцентриситета
при малых эксцентриситетах
:














