144337 (620518), страница 6
Текст из файла (страница 6)
.
R = 240 МПа = 24 кН/см2 (фасонный прокат из стали С245);
(сжатый уголок, прикрепляемый одной полкой).
| Элемент сечения | Угол поворота | Зеркально |
| Уголок равнополочный по ГОСТ 8509-93 L80x10 |
Габариты сечения 79.9 x 79.9 мм
Геометрические характеристики сечения
| Параметр | Значение | ||
| A | Площадь поперечного сечения | 15.14 | см2 |
| | Угол наклона главных осей инерции | 45.0 | град |
| Iy | Момент инерции относительно центральной оси Y1 параллельной оси Y | 88.538 | см4 |
| Iz | Момент инерции относительно центральной оси Z1 параллельной оси Z | 88.538 | см4 |
| It | Момент инерции при свободном кручении | 4.606 | см4 |
| iy | Радиус инерции относительно оси Y1 | 2.418 | см |
| iz | Радиус инерции относительно оси Z1 | 2.418 | см |
| Wu+ | Максимальный момент сопротивления относительно оси U | 24.727 | см3 |
| Wu- | Минимальный момент сопротивления относительно оси U | 24.727 | см3 |
| Wv+ | Максимальный момент сопротивления относительно оси V | 11.206 | см3 |
| Wv- | Минимальный момент сопротивления относительно оси V | 13.133 | см3 |
| Wpl,u | Пластический момент сопротивления относительно оси U | 39.179 | см3 |
| Wpl,v | Пластический момент сопротивления относительно оси V | 19.952 | см3 |
| Iu | Максимальный момент инерции | 139.879 | см4 |
| Iv | Минимальный момент инерции | 37.197 | см4 |
| iu | Максимальный радиус инерции | 3.04 | см |
| iv | Минимальный радиус инерции | 1.567 | см |
| au+ | Ядровое расстояние вдоль положительного направления оси Y(U) | 1.633 | см |
| au- | Ядровое расстояние вдоль отрицательного направления оси Y(U) | 1.633 | см |
| av+ | Ядровое расстояние вдоль положительного направления оси Z(V) | 0.74 | см |
| av- | Ядровое расстояние вдоль отрицательного направления оси Z(V) | 0.867 | см |
| yM | Координата центра тяжести по оси Y | 17.097 | см |
| zM | Координата центра тяжести по оси Z | -2.347 | см |
.
Напряжения в раскосе:
.
4.2.3 Проверка устойчивости колонны в плоскости действия момента как единого стержня
Геометрические характеристики всего сечения:
Приведенная гибкость:
.
Коэффициент
зависит от угла наклона раскосов.
При
,
.
– площадь сечения раскосов по двум граням сечения колонны.
.
Для комбинации усилий, догружающих наружную ветвь (сечение 4-4):
N2 = -508,0 кН; М2 = 827,5 кНм
Для комбинации усилий, догружающих подкрановую ветвь (сечение 4-4):
N1 = -1489,2 кН; M1 = -725,6 кНм
Устойчивость сквозной колонны как единого стержня из плоскости действия момента проверять не нужно, так как она обеспечена проверкой устойчивости отдельных ветвей.
4.3 Узел сопряжения верхней и нижней частей колонны
Расчетные комбинации усилий в сечениях над уступом:
N= -373,0 кН; M = -91,8 кНм; Q = 3,6 кН;
Давление кранов
.
Прочность стыкового шва (ш1)проверяем по нормальным напряжениям в крайних точках сечения надкрановой части. Площадь шва равна площади сечения колонны.
Наружная полка:
.
Внутренняя полка:
.
Толщину стенки траверсы определяем из условия смятия по формуле:
; принимаем
Принимаем tтр=1,6 см.
Усилие во внутренней полке верхней части колонны:
.
Длина шва крепления вертикального ребра траверсы к стенке траверсы (ш2):
.
Применяем полуавтоматическую сварку проволокой марки Св-08А, d = 1,4...2 мм.
Назначаем:
;
.
В стенке подкрановой ветви делаем прорезь, в которую заводим стенку траверсы. Для расчета шва крепления траверсы к подкрановой ветви (ш3) составляем комбинацию усилий, дающую наибольшую опорную реакцию траверсы.
Такой комбинацией будет сочетание (1, 2, 7) М = -151,8 кНм; N = -353,8 кН:
Коэффициент 0,9 учитывает, что усилия N и M приняты для второго основного сочетания нагрузок.
Требуемая длина шва:
Из условия прочности стенки подкрановой ветви в месте крепления траверсы (линия 1-1) определяем высоту траверсы
по формуле:
где
– толщина стенки I 30Ш2;
– расчетное сопротивление срезу фасонного проката из стали С245. Принимаем
.
Проверим прочность траверсы как балки, нагруженной усилиями N, M и
.
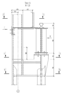
Расчетная схема и сечение траверсы приведены на рис. 4.3.
Узел сопряжения верхней и нижней части колонны.
Рис. 4.3.
Нижний пояс траверсы принимаем конструктивно из листа 270
16 мм, верхние горизонтальные ребра – из двух листов 140
16 мм.
Геометрические характеристики траверсы.
| Элемент сечения | Угол поворота | Зеркально |
| Лист 270 x 16 | ||
| Лист 380 x 16 | 90.0 | |
| Лист 140 x 16 | ||
| Лист 140 x 16 |
Габариты сечения 296.0 x 396.0 мм
Геометрические характеристики сечения
| Параметр | Значение | ||
| A | Площадь поперечного сечения | 148.8 | см2 |
| | Угол наклона главных осей инерции | 0.0 | град |
| Iy | Момент инерции относительно центральной оси Y1 параллельной оси Y | 21323.038 | см4 |
| Iz | Момент инерции относительно центральной оси Z1 параллельной оси Z | 6094.736 | см4 |
| It | Момент инерции при свободном кручении | 118.859 | см4 |
| iy | Радиус инерции относительно оси Y1 | 11.971 | см |
| iz | Радиус инерции относительно оси Z1 | 6.4 | см |
| Wu+ | Максимальный момент сопротивления относительно оси U | 896.493 | см3 |
| Wu- | Минимальный момент сопротивления относительно оси U | 1348.275 | см3 |
| Wv+ | Максимальный момент сопротивления относительно оси V | 411.806 | см3 |
| Wv- | Минимальный момент сопротивления относительно оси V | 411.806 | см3 |
| Wpl,u | Пластический момент сопротивления относительно оси U | 1620.609 | см3 |
| Wpl,v | Пластический момент сопротивления относительно оси V | 665.36 | см3 |
| Iu | Максимальный момент инерции | 21323.038 | см4 |
| Iv | Минимальный момент инерции | 6094.736 | см4 |
| iu | Максимальный радиус инерции | 11.971 | см |
| iv | Минимальный радиус инерции | 6.4 | см |
| au+ | Ядровое расстояние вдоль положительного направления оси Y(U) | 6.025 | см |
| au- | Ядровое расстояние вдоль отрицательного направления оси Y(U) | 9.061 | см |
| av+ | Ядровое расстояние вдоль положительного направления оси Z(V) | 2.768 | см |
| av- | Ядровое расстояние вдоль отрицательного направления оси Z(V) | 2.768 | см |
| yM | Координата центра тяжести по оси Y | 0.0 | см |
| zM | Координата центра тяжести по оси Z | -15.815 | см |
Максимальный изгибающий момент в траверсе:
.
















