143887 (594005), страница 5
Текст из файла (страница 5)
Таблица 5.2 – Сбор нагрузок от конструкции пола чердачного этажа
| Элемент конструкции пола | Нормативное значение нагрузки, кПа | Коэффициент надежности по нагрузке | Расчетное значение нагрузки, кПа |
| 1 | 2 | 3 | 4 |
| 0,90 | 1,3 | 1,17 | |
| 2. 1 слой рубероида РКМ-300Б | 0,05 | 1,3 | 0,06 |
| 0,45 | 1,3 | 0,54 | |
| 0,32 | 1,3 | 0,42 | |
| Итого: | 1,72 | 2,20 |
Нагрузку от стенового ограждения принимаем– 10 кН/м;
Нагрузку от монолитного балконного ограждения – 4 кН/м;
Нагрузку от горизонтального давления грунта на наружные стены подвала с треугольной эпюрой интенсивности, нижний катет которой равен – 45 кН/м2 .
Нагрузки от собственного веса несущих конструкций программой учитываются автоматически.
5.3.2 Временная полезная нагрузка
Таблица 5.3 – Полные значения временных нагрузок для помещений
| Помещения | Полное нормативное значение нагрузки, кПа | Коэффициент надежности по нагрузке | Расчетное значение нагрузки, кПа |
| 1 | 2 | 3 | 4 |
| 1. Квартиры жилых зданий | 1,5 | 1,3 | 2,0 |
| 2. Вестибюли, коридоры, лестницы | 3,0 | 1,2 | 3,6 |
| 3. Балконы и лоджии | 2,0 | 1,2 | 2,4 |
| 4. Чердачные помещения | 0,7 | 1,3 | 0,9 |
5.3.3 Снеговая нагрузка
Расчетное значение веса снегового покрова согласно СНКК 20 - 303 -2002 – 0,9 кПа .
Полное расчетное значение снеговой нагрузки s на горизонтальную проекцию покрытия следует определять по формуле
5.3.4 Ветровая нагрузка
При высоте здания < 40 м можно не учитывать ветровую пульсацию.
Ветровую нагрузку рассмотрим как нормальное давление в расчетном направлении, условно приложенное к проекции сооружения. За расчетное примем самое неблагоприятное направление, полученное по результатам предварительных расчетов на сейсмическую нагрузку.
Расчетное значение ветрового давления - wg =0,53 кПа.
Тип местности – В.
Расчетное значение средней составляющей ветровой нагрузки:
- для наветренной стороны:
- для подветренной стороны:
где:
- расчетное значение ветрового давления;
- аэродинамический коэффициент;
- коэффициент, учитывающий изменение ветрового давления по высоте.
5.3.5 Сейсмическая нагрузка
Для сбора сейсмической нагрузки использовалась линейно-спектральная теория расчета.
В расчете задано 3 направления сейсмического воздействия - два поступательных и одно вращательное (по направляющим косинусам двух первых форм колебаний) с учетом 9 форм собственных колебаний для каждого воздействия. Величины сосредоточенных масс определены программно путем формирования масс через заданный объемный вес конструкций с учетом постоянных и временных нагрузок.
5.3.6 Жесткости и материалы
Жесткостные характеристики конструкций и их соединений вычисляются программно, в зависимости от их геометрических параметров и характеристик материалов, с учетом условий работы конструкций, вводимых в расчетную модель
Монолитные конструкции - из тяжелого бетона класса В20
Продольная арматура класса А-III.
Поперечная арматура класса А-I.
5.3.7 Грунтовые условия площадки и выбор параметров упругого основания
Грунтовые условия площадки строительства приняты по данным технического отчета об инженерно-геологических изысканиях, выполненного ГУП «Кубаньгеология» согласно техническому заданию ОАО «Краснодаргражданпроект».
При существующих инженерно-геологических условиях для проектируемого жилого дома был применен свайный фундамент. В расчетной схеме сваи моделируется элементами конечной жесткости.
5.4 Расчетная схема
При расчете остов здания смоделирован как каркасная система в монолитном исполнении с жесткими рамными узлами.
Покрытие, перекрытия, лестничные марши, лестничные площадки, а так же монолитные стены моделировались конечными элементами типа изгибно-плосконапряженный конечный элемент (элемент плоской оболочки).
Колонны моделировались конечными элементами типа 3D-стержневой элемент. В модели реализована гипотеза «размазывания жесткости колонн», что позволило более полно смоделировать работу каркаса, т.е избежать завышенных пиковых значений армирования в местах сопряжения колонн с диском перекрытия.
Ненесущие стены (наружное ограждение), не влияющие на распределение и восприятие горизонтальных и вертикальных нагрузок, в расчете учитывались в виде линейно распределенной нагрузки.
5.5 Расчет
5.5.1 Модель
Расчетная модель здания подготовлена в программе «ProFEt» в виде позиций и в модуле «Gen3Dim» преобразована в конечно–элементную (FE – модель).
Таблица 5.4 – Характеристики расчетной схемы
| Элементы | Узлы | Нагружения | Собств.формы | Консистентность_масс |
| 1 | 2 | 3 | 4 | 5 |
| 40035 | 36570 | 32 | 9 | да |
5.5.2 Расчет здания на собственные колебания
После сборки и корректировки расчетной схемы здания проведем расчет на собственные колебания. Данный расчет позволит определить частотные характеристики здания по каждой из форм собственных колебаний.
Результатом расчета режима собственных колебаний являются частоты и формы колебаний расчетной динамической модели здания. При проведении анализа в расчете учитывалось 9 форм собственных колебаний, которые использовались для определения усилий от сейсмических нагрузок.
Таблица 5.5 – Периоды колебаний
| N формы | T, с |
| 1 | 2 |
| 1 | 0.8760 |
| 2 | 0.8170 |
| 3 | 0.7410 |
| 4 | 0.2530 |
| 5 | 0.2380 |
| 6 | 0.2330 |
| 7 | 0.1540 |
| 8 | 0.1480 |
| 9 | 0.1410 |
Далее, опираясь на результаты динамического расчета, определим наихудшее направление сейсмического воздействия и проведем сбор сейсмической нагрузки.
5.5.3 Расчет здания на вынужденные колебания
Расчет на вынужденные колебания проводился в соответствии со СНиП II-7-81* «Строительство в сейсмических районах».
При расчете на сейсмические воздействия учтены следующие характеристики:
-
тип сооружения – жилые здания;
-
категория грунта по сейсмическим свойствам – II;
-
расчетная сейсмичность площадки – 7 баллов.
При расчете на вынужденные колебания принимались во внимание все 9 форм.
Для расчета на сейсмическое воздействие предварительно были определено опасное направление и направляющие косинусы форм для поступательного воздействия, а так же факторы участия.
Для того, чтобы программа интерпретировала постоянные и временные нагрузки как массы, при сборе сейсмической нагрузки, необходимо создать комбинацию для динамического расчета, где постоянные нагрузки учитываем с коэффициентом 0,09, а временные со средним коэффициентом 0,07, т.к. в данном расчете мы не разделяем временную полезную нагрузку на длительную и кратковременную составляющие.
В направлении оси Ох здание колеблется поступательно, однако имеется и вращательная составляющая. Это вызвано неравномерной расстановка диафрагм и ядер жесткости.
В направлении Ох и Оу здание колеблется поступательно, но присутствует и вращательная составляющая. Это вызвано, прежде всего, неравномерной расстановка диафрагм и смещением ядра жесткости, что приводит к смещению центров масс дисков перекрытий от вертикальной геометрической оси здания.
Но так как вклад крутильных сил невелик, то конструктивную схему здания примем для дальнейших расчетов без корректировки основных несущих конструкций.
Третья форма собственных колебаний исключительно вращательная.
5.5.4 Расчетные параметры сейсмического воздействия, вводимые в расчет. Составление таблицы РСУ
Программный комплекс ProFEt & Stark 3.0 позволяет произвести сбор сейсмических нагрузок автоматизированным способом.
Определим коэффициенты и расчетные параметры для проведения расчета здания с учетом сейсмического воздействия, используя спектральную теорию расчета согласно СНиП II-7-81* «Строительство в сейсмических районах».
Расчетные параметры сейсмического воздействия, вводимые в расчет.
Амплитуда ускорений поступательного движения грунта при сейсмическом воздействии определяется по формуле:
K1 = 0,22 – коэффициент, учитывающий допускаемые повреждения зданий и сооружений;
Kψ = 1,3 – коэффициент, учитывающий характеристики здания;
g =10 м/с2 - ускорение свободного падения;
А =0,1 – для сейсмичности 7 баллов;
Х1(В) – нормированная апроксимирующая функция;
В – наименьший размер здания в плане;
а – апроксимирующий коэффициент для II-ой категории грунтов.
Амплитуда угловых ускорений вращательного движения грунта при сейсмическом воздействии определяется по формуле:
W = 0,06 – для II-ой категории грунтов;
Х2(В) – нормированная апроксимирующая функция:
В – наименьший размер здания в плане.
Тогда,
При сборе сейсмических нагрузок учитываем девять форм собственных колебаний.
Таблица 5.6 – Комбинации нагружений
| Номер | НГ-1 | НГ-2 | НГ-3 | НГ-4 | НГ-5 | НГ-6 | НГ-7 | НГ-8 | НГ-9 | НГ-10 | НГ-11 | НГ-12 |
| 1 | 2 | 3 | 4 | 5 | 6 | 7 | 8 | 9 | 10 | 11 | 12 | 13 |
| K-1 | 1 | 1 | 0 | 0 | 0 | 0 | 0 | 0 | 0 | 0 | 0 | 0 |
| K-2 | 0.9 | 0.7 | 1.42 | 0 | 0 | 0 | 0 | 0 | 0 | 0 | 0 | 0 |
| K-3 | 0.9 | 0.7 | -1.42 | 0 | 0 | 0 | 0 | 0 | 0 | 0 | 0 | 0 |
| K-4 | 0.9 | 0.7 | 0 | 0 | 0 | 0 | 0 | 0 | 1.4 | 0 | 0 | 0 |
| K-5 | 0.9 | 0.7 | 0 | 0 | 0 | 0 | 0 | 0 | -1.4 | 0 | 0 | 0 |
Рисунок 5.13 – Сбор сейсмической нагрузки в направлении оси Ох
Рисунок 5.14 – Сбор сейсмической нагрузки в направлении оси Оy
Рисунок 5.15 – Сбор сейсмической нагрузки (вращение относительно вертикальной оси Oz здания)
Следует различать нагружения, задаваемые в конечно-элементной модели и нагружения, рассматриваемые при определении РСУ.
Это связано с тем, что в результате расчета сейсмических воздействий для каждого воздействия создается несколько нагружений (по одному на каждую форму собственных колебаний), которые потом в РСУ учитываются как одна нагрузка.
Для остальных типов нагружений, одному нагружению в конечно-элементной модели соответствует одна нагрузка при определении РСУ.
Учтем вышеизложенные рекомендации и сформируем следующую таблицу сейсмических нагружений:
Сформируем следующую таблицу сейсмических нагружений:
Рисунок 5.16 – Сейсмические нагружения
5.5.5 Анализ реакций свай
Рисунок 5.17 – Схема расстановки свай
Рисунок 5.18 – Реакции направления Z ( Max Az = 340.323 кН, Min Az = 276.551 кН. Комбинация 1)
Рисунок 5.19 – Реакции направления Z (Max Az = 435.602 кН, Min Az = 91.6638 кН. Комбинация 2)
Рисунок 5.20 – Реакции направления Z (Max Az = 438.259 кН, Min Az = 105.143 кН. Комбинация 3)
Рисунок 5.21 – Реакции направления Z (Max Az = 469.664 кН, Min Az = 57.9815 кН. Комбинация 4)
Рисунок 5.22 – Реакции направления Z (Max Az = 456.874 кН, Min Az = 65.451 кН. Комбинация 5)
Рисунок 5.23 – Реакции направления Х (Max Ax = -28.446 кН, Min Ax = -38.7352 кН. Комбинация 2)
Рисунок 5.24 – Реакции направления Х (Max Ax = 38.5595 кН, Min Ax = 28.4184 кН. Комбинация 3)
Рисунок 5.25 – Реакции направления Y (Max Ay = -23.9615 кН, Min Ay = -36.1918 кН. Комбинация 4)
Рисунок 5.26 – Реакции направления Y (Max Ay = 37.5249 кН, Min Ay = 23.7234 кН. Комбинация 5)
5.6 Результаты армирования устраиваемых конструкций
Расчет арматуры проводился по прочности и трещиностойкости.
Н
аправление осей выбрано следующим образом:
Оу
Ох
Рисунок 5.27 – Направления армирования
Рисунок 5.28 – Задание параметров для армирования
Min Asso = 0 см2/м, Max Asso = 53.2964 см2/м. Расчет по РСУ
Рисунок 5.29 – Армирование нижней зоны ростверка в направлении Ох
Min Assu = 0 см2/м, Max Assu = 65.5149 см2/м. Расчет по РСУ
Рисунок 5.30 – Армирование нижней зоны ростверка в направлении Оу
Min Asro = 0 см2/м, Max Asro = 98.811 см2/м. Расчет по РСУ
Рисунок 5.31 – Армирование верхней зоны ростверка в направлении Ох
Min Asru = 0 см2/м, Max Asru = 76.0599 см2/м. Расчет по РСУ
Рисунок 5.32 – Армирование верхней зоны ростверка в направлении Оу
Max.деформация = 10.2343 mm в узле = 1960
Рисунок 5.33 – Деформированная схема устраиваемого перекрытия в направлении Оz
Рисунок 5.34 – Армирование нижней зоны устраиваемого перекрытия в направлении Ох
Рисунок 5.35 – Армирование нижней зоны устраиваемого перекрытия в направлении Оу
Рисунок 5.36 – Армирование верхней зоны устраиваемого перекрытия в направлении Ох
Рисунок 5.37 – Армирование верхней зоны устраиваемого перекрытия в направлении Оу
Max.деформация = 10.693 mm в узле = 6795
Рисунок 5.38 – Деформированная схема устраиваемого покрытия в направлении Оz
Рисунок 5.39 – Армирование нижней зоны устраиваемого покрытия в направлении Ох
Рисунок 5.40 – Армирование нижней зоны устраиваемого покрытия в направлении Оу
Рисунок 5.41 – Армирование верхней зоны устраиваемого покрытия в направлении Oх
Рисунок 5.42 – Армирование верхней зоны устраиваемого покрытия в направлении Оу
Рисунок 5.43 – Расположение колонн несущего остова
Min As2 = 0 cm2, элем. N 39673. Max As2 = 4.7168 cm2, элем. N 39679
Рисунок 5.44 – Продольное армирование колонн сечением 700х300 мм
Min As1 = 0 cm2, элем. N 39841. Max As1 = 0.756836 cm2, элем. N 39771
Рисунок 5.45 – Продольное армирование колонн сечением 500х250 мм
Min As1 = 0 cm2, элем. N 39863. Max As1 = 0.964356 cm2, элем. N 39774
Рисунок 5.46 – Продольное армирование колонн сечением 250х500 мм
5.7 Конструирование
Детальное конструирование приведено на листах формата А1 графической части выпускной квалификационной работы.
Материал конструкций:
бетон класса:
-
В25;
В результате расчета принята арматура для перекрытия: основное армирование А-III, диаметром 10 мм с шагом 200 мм, усиления из А-I.
В проектном положении нижняя сетка армирования закрепляется с помощью бетонных подкладок, а верхняя с помощью поддерживающих каркасов.
Стыки рабочей арматуры перепускаем не менее величины равной 40 диаметрам сечения.
Для колонн основное армирование А-III, диаметром 20 мм, усиления 8 и 25 мм. Для ростверка основное армирование А-III, диаметром 10-12 мм.
6 Технология строительного производства
6.1 Общие сведения об объекте
Проектируемое жилое здание - это 11-ти этажное здание с размерами в плане 27 х 20,6 м. В здании имеется также цокольный этаж. Здание состоит из монолитного каркаса: колонны и плиты перекрытия. Наружные стены - кладка из керамического кирпича с утеплителем.
Диафрагмы жесткости - монолитные.
Лестницы - монолитные.
Перегородки - каменные и гипсокартонные на металлическом каркасе.
Фундаменты - монолитный ростверк и забивные сваи.
В соответствии с принятой технологией работ и особенностями конструкции здания составлена краткая ведомость основных объемов работ (таблица 6.1).
Таблица 6.1 - Ведомость объемов работ
| № п/п | Наименование работ и комплексов работ | Объем работы | |||||
| Ед. изм | Кол-во | ||||||
| 1 | 2 | 3 | 4 | ||||
| Свайное поле и ростверк | |||||||
| 1 | Погружение дизель-молотом копровой установки на базе экскаватора железобетонных свай длиной до 8 м в грунты группы 2 | 1 м3 сваи | 14,6 | ||||
| 2 | Погружение дизель-молотом копровой установки на базе экскаватора железобетонных свай длиной до 12 м в грунты группы 2 | 1 м3 сваи | 169,52 | ||||
| Возведение цокольного этажа | |||||||
| 3 | Устройство монолитного ростверка | 100 м3 бетона, бутобетона и железобетона в деле | 8,2 | ||||
| 4 | Бетонирование перекрытий толщиной до 20 см в крупнощитовой опалубке | 10 м3 конструкций | 98,5 | ||||
| 5 | Установка отдельных стержней в перекрытиях диаметром св. 8 мм | 1 т арматуры, закладных деталей | 9,18 | ||||
| Возведение монолитного каркаса | |||||||
| 6 | Устройство железобетонных колонн выше отм 0,000 | 100 м3 железобетона в деле | 1,32 | ||||
| 7 | Бетонирование перекрытий толщиной до 20 см в крупнощитовой опалубке | 10 м3 конструкций | 738 | ||||
| Устройство стен | |||||||
| 8 | Бетонирование конструкций наружных стен с помощью автобетононасоса в крупнощитовой, объемно-переставной и блочной опалубках (без вычета проемов) толщиной до 20 см | 10 м3 конструкций | 16077,8 | ||||
| 9 | Бетонирование конструкций наружных стен с помощью автобетононасоса в крупнощитовой, объемно-переставной и блочной опалубках (без вычета проемов) толщиной до 30 см | 10 м3 конструкций | 29,55 | ||||
| 10 | Бетонирование конструкций диафрагм с помощью автобетононасоса в крупнощитовой, объемно-переставной и блочной опалубках (без вычета проемов) толщиной до 20 см | 10 м3 конструкций | 509,7 | ||||
| 11 | Кладка стен кирпичных наружных простых при высоте этажа до 4 м | 1 м3 кладки | 530 | ||||
| 12 | Установка вентиляционных блоков массой до 2,5 т | 100 шт. | 1,79 | ||||
| 13 | Изоляция перегородок минераловатными плитами Упса | 1 м3 изоляции | 15,3 | ||||
| Штукатурка | |||||||
| 14 | Сплошное выравнивание бетонных поверхностей (однослойная штукатурка) известковым раствором потолков | 100 м2 поверхности | 55,07 | ||||
| 15 | Сплошное выравнивание бетонных поверхностей (однослойная штукатурка) | 100 м2 поверхности | 63,61 | ||||
| 16 | Оштукатуривание поверхностей цементно-известковым или цементным раствором по камню и бетону улучшенное стен | 100 м2 оштукатуриваемой поверхности | 97,17 | ||||
| Черные полы | |||||||
| 17 | Устройство пароизоляции оклеечной рулонными материалами на мастике битуминоль первый слой | 100 м2 изолируемой поверхности | 43,45 | ||||
| 18 | Устройство пароизоляции оклеечной рулонными материалами на мастике битуминоль последующий слой | 100 м2 изолируемой поверхности | 5,0124 | ||||
| 19 | Устройство гидроизоляции-1 слой пергамина | 100 м2 изолируемой поверхности | 3,203 | ||||
| 20 | Устройство стяжек цементных толщиной 20 мм | 100 м2 стяжки | 62,071 | ||||
| Чистые полы | |||||||
| 21 | Устройство покрытий из паркета штучного без жилок | 100 м2 покрытия | 31,425 | ||||
| 22 | Гладкая облицовка стен керамическими плитками | 100 м2 поверхности облицовки | 29,07 | ||||
| 23 | Устройство покрытий на цементном растворе из плиток керамических | 100 м2 покрытия | 22,46 | ||||
| Окраска оклейка | |||||||
| 24 | Окраска поливинилацетатными водоэмульсионными составами улучшенная | 100 м2 окрашиваемой поверхности | 49,69 | ||||
| 25 | Улучшенная окраска масляными составами по штукатурке стен | 100 м2 окрашиваемой поверхности | 18,98 | ||||
| 26 | Окраска поливинилацетатными водоэмульсионными составами улучшенная по штукатурке стен | 100 м2 окрашиваемой поверхности | 32,28 | ||||
| 27 | Оклейка обоями стен по монолитной штукатурке и бетону тиснеными и плотными | 100 м2 оклеиваемой и обиваемой поверхности | 71,75 | ||||
| 28 | Улучшенная окраска масляными составами по дереву заполнений проемов дверных | 100 м2 окрашиваемой поверхн. | 24,6 | ||||
| Устройство кровли | |||||||
| 29 | Монтаж связей и распорок из одиночных и парных уголков, гнутосварных профилей для пролетов до 24 м при высоте здания до 50 м | 1 т конструкций | 9,64 | ||||
| 30 | Утепление потолка чердака минераловатными плитами | 1 м3 изоляции | 49,1 | ||||
| 31 | Установка гидроизоляционного слоя из пленки полиэтиленовой | 100 м2 поверхности покрытия изоляции | 5,55 | ||||
| 32 | Устройство покрытия кровли из металлопластикового профиля | 100 м2 кровли | 7,75 | ||||
| 33 | Устройство металлических ограждений с поручнями из твердолиственных пород | 100 м ограждений | 0,94 | ||||
| Заполнение дверных и оконных проемов | |||||||
| 34 | Установка блоков оконных из металлопластика площадью проема до 2 м2 | 100 м2 проемов | 1,734 | ||||
| 35 | Установка блоков оконных из металлопластика площадью проема более 2 м2 | 100 м2 проемов | 1,54 | ||||
| 36 | Установка блоков в наружных и внутренних дверных проемах в перегородках площадью проема до 3 м2 | 100 м2 проемов | 9,43 | ||||
| 37 | Установка подоконных досок в каменных стенах высотой проема до 2 м | 100 м2 проемов | 3,27 | ||||
| 38 | Установка витражей из металлопластика | 100 м2 проемов | 2,87 | ||||
| 39 | Установка балконных дверей из металлопластика площадью проема до 3 м2 | 100 м2 проемов | 2,089 | ||||
Строительство здания ведется поточным методом. Для организации поточного метода здание разбивается на монтажные участки по этажам.
6.2 Выбор монтажных приспособлений
Монтажные приспособления по назначению можно разделить на три основные группы:
-
грузозахватные средства;
-
средства для установки, временного закрепления и выверки конструкций;
-
вспомогательные средства, служащие для организации рабочего места и обеспечивающие безопасное производство строительных работ.
Подбираются монтажные приспособления по справочным пособиям на основании данных о габаритах и массе конструктивных элементов здания.
Предпочтение отдается элементам, которые имеют наименьший вес, просты по конструкции, универсальны, снижают трудоемкость работ и обеспечивают безопасность.
Таблица 6.2 - Ведомость монтажных приспособлений
| Наименование приспособлений | Эскиз | Грузоподъ-емность, т | Масса, кг | Расчетная высота, м | Назначение | ||||
| 1 | 2 | 3 | 4 | 5 | 6 | ||||
| 1.Строп двухветвевой, ГОСТ 19144-80 | 2,5 6,3 | 12 50 | 2,0 3,0 | Разгрузка и раскладка различных конструкций, щитов опалубки Подъем бадьи с бетоном. Монтаж перемычек | |||||
| 2. Универсаль-ный строп. Мосгор-строй, № 10920 | 2,5 | 35 | — | Подача металлических конструкций, арматуры в пучках, пиломатериалов | |||||
| 3. Строп четырехветве-вой, ЦНИИ ОМТПр. 4 456-69 | 4,0 2,5 | 60 40 | 3,5 2,0 | Подача поддонов с кирпичом, щитов опалубки Подача ящика с раствором | |||||
| 4. Подмости блочные (системы Си-бирцева) | 0,5 | 1196 | 1,1+1=2,1 | Организация рабочего места каменщика | |||||
| 5. Футляр-захват с нежестким отражением, Мособлор-техстрой, 4.1164 | 1,5 | 26 | 1,2 | Подача краном поддонов с кирпичеом и пе-нобетонными блоками | |||||
| 6. Бадья для подачи етонной смеси, Сталъмонтаж, №1950-77 | 2,5 | 340 | 1,5 | Бетонирование монтажных конструкций | |||||
6.3 Выбор монтажного крана по техническим параметрам
К техническим параметрам крана относятся:
-
требуемая грузоподъемность Qmp;
-
наибольшая высота подъема крюка Нтр;
-
наибольший вылет крюка Rmp.
На основании принятой схемы ведения работ, массы элементов здания, габаритов и проектного положения конструкций в сооружении определяем группу элементов, которые характеризуются максимальными монтажными параметрами. Для этих элементов подбираем наименьшие требуемые параметры монтажного крана.
Определяем кран с возможностью подачи бадьи с бетоном на покрытие с отметкой 29,900.
1) Определяем Qmp
Qmр>Q3 + Qnp + Qгр, где Q3 = 3 m - вес бадьи с бетоном;
Qnp = 0,02 т - вес страховочного троса; Qгр = 3 т - вес двухветвевого стропа.
Qmp = 3 + 0,02 + 0,05 = 3,07 т.
2) Определяем Нтр:
Нтр = ho + h3 + hc + hn + h3,
где h0 = 43,2 м - превышение монтажного горизонта над уровнем стоянки крана; h3 = 1 м - запас по высоте для обеспечения безопасности;
hc = 3,0 м- высота строповки;
hn= 1,8 м - высота полиспаста в собранном виде; h3 = 1,5 м - высота бадьи с бетоном.
Нтр = 43,2 + 1+3 + 1,8 + 1,5 = 50,5 м.
3) Определяем Rmp:
Rmp = a + b + с,
где а = 3 м - расстояние от оси до рельса подкранового пути;
с = 2 м - расстояние от рельса до выступающей части здания;
b = 20,6 м - расстояние от центра тяжести поднятого элемента до выступающей части здания.
Rmp = 3 + 2 + 20.6 = 27,6 м.
По справочным данным выбираем передвижной башенный кран КБМ-403 с балочной стрелой Lcmp = 20 м. Его грузовая характеристика показана на рисунке 6.4.
Рис. 6.4 — Грузовая характеристика крана КБ-504, Lcmp = 20 м
R=3,8 м, Нкр=60м, высота подъема крюка: 56м, вылет крюка 30м, грузоподъемность 8т
6.4 Методы производства работ
Возведение 11-ти этажного односекционного жилого здания ведется с помощью одного башенного крана КБ-504.
6.4.1 Арматурные работы (на этаже)
Выполнение арматурных работ производится с опережением опалубочных работ. На первом этапе выставляется арматура для диафрагм жесткости и колонн. На втором этапе - устанавливается арматура для лестничных маршей, площадок, перекрытия.
Поступающие на строительную площадку арматурные стержни сортируют при складировании по маркам, диаметрам, длинам.
При установке арматуры временное ее закрепление производится струбцинами. Для образования защитного слоя между арматурой и опалубкой устанавливаются фиксаторы 100 х 100 мм из раствора с шагом до 1 м. Фиксаторы крепятся к арматуре проволокой. Пространственные каркасы вяжутся. Применение сварки не допускается.
Приемка установленной арматуры осуществляется до укладки бетонной смеси и оформляется актом на скрытые работы. На элементах арматуры не должно быть отслаивающейся ржавчины, окалины, следов масла и других загрязнений.
6.4.2 Опалубочные работы
Выполнение опалубочных работ должно опережать бетонные работы.
Крупнощитовая опалубка стен и колонн состоит из щитов и палубы из ламинированной фанеры толщиной 21 мм, профиля, ферм, вертикализаторов. В комплект опалубки входят подмости для бетонирования, профили для соединения щитов и винтовые стяжки.
Опалубка на строительную площадку должна поступать комплектно, пригодной к монтажу и эксплуатации. Складируется опалубка в зоне действия крана. Все элементы опалубки должны храниться в условиях, исключающих их повреждение, рассортированные по маркам и типоразмерам. Щиты опалубки укладывают в штабеля на деревянных прокладках.
Демонтаж опалубки разрешается производить по достижении бетоном 70% прочности. Демонтаж производится отдельными щитами. Щиты отрывают от бетона с помощью подкосов. Отсоединенный щит опалубки стропят и переносят краном на другое место.
Щиты опалубки необходимо каждый раз после демонтажа очищать от на-липшего бетона скребками с рабочей поверхностью из резины.
После демонтажа щитов опалубки перекрытия часть поддерживающих лесов должна остаться до окончания срока 100% набора прочности (1 стойка на 4 м2 перекрытия). Кроме того, подпираются выступающие части балконов.
6.4.3 Бетонные работы
До начала укладки бетонной смеси в опалубку должны быть выполнены следующие работы:
-
проверена правильность установки арматуры и опалубки;
-
проверена исправность всех приспособлений и инструментов (бадей для бетонной смести, вибраторов, стропов).
На строительную площадку бетонная смесь подается в миксерах с центрального бетонного узла. Кран подает бетонную смесь к месту укладки бадьями с шарнирно-роликовым затвором.
В состав работ по бетонированию входят:
-
прием и подача краном бетонной смеси в опалубку;
-
укладка и уплотнение бетонной смести вибраторами;
-
уход за бетоном (обертывание пленкой или полив).
Укладывать бетонную смесь в опалубку следует горизонтальными слоями I одинаковой толщины без разрывов, с последовательным направлением укладки бетона в одну сторону во всех слоях. Бетонная смесь заливается постепенно во избежании динамических нагрузок на опалубку.
Бетонная смесь вибрируется глубинными вибраторами. Опирание вибраторов на арматуру не допускается. Погружается вибратор на 5 - 10 см в слой. Шаг вибрирования 50 - 60 см. Поверхность перекрытия после вибрирования заглаживается правилом.
Укладка следующего слоя бетонной смеси допускается до начала схватывания предыдущего слоя. Продолжительность перерыва между укладываемыми слоями без устройства рабочего шва не должна превышать 2 часов. Верх уложенного бетона должен быть на 50 мм ниже верха щитов опалубки.
6.4.4 Каменная кладка
Каменная кладка стен и перегородок ведется по ярусо-захваткам.
Проектом предусмотрено устройство наружных каменных стен с утеплителем и внутренних - из пенобетонных блоков и кирпича.
Кладка ведется в пределах ярусо-захватки с армированием металлическими сетками и стержнями. Все операции по укладке кирпича или блоков выполняются каменщиками вручную, используя специальный инструмент и приспособления.
Кладка ведется с инвентарных блочных подмостей системы Сибирцева. Кладку ведут ярусами. После кладки первого яруса необходимо изменить уровень подмостей.
Строительный материал подается на рабочее место краном на специальную выносную монтажную площадку, установленную на этаже. Кирпич подается на поддонах по 120 шт., раствор - в ящиках по 0,25 м3.
Кладка ведется поточно-кольцевым методом, т.е. непрерывно укрупненными звеньями, которые размещаются вдоль возводимой стены, одно за другим.
На строительную площадку стеновой материал доставляется бортовыми машинами. Разгружаются в зоне действия крана. Разгрузка кирпича и блоков осуществляется с помощью захвата-футляра во избежании падения с высоты кирпича (блоков).
Раствор готовят на стройплощадке в растворомешалке, которая размещается также в зоне действия крана.
6.5 Выполнение работ в зимних условиях
При выполнении строительно-монтажных работ в зимнее время в разрабатываемом ППР необходимо учитывать следующее:
- основания котлованов должны предохраняться от промерзания;
- обратную засыпку пазух производить талым грунтом;
при бетонировании конструкций применять электропрогрев бетона непосредственно в конструкции;
- в период оттаивания и твердения раствора в каменных конструкциях, выполненных способом замораживания, следует установить постоянное наблюдение за ними, а территорию вдоль стен оградить на расстояние равное высоте стен;
- монтаж металлических конструкций производить после очистки от снега и наледи конструкций и монтажных площадок;
- специальные работы внутри здания выполняются в закрытом помещении с обеспечением необходимой плюсовой температуры;
- подъездные пути, пешеходные дорожки на территории строительной площадки необходимо регулярно очищать от снега, наледи и посыпать песком или золой;
- на объекте предусматривается работа в течение календарного периода, исключая ее сезонность.
6.6 Разработка мероприятий по технике безопасности
Основные правила техники безопасности согласно СНиП 12-04-2002
В проекте предусмотрено безопасное расстояние между краном и возводимым зданием. Масса поднимаемого груза с учетом такелажных приспособлений и тары не превышает максимальной грузоподъемности крана при данном вылете стрелы. При горизонтальном перемещении груз должен быть поднят не менее чем на 0,5 м выше встречающихся на пути препятствий. Перед началом работ тщательно осматриваем стропы и при обнаружении дефектов бракуем.
При установке элементов опалубки в несколько ярусов каждый последующий ярус следует устанавливать только после закрепления нижнего яруса.
-
Размещение на опалубке оборудования и материалов, не предусмотренных проектом производства работ, а также пребывание людей, непосредственно не участвующих в производстве работ на настиле опалубки, не допускается.
-
Разборка опалубки должна производиться (после достижения бетоном заданной прочности) с разрешения производителя работ, а особо ответственных конструкций (по перечню, установленному проектом) — с разрешения главного инженера.
-
Заготовка и обработка арматуры должны выполняться в специально предназначенных для этого и соответственно оборудованных местах.
-
При выполнении работ по натяжению арматуры необходимо: устанавливать в местах прохода работающих защитные ограждения высотой не менее 1,8 м; оборудовать устройства для натяжения арматуры сигнализацией, приводимой в действие при включении привода натяжного устройства; не допускать пребывания людей на расстоянии ближе 1 м от арматурных стержней, нагреваемых электротоком.
-
Элементы каркасов арматуры необходимо пакетировать с учетом условий их подъема, складирования и транспортирования к месту монтажа.
-
При приготовлении бетонной смеси с использованием химических добавок необходимо принять меры к предупреждению ожогов кожи и повреждения глаз работающих.
-
Бункера (бадьи) для бетонной смеси должны удовлетворять ГОСТ 21807. Перемещение загруженного или порожнего бункера разрешается только при закрытом затворе.
-
Монтаж, демонтаж и ремонт бетоноводов, а также удаление из них задержавшегося бетона (пробок) допускается только после снижения давления до атмосферного.
-
Во время прочистки (испытания, продувки) бетоноводов сжатым воздухом рабочие, не занятые непосредственно выполнением этих операций, должны быть удалены от бетоновода на расстояние не менее 10 м.
-
Ежедневно перед началом укладки бетона в опалубку необходимо проверять состояние тары, опалубки и средств подмащивания. Обнаруженные неисправности следует незамедлительно устранять.
-
Перед началом укладки бетонной смеси виброхоботом необходимо проверять исправность и надежность закрепления всех звеньев виброхобота между собой и к страховочному канату.
-
При укладке бетона из бадей или бункера расстояние между нижней кромкой бадьи или бункера и ранее уложенным бетоном или поверхностью, на которую укладывается бетон, должно быть не более 1 м, если иные расстояния не предусмотрены проектом производства работ.
-
При уплотнении бетонной смеси электровибраторами перемещать вибратор за токоведущие шланга не допускается, а при перерывах в работе и при переходе с одного места на другое электровибраторы необходимо выключать.
-
Рабочие, укладывающие бетонную смесь на поверхности, имеющей уклон более 20°, должны пользоваться предохранительными поясами.
-
Эстакады для подачи бетонной смеси автосамосвалами должны быть оборудованы отбойными брусьями. Между отбойным брусом и ограждением должны быть предусмотрены проходы шириной не менее 0,6 м. На тупиковых эстакадах должны быть установлены поперечные отбойные брусья.
-
При электропрогреве бетона монтаж и присоединение электрооборудования к питающей сети должны выполнять только электромонтеры, имеющие квалификационную группу по технике безопасности не ниже III.
-
В зоне электропрогрева необходимо применять изолированные гибкие кабели или провода в защитном шланге. Не допускается прокладывать провода непосредственно по грунту или по слою опилок, а также провода с нарушенной изоляцией.
-
При электропрогреве бетона зона электропрогрева должна иметь защитное ограждение, удовлетворяющее ГОСТ 23407, световую сигнализацию и знаки безопасности. Сигнальные лампы должны подключаться так, чтобы при их перегорании отключалась подача напряжения.
-
Зона электропрогрева бетона должна находиться под круглосуточным наблюдением электромонтеров, выполняющих монтаж электросети.
-
Пребывание людей и выполнение каких-либо работ на этих участках не разрешается, за исключением работ, выполняемых персоналом, имеющим квалификационную группу по технике безопасности не ниже II и применяющим соответствующие средства защиты.
-
Открытая (незабетонированная) арматура железобетонных конструкций, связанная с участком, находящимся под электропрогревом, подлежит заземлению (занулению).
-
После каждого перемещения электрооборудования, применяемого при прогреве бетона, на новое место следует визуально проверять состояние изоляции проводов, средств защиты ограждений и заземления.
7. Организация, управление и планирование строительного производства
7.1 Общие данные
В разделе организации строительного производства разработаны следующие разделы:
-
карточка определитель работ сетевого графика;
-
линейная диаграмма работ;
-
графики движения рабочих, с учетом оптимизации, по трудовым ресурсам;
-
стройгенплан с нанесением инженерных коммуникаций, схемой движения крана, размещением строительных элементов на участке.
Для построения сетевого графика строительно-монтажных работ составляется карточка определитель всех видов работ на стройплощадке.
7.2 Таблица работ сетевого графика
На основании подсчитанных объёмов работ (таблица 7.1), принятой организационно-технологической схемы возведения здания, принятых методов производства работ составляется таблица работ сетевого графика (карточка-определитель работ и ресурсов сетевого графика – таблица 7.2).
7.3 Организационно–технологическая схема возведения здания
Большое значение в деле сокращения сроков строительства повышение производительности труда играет важную роль. Поточный метод строительства – организационно-технологическая схема возведения объекта.
Организационно-технологическая схема показывает направление развитей частных и специализированных решений видов выполняемых работ и используемых машин и механизмов. Здание делится на 4 ярусо-захватки, по горизонтали имеет один участок.
Рисунок 7.1 Схема деления здания на ярусо-захватки
7.4 Сетевой график
Нормативная продолжительность строительства административно-бытовых помещений согласно СНиП 1.04.03-85 «Нормы продолжительности строительства» составляет Тн = 9,5 месяцев = 209 дней, подготовительный период – 1 месяц. По сетевому графику продолжительность строительства (длина критического пути) составляет Тп = 205 дней, т. е. необходимо оптимизировать график по времени, что и было выполнено на линейной диаграмме движения рабочей силы.
Чтобы определить равномерность движения рабочей силы, находят Кр – коэффициент неравномерности движения рабочих:
где Q - общая трудоемкость в чел.-дн. при возведении всего здания;
Ткр – продолжительность критического пути;
Nср = 11523 / 205 =56 чел. Кр =55 / 92=0,61 , 0,6 < 0,61 < 0,9
Следовательно, работы ведутся планомерно. Дальнейшую оптимизацию по рабочим производить не нужно.
7.5 Расчет временных зданий и сооружений
7.5.1 Расчет численности персонала строительства
Общая численность работающих определяется по формуле:
Nобщ = Nраб + Nитр + Nслуж + Nмоп + Nуч , где
Nобщ – общая численность работающих;
Nраб - максимальная численность рабочих, Nраб = 92 чел.;
Nитр - численность инженерно-технических работников,
Nитр=(92×100 / 85)×(8 / 100) ≈ 9 чел.
Nслуж - численность служащих,
Nитр=(92×100 / 85)×(5 / 100) ≈ 5 чел.
Nмоп - численность младшего обслуживающего персонала и охрана,
Nитр=(92×100 / 85)×(2 / 100) ≈ 2 чел.
Nуч - численность учеников и практикантов,
Nитр=(70×92 /100)×(5 / 100) ≈ 3 чел.
Nобщ = 92 + 9 + 5 + 2 + 3 = 111 чел.
В том числе по категориям служащих:
- общее число работающих в наиболее загруженную первую смену 70% - 64 чел;
- то же ИТР, служащие, МОП и охрана 80 % - 13 чел;
- то же число учеников и практикантов - 3 чел;
- общее число работающих в наиболее загруженную первую смену - 80чел;
- число женщин 30% - 24 чел;
- число мужчин 70% - 56 чел;
- число пользующихся буфетом 25% - 53 чел.
7.5.2 Определение состава площадей временных зданий и сооружений
Тип инвентарных зданий, устанавливаемых на строительной площадке, при продолжительности строительства объекта - 9,5 месяцев
- здания передвижные, каркасно-панельной системы «Ставрополец», металлическое, с размером в плане 6 х 2,5 м2.
Площадь здания определяется:
Птр = Пн · N , где
Пн - нормативный показатель площади, м2/чел;
N – число работающих (или их отдельных категорий) в наиболее многочисленную смену. Расчет ведем в таблице
Таблица 7.3 – Площади временных зданий и сооружений.
| № п/п | Наименование зданий и сооружений | Расчетная численность | Норма на чел., м2 | Расчет. потреб., м2 | |
| Всего | % одно-врем. испол. | ||||
| 1 | Контора производит. работ | 13 | 50 | 4 | 52 |
| 2 | Помещение для проведения различных занятий | 111 | 100 | 0,4 | 44,4 |
| 3 | Красный уголок | 111 | 100 | 0,75 | 83,3 |
| 4 | Гардеробные женские мужские | 24 56 | 100 100 | 0,95 0,95 | 22,8 53,2 |
| 5 | Сушилка для одежды и обуви | 92 | 100 | 0,2 | 18,4 |
| 6 | Буфет | 80 | 25 | 0,7 | 56 |
| 7 | Уборная | 80 | 100 | 0,1 | 8 |
| 8 | Душевая | 80 | 100 | 0,6 | 48 |
| 9 | Здание для отдыха и обогрева рабочих | 80 | 100 | 1 | 80 |
7.6 Расчет складских помещений и складских площадей
Количество материала «М», надлежащего хранению на складе, определяется по формуле:
Q – количество материала, необходимое для строительства;
– коэффициент неравномерности поступления материалов, полуфабрикатов на склады, = 1,1;
t – норма запаса материала в днях;
k – коэффициент неравномерности поступления;
Т – продолжительность поступления материала.
Расчетная площадь склада Sр, занимаемая материалом без учетов проходов определяется:
Н – норма материала, укладываемого на 1м2 без учета проходов.
Общая площадь склада с учетом проходов:
– коэффициент, учитывающий проходы на складе.
Расчеты делаем в табличной форме.
Окончательный вывод о площади складов делаем после анализа их повторного использования на всем периоде строительства по сетевому графику.
РАСЧЕТ
приобъектных складских помещений для осуществления строительства
Таблица 7.5
| № п/п | Наименование полуфабрикатов, деталей, конструкций и материалов | Ед. изм. | Общее кол-во материала, Q· | Среднесуточный расход, Q·/T | Запасы | Коэф. неравномерн. потребления, k | Кол-во материала для хранения, М | Норма материала на 1 м2 | Расчет площади склада, Sp | Коэфф. использ., | Склад | |||||
| На сколько дней, t | Кол-во запаса | Общая площадь, М2,м | Высота упаковки | Способ хранения | Вид хранения | |||||||||||
| 1 | 2 | 3 | 4 | 5 | 6 | 7 | 8 | 9 | 10 | 11 | 12 | 13 | 14 | 15 | 16 | |
| А. Полуфабрикаты, детали, конструкции | ||||||||||||||||
| 1 | Арматурные каркасы | Т | 1000 | 1,5 | 10 | 4,5 | 1,25 | 5,7 | 0,25 | 22,9 | 0,6 | 38 | 1,2 | штаб. | откр. | |
| 4 | Блоки легкобетонные | м3 | 700 | - | на 1эт | 18 | - | 18 | 1,5 | 12 | 0,5 | 75 | - | штаб. | откр. | |
| 6 | Щиты дерев. опалубки | м2 | 805 | 23 | 3 | 69 | 1,25 | 86 | 1,5 | 57 | 0,5 | 60 | - | штаб. | откр. | |
| Б. Материалы | ||||||||||||||||
| 1 | Битум нефтяной | т | 1825 | 28 | 3 | 84 | 1,25 | 105 | 1,5 | 70 | 0,7 | 4,7 | 1,75 | штаб. | Откр. | |
| 2 | Кирпич строит. Красный | т. шт | 3700 | 3 | 3 | 9 | 1,25 | 11 | 0,65 | 17 | 0,7 | 283 | 1,5 | штаб. | Откр. | |
| 3 | Краски | т | 1 | 0,03 | 3 | 0,09 | 1,25 | 0,12 | 1,0 | 0,12 | 0,4 | 0,9 | 2,0 | бочки | закр. | |
| 4 | Олифа | т | 1 | 0,05 | 3 | 0,15 | 1,25 | 0,19 | 0,7 | 0,3 | 0,4 | 0,7 | 1,5 | бочки | закр. | |
| 6 | Стекло оконное | м2 | 206 | 44 | 3 | 132 | 1,25 | 165 | 100 | 1,65 | 0,5 | 12,9 | 0,7 | ящик | закр. | |
| 10 | Рубероид | м2 | 330 | 33 | 3 | 99 | 1,25 | 1,24 | 200 | 0,62 | 0,5 | 29 | 1,5 | рулон | Навес | |
| 12 | Плиты пенополистирольные | м3 | 100 | 36 | 3 | 108 | 1,25 | 135 | 10 | 13,5 | 0,4 | 229 | 1,5 | штаб. | закр. | |
| 13 | Инструменты и инвентарь | чел. | 92 | - | - | - | - | - | 0,07 | 6,4 | 0,5 | 9,6 | - | - | закр. | |
| 14 | Открытые площадки приема р-ра и бетона | - | - | - | - | - | - | - | - | - | - | 200 | - | - | откр. | |
| Итого по расчету : 1. Закрытых складов - 253,1 м2; 2. Навесы -29 м2; 3. Открытых складов - 660,7 м2; 4. Разгрузочных площадок - 200 м2. | ||||||||||||||||
Принимается для внесения в стройгенплан с учетом повторного использования площадей:
1. Закрытых складов - 253,1 м2
2. Навесов - 29 м2
3. Открытых площадок - 660,7 м2
7.7 Организация временного водоснабжения строительной площадки
На строительной площадке вода расходуется на производственные нужды, хозяйственно-питьевые, противопожарные.
Qобщ = Qпр + Qпож + Qх-n
Определяем
kну - коэффициент, учитывающий утечку воды, kну = 1,2 ;
kч - коэффициент часовой неравномерности потребления воды, kч = 1,5;
qi – удельный расход воды на продовольственные нужды по каждому i – тому потребителю, л/см;
t – число часов работы в смену, t = 8 часов.
Потребители:
-
работа экскаватора – 15 · 5 = 75 л;
-
заправка экскаватора – 120 л;
-
поливка бетона и опалубки в смену 20 · 200 = 4000 л;
-
Итого: 4195 л.
Qпр=(1,2×1,5×4195) / (8×3600 ) = 0,26 л/сек;
Расход воды на хозяйственно-питьевые нужды:
Np – число работающих в наиболее загруженную смену, Np = 80 чел;
Qxn – удельный расход воды на 1-го работающего в смену;
Qg – расход воды на прием душа одним работающим в смену, Qg = 30 л/см;
Ng – число пользующихся душем, Ng = 80 чел;
Tg – продолжительность использования душевой установки, Tg = 0,75 ч.
Qх-п= (1,5×80×40) / (8×3600)+(80×40) / (075×3600) = 1,35 л/с;
Расход воды на противопожарные нужды принимаем с учетом ширины здания, пожарной опасности при объеме здания до 20 тыс. м3,равным
Qпож = 15л/с.
Тогда
Q общ = 0,26 + 1,35 +15=16,61 л/с
Переводим л/с в м3/с ; 16,61 л/с = 0,017 м3/с .
Определяем диаметр временного водопровода:
D = 2×√(0,017 / ( 3,14×2 )) =0,104 м = 104 мм.
Принимаем стальную водогазопроводную трубу Ø 125 мм по ГОСТ 3262-75.
7.8 Расчет временного электроснабжения строительной площадки
Сети, включая установки и устройства электроснабжения постоянные и временные предназначены для энергетического обеспечения силовых и технологических потребителей, а также для устройства наружного и временного освещения объекта, подсобных и вспомогательных зданий, мест производства СМП и строительной площадки.
Проектирование, размещение и сооружение сетей электроснабжения производится в соответствии с «Правилами устройства электроустановок», главой СНиП 3.05.06-85, строительными нормами и ГОСТами.
Параметры временных сетей или их отдельных элементов устанавливаются в следующей последовательности:
-
расчет электрических нагрузок,
-
выбор источника электроэнергии,
-
расположение на схеме электрических устройств и установок, составление рабочей схемы электроснабжения.
Для более точных расчетов потребности в электроэнергии определяют по установленной мощности потребителей с учетом коэффициента спроса и распределении электронагрузок во времени.
Расчетный показатель требуемой мощности
- коэффициент, учитывающий потери мощности в сети, = 1,1;
Рм – сумма номинальных мощностей всех установленных на стройплощадке моторов, кВт;
Рт – сумма потребной мощности для технологических нужд, кВт.
Так как основной период строительства приходится на теплое время года расход электроэнергии на технологические нужды не учитывается, т. е. Рт = 0.
Ров – освещение внутреннее;
Роа – освещение наружное;
Рсв – сварочный трансформатор;
cos 1 = 0,7; cos 2 = 0,8 - коэффициенты мощности;
k1 = 0,6; k2 = 0,7; k3 = 0,8; k4 = 0,9; k5 = 0,7 - коэффициенты, учитывающие неоднородность потребления электроэнергии.
Чтобы установить мощность силовой установки для производственных нужд, составляем график мощности установки, таблица
По данным графика в дальнейшем расчете будем учитывать Рм = 424,8 кВт.
Мощность сети наружного освещения, мощность сети для освещения территории производства работ, открытых складов, внутрипостроечных дорог и охранного освещения сводим в таблицу
Суммарная мощность сварочного трансформатора при использовании трансформатора ТД-300 (2 шт.):
Рсв = 20 · 2 = 40 кВт.
Расчетный показатель требуемой мощности равен:
Ртр=1,1×(0,6×384,8 / 0,7 + 0,8×8,1 + 0,9×3,7 + 0,7×40) = 404,4 кВт
По требуемой мощности подбираю силовой трансформатор
СКТП – 560 - трехфазный, масляный.
Таблица 7.6. Временное электроснабжение строительной площадки
| № п/п | Наименование механизмов | Кол. шт. | Мощность двигателя, кВт | Общая мощность, кВт | Сентябрь, январь | Октябрь, февраль | Ноябрь, март | Декабрь апрель |
| 1 | 2 | 3 | 4 | 5 | 6 | 7 | 8 | 9 |
| 1 | Кран КБ 504 | 1 | 182 | 182 | 182 | 182 | 182 | 182 |
| 2 | Бетоносмеситель 500л. | 1 | 28 | 28 | --- | 28 | 28 | 28 |
| 3 | Штукатурная станция ”Салют - 2” | 1 | 10 | 10 | --- | --- | 10 | --- |
| 4 | Окрасочный агрегат СО – 74 А | 4 | 4 | 16 | --- | --- | 16 | 8 |
| 5 | Паркетношлифовальная машина СО – 155 | 4 | 2,2 | 8,8 | --- | --- | 8,8 | 8,8 |
| 6 | Поверхностный вибратор ИВ – 91 | 2 | 0,6 | 1,2 | 2,4 | 2,4 | 1,2 | 1,2 |
| 7 | Глубинный вибратор И – 18 | 2 | 0,8 | 1,6 | 3,2 | 3,2 | 1,2 | 1,2 |
| 8 | Машина для наклейки рубероида СО – 121 | 1 | 1,1 | 1,1 | --- | 1,1 | --- | --- |
| 9 | Электрокалорифер | 6 | 15,6 | 93,6 | 93,6 | --- | 93,6 | 93,6 |
| 10 | Сварочный аппарат перам. тока ТД – 300 | 2 | 20 | 40 | 80 | 80 | 80 | 40 |
| 11 | Понизительный трансформатор | 4 | 1 | 4 | --- | 4 | 4 | 4 |
| Итого: | 267,7 | 296,7 | 424,8 | 366,8 |
Таблица 7.7. Потребление электроэнергии
| № п/п | Потребление электроэнергии | Ед. измерен. | Кол-во | Норма освещения, кВт | Мощность, кВт |
| 1 | 2 | 3 | 4 | 5 | 6 |
|
Внутреннее освещение | |||||
| 1 | Конторские и обществен- ные помещения | м2 | 216 | 0,015 | 3,24 |
| 2 | Санитарно бытовые помещения | м2 | 310 | 0,01 | 3,1 |
| 3 | Закрытые склады | м2 | 870 | 0,002 | 1,74 |
|
Наружное освещение | Итого: Ров | 8,1 | |||
| 1 | Открытые склады | М2 | 477,6 | 0,001 | 0,48 |
| 2 | Главные проезды и проходы | Км | 0,5 | 5 | 2,5 |
| 3 | Второстепенные проезды и проходы | Км | 0,04 | 2,5 | 0,1 |
| 4 | Охранное освещение | Км | 0,4 | 1,5 | 0,6 |
| Итого: Рон | 3,7 | ||||
Применяются следующие пневматические машины:
- Отбойный молоток Мо – 9П, давление 0,5 МПа, расход воздуха 1,25 -1,5 м3/мин. – 2 шт.
- Ручные пневматические краскораспылители СО – 6А,
давление 0,1 МПа, расход воздуха 0,04 м3/мин. – 2шт.
принимаем передвижной компрессор С – 39А.
- производительность – 15 04 м3/мин.
- рабочее давление – 0,7 МПа.
- электродвигатель: 380 / 220 ; 2,8 кВт.
Диаметр воздуховода определяем приближенно по формуле:
d = 3.18×√Qcв, Qсв – расход воздуха (м3/мин);
d = 3.18×√(1.5×2) = 5.51 см.
Принимаем воздуховод с внутренним диаметром 80 мм.
7.10 Методы производства основных видов строительно-монтажных и специальных работ
7.10.1 Работы подготовительного периода
До начала производства строительно-монтажных и специальных работ должны быть выполнены следующие подготовительные работы:
снос существующих малоценных строений в границах строительной площадки;
перенос индивидуальных металлических гаражей в границах строительной площадки, огражденной защитным ограждением;
перекладка или вынос существующих подземных и надземных инженерных сетей, оказывающих влияние на выполнение строительно – монтажных работ;
выкорчевка малоценных пород деревьев, мешающих организации строительной площадки;
расчистка отведенного участка строительной площадки от строительного и бытового мусора;
создание и закрепление геодезической основы на строительной площадке путем забивки металлических штырей с закрашенной головкой;
обеспечение отвода со строительной площадки поверхностных (атмосферных) вод в сторону прилегающего благоустройства;
опережающее строительство части проектируемой дороги в твердом покрытии для использования ее на период строительства и обеспечения пожарной безопасности;
прокладка временной подъездной дороги из сборных железобетонных дорожных плит с радиусами закруглений не менее 12.00 метров;
обеспечение строительства водой и электроэнергией;
установка инвентарных санитарно-бытовых помещений для работающих с обеспечением норм санитарной и пожарной безопасности;
обеспечение выполнения комплекса мер пожарной безопасности в соответствии требований ППБ 01-93*;
установка в целях пожарной безопасности железобетонного ограждения (противопожарная стена) высотой не менее 3.00 метра;
ограждение территории строительной площадки защитно-охранным ограждением высотой не менее 2.00 метра.
7.10.2 Работы основного периода строительства
Возведение подземной и надземной части жилого дома выполняется последовательно в два этапа, начиная с первого.
Разработка грунта в котлованах для фундаментов стен здания, в траншеях для выноса и перекладки подземных инженерных сетей производится экскаватором с емкостью ковша 0.25 - 0.65 куб. м. с уточнением марки в проекте производства земляных работ. Грунт в котлованах и траншеях выбирается, не доходя до проектной отметки на 20 см. Доработка выполняется непосредственно перед началом работ по устройству фундаментов и монтажу элементов сети. Лишний грунт и грунт для обратной засыпки пазух котлованов и траншей вывозится автосамосвалами в отведенное заказчиком место.
Выполнение комплекса работ по подземной части жилого дома должно выполняться в соответствии рабочих чертежей проекта, в кратчайшие сроки, не допускающее замачивание грунтового основания котлована. Для предотвращения попадания поверхностных вод в котлован по его периметру должны быть предусмотрены земляные валики или водоотводные канавы.
При появлении воды в отдельных котлованах (в соответст-вии коэффициента фильтрации и площади фильтрации крайне незначительных объемов) выполнить ее откачку центробежными насосами типа «Гном» в существующие сети дождевой канализации.
Работы по устройству монолитных конструкций подземной части начинают с фундаментной плиты, с работ по установке опалубки и арматурных каркасов. Монолитные конструкции жилого дома выполняются с применением инвентарной переставной щитовой опалубки и инвентарных металлических телескопических стоек.
Бетонирование конструкций выполняется при помощи поворотных бадей емкостью 0.8 – 1.0 куб. м., подаваемых краном после сдачи скрытых работ по акту или подачей бетона в конструкции автобетоноукладчиком с доставкой бетона автобетоносмесителями. Укладка монолитного бетона выполняется горизонтальными слоями одинаковой толщины без разрывов, с последовательным направлением укладки в одну сторону и тщательным уплотнением вибратором каждого укладываемого слоя. Устройство рабочих швов при бетонировании монолитных конструкций подземной части жилого дома определяется в составе технологической карты на выполнение бетонных работ и требований СНиП 3.03.01-87.
Снятие опалубки производится после достижения бетоном прочности, обеспечивающей сохранность поверхности углов конструкций.
Обратная засыпка пазух фундаментов выполняется после полного окончания работ по подземной части согласно указаний рабочих чертежей проекта.
На выполняемые работы необходимо оформить акты на скрытые работы.
Возведение подземной части жилого дома рекомендуется выполнять с использованием передвижного стрелового крана грузоподъемностью 16.0 – 25.0 тн с организацией его работы в пределах строительной площадки, огражденной защитным ограждением.
Возведение надземной части жилого дома ( по этапам) выполняется в строгом соответствии чертежей проекта, с использованием комплекта строительных машин и механизмов согласно виду и объему выполняемых работ.
Строительно-монтажные работы по возведению надземной части пристройки производятся монтажным краном согласно стройгенпланам с соблюдением следующих требований:
строительно-монтажные работы выполняются поэтажно, по принципу “на себя”, при котором ранее выполняются наиболее удаленные от крана работы, затем последовательно все остальные, с тем, чтобы не допускать толчком и ударов по ранее выполненным конструкциям;
последовательность работ должна обеспечивать устойчивость и геометрическую неизменяемость выполненных частей здания на всех стадиях работ;
подача элементов в зону работ краном должна обеспечивать их положение соответствующее проектному; освобождать конструкции от строповки можно только после их закрепления;
стройство монолитных конструкций здания выполняются с применением инвентарной переставной щитовой опалубки, инвентарных телескопических стоек, подкосов, а также инвентарных блочных подмостей;
устройство рабочих швов при бетонировании монолитных конструкций надземной части жилого дома определяется в составе технологической карты на выполнение бетонных работ и требований СНиП 3.03.01-87;
кирпичная и каменная кладка стен и перегородок ведется с внутренних инвентарных подмостей и навесных консольных подмостей с разбивкой работ на захватки и делянки;
к каменной кладке приступают после полного выполнения работ на захватке и набора бетоном не менее 70% проектной прочности;
подачу материалов осуществлять монтажным краном: кирпич и блоки - на поддонах с исключением их падения на высоте, раствор - в ящиках, бетон в бункерах;
подача материалов краном для выполнения работ под перекрытиями возводимого здания выполняется на консольные инвентарные площадки, устанавливаемые в горизонте выполняемых работ.
Перемещение материалов и конструкций в пределах этажа блок-секции от консольных выносных площадок предусматривается ручными тележками на резиновом ходу при усредненном расстоянии до 25.00 метров.
Сверление отверстий в конструкциях для установки распорных анкеров здания должно выполняться ручными электрическими перфораторами.
Состояние подмостей проверяется каждый день инженерно-техническими работниками. При кладке наружных стен выше 7.0 м по их периметру устанавливают защитные козырьки шириной не менее 1.5 м. Над входом в здание устанавливается навес с вылетом 2.0 метра.
К специальным работам, выполняемым внутри здания, относят сантехнические, электротехнические, вентиляционные и прочие, которые выполняются специализированными монтажными организациями, имеющими соответствующие лицензии и опыт в выполнении подобного вида работ, в соответствии с согласованными календарными графиками производства работ.
Отделочные работы ведутся в соответствии со СНиП 3.04.01-87 (Изоляционные и отделочные покрытия). Отделочные работы, имеющие большую трудоемкость, необходимо выполнять готовыми отделочными составами и индустриальными отделочными материалами, поставляемыми централизовано с максимальным использованием средств механизации. При выполнении отдельных этапов и операций в отделочных работах должны выдерживаться технологические перерывы, а также соблюдаться указания заводов изготовителей материалов и конструкций, обеспечивающие качество выполняемых работ. Подъем материалов и конструкций на этажи рекомендуется производить грузовыми подъемниками типа ТП - 17.
Отделка фасада жилого дома выполняется с инвентарных консольных люлек, устанавливаемых по периметру строящегося здания. На установку и эксплуатацию инвентарных консольных люлек генподрядчик обязан разработать соответствующий проект.
Расстановку отделочных машин и механизмов производить в соответствии с проектом производства отделочных работ.
Благоустройство и установка малых форм выполняется после полного окончания всех предшествующих работ специализированной организацией, имеющей соответствующую лицензию на право выполнения подобного вида работ.
7.10.3 Совмещение строительных, монтажных и специальных строительных работ
Одновременное выполнение на строительной площадке монтажных, строительных и специальных строительных работ (при обеспечении фронтов работ) допускается в соответствии с календарным графиком производства работ, разрабатываемым генподрядной организацией и согласованным со всеми участниками строительства. При этом на участке или захватке, где ведутся строительно - монтажные работы, не допускается выполнение других работ и нахождение людей под монтируемыми элементами конструкций, опалубки и оборудованием до установки их в проектное положение и закрепления. Ответственность за соблюдение графика совмещенных работ лежит на генподрядчике.
8 Экономическая часть
В данном разделе выпускной квалификационной работе разрабатывается сметная документация на отдельно стоящее здание по данным укрупненных показателей нормативной базы 2001-2005 годов (составляются объектная смета и входящие в ее состав локальные расчеты, а так же сводный сметный расчет).
В этой части выпускной квалификационной работы составляются следующие сметные документы: локальный сметный расчет строительно-монтажных работ (на основе Приложения № 1 МУ), локальные сметные расчеты на специальные (санитарно-технические и электротехнические) работы; объектная смета; сводный сметный расчет.
Объектная смета – это документ, который определяет сметную стоимость отдельно стоящего здания, включая строительно-монтажные работы и внутренние инженерные сети, и объединяет в своем составе данные соответствующих локальных расчетов.
Сводный сметный расчет стоимости строительства предприятий, зданий и сооружений или их очередей является документом, определяющим сметный лимит средств, необходимых для полного завершения строительства всех объектов, предусмотренных проектом. Утвержденный сводный сметный расчет стоимости строительства служит основанием для определения лимита капитальных вложений и открытия финансирования строительства.
Сводный сметный расчет составляется в базисно-текущем или базисно-прогнозном уровне цен по форме на основе объектных смет и расчетов, а также сметных расчетов на отдельные виды работ и затрат.
Локальный сметный расчет на общестроительные работы выполнен по укрупненным показателям в приложении 1 МУ в ценах по состоянию на 2 кв. 2008 г. по формуле:
В ценах 2 квартала 2008 г. стоимость строительства составила 367939,9 тыс.руб., получается что 1 м2 дома стоит 60138,6 рублей.
9 Стандартизация и контроль качества
Качество бетонных и железобетонных конструкций определяется как качеством используемых материалов, так и тщательным соблюдением регламентирующих положений технологии на всех стадиях комплексного процесса.
Для этого необходим контроль и его осуществляют на следующих стадиях: при приёмке и хранении всех исходных материалов; при изготовлении и монтаже арматурных элементов и конструкций; при изготовлении и установки элементов опалубки; при подготовки основания и опалубки к укладке бетонной смеси; при приготовлении и транспортировании бетонной смеси; при уходе за бетоном в процессе его твердения.
Все исходные материалы должны отвечать требованиям ГОСТ.
В процессе армирования конструкций контроль осуществляется при приёмке стали; при складировании и транспортировке; при изготовлении арматурных элементов и конструкций. После установки и соединения всех арматурных элементов в блоке бетонирования проводят окончательную проверку правильности размеров и положения арматуры с учётом допускаемых отклонений.
В процессе опалубливания контролируют правильность установки опалубки, креплений, а также плотность стыков в щитах и сопряжениях, взаимное положение опалубочных форм и арматуры (для получения заданной толщины арматурного слоя). Правильность положения опалубки в пространстве проверяют привязкой к разбивочным осям и нивелировкой, а размеры – обычными измерениями.
Перед укладкой бетонной смеси контролируют частоту рабочей поверхности опалубки и качество её смазки.
При транспортировании бетонной смеси следят за тем, чтобы она не начала схватываться, не распадалась на составляющие, не теряла подвижности из-за потерь воды, цемента или схватывания.
На месте укладки следует обращать внимание на высоту сбрасывания смеси, продолжительность вибрирования и продолжительность уплотнения, не допуская расслоения смеси и образования раковин, пустот.
Процесс виброуплотнения контролируют визуально, по степени осадки смеси, прекращению выхода из неё пузырьков воздуха и появлению цементного молока.
На все операции по контролю качества выполнения технологических процессов и качества материалов составляют акты проверок (испытаний), которые предъявляют комиссии, принимающей объект. В ходе производства работ оформляют актами приёмку основания, приёмку блока перед укладкой бетонной смеси и заполняют журналы работ контроля температур по установленной форме.
10 Безопасность жизнедеятельности на производстве
10.1 Обеспечение безопасных условий труда при выполнении кровельных работ
При выполнении кровельных работ по устройству металлической кровли необходимо предусматривать мероприятия по предупреждению воздействия на работников следующих опасных и вредных производственных факторов, связанных с характером работы:
расположение рабочего места вблизи перепада по высоте 1,3 м и более;
повышенная загазованность воздуха рабочей зоны;
повышенная или пониженная температура поверхностей оборудования, материалов и воздуха рабочей зоны;
острые кромки, заусенцы и шероховатость на поверхностях оборудования, материалов;
повышенное напряжение в электрической цепи, замыкание которой может пройти через тело человека.
При наличии опасных и вредных производственных факторов, указанных в предыдущем пункте, безопасность кровельных работ должна быть обеспечена на основе выполнения содержащихся в организационно-технологической документации (ПОС, ППР и др.) следующих решений по охране труда:
организация рабочих мест на высоте, пути прохода работников на рабочие места, особые меры безопасности при работе на крыше с уклоном;
меры безопасности при приготовлении и транспортировании горячих мастик и материалов;
методы и средства для подъема на кровлю материалов и инструмента, порядок их складирования, последовательность выполнения работ.
Производство кровельных работ газопламенным способом следует осуществлять по наряду-допуску, предусматривающему меры безопасности.
При применении в конструкции крыш горючих и трудногорючих утеплителей наклейка битумных рулонных материалов газопламенным способом разрешается только по устроенной на них цементно-песчаной или асфальтовой стяжке.
Места производства кровельных работ, выполняемых газопламенным способом, должны быть обеспечены не менее чем двумя эвакуационными выходами (лестницами), а также первичными средствами пожаротушения в соответствии с ППБ 01.
Подниматься на кровлю и спускаться с нее следует только по лестничным маршам и оборудованным для подъема на крышу лестницами. Использовать в этих целях пожарные лестницы запрещается.
При производстве работ на плоских крышах, не имеющих постоянного ограждения, рабочие места необходимо ограждать в соответствии с требованиями СНиП 12-03.
Применяемые для подачи материалов при устройстве кровель краны малой грузоподъемности должны устанавливаться и эксплуатироваться в соответствии с инструкцией завода-изготовителя. Подъем груза следует осуществлять в контейнерах или таре.
Вблизи здания в местах подъема груза и выполнения кровельных работ необходимо обозначить опасные зоны, границы которых определяются согласно СНиП 12-03.
Размещать на крыше материалы допускается только в местах, предусмотренных ППР, с применением мер против их падения, в том числе от воздействия ветра.
Запас материала не должен превышать сменной потребности.
Во время перерывов в работе технологические приспособления, материалы и инструмент должны быть закреплены или убраны с крыши.
Не допускается выполнение кровельных работ во время гололеда, тумана, исключающего видимость в пределах фронта работ, грозы и ветра со скоростью 15 м/с и более.
Элементы и детали кровель, в том числе компенсаторы в швах, защитные фартуки, звенья водосточных труб, сливы, свесы и т.п. следует подавать на рабочие места в заготовленном виде.
Заготовка указанных элементов и деталей непосредственно на крыше не допускается.
Выполнение кровельных работ по установке (подвеске) готовых водосточных желобов, воронок, труб, а также колпаков и зонтов для дымовых и вентиляционных труб и покрытию парапетов, сандриков, отделке свесов следует осуществлять с применением подмостей.
Запрещается использование для указанных работ приставных лестниц.
При выполнении кровельных работ газопламенным способом необходимо выполнять следующие требования безопасности:
баллоны должны быть установлены вертикально и закреплены в специальных стойках;
тележки-стойки с газовыми баллонами разрешается устанавливать на поверхностях крыши, имеющие уклон до 25%.
во время работы расстояние от горелок (по горизонтали) до групп баллонов с газом должно быть не менее 10 м, до газопроводов и резинотканевых рукавов - 3 м, до отдельных баллонов - 5 м.
Запрещается держать в непосредственной близости от места производства работ с применением горелок легковоспламеняющиеся и огнеопасные материалы.
11 Противопожарные мероприятия
До начала основных работ на строительной площадке предусматривается установка проектируемого пожарного гидранта на перекладываемой сети водопровода.
До начала строительства пристройки необходимо уточнить и обозначить места нахождения пожарных гидрантов для обеспечения требуемого радиуса их обслуживания до 100 метров и возможности подъезда к ним пожарных машин, а также установить пожарные щиты из расчета один на 1000 кв. м. участка. В противном случае в составе проекта производства работ должны быть предусмотрены соответствующие мероприятия.
Подъезд пожарных машин к возводимому жилому дому первого этапа строительства предусматривается со стороны ул. Дмитриевская дамба по временной и проектируемой дороге в твердом покрытии на территории строительной площадки и выполняемой в подготовительный период.
Для обеспечения пожарной безопасности на строительной площадке инвентарные санитарно – бытовые помещения, расположенные ближе 15 метров от проектируемого жилого дома, отделяются противопожарной стенкой из железобетонных элементов высотой не менее 3 метров. Во всех санитарно-бытовых и складских помещениях должны находиться первичные средства пожаротушения (огнетушители).
12 Охрана окружающей среды
При организации строительного производства необходимо осуществлять мероприятия и работы по охране окружающей среды, которые включают рекультивацию земель, предотвращение потерь природных ресурсов, предотвращение или очистку вредных выбросов в почву, водоемы, атмосферу.
На территории строящегося объекта не допускается непредусмотренное проектом удаление древесно-кустарниковой растительности и засыпка грунтом корневых шеек и стволов растущих деревьев и кустарников.
Стройгенплан разработан с учетом максимального сохранения существующих зеленых насаждений. Сохраняемые зеленые насаждения ограждаются в радиусе 1-3 м. Стволы деревьев, расположенных на обочинах подъездных путей, защищаются досками от возможных повреждений.
Разработка грунта при прокладке инженерных сетей вблизи зеленых насаждений производится экскаватором на пневмоколесном ходу с емкостью ковша не более 0,25 м3 или вручную. Земляные работы выполняются с особой осторожностью не ближе 2-х метров от деревьев (при кроне до 5 м) с целью сохранения корневой системы.
Выпуск воды со строительных площадок непосредственно на склоны без надлежащей защиты от размыва не допускается. При выполнении планировочных работ почвенный слой, пригодный для последующего использования, должен предварительно сниматься и складироваться в специально отведенных местах.
Не допускается при уборке отходов, мусора сбрасывать их с этажей зданий и сооружений без применения закрытых лотков и бункеров накопителей.
В процессе выполнения буровых работ при достижении водоносных горизонтов необходимо принять меры по предотвращению неорганизованного излива подземных вод. Производственные и бытовые стоки, образующиеся на стройплощадке должны очищаться и обезвреживаться.
13 Защита населения и территории в чрезвычайных ситуациях
Защита населения от современных средств поражения — главная задача гражданской обороны. Она представляет собой комплекс мероприятий, имеющих цель не допустить поражения людей ядерным, химическим и бактериологическим оружием или максимально ослабить степень их воздействия. Эффективная защита населения от ОМП может быть достигнута наилучшим использованием всех средств и способов.
Основными способами зашиты населения от современных средств нападения противника являются укрытие населения в защитных сооружениях (инженерные мероприятия по защите); рассредоточение и эвакуация населения из крупных городов в загородную зону; обеспечение всего населения средствами индивидуальной и медицинской защиты и их использование.
Укрытие в защитных сооружениях обеспечивает различную степень защиты от поражающих факторов ядерного, химического и биологического оружия, а также от вторичных поражающих факторов при ядерных взрывах и применении обычных средств поражения.
По назначению и защитным свойствам защитные сооружения подразделяют на убежища, противорадиационные укрытия (ПРУ) и простейшие укрытия.
При угрозе нападения все взятые на учет сооружения по возможности освобождают от различных материалов и подготавливают для укрытия населения. Приведение защитных сооружений в готовность возлагается на организации, эксплуатирующие их в мирное время.
13.1 Размещение убежищ в подвальных помещениях
Убежища. Это сооружения, обеспечивающие надежную защиту укрываемых в них людей от воздействия всех поражающих факторов ядерного взрыва, отравляющих веществ и бактериальных средств, высоких температур, от отравления продуктами горения и промышленными ядами (СДЯВ). Убежища классифицируют по защитным свойствам, вместимости, месту расположения, обеспечению фильтровентиляционным оборудованием и временем возведения.
По защитным свойствам (от воздействия ударной волны) убежища делят на классы. По вместимости (количеству укрываемых) убежища подразделяют на малые (до 150 чел.), средние (от 150 до 450 чел.), большие (более 450 чел.). По месту расположения убежища могут быть встроенные и отдельно стоящие. К встроенным относятся убежища, расположенные в подвальных помещениях зданий, а к отдельно стоящим — расположенные вне зданий. По обеспечению фильтровентиляционным оборудованием убежища могут быть с оборудованием промышленного изготовления или с упрощенным, изготовленным из подручных материалов. По времени возведения убежища бывают построенными заблаговременно, в мирное время, а также быстровозводимыми, строящимися при угрозе нападения противника.
Требования к убежищам. Убежища должны строиться на участках местности, не подвергающихся затоплению; иметь входы и выходы с той же степенью защиты, что и основные помещения, а на случаи завала их — аварийные выходы; иметь свободные подходы, где не должно быть сгораемых или сильно дымящих материалов. Основные помещения должны быть высотой не менее 2,2 м и с уровнем пола выше уровня грунтовых вод не менее чем на 20 см. Фильтровентиляционное и вентиляционное оборудование убежища должно очищать воздух от примесей и обеспечивать подачу чистого воздуха в пределах установленных норм. В убежищах, предназначенных для укрытия населения, воздух должен содержать углекислого газа не более 1%, иметь относительную влажность не более 70% и температуру не выше 23 °С.
Убежища должны обеспечивать непрерывное пребывание людей в течение не менее двух суток. При этом защита укрываемых от действия ударной волны обеспечивается прочными ограждающими конструкциями и установкой противовзрывных устройств на входах и отверстиях.
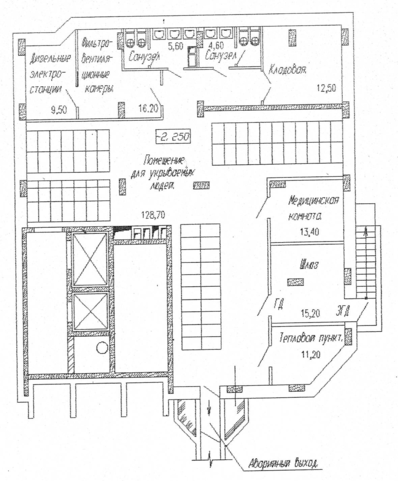
Убежище состоит из основных и вспомогательных помещений (рис. 13.1).
Рисунок 13.1. Основные и вспомогательные помещения убежищ
К основным относятся помещения для укрываемых людей 4, тамбуры, шлюзы 2, а к вспомогательным — фильтровентиляционные камеры 6, санитарные узлы 3, защищенные дизельные электростанции, входы 1 (тамбуры и предтамбуры) и выходы 5, медицинская комната 7, кладовая для продуктов 8. Помещения для размещения укрываемых рассчитываются на определенное количество людей: на одного человека предусматривается не менее 0,5 м2 площади пола и 1,5 м3 внутреннего объема. Высоту помещений убежищ принимают в соответствии с требованиями использования их в мирное время, но не менее 2,2 м от отметки пола до низа выступающих конструкций перекрытия (покрытия).
Большое по площади помещение разбивается на отсеки вместимостью 50—75 человек. В помещениях (отсеках) оборудуются двух или трехъярусные нары—скамейки для сидения и полки для лежания. Расстояние от верхнего яруса до перекрытия или выступающих конструкций должно быть не менее 0,75 м.
Помещения убежища, где располагаются укрываемые люди, хорошо герметизируются для того, чтобы в них не проникал зараженный радиоактивными, отравляющими веществами и бактериальный средствами воздух. Этого можно достигнуть повышенной плотностью стен и перекрытий, заделкой в них всевозможных трещин отверстий и соответствующим оборудованием входов.
Каждое убежище имеет не менее двух входов, расположенных в противоположных сторонах с учетом направления движения основных потоков укрываемых, а встроенное убежище должно иметь и аварийный выход.
Входы в убежища оборудуются в виде двух шлюзовых камер (тамбуров), отделенных от основного помещения и перегороженных между собой герметическими дверями. Для убежищ вместимостью от 300 до 600 человек, устраивается однокамерный, а более 600 человек — двухкамерный тамбур-шлюз. Снаружи входа устраивается прочная защитно-герметическая дверь, способная выдерживать давление ударной волны ядерного взрыва.
В убежищах устраивают аварийный выход. Он представляет собой подземную галерею сечением 90х130 см, выходящей на незаваливаемую территорию через вертикальную шахту, заканчивающуюся оголовком. Вход в галерею с наружной и внутренней сторон стены закрывают защитно-герметическими ставнями. Оголовок аварийного выхода должен быть удален от окружающих зданий на расстояние, составляющее не менее половины высоты зданий плюс 3 м. В каждой стене оголовка делают проем размером 0,6х0,8 м, оборудованный жалюзийной решеткой, открывающейся внутрь.
В фильтровентиляционной камере размещается фильтровентиляционный агрегат ФВА-49 (ФВК-1, ФВК-2), обеспечивающий вентиляцию помещений убежища и очистку наружного воздуха от радиоактивных, отравляющих веществ и бактериальных средств. На рис. 13.2 показана принципиальная схема системы фильтровентиляции убежища малой вместимости: оголовок аварийного выхода 7; оголовок воздухозабора с клапаном-отсекателем 2; противопыльные фильтры 3; фильтры-поглотители 4; воздухоразводящаяя сеть 5;оголовок вытяжной системы 6, клапан избыточного давления 7;электроручные вентиляторы 8; герметический клапан 9; защитно-герметические стенки 10.
Рисунок 13.2. Принципиальная схема системы фильтровентиляции
Система фильтровентиляции может работать в двух режимах: чистой вентиляции и фильтровентиляции. В первом режиме воздух очищается от грубодисперсной радиоактивной пыли
(в противопыльном фильтре), во втором — от остальных радиоактивных веществ, а также от отравляющих веществ и бактериальных средств (в фильтрах поглотителях). Подача воздуха осуществляется по воздуховодам с помощью вентилятора. Количество наружного воздуха, подаваемого в убежище по режиму чистой вентиляции, устанавливается в зависимости от температуры воздуха и может быть от 7 до 20 м3/ч, а по режиму фильтровентиляции — от 2 до 8 м3/ч на каждого укрываемого человека.
Если убежище располагается в месте, где возможен пожар или загазованность территории сильнодействующими веществами, может предусматриваться режим полной изоляции помещений убежища с регенерацией воздуха в них.
Сети воздуховодов, расположенные в убежище, окрашиваются:
режима чистой вентиляции — в белый цвет; режима фильтровентиляции — в красный. Трубы рециркуляции воздуха окрашиваются также в красный цвет.
Если убежище надежно загерметизировано, то после закрывания дверей, ставень и приведения фильтровентиляционного агрегата в действие давление воздуха внутри убежища должно быть несколько выше атмосферного (образуется так называемый подпор).
Помещения для дизельной электростанции располагаются у наружной стены, а от других помещений отделяются несгораемой стеной (перегородкой) с пределом огнестойкости 1 ч.
В убежище оборудуются различные инженерные системы:
Электроснабжение и связь. Электроснабжение обычно осуществляется от внешней электросети, а при необходимости и от автономного электроисточника — защищенной дизельной электростанции. На случай нарушения электроснабжения в убежище предусматривается аварийное освещение от переносных электрических фонарей, батарей, велогенераторов и других источников (трубы с электропроводкой окрашиваются в черный цвет).
Убежище должно иметь телефонную связь с пунктом управления объекта и репродуктор, подключенный к районной или местной объектовой радиотрансляционной сети.
Водоснабжение и канализация убежища осуществляются на базе общих водопроводных и канализационных сетей. Помимо этого в убежище предусматриваются создание аварийных запасов воды и приемники фекальных вод, которые должны работать независимо от состояния внешних сетей (трубы водоснабжения окрашиваются в зеленый цвет).
Минимальный запас воды в проточных емкостях создают из расчета 6 л для питья и 4 л для санитарно-гигиенических потребностей на каждого укрываемого на весь расчетный срок пребывания, а в убежищах вместимостью 600 человек и более — дополнительно для целей пожаротушения 4,5 м3.
Отопление. В убежище предусматривается отопление. Оно осуществляется от общей системы (отопительной системы здания). Для регулирования температуры и отключения отопления в отопительной системе устанавливают запорную арматуру (трубы окрашиваются в коричневый цвет).
В помещениях убежища для укрываемых людей устанавливают двухъярусные скамьи и нары: нижние для сидения из расчета 0,45х0,15 м, верхние для лежания 0.55х1,8 м на человека. Высота скамей для сидения 0.45 м; расстояние по вертикали от верха скамей до мест второго яруса для лежания 1,1 м. По отношению к общей вместимости убежища мест для лежания должно быть 20%. В убежите должны быть дозиметрические приборы, приборы химическом разведки. защитная одежда, средства тушении пожара, аварийный запас инструмента, средства аварийного освещения. запас продовольствия и воды, санитарное имущество, а также документы, определяющие характеристику и правила его содержания, паспорт, план и табель оснащения, схемы внешних и внутренних сетей с указанном отключающих устройств, журнал проверки состояния убежища.
Организация обслуживания убежищ и военное время возлагается на службу убежищ и укрытии предприятии, личный состав которых укрывается в этих убежищах. На каждое убежище выделяется звено обслуживания во главе с командиром звена, который является комендантом убежища.
Содержание и использование убежищ. В городах, как правило, строят убежища двойного назначения, которые используют и мирное время для нужд народного хозяйств, а в военное - для укрытия людей. Это позволяет значительно удешевить эксплуатационные расходы на содержание защитных сооружений.
В мирное время убежища можно использовать для хозяйственных нужд, пол помещения культурно-бытового назначения, красные уголки, различные конторы, небольшие мастерские, классы для занятий различных кружков, учебные пункты Г0, стрелковые тиры. На крупных предприятиях а убежищах можно разместить бытовки, складские помещения, стоянки электрокаров, учреждения общественного питания и др.
Двойное использование убежищ необходимо предусматривать еще на стадии их проектирования. Использование убежищ в мирное время для производственных и хозяйственных нужд не должно нарушать их защитных свойств. Перевод таких помещений на режим военного времени должен обеспечиваться в возможно короткие сроки.
Для данного проекта, при следующих исходных данных:
- вместимость укрытия 140 чел;
- размеры здания в плане 27x20,6 м, общая площадь подвального помещения 556 м2;
- в подвальном помещении существует электрическое освещение;
- вход расположен с торца здания;
- пол подвала находится на 2,8 м ниже поверхности грунта;
- высота перекрытия над подвалом 2,5 м.
Рисунок 13.3 План убежища
Заключение
Дипломный проект "11-этажный жилой дом с мансардой" разработан в соответствии с заданием на дипломное проектирование. Особое внимание при разработке проекта было уделено расчётно-конструктивному разделу. Расчёты выполнены с использованием программного комплекса "LIRA v.9.0". Проведены антисейсмические мероприятия.
Разработана технологическая карта реконструкции здания, выполнены расчёты по организации и управлению строительства. В проекте производства работ разработан сетевой график.
Все расчеты произведены в соответствии с нормативной документацией, в соответствии с требованиями СНиП.
Литература
1. Технология строительных процессов: Учеб./ А.А. Афанасьев, Н.Н. Данилов, В.Д. Копылов и др.; Под ред. Н.Н. Данилова, О.М. Терентьева. – 2-е изд., перераб. – М.: Высшая школа., 2000. – 464 с., ил.
2. Технология строительных процессов: Учеб./ А.А. Афанасьев, Н.Н. Данилов, В.Д. Копылов и др.; Под ред. Н.Н. Данилова, О.М. Терентьева. – 2-е изд., перераб. – М.: Высшая школа., 2000. – 464 с., ил.
3. Атаев С.С. Технология индустриального строительства из монолитного бетона. – М.: Стройиздат, 1989. – 336 с.: ил.
4. ЕНиР. Сб. Е4. Монтаж сборных и устройство монолитных железобе-тонных конструкций. Вып. 1. Здания и промышленные сооружения/ Госстрой СССР. – М.: Стройиздат, 1987. – 64 с.
5. ЕНиР. Сб. Е1. Внутрипостроечные транспортные работы/ Госстрой СССР. – М.: Прейскурантиздат, 1987. – 40 с.
6. ЕНиР. Сб. Е22. Сварочные работы. Вып. 1. Конструкции зданий и промышленных сооружений/ Госстрой СССР. – М.: Прейскурантиздат, 1987. – 56с.
7. Методические указания к курсовому и дипломному проектам по возведению монолитных железобетонных конструкций по дисциплинам «Технология строительных процессов» и «технология возведения зданий и сооружений» для студентов всех форм обучения специальности 29.03 – Промышленное и гражданское строительство./ Краснодар. политехн. ин-т; сост. Р.Р. Степанов, И.М. Степанов. Краснодар, 1993. 63 с.
8. Монтаж строительных конструкций: Методические указания к выбору средств механизации монтажных работ для студентов всех форм обучения специальностей 29.03, 29.04 и 29.05 по предмету «Технология возведения зданий и сооружений»/ Сост. Р.Р. Степанов, И.М. Степанов, В.С. Дрешпак; Кубанск. гос. технол. ун-т. Каф. технологии, организации и экономики строительства. – Краснодар: Изд-во КубГТУ, 2001 – 43 с.
9. Методические рекомендации по выполнению контрольной работы по дисциплине «Техническое нормирование и сметное дело в строительстве» для студентов заочной формы обучения специальности 29.03 – «Промышленное и гражданское строительство»/ Кубан. гос. технол. ун.; сост. В. А. Пархоменко. – Краснодар, 2000, - 40 с.
10. Нормативы по теплозащите зданий СНКК-23-302-2000. Краснодар 2001
11. СНиП 2.01.01.82 – Строительная климатология и геофизика. Госстрой России, Москва 1999.
12. СНиП II-3-79* – Строительная теплотехника. Минстрой России 1995.
13. Проспекты и каталоги по опалубочным системам PERI.
14. СНиП 2.01.07-86* Нагрузки и воздействия. Нормы проектирования. М., 1988 г.
15. СНиП 2.02.01-83 Основания зданий и сооружений. Нормы проектирования. М., 1988 г.
16. СНиП 2.01.01-82. Строительная климатология и геофизика. Стройиздат, 1983 г.
17. СНиП 2.01.02-85 Противопожарные нормы. Нормы проектирования. М., 1986 г.
18. СНиП II-4-79 Естественное и искусственное освещение. Нормы проектирования. М., 1980 г.
19. СНиП 12-03-01, 12-04-02. Безопасность труда в строительстве. Ч. 1,2 – М.: Стройиздат, 2001, 2002 гг.
20. СНиП 2.09.04-87 Административные и бытовые здания. М.: Стройиздат, 1987 г.
21. Конструкции гражданских зданий. Т.Т. Маклакова, В.П. Житков., М., Стройиздат, 1986 г.
22. Краткий справочник строителя. А.И. Нифонтов, В.В. Рудаков., Киев, 1987 г.
23. Железобетонные конструкции. Общий курс. В.Н.Байков, Э.Е. Сигалов., М., Стройиздат, 1991 г.
24. Проектирование и расчет железобетонных и каменных конструкций. Н.Н. Попов, А.В. Забегаев. Москва «Высшая школа», 1980 г.
25. Справочник проектировщика. М Стройиздат, 1987 г. Под ред. Мурашева В.А.
26. Проектирование оснований и фундаментов. В.А. Веселов., М., Стройиздат, 1990 г.
27. Технология монолитного строительства с использованием опалубки PERI. Опыт применения зарубежной опалубки PERI в г. Краснодаре. Рощин К.В., Скляревский В.Г. Научный журнал «Труды КубГТУ». – Краснодар: Кубан. гос. технол. ун-т, 2004. – Сер. Строительство и архитектура. – Вып. 2.
28. СНиП I.04.03-85. Нормы продолжительности строительства и задела в строительстве предприятий, зданий и сооружений. М.: Стройиздат, 1987 г.
29. СНиП 5.02.02-86. Нормы потребности в строительном инструменте. М.: Стройиздат, 1987 г.
30. Организация и планирование строительного производства. А.Г. Дикман., М.: "Высшая школа", 1988 г.
31. Каталог ЕРЕР на строительные работы по 7 зонам промышленно-гражданского строительства Краснодарского края. - Т.1. Кн.1,2.- Краснодар. 1983.
32. Унифицированная инвентарная разборно-переставная опалубка "Монолит-72". М.: Стройиздат, 1972 г.
33. Технология строительного производства. С.К. Хамзин, А.К. Карасёв., М.: "Высшая школа", 1989 г.
34. Справочник. Строительные краны. В.П. Станевский., В.Г. Моисенко, Н.П. Колесник, В. В. Кожушко., Под общей редакцией В.П. Станевского., К.: Будивэльник, 1989 г.
35. Вибрационная техника уплотнения и формования бетонных смесей. О.А. Савинов, Е.В. Лавринович., Л.: Стройиздат, 1987г.
36. ССЦ на местные строительные материалы, изделия и конструкции для промышленно-гражданского строительства по Краснодарскому краю. - Т.1. – Краснодар. 1983.
37. СНиП II-7-81*. Строительство в сейсмических районах/ Госстрой России. – М.: ГУП ЦПП, 2000. – 44с.+прил. 2: 10 карт.
38. СНиП 2.03.01 –84*. Бетонные и железобетонные конструкции / Минстрой России. – М.: ГП ЦПП, 1996. – 76 с.
39. СНиП 2.02.03 – 85. Свайные фундаменты/ Госстрой СССР. – М.: ЦИТП Госстроя СССР, 1986. –48 с.
40. Инструкция к программе LIRA, версия 9.0. Copyright mb Software AG, Hamelen ЕВРОСОФТ, Москва.
41. Рекомендации по определению расчётной сейсмической нагрузки для сооружений с учётом пространственного характера воздействия и работы конструкций. ЦНИИСК им. Кучеренко, М., 1989.
42. Назаров Ю.П. Рекомендации по учету пространственного характера сейсмического воздействия при разработке программных комплексов для расчета сооружений, Москва 2000.
43. Дикман Л. Г. Организация и планирование строительного производства: Управление строительными предприятиями с основами АСУ: Учеб. Для строит. Вузов – 3-е изд., перераб. И доп. – М.: Высшая школа, 1988 – 559с.
44. Шахпаронов В. В. и др. Организация строительного производства / В.В. Шахпаронов, Л.П. Аблязов, И.В. Степанов; Под ред. В.В. Шахпаронова. – 2-е изд., перераб. И доп. – М.: Стройиздат, 1987. – 460с.: ил. – (справочник строителя).
45. Сборники государственных элементных сметных норм на общестроительные работы (ГЭСН – 2001). ГЭСН 81 –02- -6-2001. Бетонные и железобетонные конструкции монолитные /Госстрой России / Москва, 2000 г. – 72с.
46. Сборники государственных элементных сметных норм на общестроительные работы (ГЭСН – 2001). ГЭСН 81 –02- -7-2001. Бетонные и железобетонные конструкции сборные /Госстрой России / Москва, 2000 г. – 104с.
47. Теплозащита зданий. Методики расчета утепления зданий на зимний и летний периоды года. Указания к курсовому и дипломному проектированию гражданских и промышленных зданий для студентов всех форм обучения специальностей: 290300 – Промышленное и гражданское строительство и 290500 – Городское строительство и хозяйство. /Сост.: Н.А. Шпилевой; Кубан. гос. технол. ун-т. Каф. архитектуры гражданских и промышленных зданий. – Краснодар: Изд-во КубГТУ, 2002 – 39с.
48. Скляревский В.Г. Технология возведения зданий и сооружений: Учеб. пособие в двух частях. Части 1, 2. Кубанский государственный технологический университет – Краснодар: Изд-во КубГТУ, 2001, 2002 гг.
Доклад
Варианты Уважаемые члены комиссии, тема моего дипломного проекта «11-этажный жилой дом с мансардой». До начала проектирования над дипломом было произведено сравнение 3-х вариантов конструктивного решения. Наружные стены здания могут быть выполнены в трех вариантах, которые по заданию нужно было сопоставить по стоимости, расходу материалов и трудоемкости.
I. Стены из лицевого керамического кирпича и пенобетонных блоков с эффективным утеплителем типа «Rockwool».
II. Лицевой керамический кирпич с утеплителем из минераловатных плит и кладкой из кирпича.
III. Стена из пенобетонных блоков,
Здесь были определены технико-экономические показатели конструктивных решений, определены стоимость, произведен теплотехнический расчет каждого из вариантов. По критерию суммарного экономического эффекта для дальнейшего проектирования принимается первый вариант конструктивного решения здания, имеющий минимальную стоимость, трудозатраты, отвечающий современным требованиям теплозащиты.
Ген. план Участок под строительство 11-этажного жилого дома располагается в Центральном районе г. Краснодара.
Имеются автостоянка и парковка для подъезжающих к дому автомашин. Вход в здание запроектирован со стороны ул. Дмитриевская дамба.
При благоустройстве применены асфальтовое покрытие, тротуарная плитка и газоны. Озеленение выполнено с учетом местных условий расположения инженерных сетей, защиты от шума и пыли.
АРХИТЕКТУРА Жилой дом представляет собой 11-ти этажный объем с мансардой с габаритными размерами 27 х 20,6 м. Главный фасад ориентирован на сторону улицы Дмитриевская дамба.
Проект здания имеет индивидуальное архитектурное и объёмно-планировочное решение. Планировка помещений здания выполнена свободной с учётом современных эстетических требований.
Во всех квартирах имеются балконы. Подвал расположен под всем зданием и имеет высоту 2,8 м. Крыша здания – сложной конфигурации.
Вертикальная связь между этажами осуществляется по центральной лестничной клетке. Также предусмотрен один лифт.
Приводятся планы первого этажа, типового, план мансарды, кровли и соответствующие разрезы. Помещение мансарды предполагается под архитектурную мастерскую.
В ПЗ описаны все конструктивные решения элементов здания, инженерное оборудование, отделка и произведен теплотехнический расчет наружной стены, совмещенного покрытия и перекрытия 1 этажа.
СКиГС Расчетно-конструктивная часть представлена соответствующим разделом ПЗ и тремя листами графической части. По заданию руководителя были рассчитаны монолитная плита перекрытия типового этажа, анализ реакций свай и монолитный фундаментный ростверк.
Расчет конструкций каркаса выполнен на ЭВМ с использованием вычислительного комплекса «Stark версии 3.0» в соответствии с действующими в настоящее время строительными нормами и правилами. Вычислительный комплекс реализует метод конечных элементов и предоставляет возможность выполнять расчет на статические и сейсмические нагрузки согласно требованиям СНиП «Нагрузки и воздействия», СНиП «Строительство в сейсмических районах».
Конструктивная схема здания жилого дома решена в рамно-связевом монолитном железобетонном каркасе (колонны, диафрагмы, ядро жесткости) с монолитными железобетонными безригельными перекрытиями и покрытием. Сечения колонн 300×700 и 250×500 мм. Стены цокольного этажа – монолитные, толщиной 200 мм; толщина диафрагм составляет также 200 мм. Плиты перекрытий толщиной 200 мм. Все конструкции выполнены из монолитного железобетона класса В25. Ростверк из монолитного железобетона класса В25. Сваи забивные С7-30.
Наружные стены здания ненесущие с поэтажным опиранием на перекрытия. Выполнены многослойными. Стены армируются сетками и крепятся к каркасу при помощи монтажных элементов.
Лестничные марши и лестничные площадки – монолитные, железобетонные. Покрытие – скатная кровля с внутренним водосбором.
Показаны также результаты расчета армирования колонны К1, стены подвала по осям 1 и 5, приведены узлы, детали, спецификации.
ПРОВЕДЕНЫ АНТИСЕЙСМИЧЕСКИЕ МЕРОПРИЯТИЯ :
1) при кирпичном заполнении наружных и внутренних стен принята III категория кладки – нормального сцепления кирпича с раствором;
2) с целью уменьшения влияния просадки плиты перекрытия на кирпичную стену зазор между верхом кирпичной стены и плитой заделывают паклей, пропитанной гипсом;
3) усилены закрепления в местах соединений несущих диафрагм жесткости и колонн с кирпичными стенами путем креплений стальных скоб и прокладкой пенопласта, препятствующих падению выложенных стен.
Технология При выполнении технологической части проекта разработана технологическая карта – на устройство монолитного перекрытия. Здесь были произведены необходимые подсчеты объемов работ, материалов, составлена калькуляция трудозатрат и машино-смен, выбраны необходимые механизмы и монтажные приспособления, определен состав звеньев и бригад.
Монтаж основного несущего монолитного каркаса здания выполняется башенным краном марки КБ-504.
Кран был выбран путем сравнения характеристик с краном КБ-403 по величине грузоподъемности, вылета стрелы и др.
Организация Следующий раздел дипломного проекта посвящен организации, управлению и планированию в строительстве. Графическая часть представлена 2 листами – сетевым графиком и стройгенпланом.
Перед разработкой строительного генерального плана были выполнены необходимые для этого расчеты: расчет складских помещений и площадок, определена потребность во временных зданиях, сооружениях и коммуникациях, произведены расчеты потребности строительства в воде, электроэнергии и других ресурсах. На 11 листе вычерчен сам стройгенплан на период возведения надземной части дома, показано расположение башенного крана, определена опасная зона работы, даны графики потребности материальных, людских ресурсов, экспликация зданий и сооружений, условные обозначения и ТЭП по проекту.
Сетевой график включает сетевую модель, линейную диаграмму, график движения рабочих. Критический путь (т.е. наиболее длинный по срокам путь) прошел по работам и событиям, обозначенным на сетевой модели двойными линиями. Длина критического пути оказалась равной 209 дней при нормативном сроке строительства 205 дней.
Экономика В разделе экономической части составлены локальные сметные расчеты, санитарно-технические и электромонтажные работы, а также объектный и сводный сметные расчеты. Общестроительные работы подсчитывались по укрупненным показателям стоимости квадратного метра в 2005 г. по методическим указаниям кафедры ТОЭС с умножением на поправочный коэффициент перевода в текущие цены на 2 квартал 2008 года, утвержденный «Кубаньстройценой».
Всего сметная стоимость здания составила 367 миллионов, 939 тысяч, 900 рублей. Получилось, что стоимость квадратного метра жилья составляет 60138 рублей.
БЖ В пояснительной записке по заданию консультанта кафедры «Безопасности жизнедеятельности» приводится мероприятия по размещению убежищ в подвальных помещениях здания и обеспечение безопасности при производстве кровельных работ. Также освещены противопожарные мероприятия и действия по охране окружающей среды.
В заключении приношу благодарность и глубокую признательность моему руководителю доценту Дизенко Светлане Ивановне за научное руководство в процессе работы над дипломом и за постоянное внимание и направление моей учебной деятельности, а также всем консультантам за внимательное отношение к моей работе, ценные замечания, вопросы и пожелания.
25>25>25>















