123376 (592809)
Текст из файла
74
Содержание
Вступ
1. Загальна частина
1.1 Технічні характеристики і опис конвеєра
1.2 Загальні принципи реалізації системи управління приводами конвеєра
1.3 Система керування електроприводом стрічкового конвеєра
1.4 Загальні принципи модернізації. Постановка завдання
2. Спеціальна частина
2.1 Розробка функціональної і структурної схеми системи керування конвеєра
2.2 Розробка електричної принципової схеми системи керування стрічковим конвеєром
2.3 Розрахунок тиристорного регулятора
2.4 Модельне дослідження розробленої системи керування
3. Технологічна частина
3.1 Монтаж і експлуатація конвеєрних ліній
4. Організація виробництва
4.1Організація праці трудового колективу
4.2 Організація енергетичного господарства
4.3 Розрахунок чисельності робітників бригади та її професійний склад
4.4 Розрахунок середнього тарифного розряду і середньої годинної тарифної ставки
5. Економічна частина
5.1 розрахунок матеріальних витрат на електромонтажні роботи
5.2 Розрахунок фонду оплати праці бригади
5.3 Розрахунок виробничої собівартості продукції
5.4 Техніко економічні показники роботи бригади
6. Заходи щодо техніки безпеки
6.1 Техніка безпеки при монтажі та експлуатації стрічкових конвеєрів
Література
Вступ
Перетворювачі тиристорів займають важливе місце серед регульованих перетворювачів електричної енергії. Сфера застосування перетворювачів досить широка. Розвивається і удосконалюється техніка управління ними.
Силова частина і система управління є головними складовими перетворювача. Процеси, що відбуваються в них, невід´ємними один від одного і взаємообумовлені.
Основні вимоги по поліпшенню технічних характеристик перетворювачів тиристорів - підвищення надійності, поліпшення енергетичних показників, зменшення спотворень в живлячій мережі, поліпшення динамічних властивостей - не можуть бути виконані без дослідження питань теорії систем управління.
У числі важливих науково-технічних проблем, безпосередньо пов'язаних з розробкою систем управління перетворювачами тиристорів і вимагаючих дослідження, можна назвати дослідження взаємного впливу перетворювачів і живлячої мережі; розробку теорії оптимальної структури системи управління; дослідження роботи систем управління в умовах перешкод і підвищення їх перешкодостійкості; дослідження і створення технічних засобів, що дозволяють будувати надійні і точні системи управління.
Розвиток цифрових систем управління, а також мікроелектроніки привело до пошуку принципово нових способів управління статичними перетворювачами, що дозволяють підвищити точність, перешкодостійкість і надійність систем управління.
1. Загальна частина
1.1 Технічні характеристики і опис конвеєра
Найбільш поширеними механізмами безперервного транспорту є конвеєри різних типів, конструкція яких визначається головним чином характером переміщуваних вантажів, вагою і швидкістю їх руху. Сипкі вантажі переміщаються стрічковими конвеєрами, штучні - пластинчастими, роликовими і підвісними. На кораблях конвеєра знайшли застосування у рибодобувній галузі, на тральщиках їх встановлюють для транспортування сировини з одного трюму до іншого для подальшої обробки або заморозки. Серед конвеєрів промислових підприємств частіше за інших можна зустріти стрічкові і підвісні ланцюгові конвеєри: перші - на металургійних заводах, гірських розробках, паливоподачах електростанцій, в будівельній і харчовій промисловості, другі - на машинобудівних заводах, а також в хімічних, фарбувальних і інших цехах.
Стрічкові конвеєри широко використовуються в металургійній, гірничодобувній і інших видах промисловості. Їх використовують для транспортування насипних і штучних вантажів, як на невеликі відстані, так і на великі відстані. Простота і надійність їх конструкції забезпечує їх роботу в перебігу довгого часу. Стрічкові конвеєри можна використовувати як в закритих, так і на відкритих ділянках, що пояснює їх широке використання в промисловості. Конвеєри відносяться до машин безперервного типу дії і характеризуються безперервним переміщенням вантажів по заданій трасі без зупинки для завантаження або розвантаження. Завдяки безперервності переміщення вантажу, відсутності зупинок для завантаження і розвантаження і поєднанню робочого і зворотного рухів вантажонесучого елементу машини безперервної дії мають високу продуктивність, що дуже важливе для сучасних підприємств з великими вантажопотоками.
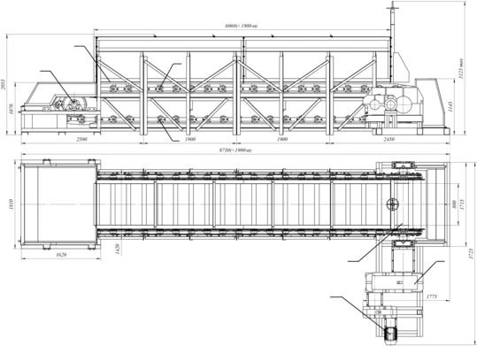
Рисунок 1.1 - Загальний вигляд стрічкового конвеєра забезпечуючи завантаження 10 залізничних вагонів в хвилину.
Стрічковий конвеєр (рис. 1.1) має станину 1, на кінцях якої встановлено два барабани: передній 2 - приводний і задній 3 - натяжний. Вертикально замкнута стрічка 4 огинає ці кінцеві барабани і по всій довжині підтримується опорними роликами, званими роликоопорами, - верхніми 5 і нижніми 6, укріпленими на станині 1. Інколи замість роликів застосовують настил. Приводний барабан 2 отримує обертання від приводу 7 через редуктор 8 і наводить в рух стрічку уздовж траси конвеєра.
Стрічка завантажується через одну або декілька завантажувальних воронок, розміщених на конвеєрі. Вантаж, що транспортується, переміщується на верхній (вантажонесучій, робочій) гілці стрічки, а нижня гілка є поворотною (зворотною). Можливо також транспортування вантажів одночасно на верхній і нижній гілках стрічки у різних напрямах.
Вантаж вивантажується на передньому барабані 7 або в проміжних пунктах конвеєра за допомогою розвантажувальних пристроїв: плужковых або барабанних розвантажувачів. Зовнішня поверхня стрічки очищується від часток вантажу, що прилипнули до неї, очисним пристроєм, встановленим у переднього барабана 7.
Стрічкові конвеєри застосовують для переміщення в горизонтальному і полого похилому напрямах всіляких насипних і штучних вантажів, а також для міжопераційного транспортування виробів при потоковому виробництві. Вони набули широкого поширення у всіх галузях промисловості і є основними агрегатами механізації транспорту в ливарних цехах (подача і розподіл землі і прибирання відходів), на топливоподачах електростанцій, підземного і наземного транспорту вугілля і породи у вуглевидобувній промисловості, руди, коксу і флюсів в металургії, будівельних матеріалів і корисних копалини в кар'єрах, зерна в зерносховищах, піску і каменя на будівництві каналів і гідростанцій і ін.
Стрічкові конвеєри служать складовими частинами таких складних машин, як роторні екскаватори, перевантажувальні і відвальні мости, навантажувально-розвантажувальні машини і тому подібне. Великого поширення стрічкові конвеєри набули завдяки можливості здобуття високої продуктивності (до 30000 т/ч), великій довжині транспортування (до 3-4 км. в одному конвеєрі і до 100 км. в системі з декількох конвеєрів), простоти конструкції і експлуатації і високої надійності роботи.
По розташуванню на місцевості стрічкові конвеєри розділяють на стаціонарних і рухливих (що розглядаються в цій главі), пересувних і переносних, переставних (для кар'єрів відкритих розробок) і надводних, плаваючих на понтонах.
По конструкції і призначенню розрізняють стрічкові конвеєри загального призначення (ГОСТ 22644-77-ГОСТ 22647-77) і спеціальні: підземні, для харчової, мукомельно-круп'яної і комбікормової промисловості і потокового
виробництва в приладобудівній, радіотехнічній і легкій промисловості.
За типом стрічки конвеєри бувають з прогумованою, сталевою цілісно прокатною і дротяною стрічкою. Найбільшого поширення набули конвеєра з прогумованою стрічкою. По конструкції прогумованої стрічки, опорних ходових пристроїв і передачі тягового зусилля розрізняють стрічкові конвеєри, в яких стрічка є вантажонесучим і тяговим елементом (основний тип), стрічково-канатні і стрічково-ланцюгові, в яких стрічка служить лише вантажонесучим елементом, а тяговим елементом є два канати або один ланцюг.
Конвеєри з різними видами стрічок можуть мати по контуру однакові траси, проте радіуси поворотів і кути нахилу р для кожного виду стрічок будуть різними. Кут нахилу конвеєра до горизонту залежить від коефіцієнта тертя вантажу, що транспортується, об стрічку при русі (а отже, від матеріалу і характеру поверхні стрічки), форми профілю стрічки (плоска або жолобчаста), кута природного укосу насипного вантажу, способу завантаження і швидкості руху стрічки.
Для забезпечення стійкого нерухомого положення вантажу на стрічці без його подовжнього сповзання вниз кут нахилу конвеєра має бути приблизно на 10-15° менше кута тертя вантажу об стрічку у спокої. Такий запас необхідний тому, що із-за провисання стрічки кут її підйому в роликоопор виходить більшим, ніж загальний геометричний кут нахилу конвеєра. Крім того, стрічка на роликоопорах струшується із-за неминучого биття роликів, що сприяє сповзанню вантажу вниз. Струшування буде тим інтенсивніше, чим більше швидкість стрічки і грубіше виготовлені опорні ролики. Безперервне рівномірне завантаження забезпечує більший кут нахилу, чим періодичне завантаження з перервами потоку вантажу.
Технічні характеристики конвеєра приведені в таблиці 1.1.
Таблиця 1.1 - Технічні характеристики конвеєра
| Показники | Одиниця виміру | Величина |
| Ширина стрічки | мм. | 800 |
| Довжина конвеєра: Номінальна, між центрами барабанів Між центрами барабанів по горизонталі | мм | 6360 6060 |
| Швидкість руху стрічки | м/сек. | 2 |
| Продуктивність | т/час | |
| Висота підйому | мм | 0 |
| Регулювання швидкості руху стрічки | Тиристорне регулювання | |
| Виконання електроустаткування | Загальнопромислове | |
| Система управління конвеєром | Імпульсно-фазова | |
| Електродвигун: тип потужність, кВт | Асинхронний кВт | 3 |
| Редуктор: | Циліндровий |
1.2 Загальні принципи реалізації системи управління приводами конвеєра
Принципова схема електроприводу окремих ліній конвеєра (рис.1.2), швидкості руху яких мають бути строго однакові.
Така необхідність виникає в потоковому виробництві, коли різні вироби після необхідних технологічних операцій на окремих лініях повинні зустрічатися на складальній ділянці в строгій відповідності один з одним. Схема дозволяє одночасно пускати і зупиняти декілька конвеєрних ліній і регулювати їх швидкість руху.
Погоджений рух досягається включенням двигунів за схемою синхронного валу із загальним перетворювачем частоти (ПЧ). Регулювання швидкості двигунів Д1 і Д2 здійснюється зміною швидкості ПЧ за допомогою редуктора Р із змінним передавальним відношенням.
Дозвіл на пуск конвеєрів дається операторами, що стежать за роботою конвеєрів на найбільш відповідальних ділянках. Натиснення на кнопки готовності SB3 і SB4 викликає запалення сигнальних ламп ЛС1 і ЛС2 і спрацьовування реле K1 і K2. Останні готують ланцюг пускового реле K3. При натисненні на кнопку SB5 “Пуск" спрацьовує K3, яке включає контактор K4. Відбувається однофазна синхронізація положення ПЧ, Д1 і Д2. Через витримки часу маятникові реле, вбудовані в контактори K4 і K5, послідовно включається K5, відключається K4 і включається K6. Здійснюється реостатний пуск двигуна перетворювача частоти за принципом часу (реле часу K10, K11, K12).
Перевагою даної схеми є те що, швидкість руху електродвигунів однакова, простота і дешевизна конструктивного виконання.
До недоліків схеми релейно-контакторного управління електроприводами з використанням пуско-регулюючих резисторів (ящиків опорів) для управління трифазним асинхронним двигуном з фазним ротором має наступні недоліки, що наводять до істотних експлуатаційних витрат:
Втрати енергії в резисторах складають 20-30% від загальної споживаної потужності;
У зв'язку із ступінчастим характером регулювання мають місце поштовхи моменту двигуна, що негативно позначаються на механічному устаткуванні і, відповідно, швидкість пересування також носить нерівномірний характер.
Оскільки елементи ящиків опорів працюють при високій температурі і в умовах трясіння, викликаної поштовхами швидкості, має місце досить частий вихід їх з роботи.
Характеристики
Тип файла документ
Документы такого типа открываются такими программами, как Microsoft Office Word на компьютерах Windows, Apple Pages на компьютерах Mac, Open Office - бесплатная альтернатива на различных платформах, в том числе Linux. Наиболее простым и современным решением будут Google документы, так как открываются онлайн без скачивания прямо в браузере на любой платформе. Существуют российские качественные аналоги, например от Яндекса.
Будьте внимательны на мобильных устройствах, так как там используются упрощённый функционал даже в официальном приложении от Microsoft, поэтому для просмотра скачивайте PDF-версию. А если нужно редактировать файл, то используйте оригинальный файл.
Файлы такого типа обычно разбиты на страницы, а текст может быть форматированным (жирный, курсив, выбор шрифта, таблицы и т.п.), а также в него можно добавлять изображения. Формат идеально подходит для рефератов, докладов и РПЗ курсовых проектов, которые необходимо распечатать. Кстати перед печатью также сохраняйте файл в PDF, так как принтер может начудить со шрифтами.















