Пособие к ТСН 31-305-96 (МГСН 4.05-95) (524714), страница 7
Текст из файла (страница 7)
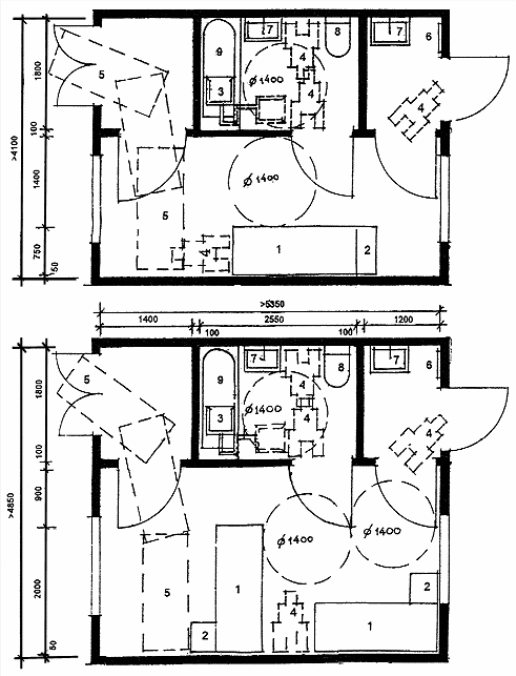
14. Смотровое окно
15. Умывальник
Рис. 6.34. Кабинет развития остаточного зрения для слепых и
слабовидящих детей (вариант II)
Экспликация оборудования
1. Кровать
2. Тумбочка
3. Поворотное кресло для инвалида
4. Инвалидная коляска
5. Каталка для эвакуации лежачего больного
6. Вешалка для сменных халатов
7. Умывальник
8. Унитаз
9. Ванна
Рис. 6.35. Примеры планировки мельцеровских боксов на 1 и на 2 места
7. Требования к помещениям культурно-массового обслуживания
В состав помещений культурно-массового обслуживания всех типов школ-интернатов для детей-инвалидов, как правило, входят актовый зал с эстрадой, фойе и вспомогательные помещения, кружковые помещения, спортивный зал, бассейн.
Актовый зал предусматривается с учетом расстановки мест для обычных ходячих зрителей и для инвалидов-колясочников (Рис. 7.1). Количество мест, которые следует предусматривать для инвалидов-колясочников, определяется заданием на проектирование.
Примеры планировки кружковых помещений (живописи и рисунка, музыкальных занятий) приведены в разделе 5 "Требования к помещениям учебно-профессиональной подготовки" (Рис. 5.17, 5.18). Состав кружковых комнат определяется заданием на проектирование в зависимости от профиля учреждения и местных условий.
Планировочные особенности раздевальных при спортивном зале и бассейне, учитывающие функционирование инвалидов-колясочников, приведены на Рис. 7.2 (пунктиром указана рабочая зона).
На рис. 7.3-7.5 приведены примеры приспособлений и оборудования, применяемых для облегчения входа инвалидов в бассейн.
Экспликация
1. Сцена
2. Места для ходячих зрителей
3. Места размещения инвалидов-колясочников
4. Пандус
Рис. 7.1. Варианты размещения мест в зрительном зале
Экспликация оборудования
1. Скамья с открытой вешалкой и местом для обуви
2. Инвалидная коляска (индивидуальная)
2а. Инвалидная коляска (закрепленная за бассейном)
3. Окно для наблюдений
3а. Окно для наблюдений, выдача чистых полотенец
4. Бачок для грязного белья
5. Слив
6. Унитаз
7. Умывальник
8. Душевая кабина обычная
9. Душевая кабина с учетом возможности пользования инвалидом-колясочником
10. Трап
11. Подвесное кресло для инвалида-колясочника
12. Трос или балка
13. Поворотное кресло для инвалида-колясочника
I. Раздевальная при бассейне с санитарным узлом, душевой и комнатой
хранения предметов уборки
II. Вариант планировки душевой и комнаты хранения предметов уборки в расчете
на перемещение инвалида-колясочника при помощи подвесного кресла
III. Раздевальная при спортивном зале с санитарными узлами и душевой
Рис. 7.2. Примеры планировки раздевальных и душевых при бассейне
и спортивном зале
1. Общий вид плавательного бассейна с подъемными устройствами
и пандусом для опускания в воду
2. Схемы разрезов борта бассейна высотой
на уровне сидения коляски
|
с сидением для пересаживания инвалида в воду |
с пандусом для опускания инвалида в воду |
Рис. 7.3. Примеры оборудования плавательного бассейна,
рассчитанного на инвалидов
1. Стационарные подъемники
|
лебедочного типа |
рычаговые |
2. Приспособления входа в бассейн с высотой борта на уровне пола
|
с пандусом |
с лестницей |
3. Приспособления входа в бассейн с высотой борта на уровне коляски
|
без пандуса |
с пандусом |
Рис. 7.4. Примеры различных приспособлений для входа
инвалидов в бассейн
1 -Лежачий подъемник
2 -Сидячий подъемник
Рис. 7.5. Примеры приспособлений, используемых для инвалидов
в плавательных бассейнах
8. Требования к помещениям питания
В состав помещений питания входят обеденные залы и производственные помещения кухни.
Обеденные залы могут размещаться как в составе помещений проживания, куда пища доставляется в бачках или термосах, так и непосредственно при блоке кухонных помещений. Обеденные залы для школьников, за исключением больных сколиозом, слепых и слабовидящих, независимо от того, где они располагаются, в составе жилых помещений или при кухне, проектируются с учетом обслуживания инвалидов-колясочников на основе принципов организации обеденных мест, приведенных на Рис. 8.1.
Организация обеденных мест в столовых для детей, больных сколиозом, а также слепых и слабовидящих, принимается в соответствии со схемами, приведенными на Рис. 8.2.
Для дошкольников обеденные места располагаются на площади групповой комнаты и проектируются в соответствии с планировочными схемами, приведенными в разделе 4 "Требования к помещениям проживания" (Рис. 4.2, 4.3).
Производственные помещения кухни проектируются в соответствии с требованиями норм по проектированию предприятий общественного питания.
Экспликация оборудования
1. Стол
2. Стул
3. Инвалидная коляска
Рис. 8.1. Примеры организации обеденных мест в столовых
Примечание: размеры и обозначения в скобках относятся к школам-интернатам для слепых и слабовидящих детей
Экспликация оборудования
1. Стол
2. Табурет (стул)
Рис. 8.2. Организация обеденных мест в столовых для детей, больных сколиозом
и слепых, и слабовидящих детей
Приложение:
ЛЕЧЕБНО-ИГРОВЫЕ ПЛОЩАДКИ
Рис. 1. Лечебно-игровые площадки для детей с заболеваниями опорно-двигательного
аппарата (по рекомендациям ЦНИИЭП учебных зданий):
I. Гимнастическая площадка: 1 - бревно на грунте; 2 - бревно на стойках; 3 - доска на грунте; 4 - скамья; 5 - наклонная лестница; 6 - наклонная доска; 7 - брусья; 8 - перекладина; 9 - рукоход; 10 - шесты; 11 - кольца; 12 - ориентиры на грунте для построения детей; 13 - шведские стенки; 14 - вертикальные гимнастические лестницы; 15 - доска с планочками
II. Лечебно-гимнастическая площадка: 1 - вертикальные гимнастические лестницы;
2 -дорожка для дифференцирования движений; 3 - шведские стенки; 4 - скамья; 5 - наклонная лестница; 6 - наклонная доска;7 - циклотренажер; 8 - качающаяся плоскость; 9 - батут;
10 - различные виды подъемов; 11 - ориентиры на грунте для построения детей; 12 - дорожки из различных покрытий; 13 - валиковые дорожки; 14 - волнистая доска; 15 - доска "елочка";
16 - следоступ; 17 - дорожка с разделителем; 18 - велотренажер
Рис. 2. Лечебно-игровые площадки для детей с нарушениями слуха и зрения
(по рекомендациям ЦНИИЭП учебных зданий):
I. Для глухих и слабослышащих детей: 1- бревно на стойках; 2 - скамья; 3 - наклонная лестница; 4 - наклонная доска; 5 - бум; 6 - брусья; 7 - перекладина; 8 - рукоход; 9 - подъемник со страховкой; 10 - доска для укрепления пресса; 11 - шесты; 12 - кольца; 13 - ориентиры на грунте для построения детей; 14 - шведские стенки; 15 - различные виды подъемов; 16 - фиксированная штанга; 17 - силовой балансир ножной; 18 - силовой балансир ручной
II. Для слепых и слабовидящих детей: 1 - бревно на грунте; 2 - бревно на стойках; 3 - доска на грунте; 4 - циклотренажер; 5 - наклонная лестница; 6 - наклонная доска; 7 - шагоход;
8 - следоступ; 9 - волнистая доска; 10 - доска "елочка"; 11 - ребристая доска;
12 - велотренажер; 13 - дорожки из различных покрытий; 14 - дорожки из щитов;
15 - дорожка из дощечек; 16 - звуковые ориентиры; 17 - вертикальные гимнастические лестницы
Рис. 3. Лечебно-игровые площадки для глухих и слабослышащих детей
(по рекомендациям ЦНИИЭП учебных зданий):
I. Для детей дошкольного и младшего школьного возраста: 1 - карусель; 2 - кольцеброс;
3 - качели шинные; 4 - песочница; 5 - система обручей для проползания; 6 - макет корабля;
7 - качалки на пружинах; 8 - навес; 9 - доска с планочками; 10 - односкатная горка;
11 - скамья; 12 - одноярусный лабиринт алфавитный; 13 - вкопанные шины; 14 - наклонная лестница
II. Для детей среднего и старшего школьного возраста: 1 - пергола; 2 - игровой стол;
3 - качели шинные; 4 - качалки-балансиры; 5 - качалки с "зонтиками"; 6 - качалки-лодочки;
7 - стол-тир; 8 - стационарный мост; 9 - многоскатная горка; 10 - односкатная горка;
11 - качели-подъемники; 12 - петлевой подъемник; 13 - массив для лазания; 14 - кольцеброс; 15 - скамья; 16 - двухъярусный лабиринт; 17 - различные подъемы; 18 - "бегущие" бараны
















