Раздел 1 (1234610), страница 3
Текст из файла (страница 3)
Конструктивная система представляет собой взаимосвязанную совокупность вертикальных и горизонтальных несущих конструкций здания, которые совместно обеспечивают его статическую работу.
Конструктивная схема здания – рамная. Полный монолитный железобетонный каркас, с заполнением из кирпича по наружным стенам. Пространственная жесткость здания обеспечивается совместной работой колонн каркаса, монолитных стен техподполья, лестничных клеток и диафрагм жесткости, дисков перекрытий и покрытия.
Расчеты выполнены с использованием программного комплекса «ЛИРА 9.6», методом конечных элементов в соответствии с требованиями [4].
Конструктивная схема здания представлена на рисунке 1.2.
Рисунок 1.2 – Конструктивная схема здания
1.3.2 Разработка эскизов планов этажей
Эскиз планов составляется с учетом расчетов освещенности и эвакуации людей. На плане определяются количество и размещение эвакуационных выходов, размеры проходов, расположение окон и дверей, их типы и размеры, уточняются размеры отдельных помещений и их площади. Эскизы планов этажей представлены на рисунках 1.3; 1.4; 1.5 и 1.6.
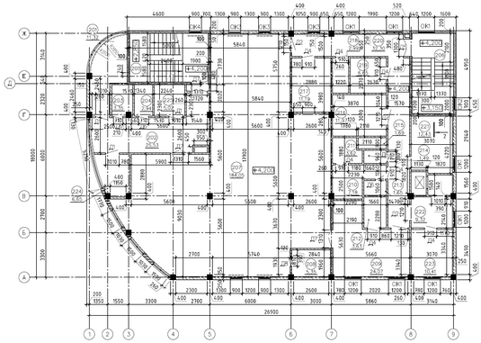
Рисунок 1.3 – эскиз плана 1 этажа
Рисунок 1.4 – эскиз плана 2 этажа
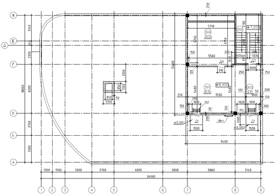
Рисунок 1.5 – эскиз плана техподполья
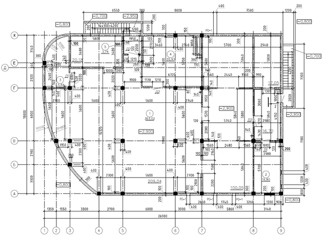
Рисунок 1.6 – эскиз плана техэтажа
1.3.3 Построение эскиза разреза здания
Разрез здания выполняется на основе решения плана с учетом принятой конструктивной системы. Как правило, разрез выполняется по лестничной клетке или по входу здания. Разрез здания изображен на рисунке 1.7.
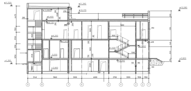
Рисунок 1.7 – эскиз разреза
1.3.4 Построение эскиза фасада здания
Одновременно с эскизом плана и разреза здания решаем эскиз главного фасада. Фасад здания изображен на рисунке 1.8; 1.9; 1.10; и 1.11.
Рисунок 1.8 – эскиз фасада Ж-А
Рисунок 1.9 – эскиз фасада А-Ж
Рисунок 1.10 – эскиз фасада 1-9
Рисунок 1.11 – эскиз фасада 9-1
1.3.5 Обоснование выбора конструктивных элементов
1.3.5.1 Фундаменты
Фундаменты это часть здания, расположенная ниже отметки дневной поверхности грунта, передающая нагрузки от здания на грунт основания.
Выбор конструкции фундамента зависит от выбора конструктивного остова здания. В моём проекте здание имеет рамную конструктивную схему. Соответственно в данном случае, я использую ленточный фундамент под железобетонные стены и столбчатый под отдельно стоящие колонны (рисунок 1.12).
Расчёт фундаментов производится в конструктивном разделе, поэтому размеры подошвы фундаментов принимаем условно.
Рисунок 1.12 – План фундаментов
1.3.5.2 Колонны
В проекте принимаются колонны монолитные железобетонные. Узел сопряжения колонны с монолитным перекрытием показана на рисунке 1.13.
Рисунок 1.13 – Узел сопряжения колонны с монолитным перекрытием
1.3.5.3 Стены
Стены подземной части:
Наружные – монолитные железобетонные толщиной 300мм, утепляются снаружи теплоизоляционными плитами из экструдированного пенополистирола «Европлекс-35» по [18], с защитной прижимной стенкой. Предусмотрена вертикальная гидроизоляция стен подземной части – «Техноэласт П» [19].
Внутренние – монолитные железобетонные толщиной 200мм.
Стены надземной части:
Наружные – двух видов: несущие стены и наружное стеновое заполнение.
1) Несущие – монолитные железобетонные стены лестничных клеток, толщиной 200мм с наружным утеплением:
– плиты теплоизоляционные из стекловолокна марки «ISOVER KL 34» по [20] с коэффициентом теплопроводности λ=0,040 Вт/мК.
Параметр горючести плит НГ (негорючие) по [21].
2) Наружное стеновое заполнение – из силикатного кирпича марки М100 на растворе М100, толщиной 250 мм с наружным утеплением:
– плиты теплоизоляционные из стекловолокна марки «ISOVER KL 34» по [20], с коэффициентом теплопроводности λ=0,040 Вт/мК.
Параметр горючести плит НГ (негорючие) по [21].
Толщины утеплителей назначены по результатам теплотехнического расчета и приведены в графической части проекта.
Фасад – навесной вентилируемый.
Внутренние стены надземной части – монолитные железобетонные толщиной 200мм.
Конструкция стена наружной части представлена на рисунке 1.14.
Рисунок 1.14 – Сечение наружной стены
1.3.5.4 Междуэтажные перекрытия и покрытие
Перекрытия – монолитные железобетонные безбалочные толщиной 200мм.
Покрытие – монолитное железобетонное безбалочное толщиной 200мм. Утепление покрытия выполняется плитами теплоизоляционными из базальтового волокна марки «Базалит ПТ»:
- слой «Базалит ПТ-200», Y=175кг/м³ по [22], λ=0,048 Вт/мК.
Толщины утеплителей назначаются по результатам теплотехнического расчета и приводятся в графической части проекта.
Параметр горючести теплоизоляционных плит в покрытии - НГ (негорючие) по [21].
Конструкция покрытия представлена на рисунке 1.15.
Рис 1.15 – Сечение конструкции покрытия
1.3.5.5 Перегородки
Проектируемые перегородки – из силикатного кирпича, в мокрых помещениях из керамического кирпича, толщиной 120мм. Они удовлетворяют основным требованиям предъявляемым к ним: устойчивости, прочности, звукоизоляции и санитарной гигиены. Узел крепления кирпичной перегородки к монолитной стене показан на рисунке 1.16.
Рис 1.16 – Узел крепления кирпичной перегородки к монолитной стене
1.3.5.6 Лестничные клетки
Лестничные клетки – типа Л1, с естественным освещением. Лестничные площадки – монолитные железобетонные, лестничные марши – монолитные железобетонные. Конструкция лестницы изображена на рисунке 1.17.
Рис 1.17 – Сечения конструкции лестницы
1.3.5.7 Полы
Полы в помещениях принимаются в зависимости от назначения здания. Выбранные типы полов приведены в таблице 1.
Таблица 1.5 – Спецификация дверного заполнения
| Тип пола | Схема пола | Элементы пола и их толщина | Площадь пола, м2 | Номер помещения по проекту |
| 1 |
|
| 224,04 | 102 |
| 2 |
|
| 18,88 | 105; 106; 107; 115; 119 |
| 3 |
|
| 20,0 | 103; 104; 111 |
Окончание табл.1.5
| 4 |
|
| 46,18 | 110; 112; 113; 114; 123 |
| 5 |
|
| 14,12 | 219; 222 |
1.3.5.8 Двери
Двери входные наружные, тамбурные – из алюминиевых фасадных систем «СИАЛ» с заполнением двухкамерными стеклопакетами и анодированным алюминиевым профилем по [23] с приведенным сопротивлением теплопередаче не менее R=0,92м2 0С/Вт.
Двери внутренние – деревянные по [24].
Противопожарные двери – производства НПО «ПУЛЬС», г.Москва.
Спецификация дверного заполнения показана в таблице 1.6.
Таблица 1.6 – Спецификация дверного заполнения
| Марка поз. | Обозначение | Наименование | Кол-во на этаж | Всего | Примечание | |||
| Техподполье | 1 этаж | 2 этаж | Техэтаж | |||||
| Д1 | Дверной профиль «СИАЛ» | КПТ 1010*21 | 2 | 3 | 3 | 2 | 10 | |
| Д2 | ГОСТ 6629-88 | ДГ-21-13 | 3 | - | 2 | - | 5 | |
| Д3 | Дверной профиль НПО «ПУЛЬС» | ДПМ-02/30 | - | - | - | 1 | 1 | |
| Д4 | ГОСТ 6629-88 | ДО-21-10 | - | 3 | 3 | - | 6 | |
Окончание табл.1.6
| Д5 | Дверной профиль НПО «ПУЛЬС» | ДПМ-02/60 | - | - | 1 | - | 1 | |
| Д6 | ГОСТ 6629-88 | ДО-21-8 | - | 3 | 5 | - | 8 | |
| Д7 | Дверной профиль НПО «ПУЛЬС» | ДПМ-02/30К-О | - | 7 | 3 | - | 10 | |
| Д8 | ГОСТ 6629-88 | ДГ-21-9 | - | 1 | 1 | - | 2 | |
| Д9 | Дверной профиль НПО «ПУЛЬС» | ДПО-02/60 | - | 5 | - | - | 5 |
1.3.5.9 Оконные блоки и витражи
Оконные блоки – индивидуальные с двухкамерными морозостойкими стеклопакетами из ПВХ профилей по [25], с приведенным сопротивлением теплопередаче R= 0,58м2 0С/Вт, с обеспечением притока воздуха за счет щелевого проветривания.















