ВКР Сухарь К.А. 946 гр по теме Реконструкция резервуара на базе резервуарного парка АО ННК-Хабароский~1 (1232795), страница 4
Текст из файла (страница 4)
=1,2;
-
вакуума (
):
(7.8)
где
– коэффициент надежности по нагрузке избыточного давления,
=1,2;
-
ветра на стенку(
) (в виде условного вакуума):
(7.9)
где
– нормативное значение ветрового давления в зависимости от ветрового района (для IIIрайона
=0,38 кПа);
– аэродинамический коэффициент (для расчета стенки на устойчивость
= 0,5 согласно [3]);
– коэффициент, учитывающий изменение ветрового давления по высоте (для типа местности B – городские территории, лесные массивы и другие местности, равномерно покрытые препятствиями более 10 м – и проектной высоты резервуара
=0,85);
=1,4;
-
ветра на покрытие (
) (отсос):
(7.10)
где
= - 0,51, согласно [3] в таблице определения аэродинамических коэффициентов, исходя из условия:
(7.11)
и применив метод интерполяции,
-
гидростатического давления жидкости (
):
(7.12)
где
– расстояние от высшего уровня жидкости до нижней кромки пояса.
Установим минимальную необходимую толщину верхнего пояса стенки.
Минимальная толщина стенки из конструктивных соображений по таблице (из условияD = 16,85 м: 16 <D ≤ 25)
= 7 мм.
Таблица 7.2
Конструктивно необходимая толщина стенки
| Диаметр резервуара D, м | Рулонное исполнение | Полистовое исполнение | |
| стационарная крыша | плавающая крыша | ||
| D < 16 | 4 | 4 | 5 |
| 16 ≤ D < 25 | 6 | 5 | 7 |
| 25 ≤ D < 35 | 8 | 6 | 9 |
| D ≥ 35 | 10 | 8 | 10 |
Принимая минусовой допуск на прокат δ = 0,55 мм для повышенной точности изготовления листового проката (АТ) согласно [16], при условии: толщина от 5 до 10 мм, при ширине от 2000 до 3000 мм - и припуск на коррозию с=0,1 мм, получим:
(7.13)
принимаем
=8 мм,
(7.14)
7.2.1.11 Для последующего размещения толщин листов по высоте стенка необходимо определить величину редуцированной высоты стенки из формулы:
(7.15)
где:
(7.16)
(7.17)
(7.18)
- соответственно, удельные веса (на единицу площади днища) покрытия, вышележащей части стенки и снега на покрытии;
- вакуум;
- ветровой отсос на покрытии;
- ветровое давление на стенку;
Е - модуль упругости стали, равный 2,1·
кг/см²;
- коэффициент сочетания нагрузок,
=0,9.
Коэффициент cаппроксимируют формулой (в пределах значений r/t=800…2500):
(7.19)
Вычисляем удельные нагрузки вертикального направления
(рассчитываем нагрузку при отсутствии утеплителя и без учета стационарного оборудования) и
- кольцевого направления:
(7.20)
(7.21)
Учитывая, что
(7.22)
(7.23)
по формуле:
(7.24)
Определяем значение расстояния H* от верхнего уровня налива жидкости до сечения стенки, в котором толщина
стенки удовлетворяет условиям устойчивости и прочности из формулы:
(7.25)
где
- коэффициент надежности по назначению;
- коэффициент надежности по нагрузке;
- коэффициент условия работы конструкции;
- расчетное сопротивление сварного стыкового шва, из данных таблицы для стали С255 при толщине от 10 до 20 мм
;
Отсюда:
Расстояние до верха стенки (
) ,в пределах которого толщина стенки может быть постоянной и равной минимальной толщине:
(7.26)
Следовательно, значения толщины всех поясов должно быть не менее 8 мм.
7.2.1.16 Определим минимальные расчетные толщины в нижележащей части стенки(
)для условий эксплуатации, принимая
по формуле:
(7.27)
-
При
=22 м,
=22 м – 0,3 м =21,7 м,
=0,7:
Принимаем
12 мм
-
При
=22 м - 2,2 м = 19,8 м,
=19,8 м – 0,3 м =19,5 м,
=0,8 по формуле 7.27:
(7.28)
Принимаем
9 мм
-
При
=19,8 м - 2,2 м = 17,6 м,
=17,6 м – 0,3 м =17,3 мпо 7.28:
Принимаем
8 мм.
Исходя из условия минимального значения, толщины поясов с третьего по десятый будут равны 8 мм.
Окончательные значения толщин стенки по высоте устанавливают с учетом значения редуцированной высоты стенки по расчетным значениям толщин
так, чтобы фактическое значение редуцированной высоты стенки
(
) было не более теоретического (
):
(7.29)
но как можно ближе к теоретическому значению. Оптимальный вариант – при:
(7.30)
Определяем расчетные толщины поясов по формуле 7.13:
Найдем фактическую величину редуцированной высоты стенки (
):
(7.31)
Следовательно, устойчивость стенки будет обеспечена.
Таким образом установлен следующий набор толщин поясов стенок:
-
для первого пояса - 12 мм;
-
для второго – 9 мм;
-
для последующих – 8 мм.
-
Ограждающая стенка
Согласно [10] между резервуарами рассматриваемой группы (№5, №6, №7, №8) и резервуарами №9, №106 и №107, входящими в состав товарного парка, предусмотрена ограждающая стенка, рассчитанная на гидростатическое давление разлившейся жидкости, высота которой выше уровня расчетного объема разлившейся жидкости на 0,2 м согласно [17]. Высота разлива расчетного объема жидкости равна номинальному объему наибольшего резервуара в группе, в соответствии с [18]. В данном случае, объем 4900 м³ является общим для всех резервуаров этой группы, суммарная вместимость резервуарной группы составит 19600 м³. Высота внутренней стенки принята 0,8 м. Абсолютную отметку ограждающей стенки с восточной стороны примем равной 89.50, а между резервуарами №7 и 9 – 88,15.
Внутри ограждающей стенки рассматриваемой группы резервуаров исключена прокладка транзитных трубопроводов.
-
Переходы, пешеходные дорожки
Возле приемо-раздаточных патрубков резервуаров выполнены площадки для обслуживания арматуры, также предусмотрены лестницы для подъема на фундамент резервуара для обслуживания люков-лазов, пробоотборников и прочего оборудования. Для обслуживания контрольно-измерительных приборов, а также резервуарного оборудования, расположенного на крыше резервуара предусматривается кольцевая лестница.
Для противопожарного обслуживания проектируемого резервуара, проведения ремонтных и зачистных работ, в парк предусмотрен въезд с выходом на существующую автодорогу, располагающуюся параллельно резервуарам №6 и №8.
Для перехода через ограждающую стенку предусмотрены четыре лестничных перехода.Допереходов через ограждающую стенку предусматривается устройство пешеходных дорожек шириной 1 м с асфальтобетонным покрытием, предназначенных для обслуживания проектируемого объекта.
-
Прокладка технологических трубопроводов
Технологические трубопроводы на территории товарного парка проектируются для приема и раздачи хранимых в резервуарах продуктов, а также вспомогательных операций: перекачки продукта из резервуара в резервуар в пределах группы, трубопроводы для регулировки давления в резервуаре, пожарные трубопроводы и т.д.
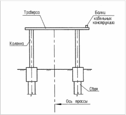
Для технологических трубопроводов предусмотрена наземная прокладка на стойках (рис. 7.2)
Прокладка предусмотрена с уклоном, чтобы обеспечить освобождение трубопроводов при остановке, подготовке к ремонту. В нижних точках уклона предусмотрены дренажи для слива воды после гидравлического испытания и воздушники в верхних точках трубопроводов для отвода газов.
Согласно [10] трубопроводы, которые относятся непосредственно к резервуарам группы, находятся внутри ограждения группы данных резервуаров. В месте прохода труб через ограждающую стену обеспечивается герметичность.
Рис. 7.2. Наземная прокладка трубопроводов.
По периметру резервуарной группы за ограждением со стороны резервуаров №6 и 8, предусмотрена автомобильная дорога, обеспечивающая доступ к возможному возгоранию для пожарных подразделений. В месте пересечения с этой дорогой предусмотрена подземная прокладка трубопроводов в железобетонных лотках.
Эти решения по прокладке трубопроводов обеспечат:
-
возможность непосредственного контроля за их техническим состоянием;
-
возможность выполнения всех видов работ по контролю, термической обработке сварных швов, изоляции и испытанию;
-
предотвращение образования воздушных пробок в трубопроводе;
-
исключение провисания и образования застойных зон;
-
возможность самокомпенсации температурной деформаций трубопроводов;
-
наименьшую протяженность трубопроводов.
8 МЕРОПРИЯТИЯ ПО ЗАЩИТЕ СТРОИТЕЛЬНЫХ КОНСТРУКЦИЙ ОТ АГРЕССИВНОГО ВОЗДЕЙСТВИЯ СРЕДЫ В УСЛОВЯХ ЭКСПЛУАТАЦИИ
Защита проектируемых строительных конструкций принята согласно требованиям [19]с учетом степени агрессивного воздействия среды и прочих условий эксплуатации:
-
бетонные и железобетонные конструкции приняты повышенной плотности и морозостойкости;
-
металлические конструкции обслуживающих площадок, обвязок, пролетных строений запроектированы, как правило, в виде замкнутого профиля с глухими торцами или открытого профиля, обеспечивающего отвод воды в местах возможного скопления;
-
закладные и соединительные детали бетонных и железобетонных конструкций окрашиваются эмалью ПФ 115 согласно требованиям ГОСТ 6465-76 [20].
Для защиты стальных конструкций от коррозии предусмотрено применение лакокрасочных материалов I группы согласно [19]. При разработке технического паспорта зданий и сооружений необходимо указывать сроки восстановления антикоррозионных покрытий в соответствии с инструкциями по применению данных видов покрытий.
В соответствии с климатическими условиями согласно[21] и [1] железобетонные конструкции должны иметь марку бетона по морозостойкости не менее: F75 –для не защищенных от атмосферных воздействий конструкций, F50 – для защищенных; F50 –для конструкций, находящихся в грунте, кроме свай; F100 – для свай.
-
Антикоррозионная защита
Антикоррозионная защита в основном направлена на защиту внутренней и наружной поверхности резервуара и защиту технологических трубопроводов.
Основаниями для разработки антикоррозионной защиты внутренней поверхности резервуара являются следующие причины:
-
коррозионное разрушение металла;
-
требование обеспечения высокого качества нефтепродукта, хранимого в резервуаре.
Обеспечения длительной эксплуатации вводимого резервуара, стальные конструкции должны быть тщательно защищены от коррозии путем очистки после гидравлического испытания пескоструйной обработкой, огрунтовкой и окрашиванием, подробнее эта тема раскрыта в книге Нехаева Г.А «Проектирование и расчет цилиндрических резервуаров и газгольдеров низкого давления» [15]. Для грунтов необходимо использовать битумные и асфальтобитумные лаки или составы на основе фенолформальдегидных смол. В качестве окрасок требуется применять перхлорвиниловые эмали или составы на основе битумных и асфальтобитумных лаков. Наружная поверхность резервуара должна иметь светлый или серебристый цвет, чтобы обеспечить хорошее отражение солнечных лучей и таким образом предотвратить его нагрев.
Для защиты внутренней поверхности резервуара в условиях эксплуатации резервуарного парка оптимальным вариантом будет полное покрытие внешней стенки резервуара современными лакокрасочными защитными покрытиями.
):
) (отсос):
):
=22 м,
=22 м – 0,3 м =21,7 м,
=0,7:
=22 м - 2,2 м = 19,8 м,
=19,8 м – 0,3 м =19,5 м,
=19,8 м - 2,2 м = 17,6 м, 











