ВКР Сухарь К.А. 946 гр по теме Реконструкция резервуара на базе резервуарного парка АО ННК-Хабароский~1 (1232795), страница 8
Текст из файла (страница 8)
Рис. 12.1. Стационарная установка пожаротушения
с подачей пены низкой кратности
Расчетная площадь тушения пожара в наземных резервуарах со стационарной крышей принимается равной площади горизонтального сечения резервуара, для выбранного резервуара она составит 222,88 м²:
|
| (12.1) |
| где Dвн – внутренний диаметр резервуара. | |
Согласно нормативной документации предусматривается два ввода пенопровода непосредственно в резервуар, чтобы выпуск пены осуществлялся над слоем подтоварной воды, но не выше минимального уровня нефти в резервуаре. Установка пожаротушения обеспечивает подслойный метод ввода пены – в нижнюю часть резервуара непосредственно в слой горючей жидкости.Согласно [32]и [10] предусмотрен трехкратный запас пены на три пенныеатаки на 15 минут каждая. На вводе в резервуар предусматривается мембрана, обратный клапан и задвижка.
Резервуары данной группы, подлежащие замене, оборудованы стационарными установками охлаждения, наличие которых предусмотрено также после реконструкции. Установки охлаждения горящих резервуаров – кольца орошения - подключаются к противопожарному водопроводу. Система охлаждения представлена двумя полукольцами диаметром 100мм. При возникновении пожара происходит орошение резервуара, в котором находится очаг возгорания, а также близлежащих резервуаров. При возгорании в резервуаре № 7 необходимо охлаждение резервуара №5 и резервуара № 8. Расчетное время охлаждения согласно [10] составляет6 часов (360 мин).
В дополнение к пожарному водопроводу на территории предприятия в районе проектируемого резервуара имеются два пожарных водоема объемом по 250 м³ каждый на расстоянии 170 м и 500 м от площадки строительства.
В соответствии с требованиями [33] предусмотрена также система оповещения людей при пожаре и чрезвычайной ситуации.
Предложенный комплекс инженерно-технических решений и мер позволит обеспечить достаточную надежность, эффективность и безопасную эксплуатацию вводимого объекта.
13 ОХРАНА ОКРУЖАЮЩЕЙ СРЕДЫ
В соответствии с законом Российской Федерации «Об охране окружающей среды» при проектировании, строительстве, реконструкции, эксплуатации, снятии с эксплуатации предприятий, зданий, сооружений должны предусматриваться мероприятия по охране природы, рациональному использованию и воспроизводству природных ресурсов, а также выполняться требования по экологической безопасности проектируемых объектов.
Учет экологических требований и применение мер по защите окружающей среды определяют возможность осуществления планируемой деятельности на конкретной территории, исходя из масштабов и характера ее воздействия на окружающую среду.
Площадка под строительство резервуара №7 находится на территории действующего предприятия, не является при этом территорией, охраняемой природоохранными органами.
На территории строительства отсутствуют земли с особым режимом использования, такие как: неосушаемые, неорошаемые и непродуктивные. Природные объекты, такие как: заказники, заповедники, памятники природы и др. – также отсутствуют.
Сверху площадка отсыпана насыпными грунтами мощностью до 2,0 м.
Нарушенные земли при строительстве воздействуют на гидрогеологический режим территории. Чтобы снизить негативные последствия, для быстрого отвода и сбора поверхностного стока после завершения строительства предусмотрено выполнение вертикальной планировки на территории резервуарного парка. При данном виде планировки площадки возможны изменения параметров поверхностного стока и гидрогеологических условий в незначительной мере, что не приведет к существенному изменению уровня подземных вод.
Резервуар №7 размещен на территории действующего предприятия, поэтому выполнение предусмотренных природоохранных и конструктивных мероприятий, обеспечивающих экологическую безопасность, предотвратит существенное нарушение природных геологических условий на площадке и за ее пределами.
Связь с атмосферой у резервуара отсутствует, следовательно, возможность выброса газов взрывоопасной концентрации исключена, так как сброс газа происходит через свечу рассеивания диаметром 400 мм и высотой 30 м.
13.1 Прогноз изменения состояния окружающей среды под воздействием реконструируемого объекта
Проектируемый объект не является источником физического воздействия на атмосферный воздух, следовательно, физическое воздействие предприятия на окружающую среду вследствие проведения подготовительных и монтажных работ для реконструкции резервуара №7 не увеличится.
После окончания работ величина ущерба окружающей среде от размещения отходов предприятия также не превысит значения, которое существовало до конструкции, так как качественный и количественный состав образования отходов на предприятии после реконструкции останутся на прежнем уровне.
Строительные работы будут проводиться на промышленной площадке предприятия, т.е. без отчуждения земель.
В период проведения строительных работ дополнительная нагрузка на компоненты окружающей среды носит кратковременный характер. Ряд образующихся отходов подлежит утилизации для минимизации воздействия на окружающую среду.
Замена физически изношенного и морально устаревшего резервуара позволит уменьшить вероятность возникновения аварийных ситуаций на предприятии.
ЗАКЛЮЧЕНИЕ
Выпускная квалификационная работа «Реконструкция резервуара на базе резервуарного парка АО «ННК – Хабаровский НПЗ» выполнена в соответствии с современными техническими требованиями и действующими нормативными документами.
В работе предложено повышение производительности нефтеперерабатывающего завода посредством увеличения объема резервуарного парка путем замены морально устаревшего оборудования – цилиндрических вертикальных резервуаров объёмом 2000 м³ на вертикальные цилиндрические резервуары объемом 4900 м³ на примере резервуара №7.
Рассмотрены все виды работ, проводимых в ходе реконструкции резервуара: подготовительные, демонтажные, монтажные – и с целью уменьшения трудозатрат и материальных вложений предложен ряд решений по их проведению, а также ряд конструктивных решений: установка резервуара с переменной толщиной стенки позволяет снизить металлозатраты, не снижая при этом прочностные характеристики резервуара.
Рассчитаны реальные характеристики сборных элементов конструкции резервуара (поясов), проведена необходимая проверка на прочность и устойчивость. В соответствии с исходными требованиями производственного задания, выбран материал деталей, полностью осуществлен и закреплен за проектом выбор методики проведения монтажных работ.Проведен анализ и прогнозирование изменения состояния окружающей среды под воздействием реконструируемого объекта.
Реконструкция резервуарного парка путем замены резервуаров с увеличением объемной характеристики до 4900 м³ полностью обеспечитнеобходимую емкость для хранения полного объема перерабатываемого продукта на территории предприятия с достаточным запасом для дальнейшего наращивания мощности производства.
В выпускной квалификационной работе (ВКР) предлагаются к использованию самые современные и технологичные материалы и оборудование.
Проведение комплекса предложенных в работе мер по замене резервуара №7обеспечит достижение всех поставленных целей: необходимогоувеличения объемной характеристики товарного резервуарного парка, располагающегося на территории НПЗ, а также повышения уровня экологической и промышленной безопасности предприятия.
СПИСОК ИСПОЛЬЗУЕМЫХ ИСТОЧНИКОВ
1 СП 131.13330.2012. Свод правил. Строительная климатология. Актуализированная редакция СНиП 23-01-99*. [Текст] – М.: Издательство стандартов, 2001. – 116 с.
2 СП 50.13330.2012. Тепловая защита зданий. Актуализированная редакция СНиП 23-02-2003. [Текст] – утв. Приказом Минрегиона России от 30.06.2012 г. N 265. – М.: Минрегион России, 2012. – 100 с.
3 СП 20.13330.2011. Свод правил. Нагрузки и воздействия. Актуализированная редакция СНиП 2.01.07-85*. [Текст] – утв. Приказом Минрегиона РФ от 27.12.2010 N 787 – 96 с.
4 СП 14.13330.2014. Свод правил. Строительство в сейсмических районах. СНиП II-7-81*. [Текст] – утв. Приказом Минстроя России от 18.02.2014 N 60/пр. – 131 с.
5 ГОСТ 10227-86. Топлива для реактивных двигателей. Технические условия. [Текст] – М.: Стандартинформ, 1987. – 15 с.
6 ГОСТ 1510-84. Нефть и нефтепродукты. Маркировка, упаковка, транспортирование и хранение. [Текст] – М.: Стандартинформ, 1986. – 34 с.
7 ПБ 03-605-03. Правила устройства вертикальных цилиндрических стальных резервуаров для нефти и нефтепродуктов. [Текст] – утв. Постановлением Госгортехнадзора РФ от 09.06.2003 г., N 76. – 173 с.
8 ПБ 09-560-03. Правила промышленной безопасности нефтебаз и складов нефтепродуктов. [Текст] – утв. Постановлением Госгортехнадзора РФ от 20.05.2003г., N 33. – 63 с.
9 ГОСТ 14202-69. Трубопроводы промышленных предприятий. Опознавательная окраска, предупреждающие знаки и маркировочные щитки. [Текст] – М.: ИЗДАТЕЛЬСТВО СТАНДАРТОВ, 1970. – 17 с.
10 СНиП 2.11.03-93. Склады нефти и нефтепродуктов. Противопожарные нормы. – М.,1993. – 49 с.
11 ГОСТ 10354-82. Пленка полиэтиленовая. Технические условия. [Текст] – М.: Стандартинформ, 1983. – 23 с.
12 СНиП 2.02.01-83*. Основания зданий и сооружений. [Текст] – М., 1985. – 126 с.
13 ГОСТ 31385-2008. Резервуары вертикальные цилиндрические стальные для нефти и нефтепродуктов. Общие технические условия. [Текст] – М.: Стандартинформ, 2010. – 58 с.
14 ПБ 03-381-00. Правила устройства вертикальных цилиндрических стальных резервуаров для нефти и нефтепродуктов. [Текст] – утв. Постановлением Госгортехнадзора РФ от 27.09.2000 г., N 55, ред. от 21.11.2002
15 НехаевГ. А. Проектированиеирасчётстальныхцилиндрическихрезервуаровигазгольдеровнизкогодавления [Текст]/ Г. А. Нехаев.– м.: ACB, 2005. – 216 с.
16 ГОСТ 19903-74. Прокат листовой горячекатаный. Сортамент. [Текст] – М.: ИПК ИЗДАТЕЛЬСТВО СТАНДАРТОВ, 1976. – 19 с.
17 СП 155.13130.2014. Склады нефти и нефтепродуктов. Требования пожарной безопасности. [Текст] – утв. приказом МЧС России от 26.12.2013 г., N 837 – 55 с.
18 ГОСТ Р 53324-2009. Ограждения резервуаров. Требования пожарной безопасности. [Текст] – М.: Стандартинформ, 2009. – 11 с.
19 СП 28.13330.2012. Свод правил. Защита строительных конструкций от коррозии. Актуализированная редакция СНиП 2.03.11-85. [Текст] – утв. Приказом Минрегиона России от 29.12.2011 г., N 625. – 99 с.
20 ГОСТ 6465-76. Эмали ПФ-115. Технические условия. [Текст] – М.: ИПК ИЗДАТЕЛЬСТВО СТАНДАРТОВ, 1977. – 14 с.
21 СП 63.13330.2012. Бетонные и железобетонные конструкции. Основные положения. [Текст] – утв. приказом Министерства регионального развития Российской Федерации (Минрегион России) от 29 декабря 2011 г. N 635/8. – 168 с.
22 ГОСТ 12.1.018-93. Система стандартов безопасности труда. Пожаровзрывобезопасность статического электричества. Общие требования. [Текст] – М.: МЕЖГОСУДАРСТВЕГГЫЙ СОВЕТ ПО СТАНДАРТИЗАЦИИ, МЕТРОЛОГИИ И СЕРТИФИКАЦИИ, 1995. – 7 с.
23 СП 36.13330.2012. Свод правил. Магистральные трубопроводы. Актуализированная редакция СНиП 2.05.06-85*. [Текст] – утв. Приказом Госстроя от 25.12.2012 г., N 108/ГС. – 97 с.
24 СП 16.13330.201. – Свод правил. Стальные конструкции. Актуализированная редакция СНиП II-23-81*. [Текст] – утв. Приказом Минрегиона РФ от 27.12.2010 г., N 791 – 177 с.
25 ВУПП-88. Ведомственные нормы технологического проектирования. Ведомственные указания по противопожарному проектированию предприятий, зданий и сооружений нефтеперерабатывающей и нефтехимической промышленности. [Текст] – утв. Приказом Миннефтехимпром СССР от 17 августа 1979 г. N 726.
26 РД 153-39.4-078-01. – Правила технической эксплуатации резервуаров магистральных нефтепроводов и нефтебаз. РД 153-39.4-078-01. [Текст] – утв. Минэнерго РФ 06.03.2001. – 28 с.
27 ГОСТ 23407-78. Ограждения инвентарные строительных площадок и участков производства строительно-монтажных работ. Технические условия. [Текст] – М.: ИПК ИЗДАТЕЛЬСТВО СТАНДАРТОВ, 1979. – 7 с.
28 СП 70.13330.2012. Свод правил. Несущие и ограждающие конструкции. Актуализированная редакция СНиП 3.03.01-87. [Текст] – утв. Приказом Госстроя от 25.12.2012 г., N 109/ГС. – 205 с.
29 ТТК 07.22.09. Устройство бетонной подготовки под монолитное днище в кольцевой фундамент. [Текст] – 14 с.
30 Лапшин, А. А. Конструирование и расчѐт вертикальных цилиндрических резервуаров низкого давления: учебное пособие [Текст] / А. А. Лапшин, А. И. Колесов, М. А. Агеева; Нижегород. гос. архит.-строит. ун-т. – Н. Новгород, ННГАСУ, 2009. – 122 с.
31 ВСН 311-89. Монтаж стальных вертикальных цилиндрических резервуаров для хранения нефти и нефтепродуктов объемом от 100 до 50000 м³. [Текст] – утв. Минмонтажспецстроем СССР 30.10.1989 г. – 34 с.
32 СНиП 21-01-97*. Пожарная безопасность зданий и сооружений. [Текст] – утв. Минстрой России 13.02.1997 г. – 50 с.
33 НПБ 104-03. Системы оповещения и управления эвакуации людей при пожарах в зданиях и сооружениях. [Текст] – утв. Приказом МЧС РФ от 20.06.2003 г., N 323, ред. от 07.02.2008. – 16 с.
СПИСОК СОКРАЩЕНИЙ
НПЗ – нефтеперерабатывающий завод.
ЭЛОУ -– электрообессоливающая установка.
АГФУ – газофракционирующая установка.
ТУ – технические условия.
ЛВЖ – легковоспламеняющиеся жидкости.
ГЖ – горючие жидкости.
ВКР – выпускная квалификационная работа.
ПРИЛОЖЕНИЕ 1
Ситуационный план НПЗ (М 1:10000)
ПРИЛОЖЕНИЕ 2
Общий вид резервуара
1 – стенка; 2 – днище; 3 – крыша; 4 – лестница;
5 – площадка на крыше; 6 – люки, штуцера и патрубки в стенах и крыше
ПРИЛОЖЕНИЕ 3
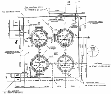
Генеральный план резервуарного парка (М 1:500)
1 – резервуар №5; 2 – резервуар №6; 3 – резервуар №7;
-
– резервуар №8; 5 – резервуар №9
ПРИЛОЖЕНИЕ 4
План схема резервуарной группы
3












