ДИПЛОМНЫЙ ПРОЕКТ (1231904), страница 6
Текст из файла (страница 6)
Габаритные размеры торцевых областей зон защиты h01, h02, r01, r02, rx1, rx2 определяются по тем же формулам, что и для зон защиты обоих типов одиночного стержневого молниеотвода.
Зона защиты одиночного стержневого молниеотвода высотой h представляет собой круговой конус, вершина которого находится на высоте h0<h. На уровне земли зона защиты образует круг радиусом r0. Горизонтальное сечение зоны защиты на высоте защищаемого сооружения hx представляет собой круг радиусом rx.
Рисунок 4.8 Зона зашиты двух стержневых молниеотводов разной высоты
Зоны защиты одиночных стержневых молниеотводов высотой h150 м имеют следующие габаритные размеры.
Зона Б:
h0 = 0,92h; (4.1)
r0 = 1,5h; (4.2)
rx =1,5(h — hx/0,92). (4.3)
Ожидаемое количество поражений N молнией в год производится по формулам:
где n – среднегодовое число ударов молнии в 1 км2 земной поверхности в месте нахождения здания или сооружения, 1/(км2·год);
- для зданий и сооружений прямоугольной формы
где n – среднегодовое число ударов молнии в 1 км2 земной поверхности в месте нахождения здания или сооружения, 1/(км2·год); A – длина объекта, м;B – ширина объекта, м.
Выбор типа зоны защиты осуществляется в соответствии с [1] в зависимости от назначения, географического местоположения, классов взрыво- и пожароопасности защищаемого объекта, а также с учетом средней продолжительности гроз в год.
Исходные данные для расчета зоны защиты одиночного стержневого молниеотвода сведены в таблице 4.3.
Таблица 4.3
Данные для расчета зоны защиты одиночного стержневого молниеотвода
| Обозначение параметра | Наименование параметра | Ед. изм. | Значение параметра | Источник |
| A | Длина объекта | м | 50.00 | Технические условия |
| B | Ширина объекта | м | 25.00 | Технические условия |
| hX | Высота объекта | м | 12.00 | Технические условия |
| n | Удельная плотность ударов молнии в землю | 1/км2·год | 2.00 | [2] |
| tCP | Средняя продолжительность гроз в год | час | 20.0 | [2] |
По формулe (4.4) получаем ожидаемое количество поражений молнией в год N=0,0214504 шт/год.
В зависимости от N и tCP из [1] определяем требуемый тип зоны молниезащиты (зона Б).
Принимая расчетную высоту первого молниеотвода равной 22,00 метра в соответствии с (4.1) - (4.3), получаем
Принимая расчетную высоту второго молниеотвода равной 25,00 метра в соответствии с (4.1) - (4.3), получаем
Габаритные размеры внутренней области зоны защиты определяются по формулам:
где значения hc1 и hc2 вычисляются по формулам:
Зона Б:
при h < L 6h
Зона защиты двойного стержневого молниеотвода с указанием размеров приведена на рисунке 4.9.
Таким образом, с учетом выбранной зоны защиты «Б», получаем:
20,24 – 0,14(32,5 – 22) = 18,70 м;
23 – 0,14(32,5 – 25) = 21,90 м;
35,25(20,3 -12)/20,3 = 14,41 м.
При проверке защищенности объекта проверяется соблюдение условий (4.9) – (4.11).
A=50,00<L=32,50 или
/2=15,26<
=16,20.
Условия (4.9) – (4.11) соблюдены.
Рисунок 4.9 Зона защиты двойного стержневого молниеотвода с размерами:
1 - граница зоны защиты на уровне hx; 2 -то же на уровне земли
4.2.2 Расчет зоны защиты двойного стержневого молниеотвода разной высоты сортивного комплекса (крыло поперек улицы Герасимова)
Аналогично выполняется расчет для другого крыла
Исходные данные для расчета зоны защиты одиночного стержневого молниеотвода сведены в таблице 4.4.
Таблица 4.4
Данные для расчета зоны защиты одиночного стержневого молниеотвода
| Обозначение параметра | Наименование параметра | Ед. изм. | Значение параметра | Источник |
| A | Длина объекта | м | 55.00 | Технические условия |
| B | Ширина объекта | м | 25.00 | Технические условия |
| hX | Высота объекта | м | 12.00 | Технические условия |
| n | Удельная плотность ударов молнии в землю | 1/км2·год | 2.00 | [2] |
| tCP | Средняя продолжительность гроз в год | час | 20.0 | [2] |
По формулe (4.4) получаем ожидаемое количество поражений молнией в год N=0,0224204 шт/год.
В зависимости от N и tCP из [1] определяем требуемый тип зоны молниезащиты (зона Б).
Принимая расчетную высоту первого молниеотвода равной 22,00 метра в соответствии с (4.1) - (4.3), получаем
Принимая расчетную высоту второго молниеотвода равной 25,00 метра в соответствии с (4.1) - (4.3), получаем
Таким образом, с учетом выбранной зоны защиты «Б», с учетом (4.12) - (4.15), получаем:
20,24 – 0,14(37,5 – 22) = 17,96 м;
23 – 0,14(37,5 – 25) =21,16 м;
35,25(19,56 -12)/19,56 =13,63 м.
При проверке защищенности объекта проверяется соблюдение условий (4.9) - (4.11).
A=55,00<L=37,50 или
/2=15,26<
=16,20.
Условия соблюдены.
Зона защиты двойного стержневого молниеотвода с указанием размеров приведена на рисунке 4.10.
Рисунок 4.10 Зона защиты двойного стержневого молниеотвода с размерами: 1 - граница зоны защиты на уровне hx; 2 -то же на уровне земли
4.2.3 Расчет зоны защиты одиночного стержневого молниеотвода здания административного корпуса ДВГУПС
Исходные данные для расчета зоны защиты одиночного стержневого молниеотвода сведены в таблице 4.5
Таблица 4.5
Данные для расчета зоны защиты одиночного стержневого молниеотвода
| Обозначение параметра | Наименование параметра | Ед. изм. | Значение параметра | Источник |
| A | Длина объекта | м | 25.00 | Технические условия |
| B | Ширина объекта | м | 20.00 | Технические условия |
| hX | Высота объекта | м | 12.00 | Технические условия |
| n | Удельная плотность ударов молнии в землю | 1/км2·год | 2.00 | [2] |
| tCP | Средняя продолжительность гроз в год | час | 20.0 | [2] |
По формулe (4.4) получаем ожидаемое количество поражений молнией в год N=0,0156304 шт/год.
В зависимости от N и tCP из [1] определяем требуемый тип зоны молниезащиты (зона Б).
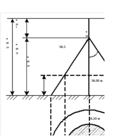
Принимая расчетную высоту молниеотвода равной 24,00 метров в соответствии с (4.1) - (4.3), получаем
При проверке защищенности объекта проверяется соблюдение условия
<16,20, условие соблюдено.
Зона защиты одиночного стержневого молниеотвода с указанием размеров приведена на рисунок 4.11.
Рисунок 4.11 Зона защиты одиночного















