ДИПЛОМНЫЙ ПРОЕКТ (1231904), страница 5
Текст из файла (страница 5)
Расчетные формулы (4.1) - (4.3) пригодны для молниеотводов высотой до 150 м. При более высоких молниеотводах следует пользоваться специальной методикой расчета.
Ожидаемое количество поражений N молнией в год производится по формулам:
где n – среднегодовое число ударов молнии в 1 км2 земной поверхности в месте нахождения здания или сооружения, 1/(км2·год);
для зданий и сооружений прямоугольной формы
где n – среднегодовое число ударов молнии в 1 км2 земной поверхности в месте нахождения здания или сооружения, 1/(км2·год); A – длина объекта, м; B – ширина объекта, м.
Выбор типа зоны защиты осуществляется в соответствии с [1] в зависимости от назначения, географического местоположения, классов взрыво- и пожароопасности защищаемого объекта, а также с учетом средней продолжительности гроз в год.
Исходные данные для расчета зоны защиты одиночного стержневого молниеотвода сведены в таблице 4.1.
Таблица 4.1
Данные для расчета зоны защиты одиночного стержневого молниеотвода
| Обозначение параметра | Наименование параметра | Ед. изм. | Значение параметра | Источник |
| A | Длина объекта | м | 35.00 | Технические условия |
| B | Ширина объекта | м | 25.00 | Технические условия |
| hX | Высота объекта | м | 28.00 | Технические условия |
| n | Удельная плотность ударов молнии в землю | 1/км2·год | 2.00 | [2] |
| tCP | Средняя продолжительность гроз в год | час | 20.0 | [2] |
По формулe (4.4) получаем ожидаемое количество поражений молнией в год N=0,0662844 шт/год.
В зависимости от N и tCP из [1] определяем требуемый тип зоны молниезащиты (зона Б).
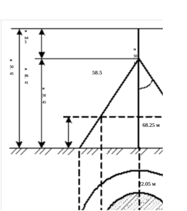
Принимая расчетную высоту молниеотвода равной 45,50 метров в соответствии с (4.1) - (4.3), получаем
При проверке защищенности объекта проверяется соблюдение условия
<22,05, условие соблюдено.
Зона защиты одиночного стержневого молниеотвода с указанием размеров приведена на рисунке 4.3.
Рисунок 4.3 Зона защиты одиночного стержневого
молниеотвода с размерами
4.1.2 Расчет зоны защиты двойного стержневого молниеотвода одинаковой высоты лабораторного корпуса
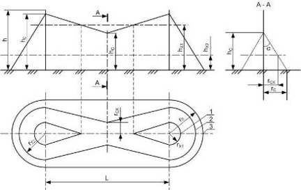
Зона защиты двойного стержневого молниеотвода высотой h150 м представлена на рисунке 4.4.
По степени надежности защиты различают два типа зон:
- А - степень надежности защиты превышает 99,5%;
- Б - степень надежности защиты составляет 95-99,5%.
Торцевые области зоны защиты определяются как зоны одиночных стержневых молниеотводов, габаритные размеры которых h0, r0, rx1, rx2 определяются по следующим формулам для обоих типов зон защиты:
где rX – радиус горизонтального сечения на высоте защищаемого объекта, м;
hX – наибольшая высота защищаемого сооружения, м.
для зоны Б
где rX – радиус горизонтального сечения на высоте защищаемого объекта, м;
hX – наибольшая высота защищаемого сооружения, м.
Расчетные формулы (4.1) - (4.3) пригодны для молниеотводов высотой до 150м. При более высоких молниеотводах следует пользоваться специальной методикой расчета.
Ожидаемое количество поражений N молнией в год производится по формулам:
- для зданий и сооружений прямоугольной формы
где n – среднегодовое число ударов молнии в 1 км2 земной поверхности в месте нахождения здания или сооружения, 1/(км2·год); A – длина объекта, м;B – ширина объекта, м.
Выбор типа зоны защиты осуществляется в соответствии с [1] в зависимости от назначения, географического местоположения, классов взрыво- и пожароопасности защищаемого объекта, а также с учетом средней продолжительности гроз в год.
Исходные данные для расчета зоны защиты двойных стержневых молниеотводов равной высоты сведены в таблице 4.2.
Таблица 4.2.
Данные для расчета зоны защиты двойного стержневого молниеотвода равной высоты
| Обозначение параметра | Наименование параметра | Ед. изм. | Значение параметра | Источник |
| A | Длина объекта | м | 80.00 | Технические условия |
| B | Ширина объекта | м | 25.00 | Технические условия |
| hX | Высота объекта | м | 14.00 | Технические условия |
| n | Удельная плотность ударов молнии в землю | 1/км2·год | 2.00 | [2] |
| tCP | Средняя продолжительность гроз в год | час | 20.0 | [2] |
По формулe (4.4) получаем ожидаемое количество поражений молнией в год N=0,0327336 шт/год.
В зависимости от N и tCP из [1] определяем требуемый тип зоны молниезащиты (зона Б).
Принимая расчетную высоту молниеотвода равной 45,50 метров в соответствии с (4.1)-(4.3), получаем
1,5·(45,50-1,1·14,00)=45,15 м.
Рисунок 4.4 Зона защиты двойного стержневого молниеотвода:
1 - граница зоны защиты на уровне hx1; 2 -то же на уровне hx2,
3 -то же на уровне земли
Внутренние области зон защиты двойного стержневого молниеотвода имеют следующие габаритные размеры.
Зона Б:
при h < L 6h
Таким образом, с учетом выбранной зоны защиты «Б», получаем:
41,86 – 0,14(75 – 45,5) = 37,52 м;
68,25(37,52 – 14)/37,52 = 42,79 м.
При проверке защищенности объекта проверяется соблюдение условий
A=80,00<L=75,00 или
/2=12,75<
=45,15.
Условия (4.9) – (4.11) соблюдены.
Зона защиты двойного стержневого молниеотвода с указанием размеров приведена на рисунке 4.5.
Рисунок 4.5 Зона защиты двойного
стержневого молниеотвода с размерами:
1 - граница зоны защиты на уровне hx1; 2 -то же на уровне hx2,
3 -то же на уровне земли
Зоны покрытия молниеотводов лабораторного корпуса представлены на рисунке 4.6.
Рисунок 4.6 Зоны покрытия молниеотводов лабораторного корпуса
Здание лабораторного корпуса полностью защищено.
4.2 Оборудование средствами молниезащиты зданий спортивного комплекса ДВГУПС
Спортивный комплекс состоит из двух зданий: спортивный комплекс и легкоатлетический манеж. К манежу пристроено здание административного корпуса, поэтому они рассматриваются как единое здание. Каждое здание оборудуется многократным стержневым молниеотводом, которая определяется как зона защиты попарно взятых соседних стержневых молниеотводов. Схема зон защиты спортивного комплекса представлена на рисунке 4.7.
Здания спортивного комплекса разбиваются на 3 зоны защиты:
Зона защиты №1 - Спортивный комплекс (крыло вдоль улицы Герасимова)
Зона защиты №2 - Спортивный комплекс (крыло поперек улицы Герасимова)
Зона защиты №3 - Здание административного комплекса
Зона защиты №4 - легкоатлетический манеж
Зона защиты №5 - легкоатлетический манеж и здание административного корпуса.
Рисунок 4.7 Схема зон защиты зданий спортивного комплекса
4.2.1 Расчет зоны защиты двойного стержневого молниеотвода разной высоты спортивного комплекса (крыло вдоль улицы Герасимова)
Зона защиты двух стержневых молниеотводов разной высоты h1, и h2 150 м приведена на рисунке 4.8.
По степени надежности защиты различают два типа зон:
А - степень надежности защиты превышает 99,5%;
Б - степень надежности защиты составляет 95-99,5%.















