пояснительная записка_ред (1228824), страница 15
Текст из файла (страница 15)
Для очистки воздуха от смачиваемой пыли различных видов, кроме цементирующейся и волокнистой, используют скоростные промыватели.
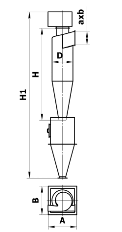
Циклоны предназначены для сухой очистки воздуха от невзрывоопасной неслипающейся пыли. Циклоны ЦН-15 применяют также для очистки воздуха в различных отраслях промышленности. При использовании циклонов для очистки газа или воздуха, содержащих абразивную пыль, рекомендуется предусматривать в местах, подвергающихся износу (нижняя часть корпуса, входная часть улитки) приварку дополнительных стальных листов с наружной стороны.
Циклоны диаметром менее 800 мм из-за повышенного износа не следует применять для улавливания абразивной пыли. Циклоны устанавливают как на всасывающей, так и нагнетательной стороне вентилятора. При абразивной пыли циклоны рекомендуется ставить перед вентилятором.
| Класс пылеуловителя | Размеры эффективно улавливаемых пылевых частиц, мкм, долее | Группа пыли по дисперсности | Эффективность, % по массе пыли |
| I | 0.3-0.5 | V IV | 99.9-80 |
| II | 2 | III IV | 99.9-92 92-45 |
| III | 4 | II III | 99.9-99 99-80 |
| IV | 8 | I II | |
| V | 20 | I | |
Классификация пыли по группам дисперсности: I- очень крупная пыль, II- крупная, III- средняя по крупности, IV- мелкая, V-очень мелкая.
Простейшими пылеуловителями являются пылеосадочные камеры, применяемые при больших концентрациях крупной пыли. Скорость движения частиц по горизонтали принимают не более 0,6 м/с.
Пылегазовая смесь подается в циклон к внутренней поверхности цилиндрической части корпуса со скоростью до 25 м/с и вместе с пылью движется внутри циклона по винтовой линии сверху вниз. Частицы пыли под действием центробежных сил прижимаются к внутренним стенкам и далее под воздействием газового потока и силы тяжести движутся по спирали сверху вниз, где разгружаются через специальный насадок в конической части циклона. Очищенный от пыли воздух удаляется через осевой патрубок в верхней части циклона. Эффективность очистки воздуха в циклонах составляет 60—80 %.
-
Рукавные фильтры
В 80-е годы при положительных температурах в рабочих цехах применялась система пылеочистки в пылеуловителях вентиляционных мокрых ПВМ-10, ПВМ-20. Эти системы улавливали более 90-% пыли, дальнейшее их использование стало невозможным, поскольку стало невозможным поддержание положительных температур в рабочих цехах.
Простой мокрый пылеуловитель представляет собой цилиндроконический резервуар, заполненный водой, через которую проходит запыленный воздух, подаваемый по центральной трубе. Проходя через слой воды, воздух освобождается от пыли и удаляется через патрубок в верхней части корпуса пылеуловителя. Пыль осаждается, скапливаясь в конической части пылеуловителя, и выводится в виде шлама через разгрузочный патрубок. Фильтры используют для улавливания мелкой пыли.
Эти системы улавливали более 90-% пыли, дальнейшее их использование стало невозможным, поскольку стало невозможным поддержание положительных температур в рабочих цехах.
В этом отношении хорошо себя показывают рукавные фильтра, улавливающие больше 90% пыли, и они используются, но применение их, где происходит активное орошение или перерабатываемая продукция увлажненная, затруднительно из-за забивания матерчатых рукавов увлажненной пылью.
циклоны ЦН-15(15 - угол наклона входного патрубка относительно горизонтали(град.), которые относятся к пылеуловителям инерционного типа и предназначены для улавливания пыли. Пылегазовая смесь подается в циклон к внутренней поверхности цилиндрической части корпуса со скоростью до 25 м/с и вместе с пылью движется внутри циклона по винтовой линии сверху вниз. Частицы пыли под действием центробежных сил прижимаются к внутренним стенкам и далее под воздействием газового потока и силы тяжести движутся по спирали сверху вниз, где разгружаются через специальный насадок в конической части циклона. Очищенный от пыли воздух удаляется через осевой патрубок в верхней части циклона. Эффективность очистки воздуха в циклонах составляет 60—80 %. На эффективность работы ЦН-15 существенное влияние оказывает режим работы аппарата. Для обеспечения наиболее высоких показателей очистки газов режим работы ЦН должен быть стабильным. Изменение в расходе газов не должно :
-
превышать 10-12%.рис. Циклон ЦН-15
-
Батарейный циклон ЦБ 25. Характеристики:
-
Номинальная производительность- 14000 м3/ч
-
Коэффициент очистки- 80%
-
Расчетная температура на входе- 300 С
Рисунок.
Батарейный циклон ЦБ 25 применяется для очистки запыленных газов или воздуха от твердых частиц неслипающейся пыли или золы с размерами частиц более 5 мкм.
Циклонные элементы ЦБ состоят из полых цилиндрических корпусов с конусной частью внизу и входными патрубками с аппаратами закручивания - полуулитками. Внутри элементов вертикально установлены выхлопные патрубки.
Циклон ЦБ 25 делится на три части: верхняя камера очищенных газов, средняя камера запылённых газов, нижняя - бункер сбора пыли.
Циклонные элементы в циклоне ЦБ-25 устанавливаются ступенчато по ходу движения газов так, что входные патрубки циклонных элементов последующего ряда располагаются ниже предыдущего. Нижние крышки входных патрубков последнего по ходу газа ряда циклонных элементов являются частью нижней трубной доски, что обеспечивает вынос пыли, осевшей на нижней трубной доске. На верхней крышке циклона установлен взрывной клапан.
Очищаемая газовая среда со скоростью около 20-25 м/с через входной патрубок подается в циклон ЦБ 25, равномерно распределятся по циклонным элементам и движется в спирально - вращательном режиме. Вследствие инерционных сил, частички золы оседают на стенках аппарата, затем захваченные вторичным потоком воздуха попадают в нижнюю часть циклона и отводятся в бункер. Очищенная газовая среда отводится через внутреннюю трубку циклона, проходит вверх и попадает в атмосферу.
Рис. Батарейный Циклон ЦБ 25
Особенностью циклона ЦБ 25 является то, что он не имеет отключаемых секций, пылевой поток проходит через все циклонные элементы блока, не разделяясь. Поэтому данный циклон не имеет регулировки по производительности, в зависимости от нагрузки котла. То есть данный вид циклона не эффективен при применении на группу котлов и устанавливается только на одну котельную установку.
Циклон ЛТА
Циклоны ЛТА применяются для очистки воздуха при транспортировании от станков и пилорам крупных частиц (щепа, стружка) и влажных мелких частиц (опилки) или в технологическом процессе для отделения крупной щепы. Также циклоны ЛТА используются в качестве циклонов-разгрузителей. Эффективность очистки воздуха составляет 85 ÷ 90%.
При транспортировании сухой стружки или опилок, когда образуется много мелкодисперсной пыли, или при наличии в транспортируемом материале шлифовальной пыли данный циклон не обеспечивает достаточной очистки воздуха и требует второй ступени очистки.
Преимущества циклонов:
-
простота устройства, обслуживания и низкая цена по сравнению с рукавными фильтрами
-
отсутствие подвижных частей
-
постоянное гидравлическое сопротивление
-
Недостатки циклонов:
-
недостаточная эффективность очистки запыленного воздуха
КОТЕЛЬНАЯ. Циклоны предназначены для очистки запыленных газов или воздуха от твердых частиц неслипающейся пыли или золы с размерами частиц более 5 мкм.Циклоны могут применяться для улавливания:
золы в промышленных котельных и на тепловых электростанциях;
угольной пыли в сушильных установках обогатительных фабрик и системах промышленной вентиляции;
неслипающейся пыли в различных отраслях хозяйства.
Циклоны изготовлены для эксплуатации в помещениях и вне помещений под навесом при температуре воздуха от минус 600 до + 400С.
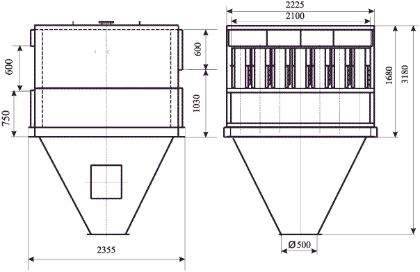
Циклон (приложение 3) состоит из сварного корпуса 1, в котором установлены ряды параллельно расположенных циклонных элементов 2 с полуулиточным вводов газов в них. Верхними 3 и нижними 4 трубными досками циклон делится на три части: верхнюю камеру очищенных газов 5, среднюю камеру запыленных газов 6, нижнюю – бункер сбора пыли 7.
Циклонные элементы состоят из полых цилиндрических корпусов 8 с конусной частью внизу и входными патрубками 9 с аппаратами закручивания. Внутри элементов вертикально установлены выхлопные патрубки 10.
С целью ликвидации тупикового очага отражений в камере запыленных газов, задняя стенка 11 совмещается с кромками входных патрубков элементов последнего по ходу газа ряда.
Циклонные элементы в циклоне устанавливаются ступенчато по ходу движения газов так, что входные патрубки циклонных элементов последующего ряда располагаются ниже предыдущего.
Нижние крышки входных патрубков последнего по ходу газа ряда циклонных элементов являются частью нижней трубной доски, что обеспечивает вынос пыли, осевшей на нижней трубной доске.
На верхней крышке циклона установлен взрывной клапан.
Присоединение циклона должно быть газоплотным, с обязательным уплотнением асбестовым картоном или шнуром в случае фланцевого соединения.
Циклон опирается на опорный пояс.
Дымовой газ поступает во входное окно циклона и засасывает во входные патрубки циклонных элементов. Под действием гравитационных и центробежных сил их потока запыленного газа сепарируется частицы золы, которые ожидаются в бункере-накопителе. Зола периодически удаляется обслуживающим персоналом через шибер или другие устройства для выгрузки. Очищенный газ отводится от циклона через выходное окно.
ПОДГОТОВКА ЦИКЛОНА К РАБОТЕ.
Циклон рекомендуется устанавливать внутри помещения котельной во избежание резких перепадов температур и образования конденсата. Допускается установка циклона как непосредственно за котлом, так и на относительном удалении по газовому тракту до дымососа. При установке циклона должна быть обеспечена беспрепятственная выгрузка золы из бункера.
Рукавные фильтры - предназначены для улавливания тонкой пыли. Эффективность пылеулавливания до 99 %. Чаще всего их применяют для окончательной очистки воздуха после циклонов. Рукавные фильтры являются аппаратами периодического действия. Рукавный фильтр представляет камеру, разделенную поперечными перегородками на ряд секций. По высоте каждая секция горизонтальной перемычкой разделена на верхнюю вакуумную камеру и нижнюю камеру, являющуюся приемником для пыли. Работа рукавного фильтра показана в приложении 4.
Описание работы.
Воздух, содержащий твердые загрязняющие частицы, проходя через входной клапан, делится на несколько потоков и поступает во входные каналы. Далее воздух поступает в бункера, где под влиянием силы тяжести осаждаются крупные частицы пыли. Загрязненный воздух поступает наверх, в корпус фильтра к вертикально подвешенным фильтрованным рукавам. Проходя через них в камеру чистого воздуха, воздух фильтруется. Из камеры чистого воздуха через выходные клапана воздух попадает выходной канал и далее выходит из фильтра.
Проходя через фильтрованные рукава, на их внешней поверхности частицы пыли улавливаются и образуют сплошной слой пыли, который регулярно устраняется импульсной регенерацией. Сама регенерация осуществляется короткими импульсами сжатого воздуха, который подается внутрь фильтровальных элементов из отверстий продувочной трубы. Под воздействием импульса сжатого воздуха на внутреннюю сторону происходит отрыв осажденного слоя пыли от внешней поверхности рукава. Пыль падает в разрузочную воронку, далее через шлюзовой питатель пыль удаляется из фильтра. Регенерацию, а именно частоту и длину импульса обеспечивают быстродействующие мембранные клапаны, которые управляются с помощью блока управления регенирации через соленоидные клапаны. Режим регенерации можно настроить на два вида работ регенерация по перепаду давления и регенерация по таймеру. для работы системы регенерации необходим сжатый воздух с давлением 5-8 бар, не содержащий масло и механических примесей, а также осушенный с точкой росы минус 400 С. Для рукавов используется фильтрованная ткань.
4.11.4 Аспирация
Одним из способов обеспылевания на ОАО «ККК» в дробильных цехах является местная вытяжная вентиляция — аспирация.
Аспирация (обеспыливающая вентиляция) предназначена для удаления запыленного воздуха из-под укрытий транспортно-технологического оборудования и рабочей зоны. Для устранения пылевыделений используются системы аспирации с разветвленной сетью воздуховодов и газоочистным оборудованием. Назначением системы аспирации является предотвращение распространения вредных выбросов от источника в воздух рабочей зоны. Основным отличием данного типа вентиляции от других является большой угол наклона воздуховодов для предотвращения образования застойных зон и высокая скорость воздушного потока.
Оборудование источников пылевыделения укрывают кожухами даже без применения вентиляторов (рис. ) позволяет снизить количество пыли, выделяющейся в производственное помещение на 90% .
Для того чтобы запыленный воздух потерял скорость, внутри местного укрытия необходимо создать разрежение, в 1,5—2 раза превышающее скоростной напор пылевого потока. При этих процессах пыль уходит вниз
| Рис. 1. Общий вид укрытия щековых дробилок типов ШДС и СМД. 1 — фартук; 2 — щиток; 3 — аспирационная воронка; 4 — дробилка; 5 — питатель |
При этом следует учитывать, что во избежание просасывания больших количеств излишнего воздуха через неплотности для создания такого разрежения необходимы: герметизация оборудования, установка грузовых питателей (мигалок) на течке для выгрузки материала , соединяющей загрузочную и разгрузочную течки, применение кожухов в месте падения материала на транспортер и др. Выполнение таких мероприятий позволяет уменьшить необходимое количество отсасываемого воздуха в 2—4 раза.















