1) ВКР - Исаев А.В. - 2016 (1228491), страница 9
Текст из файла (страница 9)
Рисунок 5.1 – Параметры зоны, свободной от других компьютеров
Необходимо учитывать прохождение естественного освещение через оконный проем, в связи с этим необходимо располагать рабочие места персональных компьютеров пользователя, перпендикулярно оконному проему, рисунок 5.2.
Рисунок 5.2 – Рекомендуемое расположение рабочего места в помещении относительно световых проемов
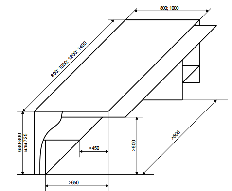
Для обеспечения электробезопасности, необходимо выполнять следующие требования: кабеля электропитания должны проходить вдоль стены, не создавая замкнутый контур вокруг пользователя вычислительной техники, рисунок 5.3 – 5.4.
Рисунок 5.3 – Расположение рабочего места относительно стены
с электропроводкой
Рисунок 5.4 – Рядное расположение рабочих мест
Для наиболее компактного расположения рабочих мест в учебных аудиториях, было приято решение, линейно располагать компьютерные столы с ЭВМ, рисунок 5.5.
Рисунок 5.5 – Линейное расположение рабочих мест
Во избежание искривления осанки пользователя, необходимо оборудовать рабочие места, стулом со спинкой, рисунок 5.6.
Рисунок 5.6 – Основные размеры кресла
Рисунок 5.7 – Основные размеры рабочего стола
Выполняя требования пожарной безопасности, требования условий микроклимата, соблюдаются условия СанПиН: 2.2.2.542.-96 «Гигиенические требования к ВДТ и ПЭВМ. Организация работы». Эргономичность рабочего места, необходимо соблюдать для предотвращения нанесения ущерба сотруднику, инженеру, студенту, работающему за персональным компьютером [13].
6 ЭКОНОМИКА
Экономика железнодорожного транспорта, равно как и других видов транспорта исследует проблемы перехода из количества в качество. Структура любой разработки тесно связана с качеством поставляемой продукции. Экономика железнодорожного транспорта, также как и экономика транспорта, является наукой исторической. Она прошла путь от этапа описательного через этап количественного анализа процессов и явлений до современного состояния количественного измерения качества и экономической оценки эффективности в процессе грузопассажирского оборота.
Экономика железнодорожного транспорта как наука исследует условия и разрабатывает практические решения, при выполнении которых выполняется условие соответствия количества к качеству. Экономика железнодорожного транспорта выполняет разработку рекомендаций и научно объясняет темпы развития материально технической базы и определяет оптимальные требования.
Одними из важных составляющих, являются проблемы экономики труда, планирования и научной организации трудового процесса, а также технического нормирования и определения заработной платы работников.
6.1 Показатели оценки экономической эффективности технических решений
Для выявления точной оценки экономической эффективности технического решения, необходимо выявить влияние различных показателей на технико-экономические показатели, в котором внедряемое мероприятие даст наибольший эффект.
Показатели сравнительной экономической эффективности делятся на две составляющие: стоимостные и натуральные.
Показатели сравнительной экономической эффективности используются для сравнения вариантов технических решений и выбора наиболее целесообразного, в понятие которого входит: стоимость технического решения, затраты на модернизацию, обслуживание. По мимо этого в практике экономических расчетов используется расчет абсолютной эффективности.
Показатели экономической эффективности внедрения виртуальной лаборатории по изучению характеристик электрических машин постоянного и переменного использующихся на Дальневосточной Железной Дороге Российской Федерации, представлены в таблице 6.1.
Таблица 6.1 – Показатели экономической эффективности
| Наименование показателя | Описание показателя |
| Стоимость программного обеспечения | Согласно закону Российской Федерации об образовании, технические и программное оснащение должно быть сертифицировано, либо выполнено при использовании лицензионного программного обеспечения |
| Экономический эффект | Эффект от использования собственного программного обеспечения виртуальной лаборатории, взамен возможного использования, сторонних организаций |
| Затраты на модернизацию | Затраты Университета на внедрение программного обеспечения |
| Стоимость технического решения | Затраты на создание виртуальной лаборатории по изучению характеристик электрических машин постоянного и переменного тока |
| Последующее обслуживание | Затраты на обслуживание |
Предварительно, перед началом разработки, необходимо определить на кого будет направлен, разрабатываемый проект. После чего необходимо определить первоначальные затраты на реализацию идеи, а именно:
-
аренда помещения;
-
стоимость потребляемой электроэнергии;
-
необходимое вычислительное оборудование;
-
материально-техническую базу;
-
стоимость выполняемых работ (разработка программного обеспечения).
Первоначально, необходимо определиться со стоимостью выполняемой работы по разработке необходимого программного обеспечения для создания виртуальной лаборатории по исследованию электрических машин постоянного и переменного тока, эксплуатирующийся на Дальневосточной Железной Дороге Российской Федерации, таблица 6.2.
Таблица 6.2 – Затраты на разработку программного обеспечения
| Наименование профессии | Краткое техническое задание | Размер заработной платы, т.руб. | Время выполнения заказа, месяц |
| 1 | 2 | 3 | 4 |
| Веб-дизайнер | Необходимо разработать интерфейс виртуальной лаборатории в сети интернет | 30 | 1 |
| Веб-программист | Используя PHP5, MySQL разработать сайт для доступа к удаленной лаборатории | 45 | 1 |
| Программист | Используя NI LabVIEW and NI Multisim разработать лабораторный комплекс по исследованию характеристик двигателей постоянного и переменного тока, использующихся на ДВЖД РФ | 59 | 2 |
| Дизайнер | Разработать интуитивно понятный интерфейс для облегчения выполнения лабораторных работ | 30 | 1 |
По мимо этого, необходимо составить смету необходимого оборудования, которое потребуется для выполнения работы, а так же для последующей работы с комплексом:
-
материально-техническая база;
-
дополнительное оборудование (освещение, ремонтные работы);
-
программное обеспечение.
Таблица 6.3 – Смета материально-технического обеспечения лаборатории
| Наименование оборудования | Описание | Магазин | Количество, шт (м) | Стоимость одной единицы | ИТОГО |
| 1 | 2 | 3 | 4 | 5 | 6 |
| Компьютер для обучения | |||||
| Системный блок | DEXP Aquilon o126 (Intel Celeron J1800, 2x2410 МГц, 2 Гб, 500 Гб, Win10) | DNS | 20 | 15 490,00р. | 309 800,00р. |
| Монитор | 21,5" DEXP G210 (1920x1080, TN+film, 5 мс, 800:1, 200 кд/м2, 60 Гц, 90/65, VGA, D-Sub, DVI) | DNS | 20 | 6 699,00р. | 133 980,00р. |
| Клавиатура | DEXP K-401BU (проводная, USB, клавиш - 104, механизм клавиш, мембранный) | DNS | 20 | 470,00р. | 9 400,00р. |
| Мышь | DEXP CM-408BU (800 dpi, светодиодная, USB, кнопки - 3) | DNS | 20 | 290,00р. | 5 800,00р. |
| Источник бесперебойного питания | DEXP IEX Pro 650VA | DNS | 20 | 3 099,00р. | 61 980,00р. |
| Вычислительный сервер | |||||
| Монитор | 21,5" DEXP G210 (1920x1080, TN+film, 5 мс, 800:1, 200 кд/м2, 60 Гц, 90/65, VGA, D-Sub, DVI) | DNS | 1 | 6 699,00р. | 6 699,00р. |
| Клавиатура | DEXP K-401BU (проводная, USB, клавиш - 104, механизм клавиш, мембранный) | DNS | 1 | 470,00р. | 470,00р. |
| Мышь | DEXP CM-408BU (800 dpi, светодиодная, USB, кнопки - 3) | DNS | 1 | 290,00р. | 290,00р. |
| Источник бесперебойного питания | DEXP IEX Pro 650VA | DNS | 1 | 3 099,00р. | 3 099,00р. |
| Системный блок | DEXP Mars E113 (AMD FX 4350, 4x3200 МГц, 16 Гб, 1 Тб, NVIDIA GeForce GTX 750 Ti) | DNS | 1 | 49 490,00р. | 49 490,00р. |
| Оборудование аудитории | |||||
| Стол письменный | ИМИДЖ (1600х600х750) арт.СР-5 | Азбука Мебели | 20 | 4 040,00р. | 80 800,00р. |
| Стул офисный | ИЗО (стул офисный) | Азбука Мебели | 20 | 710,00р. | 14 200,00р. |
Составление стоимости программного обеспечения производиться на основе коммерческого использования по версии «Бизнес». Необходимо приобрести лицензионное программное обеспечение таких компаний как: Microsoft, National Instruments, Linux.
На основе законодательства Российской Федерации, коммерческая организация, обязана использовать в работе только лицензированное программное обеспечение, с учетом выполнения всех условий согласно заключенному договору со стороны поставщика и потребителя продукта.
Таблица 6.4 – Стоимость программного обеспечения
| Наименование оборудования | Описание | Магазин | Количество, шт. (м) | Стоимость одной единицы, руб. | ИТОГО, |
| 1 | 2 | 3 | 4 | 5 | 6 |
| Программное обеспечение | |||||
| Windows 10 | Профессиональная | Microsoft | 20 | 11 890,00 | 237 800,00 |
| NI LabVIEW 2014 | Среда графического программирования | National Instruments | 1 | 418 460,00 | 418 460,00 |
| NI Run-Time 14 | Приложение | National Instruments | 20 | 0,00 | 0,00 |
| NI Real-Time | Плагин | National Instruments | 20 | 0,00 | 0,00 |
| NI Control Design and Simulation 14 | Плагин взаимодействия среды программирования со средой моделирования | National Instruments | 1 | 167 384,00 | 167 384,00 |
| NI Multisim 2014 | Среда моделирования | National Instruments | 1 | 350 546,00 | 350 546,00 |
| MS Office 2014 | Полная версия | Microsoft | 20 | 17 299,00 | 345 980,00 |
| Microsoft Security Essentials |
| Microsoft | 20 | 0,00 | 0,00 |
| Debian GNU/Linux | Лицензия GNU | Linux | 1 | 0,00 | 0,00 |
А так же предварительно, необходимо составить смету о выполнении лакокрасочных и ремонтных работ в арендуемом помещении, таблица 6.5.
Таблица 6.5 – Расходы на выполнения ремонта в арендуемом помещении
| Наименование оборудования | Описание | Организация (Лицо) | Стоимость одной единицы, тыс.руб. | ИТОГО, |
| 1 | 2 | 3 | 5 | 6 |
| Ремонт помещения | ||||
| Стоимость материалов | Линолеум, штукатурка, краска, приспособления для ремонта | ООО «Энерго» Назаров А.В. | 350 | 350 |
| Стоимость рабочей силы | Подрядчик, предоставляющий услуги по косметическому ремонту помещений. | ООО «Энерго» Назаров А.В. | 150 | 150 |
6.2 Расчет показателей
Для выполнения расчета по расходу электроэнергии, потребляемой в час, необходимо составить таблицу электроприборов использующихся в лаборатории, таблица 6.6.














