1 архитектура (1222389), страница 5
Текст из файла (страница 5)
Рисунок 1.9- Лестница
1.2.9 Кровля
Кровля – 4 слоя рубероида (верхний слой с крупнозернистой посыпкой) на битумной мастике; армированная стяжка из цементно-песчаного раствора толщиной 30мм; утеплитель – минераловатные плиты «ISOVER» толщиной 150мм; пароизоляция – 1 слой рубероида.
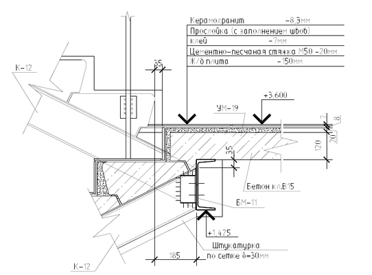
Рисунок 1.10- Узел кровли
1.3 Технико-экономические показатели проекта
Оценку экономичности планировки здания производят по основным показателям: площади застройки, жилой, вспомогательной и общей площади, строительному объёму и относительным показателям К1 и К2.
ПЗ = 500 м2 - площадь застройки, площадь сечения по внешнему обводу на уровне цоколя.
Пп = 423м2 – полезная площадь (сумма площадей всех помещений).
ПО =6500м2 – общая площадь.
Q = 22896 м3 – полный строительный объём здания, равный произведению площади горизонтального сечения на уровне первого этажа на полную высоту здания от чистого пола подвала до верхней плоскости чердачного утеплителя.
Относительные показатели:
- коэффициент рациональности планировки.
- коэффициент рациональности использования объема на единицу полезной площади.
Технико-экономические показатели проектируемого здания сведены в таблицу 1.16.
Таблица 1.16 — Технико-экономические показатели проектируемого здания
| Наименование показателя | Ед. изм. | Значение |
| 1. Площадь застройки | м2 | 500 |
| 2. Жилая полезная | м2 | 423 |
| 3. Общая площадь | м2 | 6500 |
| 4. Строительный объём | м3 | 22896 |
| 5. К1 | 0,065 | |
| 6. К2 | 54,13 |
















