диплом для архива (1222348), страница 2
Текст из файла (страница 2)
1.2 Описание и техническая характеристика газомазутного водогрейного котла типа КВр-0,5
Угольный водогрейный котел КВр-0,5 тепловой мощностью 0,5 Гкал/ч (0,58 МВт) в газоплотном исполнении в легкой обмуровке, предназначен для выработки тепловой энергии для систем теплоснабжения зданий и сооружений. Технические характеристики водогрейного котла КВр-0,5 приведены в таблице 1.2. Схема водогрейного котла приведена на рисунке 1.2.
Таблица 1.2.
Технические характеристики водогрейного котла КВр-0,5
| Наименование | Ед.измерений | Значение |
| Тепло производительность котла | Гкал/ч (МВт) | 0,5 (0,58) |
| Отапливаемая площадь при высоте 3 м | м2 | 5000 |
Продолжение таблицы 1.2
| Наименование | Ед.измерений | Значение |
| Номинальный расход воды через котел | м3/ч | 25 |
| Номинальное давление воды | МПа (кгс/см2) | 0,588 (6,0) |
| Температура воды | ||
| на входе | °С | 75 (80) |
| на выходе | °С | 95 (105) |
| Гидравлическое сопротивление | МПа (кгс/см2) | Не более 0,112 (1,12) |
| Площадь поверхности нагрева котла | ||
| радиационная | м2 | 7,3 |
| конвективная | м2 | 19,2 |
| Водяной объем | м3 | 0,58 |
| Топливо (проектное) | – | Каменный уголь |
| Топливо (резервное) | – | Бурый уголь |
| К.П.Д. котла на проектном топливе (Каменный уголь) | % | 81,2 |
| К.П.Д. котла на проектном топливе (Бурый уголь) | % | |
| Температура уходящих газов (Каменный уголь) | °С | 161 |
| Температура уходящих газов (Бурый уголь) | °С | |
| Аэродинамическое сопротивление | Па | 95 |
| Расход топлива (Каменный уголь) | кг/ч | 118 |
| Расход топлива (Бурый уголь) | кг/ч | |
| Габариты котла в изоляции: | ||
| Длина | мм | 2285 |
| Ширина | мм | 1300 |
| Высота | мм | 2060 |
| Масса котла | кг | 1760 |
| Срок службы | лет | Не менее 10 |
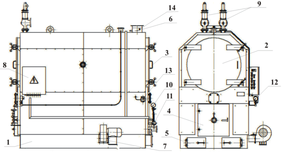
Рисунок 1.2 Схема водогрейного котла КВр-0,5: 1. корпус котла; 2. крышка передняя; 3. крышка задняя; 4. люк загрузочный; 5. дверца чистки; 6. патрубок выхода дымовых газов; 7. система регулирования подачи воздуха; 8. шкаф управления; 9. клапан предохранительный; 10. манометр показывающий; 11. термометр; 12. манометр электроконтактный; 13. датчик разрежения; 14. термопреобразователь.
1) Устройство и принцип работы котла КВр-0,5
Котёл КВр-0,5 состоит из блока трубной системы котла, короба топочного, короба поворотного, плиты фронтовой и комплектуется, вентилятором, арматурой и гарнитурой [2].
Топка котла КВр-0,5 ограничена фронтовым, задним, потолочным и боковыми топочными экранами выполненными из труб диаметром 57×3,5 с коллекторами из труб диаметром 108×4,0. Конвективная часть отгорожена от топки задним топочным экраном, снаружи – боковыми панелями конвективного блока, выполненными из труб диаметром 57×3,5, являющихся коллекторами конвективного блока, состоящего из змеевиковых пакетов, с варкой между ними полосы толщиной 4 мм, Сталь 3сп/пс. Змеевики конвективного блока выполнены из труб диаметром 32×3,2. Температура газов, поступающих во второй пакет конвективного блока, не превышает 350 оС, поэтому задняя стена конвективной части выполнена из листа толщиной 4 мм.
Конвективный блок по ходу газов выполнен двухходовым. Для этого между его первым и вторым ходами установлена водоохлаждаемая перегородка. Таким образом, образующиеся в топочной камере продукты сгорания отводятся через окно над задним экраном, проходят первый ход конвективной поверхности сверху вниз, разворачиваются в поворотном коробе, проходят второй ход конвективной поверхности снизу вверх и выводятся в окно над вторым конвективным ходом [2].
Трубы боковых и фронтового экранов, боковых панелей конвективных газоходов и конвективных пакетов заведены в коллекторы из труб диаметром 108×4 мм.
Подвод воздуха к топке, под решетку, осуществляется принудительно дутьевым вентилятором ВР-280-46 №2 (0,37кВт, 1500 об/мин.). Регулирование расхода воздуха производится шибером или при помощи частотного преобразователя (комплектуется пожеланию заказчика). За котлом рекомендуется установить дымосос ДН–6,3 (5,5 кВт, 1500 об/мин).
2) Преимущества котлов КВр-0,5
Котлы серии КВр-0,5 не требовательны к химическому составу воды, т.к. гидравлическая схема котла разработана с учетом всех современных требований основанных на многолетних опытах эксплуатации. Для обеспечения циркуляции воды с оптимальной скоростью боковые нижние и верхние коллекторы разделены перегородками. При соблюдении температурного графика и при постоянном расходе теплоносителя, котел способен работать без применения систем химводоочистки. Доступность узлов котла для обслуживания и ремонта, позволяет снизить затраты труда при эксплуатации. Вывод котла на номинальную нагрузку производится в течение короткого промежутка времени, что является одним из главных требований для стабильного снабжения потребителей тепловой энергией [2].
3) Особенности эксплуатации котлов КВр-0,5
Для обеспечения циркуляции воды через котел КВр-0,5 применяется циркуляционный насос. Давление, создаваемое насосом, контролируется манометром, установленным на напорном трубопроводе насоса. На выходном коллекторе предусмотрена установка двух предохранительных клапанов.
Подача твердого топлива организована вручную, через люк во фронтовой стене топочной камеры [2].
Выгрузка шлака осуществляется вручную, через люк подачи топлива.
Особенностью котлов с ручной подачей топлива, является необходимость определения оптимальной высоты слоя топлива в процессе эксплуатации и соотношения расхода воздуха к количеству подаваемого топлива. Грамотное определение данных пропорций обеспечит стабильное горение, при минимальных потерях, соответственно эксплуатация котла, должна осуществляться подготовленным персоналом [2].
Комплектность поставки водогрейного котла КВр-0,5 приведен в таблице 1.3.
Таблица 1.3
Комплектность поставки котла КВр-0,5
| Наименование | Ед. Изм. | Кол-во ед. |
| Блок котла топочный | шт | 1 |
| Блок котла конвективный | ||
| Дутьевой вентилятор | шт | 1 |
| Предохранительный клапан прямого действия Ду40 | шт | 2 |
| Поворотный затвор дисковый межфланцевый Ду65 Ру 10кгс/см2 | шт | 2 |
| Шаровой кран Ду15 Вн/Вн | шт | 5 |
| Шаровой кран Ду20 Вн/Вн | шт | 10 |
| Кран трехходовой Ду 15 | шт | 2 |
| Манометр показываюший (0 - 10 кгс/см2, ∅150мм) | шт | 2 |
| Термометр технический жидкостный в оправе | шт | 2 |
| Дверка чугунная | шт | 1 |
| Колосники | комп. | 1 |
Дополнительная комплектация котла КВр-0,5:
- Дымосос Д-6,3-1500;
- Всасывающий карман для дымососа (Карман Рихтера);
- Золоуловитель ЗУ-0,5;
- Воздухоподогреватель ВП-О-40;
- Дымовая труба.
1.3 Мазутоснабжение котельной
Мазуты, применяемые в промышленных топках, имеют очень высокую вязкость, поэтому для снижения ее, их необходимо подогревать. Температура подогрева должна всегда быть ниже температуры кипения, в противном случае происходят вскипание, опасное в пожарном отношении, и образование газовых пузырьков, вызывающих пульсацию факела [8].
Нередко в резервуарах мазут греется до 90-100оС и выше, а в мазутопроводе охлаждается и поступает в форсунку с высокой вязкостью, в результате чего он плохо распыляется. Для устранения этого необходимо подогревать мазут на всем тракте, сопровождая мазутопровод паропроводом непосредственно до форсунки, не оставляя ни одного участка неутепленным.
Весьма целесообразна установка местных подогревателей мазута в котельной.















