ПЗ (1219780), страница 11
Текст из файла (страница 11)
Строительный генеральный план разработан на период возведения надземной части здания.
Стройгенплан включает в себя объекты основного строительства, площадки для размещения инвентарных зданий, места складирования строительных материалов, временные проезды.
3.7.1 Основные положения по проектированию стройгенплана
Исходными данными для разработки стройгенплана служат:
- генеральный план площадки строительства с нанесенными существующими коммуникациями (сети водо- и электроснабжения, автодороги);
- общеплощадочный стройгенплан;
- календарный план производства работ;
- решения по методам производства работ (используемые машины и механизмы, в том числе монтажные краны, подъемники и т.п.);
- рабочие чертежи и расчеты потребности в ресурсах.
3.8.2 Размещение монтажных кранов
Размещение (привязка) монтажных кранов при проектировании СГП необходимо для определения возможности монтажа выбранным механизмом и безопасных условий производства работ.
Принят башенный кран КБ-676-2. Технические характеристики крана приведены в табл. 3.9.
3.7.3. Поперечная привязка крана
Расстояние от оси движения крана до оси строящегося здания, определяется по [14]:
(3.16)
где а - расстояние от оси здания до его выступающих частей, принимается 1м;
П - габарит приближения (расстояние от выступающих частей крана до выступающих частей здания), принимается 0,8м;
- радиус поворотной части крана, принимается 3,75м.
3.7.4 Продольная привязка
Расчет длины подкрановых путей осуществляется графоаналитическим способом:
=
+
+ 2
+ 2
, (3.17)
где
– длина подкрановых путей, м (рис. 3.8);
– расстояние между крайними стоянками крана, м;
– база крана, определяется по справочникам;
– величина тормозного пути крана, принимается 1,5м;
– расстоянии от конца рельса до тупиков, принимается 0,5м.
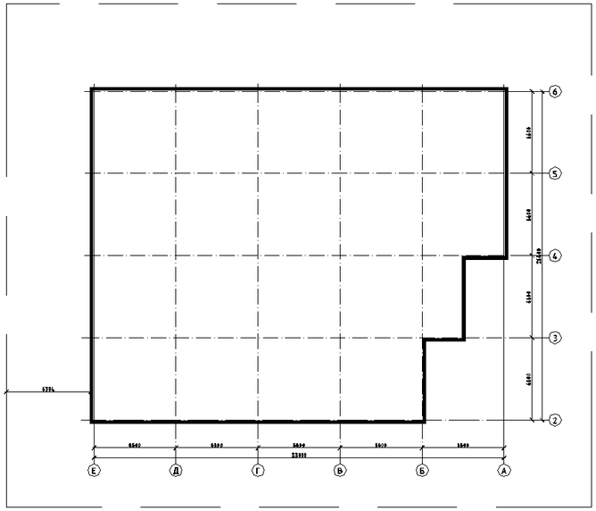
Рисунок 3.8 - Определение крайних точек стоянки башенного крана
Длина подкрановых путей, принимается:
= 0+7,5+2*1,5+2*0,5 = 11,5 м
= 6,25*
≥ 25, получаем окончательную длину подкрановых путей: 12,5*2=25м,
где – длина полузвена подкранового пути, принимается 6,25м;
– количество полузвеньев.
Зоны потенциально действующих опасных производственных факторов:
- участки, над которыми происходит перемещение грузов подъемными кранами, эта зона ограждается защитными ограждениями;
- участки территорий вблизи строящегося здания, захватки и этажи (ярусы) зданий, над которыми происходит монтаж (демонтаж) конструкций или оборудования, эта зона ограждается сигнальными ограждениями.
Зоны для безопасного ведения работ:
- монтажную – пространство, где возможно падение груза при установке и закреплении элементов.
lmax - наибольший габаритный размер падающего элемента, принимаем 1030мм;
lбез - минимальное расстояние его отлета при падении, принимается по [15, прил.Г];
плиты перекрытия 5100мм.
lmax+ lбез =1030+5754=6784мм. (3.18)
На СГП зона обозначается пунктирной линией;
Рисунок 3.9 Монтажная зона
- зону обслуживания краном – пространство, описываемое крюком крана, принимаемая
=34900мм.
- зону перемещения груза – пространство, находящееся в пределах возможного перемещения груза, подвешенного на крюке крана.
Зона перемещения груза определяется как:
=
+ 0,5
, (3.19)
где
– максимальный рабочий вылет стрелы крана, м;
0,5
– половина длины наибольшего перемещаемого груза, м.
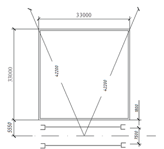
=42200+0,5·1030=42715мм.
- опасную зону работы крана – пространство, где возможно падение груза при его перемещении с учетом вероятного рассеивания при падении.
Граница опасной зоны работы крана определяется по формуле:
=
+ 0,5
+
+
, (3.20)
где
- рабочий вылет стрелы крана, м;
- наименьший габарит перемещаемого груза, м;
- наибольший габарит перемещаемого груза, м;
– минимальное расстояние отлета груза при падении, зависит от высоты возможного падения груза и принимается по [15,прил.Г].
Принимаем по интерполяции при высоте здания ≈ 38,85 м
=8131 мм.
Габариты груза: 1030х770мм
= 42200+0,5·770+1030+8131=51746мм
- опасную зону дорог – участки подъездов и подходов в пределах указанных зон, где могут находиться люди, не участвующие в совместной с краном работе, осуществляется движение транспортных средств или работа других механизмов. Эту зону на СГП выделяют штриховкой.
На границах опасных зон устанавливают знаки техники безопасности.
Зоны влияния крана показаны на рис. 3.10.
Рисунок 3.10 Зоны влияния крана
3.7.4 Расчет площади складов
Площадь складов для различных видов материалов и конструкций, м2 определяется по формуле:
F = Qск∙q , (3.21)
где q – норма складирования на 1 м2 пола площади склада с учетом проездов и проходов;
Qск – запас материальных ресурсов на складе в натуральных показателях, определяемый по формуле:
Qск = Qсут∙n, (3.22)
где n – норма запаса, дн., принимается на этаж;
Qсут – максимальная суточная потребность в материальных ресурсах данного вида, определяемая по формуле:
Qсут = Qр∙к1∙к2/Тр, (3.23)
где Qр∙– количество материальных ресурсов, потребное для выполнения заданного объема строительно-монтажных работ в течение расчетного периода;
к1 – коэффициент неравномерности поступления материальных ресурсов на склад, для автомобильного транспорта, принимается равным 1,3;
к2 – коэффициент неравномерности потребления, принимается равным 1,1;
Тр – продолжительность расчетного периода, дн. (принимается на основании календарного плана производства работ).
Расчет площади приобъектного склада сведён в табл. 3.26.
Таблица 3.26 - Расчета площади склада
| Наименование материалов и изделий, ед.изм. | Продолжительность потребления | Коэффициенты | Потребность | Норма запаса материала, дни | Расчетный запас материала | Расчетная площадь склада на единицу измерения | Площадь склада, м2 | |||
| поступления материалов | потребления материалов | общая на весь расчетный период | суточная | |||||||
| Т | k | k | Q | Q* k* k /T | n | Q * n | q | F | ||
| Кирпич тыс.шт | 143 | 1,3 | 1,1 | 82,225 | 0,822 | 5 | 4,11 | 2,5 | 10,28 | |
| Щиты опалубки, м2 | 143 | 1,3 | 1,1 | 428,92 | 4,29 | 5 | 21,45 | 0,1 | 2,15 | |
| Арматура, т | 143 | 1,3 | 1,1 | 132,83 | 1,328 | 5 | 6,64 | 1,3 | 8,632 | |
| Ячеистый бетон, м3 | 143 | 1,3 | 1,1 | 699,0 | 6,99 | 5 | 34,95 | 2,5 | 87,38 | |
| Итого: | 108,44 | |||||||||
3.7.5 Определение площади временных зданий и сооружений
После определения номенклатуры временных зданий и сооружений, рассчитываем их требуемую площадь по формуле:
Fтр = fн Nрасч , (3.24)
где fн – нормативный показатель площади для каждого вида здания, м2 / чел.;
Nрасч – расчетная численность рабочих на строительной площадке, чел.
Rmax = 56х 1,05 =59чел.
Количество ИТР Nитр до 100 чел. – 1 прораб и 1 мастер
Количество служащих Nслуж :
Nслуж = 59х 0,025 = 2 чел.
Численность МОП и охраны:
Nмоп = 59х 0,02 =2 чел.
Количество женщин:
Nжен = 59 х 0,3 =18чел.
Расчет временных зданий сведён в табл.3.27.
Таблица 3.27 – Определение площади временных зданий
| Наименование здания | Норм. | Расчет. численность пользователей Nрасч, чел. | Требуемая площадь, м2 | Инвентарные здания (система) | Площадь одного здания | Кол-во зданий | Фактическая площадь, м2 |
| Контора | 5 | Nрасч= Nитр=2 | 15 | ООО «Северстрой» КСАМ-30 | 15,39 | 1 | 15,39 |
| Помещение для защиты от солнечной радиации | 0,8 | Nрасч= 0,5 | 24,8 | ООО «Северстрой» КСБМ-30 | 15,39 | 2 | 30,8 |
| Гардеробная с умывальной, помещением для отдыха и сушилкой |
1,6 |
Nрасч = | 97,6 | ООО «Северстрой» КСБМ-30 | 15,39 | 7 | 107,73 |
Окончание табл. 3.27
| Душевая с преддушевой и раздевалкой | 0,2 | Nрасч = 0,4 | 5 | ООО «Северстрой» КСДМ-30 | 15,93 | 1 | 15,93 | ||
| Туалет | Одно очко на 15–20 чел | 4 | - | Туалетная кабина «Люкс» | 1,25 | 4 | 5 | ||
| Итого: | 174,85 | ||||||||
3.7.6 Временные дороги на строительной площадке
Ширина ворот Вмин принимается 3,5 м.
При трассировке дороги выдерживается минимальное расстояние от края ее проезжей части до объектов строительной площадки, приведенные в табл. 3.28
=31














