9-ТИЭТ~1 (1218451), страница 12
Текст из файла (страница 12)
В разделе гражданская оборона разработаны мероприятия по защите от оружия массового поражения.
Ведомость рабочих чертежей основного комплекта
| Обозначение | Наименование | Примечание |
| ГП-1 | Генеральный план | А1 |
| АР-1 | План повала и технического этажа | А1 |
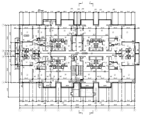
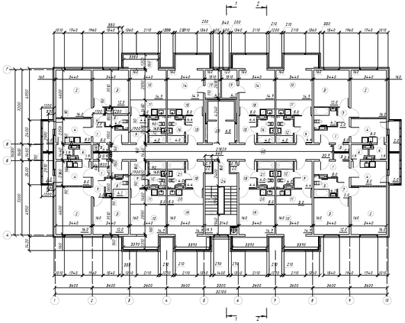
| АР-2 | План первого этажа и второго этажа | А1 |
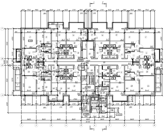
| АР-3 | План с третьего по пятый, с шестого по восьмой этажи этажа | А1 |
| АР-4 | План девятого этажа. Узлы сопряжения. | А1 |
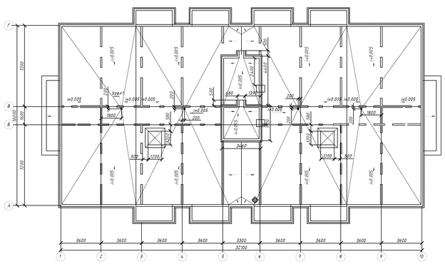
| АР-5 | План кровли | А1 |
| АР-6 | Разрезы 1-1, 2-2 | А1 |
| АР-7 | Цветовое решение фасада в осях 1-10, А-Г | А1 |
| АР-8 | Цветовое решение фасада в осях 10-1, Г-А | А1 |
| КР-1 | План лестницы | А1 |
| КР-2 | План перекрытия, опалубочный чертеж, схемы армирования, спецификация | А1 |
| СГП | Строительный генеральный план | А1 |
ПАСПОРТ ПРОЕКТА
9-ти этажный жилой дом на пересечении ул. Бумажная и ул. Физкультурная в
г. Южно-Сахалинске
Класс капитальности здания – II,
Степень огнестойкости – II,
Степень долговечности – II,
Класс функциональной пожарной опасности – Ф1.3
Расчетная температура наружного воздуха – минус 24 °С.
Вес снегового покрова – 600 кг/м2.
Климатический район и подрайон строительства – II Г.
Фасад в осях 1-10
Фасад в осях А-Г
Разрез 1-1
Разрез 2-2
План подвала
План технического этажа
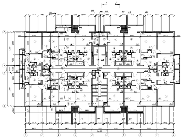
План 1-го этажа
План 2-го этажа
План 3 – 5 этажи
План 6 - 8 этажи
План 9-го этажа
План кровли
Доклад
Уважаемые члены ГАК вашему вниманию представлен дипломный проект на тему «9-ти этажный жилой дом на пересечении ул. Бумажная и ул. Физкультурная в г. Южно-Сахалинске».
Здание жилого дома прямоугольной формы в плане, с разрезами в крайних осях 32,1х16,0 м, с выступающими по продольным наружным стенами прямоугольными элементами. Высота подвала и с 1-9 этажи – 2,80 м, высота технического этажа от отметки пола до низа перекрытия – 2,20м.
Выбранная тема достаточно актуальна учитывая сложное положение с наличием жилья для населения г. Южно-Сахалинска.
В архитектурно-строительном разделе разработано объемно-планировочное решение здания.
Основные конструктивные элементы здания следующие. Здание состоит из одного блока. Несущий остов здания состоит из фундамента, опирающихся на него вертикальных несущих стен и объединяющих их в единую пространственную систему горизонтальных элементов – монолитных плит перекрытий. Стены жестко соединены с перекрытиями, фундаментами и между собой, что обеспечивает геометрическую неизменяемость системы.
Фундаменты - монолитная железобетонная плита толщиной 500 мм
из бетона класса В20, F75, W4. Арматура класса А-III. Фундаментная плита устраивается по бетонной подготовке из бетона класса В7,5. то
Наружные стены подвала из монолитного железобетона толщиной 160 мм из бетона класса В20, F75, W4. Арматура класса А-III.
Перегородки легкие – ГВЛ. Лестницы – сборные железобетонные. Сейсмичность 8 баллов.
Жилой дом односекционный. Общее количество квартир в доме 107.
В подвале размещены: электрощитовая, тепловой узел.
На первом этаже размещены семь однокомнатных квартир – студий, четыре двухкомнатные квартиры, кладовая уборочного инвентаря, комната лифтера.
Со второго по девятый этажах запроектированы восемь однокомнатных квартир, четыре двухкомнатные квартиры.
В однокомнатных квартирах предусмотрена жилая комната совмещенная с кухней-нишей и подсобные помещения: передняя, совмещенный санузел, оборудованный ванной, раковиной и унитазом.
В двухкомнатный квартирах запроектированы гостиная, спальня и вспомогательные помещения: кухня, передняя, совмещенный санузел, оборудованный ванной, раковиной и унитазом.
В верхнем техническом этаже размещены инженерные коммуникации.
Для вертикальной связи между этажами запроектирована лестничная клетка и пассажирский лифт грузоподъемностью 1000 кг. Также к помещениям общего пользования жилого здания относятся: тамбур, поэтажные коридоры и лифтовые холлы. Перед лифтом предусмотрена площадка необходимой ширины для транспортирования больного на носилках скорой помощи. Для пользования подвалом предусмотрены отдельные входы с улицы.
Мусороудаление жилого здания осуществляется через мусоропровод, с мусоросборной камерой с самостоятельным входом, изолированным от входа в жилое здание.
В данном разделе разработаны: поэтажные планы здания, продольный и поперечный разрезы, фасады здания с цветовым решением, разработаны основные узлы, план фундаментов, план покрытий, план кровли.
Также в составе архитектурно-строительного раздела разработан генплан участка. Территория объекта оборудована игровой и спортивной
площадками, цветником, хозяйственной площадкой для мусорных баков.
Озеленение территории осуществляется устройством газонов, посадкой кустарников и деревьев местных пород.
Вокруг здания имеется круговой проезд для пожарных машин, за территорией предусмотрена автопарковка.
В расчетно-конструктивном разделе запроектирована сборная железобетонная плита перекрытия и произведен расчет типовой лестничной клетки. Произведен сбор нагрузок, выбор расчетной схемы, определение внутренних усилий, подбор требуемого количества арматуры и конструирование плиты. Графическая часть раздела представлена планами перекрытия и монтажным планом лестницы, опалубочным чертежом плиты и лестничной площадки, схемой армирования и чертежами арматурных изделий.
В организационно-технологическом разделе разработан строительный генеральный план. Определены зоны влияния крана, произведен расчет и размещение временных зданий и сооружений. В графической части данного раздела выполнен чертеж строительного генерального плана, привязка подкрановых путей, размещение временных дорог и коммуникаций.
В разделе экономика строительства определена сметная стоимость устройства монолитной плиты перекрытия и определена удельная стоимость 1м3 конструкции монолитной плиты.
В разделе безопасность жизнедеятельности и экология разработаны мероприятия по охране труда при выполнении арматурных и опалубочных работ. Также в данном разделе разработаны мероприятия по обеспечению природоохранных мероприятий при строительном производстве.
Спасибо за внимание!
Заключение
В дипломном проекте разработан проект жилого дома на 107 квартир на пересечении ул. Бумажная и ул. Физкультурная в г. Южно-Сахалинске. Здание – девятиэтажное прямоугольной формы в плане размерами в осях 32,1×16 м. Выбранная тема достаточно актуальна учитывая сложное положении с наличием жилья для населения в г. Южно-Сахалинска.
В архитектурно-строительном разделе разработано объемно-планировочное решение здания.
Конструктивная схема здания – монолитная железобетонная перекрестно-стеновая, представляет собой совокупность взаимно-связанных несущих конструкций элементов стен из монолитного железобетона, обеспечивающих его прочность, устойчивость и необходимый уровень эксплуатационных качеств.
Несущая конструктивная схема здания состоит из фундамента, опирающихся на него вертикальных несущих стен и объединяющих их в единую пространственную систему горизонтальных элементов – монолитных плит перекрытий. Стены жестко соеденены с перекрытием, фундаментом и между собой, что обеспечивает геометрическую неизменяемость системы.
В данном разделе разработаны: поэтажные планы здания, продольный и поперечный разрезы, фасады здания с цветовым решением, разработаны основные узлы, план фундаментов, план кровли.
Также в составе архитектурно-строительного раздела разработан генплан участка застройки. Примыкание проездов к проезжим частям магистральных улиц регулируемого движения не менее 50 м от стоп-линии перекрестков. При этом от остановки общественного транспорта не мене 20 м. Микрорайон обслуживается двухполосными проездами.
Схема транспортных коммуникаций выполнена с учётом существующей транспортной схемы и сохранения существующей системы внутриквартальных проездов.
Подъезд пожарных машин обеспечен со всех сторон проектируемого 9-ти этажного жилого дома в соответствии с требованиями “Технического регламента о требованиях пожарной безопасности”. На территории предусмотрена автопарковка.
В расчетно-конструктивном разделе запроектирована сборная железобетонная плита перекрытия и произведен расчет типовой лестничной клетки. Производится выбор расчетной схемы, определение внутренних усилий, подбор требуемого количества арматуры и конструирование плиты.
Графическая часть раздела представлена планами перекрытия и монтажным планом лестницы, опалубочным чертежом плиты и лестничной площадки, схемой армирования и чертежами арматурных изделий.
В организационно-технологическом разделе разработан строительный генеральный план. Определены зоны влияния крана, произведен расчет и размещение временных зданий и сооружений. В графической части данного раздела выполнен чертеж строительного генерального плана, привязка подкрановых путей, размещение временных дорог и коммуникаций.















