Архитектура (1209676), страница 5
Текст из файла (страница 5)
Минимально необходимое количество окон
определяют путем деления общей длинны окон
на ширину стандартного окна
, принятого по каталогу столярных изделий:
Окончательное количество окон в помещении принимаем 2.
1.1.4.4. Окончательная разработка эскизов планов этажей здания
На основе клаузурной проработки планировочного решения здания и с учётом п. 1.1.4.1, 1.1.4.2, завершается работа над эскизами планов здания. С этой целью на планы наносятся элементы конструктивной системы, определяются количество и размещение эвакуационных выходов, размеры проходов, расположение окон и дверей, их типы и размеры, уточняются размеры отдельных помещений и здания в целом, просчитываются площади помещений и заносятся в табл. 1.2. Планировочное решение здания должно быть увязано с модульной сеткой и разбивочными осями.
1.1.4.5. Построение разреза здания
Разрез здания выполняется на основе решения плана с учётом принятой конструктивной системы. Плоскость разреза должна проходить по наиболее характерным частям здания для полного представления его объёмно-планировочного и конструктивного решения. Как правило, разрез выполняется по лестничной клетке или входу здания. На разрезе должны быть показаны основные конструкции.
1.1.4.6. Разработка фасада здания
Разработка архитектурного решения фасада здания - завершающая и очень важная часть эскизного проектирования. Архитектура фасада выявляет художественные и конструктивные достоинства и недостатки здания, определяет его выразительность и цельность архитектурного образа. Поэтому при решении фасадов здания учтены основные положения теории архитектурной композиции:
а) тектоника здания;
б) приёмы и средства архитектурной композиции;
в) принцип единства и соподчинённости.
1.1.5. Генплан участка застройки
При разработке генплана, с учетом требований, была определена площадь застройки здания и земельного участка, согласно с его назначением и объемно - планировочным решением. Здание размещаем на участке в соответствии с заданной градостроительной ситуацией и допускаемой ориентацией [4].
Земельный участок для строительства следует выбирать с учетом особенностей генерального плана населенного пункта и трассы железнодорожной дороги, с учетом транспортных связей с основными районам населенного пункта.
Привокзальная площадь предусмотрена со стороны основной части селитебной территории, предусматривая удобные технологические взаимосвязи привокзальной площади, пассажирского здания и платформ.
При размещении значительной части жителей по другую сторону железной дороги, при соответствующем обосновании, допускается устройство второй привокзальной площади с противоположной стороны железнодорожных путей. При этом обеспечены удобные и безопасные переходы пассажиров через железнодорожные пути к основному зданию вокзалов и без излишнего дублирования помещений.
Согласно [33, табл.3.1] размеры привокзальных площадей, для малых вокзалов, предусмотрено не менее 0,3 га.
Организацию движения пешеходов и транспорта, зонирование территории на привокзальных площадях запроектировано по местным условиям с использованием следующих приемов:
- с устройством пешеходной зоны и остановок транспорта по периметру площади;
- с устройством в средней части площади с примыканием к вокзалу пешеходной зоны полуостровного типа с размещением по ее периметру остановок транспорта (прибытия, отправления).
1.2. Обоснование выбора конструктивных элементов
Выбрав на основе эскизного проектирования здания, принципиальное решение его элементов и конструкций приступают к обоснованию и уточнению размеров и разработке отдельных деталей конструкций.
1.2.1. Фундаменты
По результатом обследования здания, было выявлено, что фундамент бутовый (ленточный), находятся в хорошем состоянии и усиления не требуется.
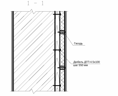
1.2.2. Наружные стены
Наружные стены здания - кирпичные несущие, толщиной 640 мм. Для обеспечения требований теплотехники стены утеплены, но изнутри, так как утепление снаружи произвести невозможно без потери художественной выразительности здания. Внутри пенополистирольные плиты обшиваются пароизоляционным материалом, набивается армирующая сетка и покрывается слоем штукатурки. Толщина утеплителя определяется по теплотехническому расчету.
Конструкция наружной стены показана на рисунке 1.5.
Рисунок 1.5. – Сечение наружной стены
Материалы и размеры слоев стен, а так же другие характеристики приведены в таблице 1.7.
Таблица 1.7. – Характеристики слоев ограждения
Наименованиематериала | Толщина слоя , м | Средний объёмный вес | Коэффициенты | ||
| Теплопроводности , | Теплоусвоения s, | Паропроницаемости 0, | |||
| Штукатурка из цементно-песчаного раствора | 0,02 | 1800 | 0,93 | 11,09 | 0,09 |
| Кирпич глинный обыкновенный на цементно-песчаном растворе | 0,25 | 1800 | 0,81 | 10,12 | 0,11 |
| Пенополистирол | 3 | 150 | 0,06 | 0,99 | 0,05 |
| Штукатурка из цементно-песчаного раствора | 0,02 | 1800 | 0,93 | 11,09 | 0,09 |
1.2.2.1. Теплотехнический расчёт наружных стен
Ограждающие конструкции здания по своим теплотехническим качествам должны обеспечивать в помещениях необходимый температурно-влажностный режим и ограничивать теплопотери здания в отопительный период года. Для этого общее сопротивление ограждения теплопередаче должно быть не менее требуемого R0тр, определяемое из санитарно-гигиенических условий и требований экономической эффективности. Определение требуемого сопротивления теплопередаче из санитарно-гигиенических требований не производим, так как согласно [3, п. 2.1*] этот расчет обязателен только для зданий с влажным или мокрым режимом, зданий с избытками явного тепла.
Расчет толщины утеплителя из условия энергосбережения:
где Rтро – требуемое сопротивление теплопередаче,
;
Rо – приведенное сопротивление теплопередаче неоднородной ограждающей конструкции
.
Требуемое сопротивление теплопередаче определяется по формуле:
R0тр. = f (ГСОП); ГСОП = (t в – t от.пер.) zот.пер.,
где tв – расчётная температура внутреннего воздуха по нормам проектирования соответствующих зданий, оС;
tот.пер., zот.пер. - средняя температура и продолжительность периода со средней температурой ниже или равной 8 оС, принимаем по [таблица 1.1] tот.пер.= -10,10С,
Zот.пер=205 сут,
tв=180С [8, п.10.3]
Тогда ГСОП = (18 – (–10,1)) 205 = 5761 градусо-суток.
По [3,таблица 1б*] принимаем R0тр= 2,93 м2 ˚С / Вт.
Сопротивление теплопередаче
неоднородных ограждающих конструкций определяют по формуле согласно [2, п. 2.6*]
Принимая толщина утеплителя
, тогда толщина стены
.
1.2.2.2. Расчет сопротивления воздухопроницанию стены
Расчет делается для проверки ограждения на возможное проникновение воздуха через слои ограждения при сильных ветрах в наиболее холодный зимний месяц.














