Архитектура (1209676), страница 4
Текст из файла (страница 4)
В полу на путях эвакуации не допускаются перепады высот менее 45 см и выступы, за исключением порогов в дверных проемах. В местах перепада высот следует предусматривать лестницы с числом ступеней не менее трех или пандусы с уклоном не более 1:6. При высоте лестниц более 45 см следует предусматривать ограждения с перилами.
Требования безопасной эвакуации людей
Это требования по обеспечению благоприятных условий эвакуации из помещений и здания в целом.
Эвакуационные пути должны обеспечивать безопасную эвакуацию всех людей через эвакуационные выходы в течение необходимого времени.
Количество эвакуационных выходов из здания принимается по расчету, но не менее двух. Эвакуационные выходы должны располагаться рассредоточено.
При устройстве двух эвакуационных выходов каждый из них должен обеспечивать безопасную эвакуацию всех людей, находящихся в помещении, на этаже или в здании.
Двери эвакуационных выходов из поэтажных коридоров, холлов, фойе, вестибюлей и лестничных клеток не должны иметь запоров, препятствующих их свободному открыванию изнутри без ключа.
Двери эвакуационных выходов и другие двери на путях эвакуации должны открываться по направлению выхода из здания.
Выходы, не отвечающие требованиям, предъявляемым к эвакуационным выходам, могут рассматриваться как аварийные (выход на балкон или выход на кровлю здания I и II степени огнестойкости) и предусматриваться для повышения безопасности людей при пожаре.
Ширина марша лестницы, предназначенной для эвакуации людей, должна быть не менее расчетной, и не менее ширины любого эвакуационного выхода (двери) на нее, но не менее 0,9 м. Ширина лестничных площадок должна быть не менее ширины марша.
Пути эвакуации должны быть освещены в соответствии с требованиями [5] естественным светом на каждом этаже.
Для зданий II степени огнестойкости ширина эвакуационного выхода на лестничную клетку, а также ширина маршей лестниц устанавливается в зависимости от числа эвакуирующихся через этот выход из расчета не более 165 человек на 1 м ширины выхода (двери).
Расстояние по путям эвакуации от дверей наиболее удаленных помещений (кроме уборных, умывальных, курительных и других обслуживающих помещений) до выхода наружу или лестничную клетку должно быть не более 50 м.
-
Разработка эскизов объемно-планировочного
решения здания
Работа над эскизами объемно-планировочного решения здания выполняется в две стадии; клаузурные (черновые) эскизы, ставящие своей целью композиционное решение здания (взаимного размещения отдельных помещений, этажности здания, габаритных его размеров), и эскизы окончательные, соответствующие принятому объёмно-планировочному решению и по стадии разработки проекта (технический проект).
-
Общая характеристика здания
Здание железнодорожного вокзала ст. Хабаровск-II построено в 1939 г. и в настоящее время используется как павильон для пригородных пассажиров.
Здание не является памятником архитектуры. В то же время представляет собой пластичный, почти скульптурный объем с выраженными классическими пропорциями и элементами декора, заслуживающими внимания. Архитектурный облик фасадов отвечает требованиям восприятия здания вокзала как въездного знака или визитной карточки железнодорожной городской станции. В связи с этим предлагается максимально сохранить здание в первоначальном виде после проведения капитального ремонта.
За относительную отметку 0,000 принята отметка пола первого этажа, соответствующая абсолютной отметке 58.3.
Здание вокзала кирпичное, одноэтажное и состоит из:
-
операционного зала пригородных пассажиров высотой около 8 м;
-
помещений дежурной части милиции;
-
кабинетов служебных помещений, расположенных по обеим сторонам от операционного зала;
Далее планируется надстроить второй мансардный этаж.
Главный фасад здания имеет классическое построение с выдвинутыми вперед и вверх средней частью и двумя протяженными крыльями. Главный вход решен в виде четырехколонного портика, поддерживающего широкий козырек. Со стороны перрона вход в здание вокзала оформлен по подобию главного входа, но без козырька.
Фасадные плоскости расчленены вертикальными пилястрами и завершаются высоким ярусным карнизом. Окна прямоугольного очертания и утоплены в ниши с округлением в верхней части.
1.1.4.2. Конструктивная система здания
Горизонтальные несущие конструкций (перекрытия и покрытия) представляют собой горизонтальные железобетонный диск жесткости, который обеспечивает распределение горизонтальных нагрузок между элементами несущего остова и создает пространственную жёсткость здания.
В здании, подлежащему реконструкции, используется связевая с элементами рамно – связевой конструктивной системы.
Конструктивная схема, показывающая расположение несущих элементов в здании приведена на рис. 1.2.
Рисунок 1.2. Конструктивная система здания
1.1.4.3. Расчет необходимой площади оконных проемов из условия освещенности
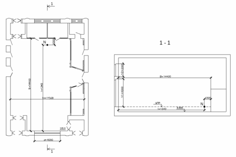
Расчет площади окон производится из условия ее пропорционального отношения к площади пола. Расчет производим для помещения 1 – зал ожидани. Для этого определяются геометрические характеристики помещения, ориентировочное положение оконного проема и наиболее неблагоприятно расположенной расчетной точки N. Расчетная схема приведена на рисунке 1.3.
план разрез
N – расчетная точка; В – глубина помещения, м;
l – расстояние от окна до расчетной точки N, м;
ln – длина помещения , м; УУРП – уровень условной рабочей поверхности;
h=h1+h2 – высота от УРП до верха окна
Рисунок 1.3. - Эскиз помещения, для которого выполняется расчет освещенности
Площадь световых проемов определяется из соотношения:
где Sо – площадь световых проемов, м2;
Sп – площадь пола помещения, м2;
еN – нормируемое значение КЕО;
Кз – коэффициент запаса, Кз=1,4 [6, таблица 3];
- световая характеристика окон [6, таблица 26];
- общий коэффициент светопропускания;
r1 – коэффициент, учитывающий повышение КЕО благодаря свету, отраженному от поверхностей помещения;
Кзд – коэффициент, учитывающий затенение окон противостоя- щими зданиями.
Согласно [6, таблица 2, п.1] для рабочих кабинетов зданий управлений значение коэффициента естественного освещения (КЕО) –
= 0,8 %;
Нормируемое значение КЕО для различных районов следует определять по формуле:
еN=енmN с ,
где mN—коэффициент светового климата, по [6, таблица 4] определяем пояс светового климата – IV, соответственно mN = 0,9;
С – коэффициент солнечности климата, определяемый по [6, таблица 5], С=0,7;
Тогда еN=0,80,70,9=0,504 ,
Определим коэффициент светопропускания окон [6, таблица 29,30]:
= 0,7 – для пластиковых окон с тройным остеклением;
= 1 нет солнцезащитных устройств;
= 0,75 · 0,7 · 1 · 1 · 1 = 0,525
Расчетная точка находится на расстоянии 1 м от наиболее удаленной от окна стены, а уровень условной рабочей поверхности УУРП = 0,8 м.
Определяем
Для окна высотой 4300 мм определим его длину:
Принимаем для обеспечения естественного освещения одно окно размерами 43004000 мм.
Дополнительно к естественному, предусматривается искусственное освещение неоновыми лампами.
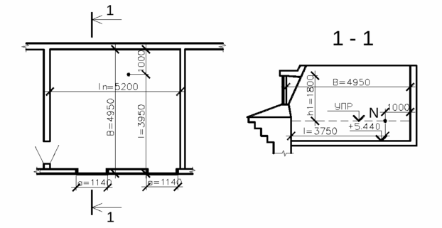
Также произведён расчет необходимой площади оконных проемов на проектируемом мансардном этаже. Для расчета выбирается кабинет начальника станции (Рис. 1.4).
Таким же образом подбираются все компоненты формулы Гусева и производится расчет.
Кз – коэффициент запаса, Кз=1,4 [6, таблица 3]; для рабочих кабинетов зданий управлений значение коэффициента естественного освещения (КЕО) –
= 0,8; mN = 0,9; С – коэффициент солнечности климата, определяемый по [6, таблица 5], С=0,7.
Тогда еN=0,80,70,9=0,504.
= 0,7 – для пластиковых окон с тройным остеклением;
= 1 убирающиеся регулируемые жалюзи;
N – расчетная точка; В – глубина помещения, м;
l – расстояние от окна до расчетной точки N, м;
ln – длина помещения , м; УУРП – уровень условной рабочей поверхности;
h=h1+h2 – высота от УРП до верха окна
Рисунок 1.4. - Эскиз помещения, для которого выполняется расчет освещенности
= 0,75 · 0,7 · 1 · 1 · 1 = 0,525
Расчетная точка находится на расстоянии 1 м от наиболее удаленной от окна стены, а уровень условной рабочей поверхности УУРП = 0,8 м.
Определяем
Для окна высотой 1140 мм определим его длину:














