ВКР№1 Разработка ремонта Мамчич П.Е. (1208587), страница 2
Текст из файла (страница 2)
Секции стрелы автокрана должны располагаться симметрично относительно друг друга по вертикальной оси. От бокового смещения секции стрелы удерживаются в передней части упорами 20, а сзади приварными уступами. Упоры установлены в боковых втулках и регулируются по мере износа вкручиванием во втулку и контрятся гайками.
Изменение вылета производится гидроцилиндром 5, крепящимся штоком в проушинах стрелы, а корпусом в кронштейнах балки поворотной рамы осями 14 (Рис.1.1.3).
В транспортном положении стрела укладывается на стойку поддержки стрелы.
Крюковая подвеска автокрана КС-55713-5 (Рис.1.1.4.) рассчитана на восьмикратную запасовку грузового каната. Крюковая подвеска состоит из четырех рабочих блоков 11, траверсы 4, крюка 1 с упорным подшипником 5 и гайкой 6, закрепленных между собой щеками 3 и 13.
Рис. 1.1.4. Крюковая подвеска автокрана КС-55713-5
1-крюк; 2-замок; 3,13-щеки; 4-траверса; 5-подшипник; 6-гайка; 8-ригель; 9,10-втулки; 11-блок; 12-ось.
Гусёк автокрана КС 55713-5 предназначен для увеличения высоты подъема до 29,3 м. Он представляет собой сварную решётчатую металлоконструкцию. В оголовке гуська на ось установлен блок. В корневой части гуська имеются четыре кронштейна для крепления к оголовку верхней секции стрелы.
В транспортном положении гусёк крепится на основании стрелы пальцем и штырями, а в рабочем - гусёк устанавливается на осях и крепится пальцами.
Рама опорная (Рис.1.1.5.) автокрана КС 55713-5 грузоподъемностью 25т на базе Камаз-55111 сварная из листов, состоит из основания 1 и поперечных балок 2 коробчатого сечения. В средней части рамы опорной имеется площадка с кольцом 3, к которому крепится поворотная опора. В передней части к раме опорной крепится надрамник 4, на котором установлены стойка поддержки стрелы 6.
Рис. 1.1.5. Рама опорная КС 55713-5
1-основание рамы; 2-поперечная балка; 3-кольцо; 4-надрамник; 6-стойка; 9,11-болт; 10-кронштейн.
Рама крепится к лонжеронам шасси с помощью болтов 9, для предотвращения случайного смещения рамы вдоль шасси на лонжеронах установлены кронштейны 10, закреплённые болтами 11 к опорной раме.
При работе рама через поворотную опору воспринимает все нагрузки от поворотной части автомобильного крана и через выдвижные опоры передает их на площадку, на которой установлен кран.
Подъём и опускание груза производится грузовой лебёдкой, установленной на поворотной раме.
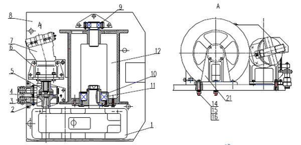
Рис. 1.1.6. Грузовая лебёдка автомобильного крана КС-55713-5
1–редуктор; 2–тормозной шкив; 3–звездочка; 4–тормоз; 5–полумуфта; 6,21–кронштейн; 7–гидромотор; 8–плита; 9,11–подшипники; 10–полумуфта; 12–барабан; 14-болт; 15-гайка;16-шайба.
Грузовая лебёдка автокрана КС 55713-5 грузоподъемностью 25т на базе Камаз-55111 смонтирована на плите 8, одновременно являющейся противовесом. Передача крутящего момента от гидромотора 7 к барабану 12 осуществляется через редуктор 1. Тормозной шкив 2 установлен на быстроходном валу редуктора и одновременно является полумуфтой.
В приводе грузовой лебёдки используется двухступенчатый цилиндрический редуктор 1Ц2У-250-36.0-22-У1. Смазка подшипников и зубчатых колёс редуктора осуществляется маслом, заливаемым в корпус через отверстие в крышке, заглушенной пробкой.
Лебёдка оснащена нормально-закрытым ленточным тормозом, который размыкается только при включении лебёдки.
Кран стреловой автомобильный КС 55713-5 грузоподъёмностью 25 тонн на шасси грузового автомобиля Камаз-55111 используется для выполнения погрузочно-разгрузочных, строительно-монтажных операций в промышленности, строительстве, сельском хозяйстве и других отраслях (выполнение работ с простыми грузами).
Автокран КС 55713-5 рассчитан на эксплуатацию при температуре окружающего воздуха ±40°С и относительной влажности 80% при +20°С и хранение при температуре окружающего воздуха не ниже -50°С.
Транспортное передвижение автомобильного крана КС 55713-5 между рабочими объектами рекомендовано по дорогам с твердым покрытием, допускающим осевую нагрузку не менее 10 тс.
Установка автокрана возможна на подготовленной площадке с размерами 6,0х6,5 м и уклоном не более 3°. Допустимая скорость ветра для рабочего положения крана не должна быть более 14 м/с на высоте 10 м, для не рабочего состояния - 3- 40 м/с.
-
Постановка цели работы
Кран автомобильный КС 55713-5 «ГАЛИЧАНИН», гидравлический грузоподъёмностью 25 тонн на базе шасси КАМАЗ-55111, создаётся в связи с
заменой снимаемого с производства крана КС 4572 грузоподъемностью 16 тонн.
В данной работе производился расчёт автокрана грузоподъёмностью 25000 кг, с максимальной скоростью передвижения 80 км/ч и высотой подъёма 29 м., а именно производился расчет механизма подъема груза, расчет гидроцилиндра стрелы, расчет на устойчивость. Работой предусмотрена графическая часть – форматы А1: общий вид автокрана; механизм подъема груза; сборочный чертеж гидроцилиндра подъема стрелы; плакат грузовысотных характеристик; сборочный чертеж стрелы; плакаты крепления каната к барабану и технологического процесса восстановления детали.
В качестве базы автокранов КС-55713-5 «ГАЛИЧАНИН» грузоподъемностью 25 т используется шасси КАМАЗ-55111, что наделяет данную технику хорошими ходовыми характеристиками и необходимой маневренностью. Поднять груз массой 25 тонн данная модель может при вылете стрелы 3,2 м. Отличные грузовысотные показатели выводят автокраны «ГАЛИЧАНИН» 25 т в число лидеров.
Отличная репутация автокранов «ГАЛИЧАНИН» 25 т говорит о многом
ОАО "Галичский автокрановый завод" на сегодняшний день один из крупнейших производителей грузоподъемной техники разного класса, в том числе и автокранов «ГАЛИЧАНИН» 25 т. Первый автомобильный кран был выпущен в 1982 году, с тех пор модельный ряд значительно увеличился, а процесс производства усовершенствовался. В феврале 2008 года на заводе был изготовлен 10-тысячную модель автокрана.
Выпускаемая Галичским автокрановым заводом продукция обладает высоким качеством, что позволяет ей с завидной регулярностью участвовать в международных и региональных выставках строительной техники. Свидетельством этому является множество дипломов и наград, а также тот факт, что автокраны «ГАЛИЧАНИН» 25 т неоднократно становились лауреатами всероссийского конкурса "100 лучших товаров России".
С момента своего появления по настоящий день Галичский автокрановый завод проделал большой путь по совершенствованию выпускаемой продукции. Это нашло отражение в автокранах «ГАЛИЧАНИН» 25 т, которые привлекают потребителей не только оптимальным соотношением стоимости и эксплуатационных показателей, но и высоким уровнем надежности.
Можно смело говорить о том, что автокраны «ГАЛИЧАНИН» 25т снабжены высококачественным техническим оснащением, отличающимся своей износостойкостью, а, соответственно, и долговечностью. Передовые достижения в области краностроения, новейшее оборудование и квалифицированный персонал - вот залог успеха и большой конкурентоспособности техники «ГАЛИЧАНИН» в своем секторе рынка.
В секторе рынка грузоподъемной техники среднего класса большой спрос имеют 25-тонники. Перед потребителем встает дилемма "что выбрать?". Не секрет, что автомобильные краны имеют в основном сходную конструкцию и функциональные возможности. Поэтому перед производителями автокранов «ГАЛИЧАНИН» 25 т стоит нелегкая задача по увеличению потенциала данной техники, что приведет к ее большей конкурентоспособности.
Следует отметить, что автокраны «ГАЛИЧАНИН» 25 т могут продуктивно применяться в любое время года, так как оснащены морозоустойчивыми комплектующими, способными выдержать большую разницу температур (от +40 до -40 градусов). Это исключает сезонный простой техники, а также затраты, связанные с ним.
По достоинству автокраны «ГАЛИЧАНИН» 25 т смогли оценить потребители не только различных регионов России, но и стран СНГ. Это обусловлено тем, что ОАО "Галичский автокрановый завод" - единственное предприятие на территории стран СНГ, которое стабильно развивается и производит достаточно большой ассортимент техники, яркими представителями которой явля-
ются автокраны «ГАЛИЧАНИН» 25 т.
Техническое обслуживание автокранов «ГАЛИЧАНИН» 25 т не вызовет затруднений благодаря широкой сети сервисных центров, которые находятся в Санкт-Петербурге, Тюмени, Москве, на Урале и Дальнем Востоке, а также в странах ближнего зарубежья. Однако следует уточнить, что многие комплектующие автокранов «ГАЛИЧАНИН» не нуждаются в замене на протяжении всего эксплуатационного срока.
Примечательно, что, несмотря на незатейливость дизайна, автокраны «ГАЛИЧАНИН» 25 т обладают необходимой комфортабельностью. Кабина оператора отвечает всем требованиям удобства и безопасности, что выгодно дополняется большой площадью остекления, которая, в свою очередь, обеспечивает отличную обзорность.
Итак, проанализировав основные характеристики автокранов «ГАЛИЧАНИН» 25 т, можно сделать вывод о том, что данная техника обладает некоторыми преимуществами перед аналогичной продукцией. Именно этим можно объяснить возрастающий интерес к автокранам «ГАЛИЧАНИН» 25 т и другим изделиям ОАО "Галичский автокрановый завод".
-
РАСЧЕТ КОНСТРУКЦИЙ АВТОКРАНА КС 55713-5
-
Расчет и проектирование механизма подъема груза
В данной работе рассмотрим грузовую лебёдку. Расчет будем вести по методическим указаниям [2].
Задача: спроектировать механизм подъёма груза автомобильного крана.
Таблица 2.1.1. Исходные данные
| Грузоподъемная машина | КС 55713-5 |
| Масса поднимаемого груза | |
| Скорость подъема груза | |
| Высота подъема груза | Н =29,39 м |
| Масса крюковой подвески | |
| Кратность полиспаста | а =8 |
Рис. 2.1.1. Кинематическая схема тяговой лебедки:
1 - гидродвигатель; 2 - муфта с тормозным шкивом; 3 - тормоз; 4 - редуктор; 5 - зубчатая муфта; 6 - барабан
Рис. 2.1.2. Схема запасовки каната
Для случая, когда ветвь каната, идущая на барабан, проходит через z направляющих блоков, учитываются потери и на этих блоках, тогда КПД полиспаста определится по таблице 2.1.2., где бл=0,98 - КПД блоков на подшипниках качения.
Таблица 2.1.2. Значение КПД полиспаста
| бл | Кратность полиспаста пол | |||||||
| 2 | 3 | 4 | 5 | 6 | 8 | 10 | 12 | |
| 0,98 | 0,99 | 0,98 | 0,97 | 0,96 | 0,95 | 0,93 | 0,91 | 0,89 |
Значит пол =0,93
Таблица 2.1.3. Значения КПД направляющих блоков zбл
| бл | Количество блоков z | ||||||
| 2 | 3 | 4 | 5 | 6 | 7 | 8 | |
| 0,98 | 0,96 | 0,94 | 0,92 | 0,90 | 0,88 | 0,87 | 0,85 |
Отсюда следует, что zбл=0,85.
Осуществляем подбор стального каната, по допускаемому разрывному усилию в канате:
, (2.1)
где,
минимальное значение коэффициента запаса прочности каната на разрыв, при легком режиме работы механизма М3, определенный по справочным таблицам [3], (
);
максимальное рабочее усилие в канате, рассчитаем по формуле (2.2), Н:
, (2.2)
где
масса поднимаемого груза, кг (
);
масса крюковой подвески, кг (
);
число ветвей каната, наматываемых на барабан (
), тогда:
Н, таким образом:
Н
Выбираем тип каната. Для автомобильного крана, работающего на открытом воздухе, при наличии пыли и влаги следует выбирать канат с оцинкованными проволоками типа 15-Г-Ст5-Н-1960-ГОСТ 2688-80
Канат двойной свивки, 6×19 проволок с одним органическим сердечником, схема которого приведена на рис.2.1.3.
Рис.2.1.3. Канат двойной свивки 6×19
Этот канат обладает высокой абразивной и коррозионной износостойкостью. Необходимый диаметр каната 15 мм, масса 1-го метра каната равна 0,804 кг.
Длина каната наматываемого на барабан вычислим по формуле (2.3), м:
, (2.3)
25000 кг
=0,08 м/с
215 кг
, (2.1)
минимальное значение коэффициента запаса прочности каната на разрыв, при легком режиме работы механизма М3, определенный по справочным таблицам [3], (
);
максимальное рабочее усилие в канате, рассчитаем по формуле (2.2), Н:
, (2.2)
масса поднимаемого груза, кг (
);
масса крюковой подвески, кг (
);
число ветвей каната, наматываемых на барабан (
), тогда:
Н, таким образом:
Н














