Вдовченко ПЗ (1208296), страница 9
Текст из файла (страница 9)
ANSI – American National StandardsInstitute- Американский национальный институт стандартизации;
TIA – Telecommunications Industry Association – Ассоциация телекоммуникационной промышленности;
EIA – Electronic Industries Association – Ассоциация электронной промышленности;
IEC – International Electrotechnical Commissin – Международная электротехническая комиссия;
ISO - International Organization for Standardization – Международная организация по стандартизации;
UTP – Unshielded Twisted Pair – Кабель из неэкранированных витых пар;
U - Unit – Единица измерения высоты 19-дюймовых монтажных конструктивов, равная 44,45 мм (1,75 дюйма);
IP – Internet Protocol – Межсетевой протокол;
PoE – Power over Ethernet - технология, позволяющая передавать удалённому устройству вместе с данными электрическую энергию через стандартную витую пару в сети Ethernet;
БИБЛИОГРАФИЧЕСКИЙ СПИСОК
-
Семенов А.Б. Структурированные кабельные системы / Семенов А. Б., Стрижаков С. К., Сунчелей И. Р. - 5-е изд. - М. : Компания АйТи ; ДМК Пресс. - 640+16 с.: ил.
-
Семенов А.Б. Волоконно-оптические подсистемы современных СКС / А.Б. Семенов – М.: Академия АиТи; ДМК Пресс, 2006. – 632 с.: ил.
-
Семенов А.Б. Администрирование структурированных кабельных систем / А.Б. Семенов – М.: ДМК Пресс; М.: Компания АиТи, 2008. – 192 с.: ил.
-
Официальный сайт компании D-Link – Режим доступа: http://www.dlink.ru/
-
Официальный сайт компании Microtik – Режим доступа: http://www.microtik.ru/
-
Официальный сайт интернет-магазина сетевого оборудования – Режим доступа: http://www.lanbi.ru/
-
Давыдов Б.И. Расчёт надёжности волоконно-оптической системы передачи. Методическое пособие по выполнению дипломного проекта / Б.И. Давыдов. – Хабаровск: Изд-во ДВГУПС, 2009. – 19 с.: ил.
-
Официальный сайт Росстандарта – Режим доступа: http://www.gost.ru/
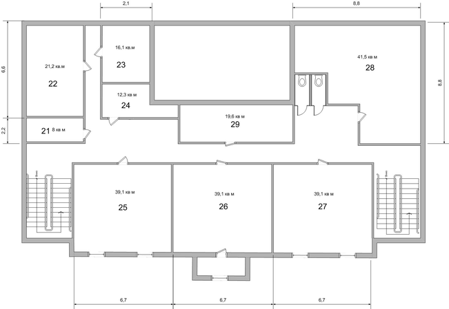
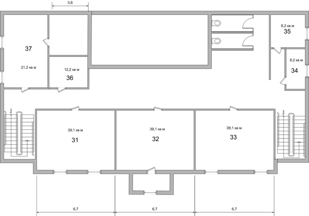
ПРИЛОЖЕНИЕ А. РАЗМЕРЫ ПОМЕЩЕНИЙ ПЕРВОГО ЭТАЖА
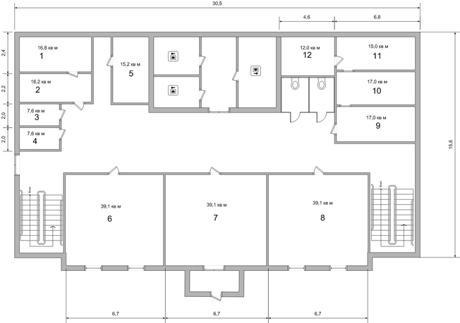
ПРИЛОЖЕНИЕ Б. РАЗМЕРЫ ПОМЕЩЕНИЙ ВТОРОГО ЭТАЖА
ПРИЛОЖЕНИЕ В. РАЗМЕРЫ ПОМЕЩЕНИЙ ТРЕТЬЕГО ЭТАЖА
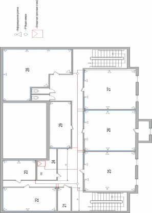
ПРИЛОЖЕНИЕ Г. СХЕМА РАСПОЛОЖЕНИЯ ИНФОРМАЦИОННЫХ РОЗЕТОК И ВИДЕОКАМЕР НА ПЕРВОМ ЭТАЖЕ
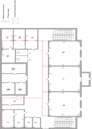
ПРИЛОЖЕНИЕ Д. СХЕМА РАСПОЛОЖЕНИЯ ИНФОРМАЦИОННЫХ РОЗЕТОК И ВИДЕОКАМЕР НА ВТОРОМ ЭТАЖЕ
ПРИЛОЖЕНИЕ Е. СХЕМА РАСПОЛОЖЕНИЯ ИНФОРМАЦИОННЫХ РОЗЕТОК И ВИДЕОКАМЕР НА ТРЕТЬЕМ ЭТАЖЕ
ПРИЛОЖЕНИЕ Ж. СТРУКТУРНАЯ СХЕМА СЕТИ КОНТАКТ-ЦЕНТР «ВОСТОЧНЫЙ ЭКСПРЕСС БАНК»
76















