1.ДИПЛОМ Алексеев М.О. 455гр (1207710), страница 5
Текст из файла (страница 5)
Сваи так же можно применять как для предупреждения оползней, так и для закрепления земляного полотна железных дорог в ходе восстановительных работ. Свайные конструкций применяются в следующих инженерно-геологических условиях, которые характеризуются наличием:
- локальных зон увлажнения у поверхности смещения;
- в пределах оползневого склона несмещающихся массивов (например, выхода коренных пород неглубокого залегания), которые могут быть использованы, в частности, и для анкеровки удерживающей свайной конструкции.
Для неустойчивого откоса возможно применение следующих типов свай [2]:
- буронабивные сваи;
- железобетонные столбы глубокого заложения
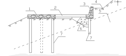
Буронабивные сваи применяют в том случае, если мощность оползневых или покровных грунтов более пяти метров (рис. 3.8).
При значительных оползневых давлениях в качестве свайной конструкции используют железобетонные столбы глубокого заложения. Следует учесть, что свайные столбы необходимо размещать рядами на таком расстоянии друг от друга в ряду, которое исключает обтекание их оползневым грунтом [2].
Рис. 3.8 Схема противооползневой конструкции, на буронабивных сваях, закрепляющих скол, подрезанный выемкой: 1 – железобетонный ростверк; 2- анкерная тяга; 3 – верховая подпорная стенка; 4 – оползневые грунты; 5 – коренные породы; 6 – совершенный дренаж; 7 – буронабивные сваи.
Свайная подпорная стена на исследуемом объекте рассматривается как один из вариантов решения укрепления откоса насыпи, так как данный метод укрепления является достаточно технологичным, максимально механизированным и практически не требующий выполнения земляных работ.
3.2 Расчет устойчивости откосов насыпи усиленной бермой.
Для определения геометрических размеров бермы, выполнены расчеты устойчивости методом конечных элементов.
3.2.1 Расчет устойчивости откоса насыпи, усиленной бермой КМ8704 ПК 2+40
Сформирована исходная модель земляного полотна, основания и бермы включающая четыре макроэлемента: основание, земляное полотно, балластную призму и шпалу.
Физико-механические характеристики грунтов задавались по материалам инженерно-геологических изысканий. Прочностные характеристики (угол внутреннего трения и удельное сцепление) приняты в соответствии с ручными расчетами методом Г.М. Шахунянца (С = 5.8 кПа, φ = 15.7º). Физико-механические характеристики приведены в табл. 3.1.
Таблица 3.1
Физико-механические характеристики элементов
| Элемент | Удельный вес γ, кН/м3 | Модуль деформации Е, МПа | Коэффициент Пуассона ν | Удельное сцепление С, кПа | Угол внутреннего трения φ, ° |
| Основание (суглинок) | 19,62 | 10000 | 0,4 | 21,58 | 16,0 |
| Насыпь (пескогравий) | 17,66 | 600000 | 0,3 | 5,8 | 15,7 |
| Балласт (щебень) | 22,00 | 120000 | 0,3 | 0 | 40 |
| Деревянная шпала | 10,00 | 300000 | 0,2 | 1000 | 10000 |
Макроэлементы разбивались так, чтобы конечные элементы были максимально близки по форме к равностороннему треугольнику. К шпале прикладывалась распределенная нагрузка, ее интенсивность равна 100кПа. Расчетная модель ПК 2+40 приведена на рис. 3.9.
Рис.3.9 Расчетная модель ПК 2+40
Запроектирована берма высотой 1.45 м. и шириной 4 м. Расчет на устойчивость показывает, что коэффициент равен 1.2, насыпь устойчива. Поперечный профиль приведен на рис.3.10.
Рис.3.10 Поперечный профиль КМ8704 ПК 2+40 с проектным положением бермы
3.2.2 Расчет устойчивости откоса насыпи, усиленной бермой КМ8704 ПК 2+65
Сформирована исходная модель земляного полотна, основания и бермы включающая четыре макроэлемента: основание, земляное полотно, балластную призму и шпалу.
Физико-механические характеристики грунтов задавались по материалам инженерно-геологических изысканий. Прочностные характеристики (угол внутреннего трения и удельное сцепление) приняты в соответствии с ручными расчетами методом Г.М. Шахунянца (С = 5.8 кПа, φ = 15.7º). Физико-механические характеристики приведены в табл. 3.1.
Макроэлементы разбивались так, чтобы конечные элементы были максимально близки по форме к равностороннему треугольнику. К шпале прикладывалась распределенная нагрузка, ее интенсивность равна 100кПа. Расчетная модель ПК 2+65 приведена на рис. 3.11.
Рис. 3.11 Расчетная модель ПК 2+65
Запроектирована берма высотой 1.75 м. и шириной 4 м. Расчет на устойчивость показывает, что коэффициент равен 1.35, насыпь устойчива. Поперечный профиль приведен на рисунке 3.12.
Рис.3.12 Поперечный профиль КМ8704 ПК 2+65 с проектным положением бермы
3.2.3 Расчет устойчивости откоса насыпи, усиленной бермой КМ8704 ПК 3+40
Сформирована исходная модель земляного полотна, основания и бермы включающая четыре макроэлемента: основание, земляное полотно, балластную призму и шпалу.
Физико-механические характеристики грунтов задавались по материалам инженерно-геологических изысканий. Прочностные характеристики (угол внутреннего трения и удельное сцепление) приняты в соответствии с ручными расчетами методом Г.М. Шахунянца (С = 5.8 кПа, φ = 15.7º). Физико-механические характеристики приведены в табл. 3.1.
Макроэлементы разбивались так, чтобы конечные элементы были максимально близки по форме к равностороннему треугольнику. К шпале прикладывалась распределенная нагрузка, ее интенсивность равна 100кПа. Расчетная модель ПК 3+40 приведена на рис. 3.13.
Рис.3.13 Расчетная модель ПК 3+40
Запроектирована берма высотой 1.36 м. и шириной 4 м. Расчет на устойчивость показывает, что коэффициент равен 1.32, насыпь устойчива.
Поперечный профиль приведен на рисунке 3.14.
План размещения бермы на рассматриваемом участке приведен на рис. 3.15.
Рис.3.14 Поперечный профиль КМ8704 ПК 3+40 с проектным положением бермы
Рис. 3.15 План размещения бермы на рассматриваемом участке Вяземская-Бикин
3.3 Расчет и проектирование забивных железобетонных свай
При проектировании на оползневом массиве поддерживающего сооружения, состоящего из свай, расстояние b между ними может определяться по теории арочного эффекта при достаточной прочности грунта, или по теории пластичности при грунтах с низкими прочностными характеристиками (пластичные грунты).
При правильно определенном b грунт между элементами продавливаться не должен, так как образуется несущее тело, которое включает в себя удерживающие элементы и грунт, находящийся между ними. Таким образом, сваи с заключенным между ними грунтом работают совместно как единая свайно-грунтовая стена.
Если поддерживающее сооружение состоит из двух или более рядов свай, то они также вместе с грунтом между ними работают как единая конструкция, и оползневое давление равномерно распределяется на элементы каждого ряда.
На рис 3.16 показана расчетная схема противооползневой свайной удерживающей конструкции. Оползневое давление Еоп, (кН/м), определяется по формуле (3.1) с учетом пассивного давления устойчивых отсеков, находящихся ниже передней грани удерживающей конструкции. Если отсеки, находящиеся ниже передней грани удерживающей конструкции, сами не устойчивы, то при определении Еоп они не учитываются [15].
Рис. 3.16 Расчетная схема удерживающей конструкции из двух рядов свай: hср – мощность сползающего слоя грунта перед конструкцией; lo = (1/3)hср - расстояние приложения давления Еоп от поверхности сдвига; а = Мmax/E/оп – расстояние от условной заделки свай до уровня приложения силы E/оп; h – длина свай в неустойчивом грунте; h1 – глубина погружения свай в устойчивый грунт; b – расстояние между сваями в ряду; E/оп – оползневое давление, приходящееся на один удерживающий элемент (сваю).
Оползневое давление определяется по формуле
Eоп =
, (3.1)
где
заданный коэффициент устойчивости,
,
тангенциальные составляющие веса отсеков, направленные соответственно в сторону сдвига и в противоположную сторону, кН;
сила трения в i-м отсеке, кН;
сила сцепления в i-м отсеке, кН.
3.3.1 Определение расстояния b между сваями
По теории арочного эффекта критическое расстояние между сваями можно определить (рис 3.16) по формуле (3.2)
, (3.2)
где
величина, от которой зависит стрела подъема предполагаемой арки
f =
b,
средневзвешенные для всех слоев грунта, слагающих толщину
, соответственно удельное сцепление и угол внутреннего трения;
толщина слоя сползающего грунта перед свайным рядом, м; α
угол наклона поверхности сдвига грунта к горизонтали в расчетном сечении; Eоп
оползневое давление в расчетном сечении, кН/пог.м.
, (3.3)
На рис 3.17, α давление на арку qv = Eоп, кН/пог. м, а реакция на опорах Rv и распор Rh определяется по формулам:
,
, (3.4)















