Diplom_tekhnikum (1203913), страница 8
Текст из файла (страница 8)
(4.1)
где li – длина отдельных участков эвакуационного пути, м;
Vi – скорость движения людского потока на отдельных участках пути, м/мин.
Скорость движения людского потока (Vi) зависит от плотности людского потока (Di) на отдельных участках пути.
Плотность людского потока (Di) вычисляется для каждого участка эвакуационного пути по формуле:
(4.2)
где N число людей;
f средняя площадь горизонтальной проекции человека (принять f = 0,1 м2).
Время прохождения дверного проёма рассчитывается по формуле:
(4.3)
где
– ширина дверного проёма, м;
– пропускная способность 1 м ширины дверного проёма (принимается равной
для дверей шириной менее 1,6 м и
для дверей шириной 1,6 м и более).
Расчетное время эвакуации можно определить по формуле:
(4.4)
где
– время движения людей на определенном участке;
– время прохождения дверного проема.
В таблице 4.1 рассмотрим зависимость скорости движения от плотности людского потока на участках пути эвакуации.
Таблица 4.1
Зависимость скорости движения от плотности людского потока на участках пути эвакуации
| Плотность, | Скорость, | Интенсивность, |
| 0,01 | 100 | 100 |
| 0,05 | 100 | 100 |
| 0,1 | 80 | 95 |
| 0,2 | 60 | 68 |
| 0,3 | 47 | 52 |
| 0,4 | 40 | 40 |
| 0,5 | 33 | 31 |
| 0,6 | 27 | 24 |
| 0,7 | 23 | 18 |
| 0,8 | 19 | 13 |
| 0,9 и более | 15 | 8 |
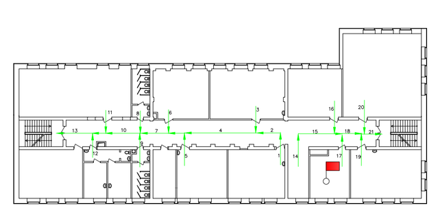
Рассмотрим схему эвакуации, представленную на рисунке 4.1.
Рисунок 4.1 Схема эвакуации при пожаре со 2 этажа здания
Рассмотрим участок №1. Время движения из самой отдалённой точки.
Рассчитаем время движения людского потока на участке №1 по формуле (4.1):
Рассчитаем плотность людского потока для участка №1 по формуле (4.2):
Рассчитаем время прохождения дверного проема по формуле (4.3):
Расчетное время эвакуации из рабочих помещений определим как суммарное время движения людского потока и прохождения дверного проема на участке №1 по формуле (4.4):
Остальные участки рассчитываются аналогично. Результаты расчета сведены в таблицу 4.2.
Таблица 4.2
Расчетное время эвакуации по участкам
| № участка | Количество человек | Длина участка, м | Время прохождения через дверной проем, мин | D, | Время расчетное, мин | |||||
| 1 | 20 | 4 | 0,4 | 0,3 | 0,485 | |||||
| 2 | 20 | 4 | 0 | 0,3 | 0,085 | |||||
| 3 | 20 | 4 | 0,4 | 0,3 | 0,485 | |||||
| 4 | 40 | 12 | 0,8 | 0,2 | 1,000 | |||||
| 5 | 15 | 4 | 0,3 | 0,2 | 0,367 | |||||
| 6 | 15 | 4 | 0,3 | 0,2 | 0,367 | |||||
| 7 | 70 | 5 | 1,4 | 0,7 | 1,617 | |||||
| 8 | 2 | 4 | 0,3 | 0,03 | 0,34 | |||||
| 9 | 2 | 4 | 0,04 | 0,03 | 0,080 | |||||
| 10 | 74 | 5 | 1,48 | 0,7 | 1,697 | |||||
| 11 | 20 | 4 | 0,4 | 0,3 | 0,485 | |||||
| 12 | 2 | 4 | 0,04 | 0,03 | 0,080 | |||||
Продолжение таблицы 4.2
| № участка | Количество человек | Длина участка, м | Время прохождения через дверной проем, мин | D, | Время расчетное, мин |
| 13 | 96 | 15 | 1,92 | 0,3 | 2,239 |
| 14 | 2 | 4 | 0,04 | 0,03 | 0,080 |
| 15 | 2 | 4 | 0,04 | 0,03 | 0,080 |
| 16 | 15 | 4 | 0,3 | 0,2 | 0,367 |
| 17 | 10 | 4 | 0,2 | 0,1 | 0,250 |
| 18 | 27 | 4 | 0,54 | 0,3 | 0,625 |
| 19 | 15 | 4 | 0,3 | 0,2 | 0,367 |
| 20 | 20 | 4 | 0,4 | 0,3 | 0,408 |
| 21 | 62 | 15 | 1,24 | 0,2 | 1,490 |
Посчитаем суммарное расчетное время по формуле:
(4.5)
где
,
,
и
– расчетное время на первом, втором, третьем и двадцать первом участке.
В результате расчета должно быть выполнено условие, что расчетное время эвакуации будет меньше, чем расчетное:
(4.6)
Согласно СП 118.13330.2012 необходимое время эвакуации из общественных зданий I и II степени огнестойкости, класса конструктивной пожарной опасности C0, C1 не более 5 мин.
Вывод: расчётное время эвакуации при пожаре на втором этаже здания образовательного учреждения не соответствует нормам пожарной безопасности.
4.4 Расчет сил и средств, необходимых для локализации и ликвидации возможного пожара на объекте исследования
Рассчитаем время свободного развития пожара по формуле:
(4.7)
где:
– время до сообщения о пожаре равно времени от начала возникновения пожара до сообщения о нем в пожарную часть. Это время колеблется в пределах 8-12 мин;
– время сбора личного состава по тревоге. Это время принимается по нормативным показателям для работников противопожарной службы, но не более одной минуты;
– время следования на пожар. Определяется при наибольшей интенсивности движения транспорта или по формуле:
(4.8)
где
– расстояние от пожарной части до объекта, км;
– средняя скорость движения пожарного автомобиля (примем 30
).
- время боевого развертывания, которое принимается от 6 до 8 мин.
Рассчитаем путь пройденный огнем по формуле:
(4.9)
где
– скорость локализации развивающегося по площади пожара;
– время свободного развития пожара.
Скорость локализации развивающегося по площади пожара может быть определена по формуле:
(4.10)
где: Vл – скорость локализации, м/мин;
– количество стволов, поданных по периметру, шт. Определяется из тактических возможностей отделений на автонасосе и автоцистерне;
– производительность ствола,
;
– линейная интенсивность подачи огнетушащих средств,
;
– время с момента введения первого до введения последнего ствола на локализацию пожара. Обычно равно половине времени боевого развертывания.
Так как прибывшее первое подразделение будет заниматься эвакуацией и проверкой помещений на наличие людей, то огонь достигнет перегородок, а пожар примет площадь этого помещения. Предел огнестойкости перегородок и дверей равна 150 и 30 мин. Площадь пожара на момент локализации будет равна площади этого помещения.
Вычисляем площадь пожара по формуле:
(4.11)















