Дипломный проект ИЛЬИНЫХ (1198085)
Текст из файла
Содержание
Введение…………………………………………………………………………...5
1 Выбор объекта исследования…………………………………………………..7
1.1 Пожарно-техническая характеристика объекта исследования……….7
2 Экспертиза объемно – планировочных, конструктивных решений, эвакуационных путей и выходов……………………………………………….15
2.1 Определение класса конструктивной пожарной опасности и степени огнестойкости…………………………………………………………..15
2.2 Соответствие степени огнестойкости и предела огнестойкости здания школы…………………………………………………………………...16
2.3 Соответствие класса конструктивной пожарной опасности и класса пожарной опасности здания школы………………………………….16
2.4 Соответствие объекта исследования требованиям по объемно-планировочным и конструктивным решениям ……………………...17
2.5 Пожарные секции……………………………………………………...19
2.6 Пожарный отсек………………………………………………………..21
2.7 Экспертиза путей эвакуации и выходов………………………………21
2.7.1 Пожарно – техническая классификация лестниц и лестничных клеток…………………………………………………………….24
2.7.2 Экспертиза лестничных клеток и путей эвакуации…………..26
2.7.3 Расчет времени эвакуации…………………………………….29
2.7.4 Расчет времени приезда пожарного расчета………………….52
3 Профилактические противопожарные мероприятия.……………………….54
3.1 Профилактические мероприятия.……………………………………..54
3.2 Меры по обеспечению пожарной безопасности в школе №85……...56
3.3 Противопожарный инструктаж………………………………………..57
3.3.1 Вводный противопожарный инструктаж……………………...59
3.3.2 Первичный инструктаж по пожарной безопасности на рабочем месте……………………………………………………………...60
3.3.3 Повторный противопожарный инструктаж…………………...61
3.3.4 Внеплановый противопожарный инструктаж………………...61
3.3.5 Целевой противопожарный инструктаж………………………62
3.4 Организационные мероприятия по пожарной безопасности при проведении лабораторных работ……………………………………...62
3.5 Организационные мероприятия по содержанию здания школы и помещений……………………………………………………………...65
3.6 Вывод по профилактическим пожарным мероприятиям……………66
3.7 Описание и расчет требуемого количества пожарных извещателей…………………………………………………………….67
3.7.1 Назначение дымового пожарного извещателя………………..68
3.7.2 Принцип действия и устройство……………………………….68
3.7.3 Расчет необходимого количества пожарных извещателей…..69
4 Экспертиза первичных средств пожаротушения……………………………74
4.1 Виды первичных средств пожаротушения…………………………...74
4.1.1 Огнетушители…………………………………………………...75
4.1.2 Пожарный кран………………………………………………….79
4.1.3 Пожарный инвентарь…………………………………………...79
5 Расчет экономической эффективности обеспечения пожарной безопасности в МБОУ СОШ №85……………………………………………………………...81
5.1 Экономическая эффективность………………………………………..81
5.2 Показатели экономической эффективности………………………….82
5.3 Расчет экономической эффективности……………………………….83
6 Обеспечение электробезопасности в школе…………………………………90
6.1 Определение электробезопасности, статистика, электротравмы…...90
6.2 Влияние электрического тока на человека, возможные причины поражения электрическим током……………………………………...91
6.3 Помещения с повышенной электрической опасностью, мероприятия по электробезопасности в школе №85………………………………..93
6.4 Исследование и расчет защитного заземления в кабинете труда.…..95
Заключение……………………………………………………………………….98
Список использованных источников…………………………………………...99
Введение
В современном мире опасные и чрезвычайные ситуации природного, техногенного и социального характера стали объективной реальностью в процессе жизнедеятельности каждого человека.
Анализ трагических последствий различных опасных и чрезвычайных ситуаций показывает, что более чем в 80% случаев причиной гибели людей является «человеческий фактор».
По мнению специалистов МЧС России, «человеческий фактор» в настоящее время является, если не главным, то определяющим в деле обеспечения безопасности.
За период с 2012 по 2016 год в Российской федерации произошло 1565 пожаров в зданиях образовательных организаций. Из них 49,7% по причине нарушения правил эксплуатации электрооборудования и бытовых приборов, 17,4% из-за неосторожного обращения с огнем, 14,2% по причине поджогов. За данный период погибло 9 человек и пострадало более 50 [24].
Основными причинами возникновения пожаров в общеобразовательных организациях являются:
- неосторожное обращение с огнём при ремонтных работах, на уроках химии;
- нарушение правил пожарной безопасности при устройстве и эксплуатации электрооборудования и бытовых электроприборов;
- курение учащихся в неположенных местах;
- самовозгорание веществ и материалов в кабинете химии и лаборантском помещении;
- износившаяся от времени, старая проводка;
- поджог.
Особенностью эвакуации при пожарах в общеобразовательных учреждениях:
- панический испуг детей, неуправляемость или укрытие их в труднодоступных местах;
- слишком большое количество детей по отношению к количеству взрослого персонала.
Эти факторы значительно осложняют эвакуацию, разведку и тушение пожара в зданиях общеобразовательных учреждений.
Цель дипломного проекта: провести экспертизу обеспечения пожарной безопасности в МБОУ СОШ №85.
Задачи дипломного проекта:
- провести анализ строительных конструкций;
- рассчитать время эвакуации для каждого пути;
- выполнить анализ проведения профилактических мероприятий в школе;
- провести экспертизу первичных средств пожаротушения;
- рассчитать экономическую эффективность обеспечения пожарной безопасности в школе;
- в разделе безопасности жизнедеятельности выполнить расчет требуемого количества заземлителей для безопасной работы с электрооборудованием.
1 Выбор объекта исследования
1.1 Пожарно-техническая характеристика объекта исследования
Объектом исследования является Муниципальное бюджетное общеобразовательное учреждение Средняя общеобразовательная школа №85, г. Хабаровск ул. Малиновского 19 (рисунок 1.1).
Рисунок 1.1 МБОУ СОШ №85
Здание МБОУ СОШ №85 – 3-х этажное здание 1984 года постройки, П – образной формы с пристройкой, степень огнестойкости – I, класс конструктивной пожарной опасности – C1. Площадь – 5818,9 м2.
В подвальном помещении распологается водопровод, инвентарь уборщика. Площадь подвального помещения – 2340,8 м2.
Здание трехэтажное из железобетонных плит, 1-ой степени огнестойкости. Стены, перекрытия и перегородки выполнены из железобетонных плит. Толщина несущих стен 450 мм, ненесущих – 150 мм.
Кровля плоская, рулонная.
Отопление: центральное, водяное.
Вентиляция: естественная, приточно – вытяжная.
Высота 10 м, 3 этажа.
Фундамент – железобетонные блоки.
Стены – железобетонные панели.
Перегородки – железобетонные панели.
Перекрытия – железобетонные плиты.
Полы – бетонные, плитка, дощатые, линолеум.
Проемы оконные – пластиковые, 2-е створные.
Проемы дверные – пластиковые, деревянные, металлические.
Внутренняя отделка – штукатурка, побелка стен и потолка, плитка, обои.
Лестничные марши – бетонные.
Ниже приведены планы помещений 1-го, 2-го и 3-го этажа (см. рисунок 1.2-1.6) и экспликация помещений.
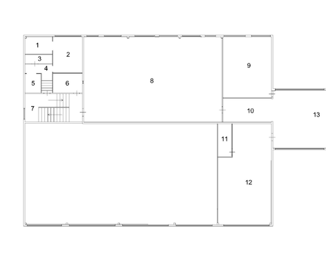
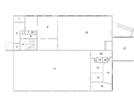
Рисунок 1.2 План помещений в пристройке 1 этаж
Помещения, расположенные в пристройке на 1 этаже:
1 – Холодная камера. Предназначена для охлаждения и хранения продуктов.
2, 3, 5, 6, 20 – Коридор.
4 – Лестничная клетка.
7, 16, 19 – Туалет.
8, 17, 18 – Душевая комната. Предназначена для принятия душа персоналом и учащимися.
9 – Пищеблок. Предназначен для хранения, обработки и приготовления еды для учащихся и персонала. Пищеблок является помещением повышенной пожарной опасности, так как используется техника с высоким напряжением (380 Вт).
10 – Обеденный зал.
11 – Спортзал. Предназначен для хранения спортивного инвентаря и занятия спортом учащимися.
12, 13, 14, 15 – Раздевалка.
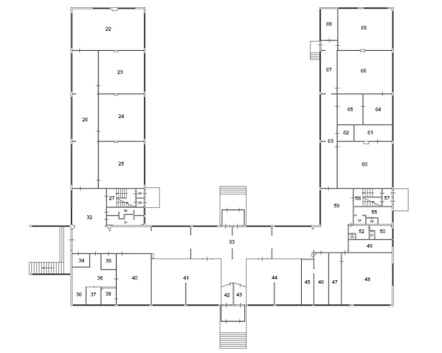
Рисунок 1.3 План помещений 1 этаж
Помещения, расположенные на 1 этаже:
22 – Кабинет физкультуры для младших классов;
23, 24, 25, 48, 60, 66, 68 – Кабинеты для учащихся;
26, 32, 33, 35, 52, 59, 63, 67 – Коридор;
27, 58 – Лестничная клетка.
28, 29, 43, 57 – Тамбур.
30, 31, 54, 55, 56 – Санузел.
34 – Электрощитовая. Является объектом повышенной пожарной опасности. Помещение доступно только для обслуживающего квалифицированного персонала, в котором устанавливаются вводное устройство, вводно-распределительное устройство, главный распределительный щит и другие распределительные устройства.
36, 37, 40, 49 – Кабинеты.
38, 39, 47, 50, 51, 53, 61, 62, 64, 65 – Подсобное помещение.
41, 44 – Спортзал.
42 – Охрана.
45, 46 – Медкабинет.
69 – Кабинет труда. В кабинете труда производятся столярные, шлифовальные работы вследствие которых образуется древесная пыль. Так же в данном помещении расположены станки с высоким напряжением (380 Вт). Данное помещение является объектом повышенной пожарной опасности.
Рисунок 1.4 План помещений 2 этаж
Помещения, расположенные в пристройке на 2 этаже:
1, 5, 6, 11 – Подсобное помещение.
2 – Кабинет.
3 – Туалет.
4, 10 – Коридор.
7 – Лестничная клетка.
8 – Актовый зал.
9, 12 – Кабинеты для учащихся.
13 – Холл.
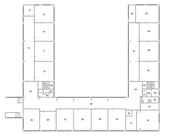
Рисунок 1.5 План помещений 2 этаж
Помещения, расположенные на 2 этаже:
14, 26, 50 – Кабинеты для преподавателей.
15, 16, 17, 18, 25, 27, 28, 29, 30, 45, 46, 48 – Кабинеты для учащихся.
19, 23, 24, 40, 42, 44, 47 – Коридор.
20, 43 – Лестничная клетка.
21, 22, 35, 36, 37, 38 – Туалет.
31, 32, 41, 39 – Подсобное помещение.
34 – Школьный музей.
49 – Библиотека. Является пожароопасной зоной, так как в данном помещении расположено большое количество бумажной продукции.
Рисунок 1.6 План помещений 3 этаж
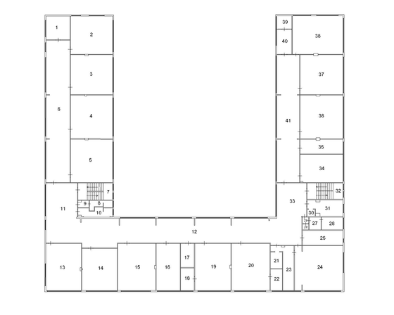
Помещения, расположенные на 3 этаже:
1, 35, 39, 40 – Кабинеты для преподавателей.
2, 3, 4, 5, 13, 14, 15, 16, 19, 20, 24, 34, 36, 37, 38 – Кабинеты для учащихся.
6, 11, 12, 29, 33, 41 – Коридор.
7, 32 – Лестничная клетка.
8, 9, 10, 26, 27, 28, 30, 31 – Туалет.
17, 18, 21, 22 – Подсобное помещение.
25 – Стоматологический кабинет.
23 – Лаборантское помещение. В данном кабинете хранятся различные химические вещества, жидкости, реактивы, которые могут самовоспламениться или воспламениться при соединении веществ. Так же вещества выделяют легковоспламеняющиеся пары, что делает лаборантское помещение объектом повышенной пожарной опасности.
24 – Кабинет химии. В данном кабинете проводятся занятия, во время которых ученикам предоставляются для работы химические вещества, жидкости, реактивы, которые могут самовоспламениться или воспламениться при соединении веществ. Так же вещества выделяют легковоспламеняющиеся пары, что делает кабинет химии объектом повышенной пожарной опасности.
2 Экспертиза объемно – планировочных, конструктивных решений, эвакуационных путей и выходов
2.1 Определение класса конструктивной пожарной опасности и степени огнестойкости
Согласно ФЗ №123 (ст. 32 [1]) здания общеобразовательных организаций, организаций дополнительного образования детей, профессиональных образовательных организаций, то есть школа относится к классу функциональной пожарной опасности Ф 4.1.
В соответствии с СП 2.13130.2012 (пункт 6.7.15 [2]) степень огнестойкости, класс конструктивной пожарной опасности и наибольшую высоту зданий школ (общеобразовательных и дополнительного образования детей), учебных корпусов школ-интернатов, учреждений начального образования (Ф 4.1) следует принимать в зависимости от числа учащихся или мест в здании (таблица 2.1).
Характеристики
Тип файла документ
Документы такого типа открываются такими программами, как Microsoft Office Word на компьютерах Windows, Apple Pages на компьютерах Mac, Open Office - бесплатная альтернатива на различных платформах, в том числе Linux. Наиболее простым и современным решением будут Google документы, так как открываются онлайн без скачивания прямо в браузере на любой платформе. Существуют российские качественные аналоги, например от Яндекса.
Будьте внимательны на мобильных устройствах, так как там используются упрощённый функционал даже в официальном приложении от Microsoft, поэтому для просмотра скачивайте PDF-версию. А если нужно редактировать файл, то используйте оригинальный файл.
Файлы такого типа обычно разбиты на страницы, а текст может быть форматированным (жирный, курсив, выбор шрифта, таблицы и т.п.), а также в него можно добавлять изображения. Формат идеально подходит для рефератов, докладов и РПЗ курсовых проектов, которые необходимо распечатать. Кстати перед печатью также сохраняйте файл в PDF, так как принтер может начудить со шрифтами.















