Диплом Бухта гр957 (1198039), страница 2
Текст из файла (страница 2)
В таблице 1.3 указанна экспликация помещений подвала первого корпуса.
Таблица 1.3
Экспликация подвала первого корпуса
| Подвал | |||
| № | Назначение помещения | Площадь(м2) | Высота(м) |
| 1 | Узел управления | 8 | 2,4 |
Продолжение таблицы 1.3
Экспликация подвала первого корпуса
| № | Назначение помещения | Площадь(м2) | Высота(м) | |
| 2 | Электрощитовая | 6,2 | 2,4 | |
| 3 | Лестничная клетка | 29,5 | 2,4 | |
| 4 | Вентиляционная | 6,8 | 14,9 | |
| 5 | Туалет | 1,1 | 2,55 | |
| 6 | Туалет | 1,1 | 2,55 | |
| 7 | Туалет | 1,1 | 2,55 | |
| 8 | Туалет | 1,1 | 2,55 | |
| 9 | Туалет | 4,1 | 2,55 | |
| 10 | Умывальная | 4,1 | 2,55 | |
| 11 | Коридор | 7,6 | 2,55 | |
| 12 | Кладовая | 11 | 2,55 | |
| 13 | Подсобное помещение | 24,3 | 2,55 | |
| 14 | Электрощитовая | 25 | 2,55 | |
| 15 | Склад | 14,7 | 2,55 | |
| 16 | Лестничная клетка | 22,4 | 2,55 | |
| 17 | Склад | 5,7 | 2,55 | |
| № | Назначение помещения | Площадь(м2) | Высота(м) | |
| 18 | Вентиляционная камера | 7,9 | 3,79 | |
| 19 | Вентиляционная | 133 | 3,79 | |
| 20 | Кабинет | 20,6 | 3,79 | |
| 21 | Подсобное помещение | 20,5 | 3,79 | |
| Общая площадь | 355,6 | |||
На рис 1.4 изображен план цоколя первого корпуса.
Рисунок 1.4 План цоколя первого корпуса
В таблице 1.4 указанна экспликация помещений цоколя первого корпуса.
Таблица 1.4
Экспликация цоколя первого корпуса
| Цоколь | ||||
| № | Назначение помещения | Площадь(м2) | Высота(м) | |
| 1 | Коридор | 20,8 | 2,8 | |
| 2 | Гардероб | 4,3 | 2,8 | |
| 3 | Элеваторная | 7,9 | 2,8 | |
| Общая площадь | 33 | |||
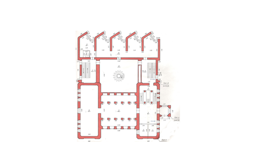
На рис 1.5 изображен план первого этажа первого корпуса.
Рисунок 1.5 План первого этажа первого корпуса
В таблице 1.5 указана экспликация помещений первого этажа первого корпуса.
Таблица 1.5
Экспликация первого этажа первого корпуса
| Первый этаж | |||
| № | Назначение помещения | Площадь (м2) | Высота (м) |
| 1 | Кабинет | 13,4 | 4,3 |
| 2 | Кабинет | 13,3 | 4,3 |
| 3 | Вестибюль | 48,3 | 4,3 |
| 4 | Лестничная клетка | 44,2 | 4,3 |
| 5 | Зал обозрения | 169,2 | 5,72 |
| 6 | Зал обозрения | 123,1 | 5,72 |
| 7 | Лестничная клетка | 47,3 | 5,72 |
Продолжение таблицы 1.5
Экспликация первого этажа первого корпуса
| № | Назначение помещения | Площадь (м2) | Высота (м) | |
| 8 | 177,3 | 5,72 | ||
| 9 | Лестничная клетка | 47 | 5,72 | |
| № | Назначение помещения | Площадь(м2) | Высота(м) | |
| 10 | Зал обозрения | 157 | 5,72 | |
| 11 | Мастерская | 25,7 | 5,72 | |
| 12 | Ванная | 6 | 5,72 | |
| Общая площадь | 811,8 | |||
На рис 1.6 изображен план второго этажа первого корпуса.
Рисунок 1.6 План второго этажа первого корпуса
В таблице 1.6 указанна экспликация помещений второго этажа первого корпуса.
Таблица 1.6
Экспликация второго этажа первого корпуса
| Второй этаж | ||||
| № | Назначение помещения | Площадь(м2) | Высота(м) | |
| 1 | Зал обозрения | 77,9 | 4,3 | |
| 2 | Лестничная клетка | 42, | 4,3 | |
| 3 | Зал обозрения | 167,7 | 4,3 | |
| 4 | Зал обозрения | 122,4 | 4,3 | |
| 5 | Лестничная клетка | 48,1 | 5,72 | |
| 6 | Зал обозрения | 186,1 | 5,72 | |
| 7 | Лестничная клетка | 47,4 | 5,72 | |
| 8 | Мастерская | 35,9 | 5,72 | |
| 9 | Мастерская | 71,3 | 5,72 | |
| 10 | Мастерская | 40 | 5,72 | |
| 11 | Коридор | 4 | 5,72 | |
| 12 | Мастерская | 9,4 | 5,72 | |
| 13 | Мастерская | 31,6 | 5,72 | |
| Общая площадь | 884,3 | |||
На рис 1.7 изображен план третьего этажа первого корпуса.
Рисунок 1.7 План третьего этажа первого корпуса
В таблице 1.7 указана экспликация помещений третьего этажа первого корпуса.
Таблица 1.7
Экспликация третьего этажа первого корпуса
| Третий этаж | |||
| № | Назначение помещения | Площадь (м2) | Высота (м) |
| 1 | Зал обозрения | 81 | 4,3 |
| 2 | Лестничная клетка | 42,4 | 4,3 |
| 3 | Кабинет | 15,3 | 4,3 |
| 4 | Кабинет | 26,9 | 4,3 |
| 5 | Кабинет | 11 | 4,3 |
| 6 | Кабинет | 15,6 | 4,3 |
| 7 | Кабинет | 64,2 | 4,3 |
| 8 | Ванная | 3,6 | 4,3 |
Продолжение таблицы 1.7
Экспликация третьего этажа первого корпуса
| № | Назначение помещения | Площадь (м2) | Высота (м) | |
| 9 | Фондохранилище | 28,1 | 4,3 | |
| 10 | Фондохранилище | 122,4 | 4,3 | |
| 11 | Лестничная клетка | 47,4 | 3,84 | |
| № | Назначение помещения | Площадь(м2) | Высота(м) | |
| 12 | Зал обозрения | 182,5 | 3,84 | |
| 13 | Лестничная клетка | 47,5 | 3,84 | |
| 14 | Коридор | 28,1 | 3,84 | |
| 15 | Кабинет | 33,4 | 3,84 | |
| 16 | Шкаф | 0,4 | 3,84 | |
| 17 | Кабинет | 28,9 | 3,84 | |
| 18 | Кабинет | 29,3 | 3,84 | |
| 19 | Кабинет | 29,6 | 3,84 | |
| 20 | Кабинет | 27,9 | 3,84 | |
| 21 | Подсобное помещение | 4,8 | 3,84 | |
| 22 | Фондохранилище | 3,7 | 2 | |
| 23 | Коридор | 3,7 | 1,7 | |
| 24 | Фондохранилище | 38,2 | 1,7 | |
| 25 | Фондохранилище | 61,2 | 2 | |
| Общая площадь | 977,1 | |||
На рисунке 1.7 изображен план третьего этажа первого корпуса.















