ДИПЛОМ (1193795), страница 3
Текст из файла (страница 3)
Выберем конструкцию ковшового захвата с нижним центром поворота так как ковши этого типа имеют простую конструкцию, небольшой вес, не требуют специальной рамы для установки на каретку механизма подъёма, что облегчает собственный вес навесного оборудования (самого ковша), а также способ и время монтажа на каретку механизма подъёма груза.
В современном погрузчике ВП -05 рисунок 21 применяется гидростатическая трансмиссия. Гидростатическая трансмиссия это позволяет снизить нагрузку на двигатель и трансмиссию при выборе ковшового захвата с нижним центром поворота.
Рисунок 21. Универсальный погрузчик ВП-05
2. Конструкторский раздел
2.1 Расчет и обоснование геометрических размеров ковша.
Размеры основного ковша погрузчиков вычисляются в зависимости от требуемой его вместимости и ширины (максимального поперечного габарита) базовой машины.
Геометрические параметра ковша, определяющего его вместимость должны соответствовать значениям грузоподъёмности погрузчика и веса насыпного материала. Задача проектирования ковша заключается в определение его размерно – геометрических параметров, обеспечивающих вместимость соответствующей заданной грузоподъёмности.
Ковш должен обеспечить работу погрузчика в тяжелых и легких условиях, сохраняя при этом постоянную номинальную грузоподъёмность.
Определим массу рабочего оборудования
= k
где
– масса базовой машины = 7800 кг: k – коэффициент для колёсных погрузчиков 0,3. (1)
= k
= 0,3 7800 = 2340кг.
Определим вес подымаемого груза
= 4950 - 2340= 2610 кг. (2)
= 2610 кг.
Для оценки рациональности использования массы базовой машины и совершенство ходовой части определяем по коэффициенту удельной грузоподъёмности
(3)
q = 0,2…0,35 - для колесных погрузчиков
Где
полная грузоподъёмность оборудования = 4950 кг;
масса базовой машины = 7800 кг;
Рисунок 22. Зависимость грузоподъёмности
погрузчика от эксплуатационной массы
Различают геометрические номинальную и максимальную вместимость ковша и его вместимость с шапкой. Плотность материала и вместимость ковша характеризуется условием
=
Vгш
Vг ; (4)
Где,
и
- минимальное и максимальное значение плотности насыпного материала ковша.
Vгш и Vг - геометрическая номинальная вместимость ковша и вместимость его с шапкой.
Номинальная вместимость основного ковша, предназначенного для работы с сыпучими и мелкокусковым материалами плотностью от 1,5 до 1,8 т/
, определяется по номинальной грузоподъёмности.
=
(5)
Где
– вес подымаемого груза, 2.610 т;
- коэффициент наполнения ковша,
= 1,25;
- средняя плотность материала, у=1,6 т/
=
При у=1,6 т/
внутренняя полость ковша заполняется с шапкой.
Объем ковша с шапкой определяется по формуле:
= 1,25
; (6)
= 1,25 1,3=1,631
Размеры основного ковша фронтальных погрузчиков вычисляются в зависимости от требуемой его вместимости и ширины (максимального поперечного габарита) базовой машины.
Внутреннюю ширину ковша В0 принимают равной величины следа или ширины базовой машины (50… 150) +
по формуле:
(7)
где
- максимальный поперечный габарит базовой машины, (2100) мм;
2.
=2100 + 150=2,250 м
3.Определим радиус поворота ковша
.
=
(8)
Где:
– номинальная вместимость ковша
;
- относительная длинна днища ковша
= 1,4 до 1,5;
- относительная длинна задней стенки ковша,
= 1,35 до 1,45;
- относительная высота козырька ковша,
= 0,12 до 0,14;
- относительный радиус сопряжения днища и задней стенки ковша,
от 0,35 до 0,40;
- угол между плоскостью козырька и продолжением плоскости задней стенки ковша,
от 5 до 10º;
- угол между задней стенкой и днищем ковша,
от 48 до 52º
=
= 0.92 м
Основным геометрическим параметром является радиус ковша его днища.
По расчетному радиусу поворота определяются геометрические размеры ковша.
Радиус днища ковша или радиус сопряжения определим по формуле:
(9)
Рисунок 23. Зависимость радиуса
ковша от грузоподъемности.
Условная значения длины стенок ковша и его профиль изображены на рисунке 24 и рассчитываются:
– условная длина передней стенки (10)
Длина задней стенки – расстояние от верхнего края задней стенки или основания козырька до пересечения с днищем ковша. Длину задней стенки определим по формуле:
(11)
Высота козырька определяется по формуле:
(12)
Высота крепления ковша к пластине
(13)
Угол наклона режущих кромок боковых стенок относительно днища
Принимаем
Угол заострения режущих кромок,
Принимаем
Таблица 1. Параметры ковша с углом
Рисунок 24. Профиль основного ковша.
2.2 Расчет сопротивлений
Рисунок 25. Расчетная схема взаимодействия ковша со штабелем материала.
Усилие
в начале поворота (рис.25) (при определении, что силы сопротивления сдвигу материала по лобовой
, и боковой
поверхностям и сила веса сдвигаемого материала
приложены к режущей кромке ковша), на которое должны быть рассчитаны гидроцилиндры механизма поворота ковша, определяется по формуле.
=
, Н (14)
Где
- веса ковша, Н.
- плечи действия сил, м.
Вес основного ковша
составляет 0,3 грузоподъемности погрузчика
= 2610 кг
- вес номинального груза =2610 9.8 = 20227 Н
= (0.3
0.35)
(15)
= 0.3
= 6674 Н
Плечи действия сил с небольшими погрешностями можно принять:
= 0.42 м (16)
=
(17)
Где
– радиус поворота ковша м.
- высота крепления шарнира ковша берем из масштабной схемы
= 0,20 м
=
= 0,89
Плечо l (расстояние между шарнирами) действия силы
может быть определено.
l =
= 0,3562
(18)
l =
= 0,3562
= 0,453 м.
Сила
определяется по формуле:
= c
(19)
= 400 5,8 1,8 = 4176 Н
Где, с - величина напряжения при сцеплении сыпучих материалов с от 40 до 1000 Па. Для среднекускового щебня при кратковременном слеживании можно принять от 200 до 400 Па;
к - коэффициент, зависящий от угла внутреннего трения (для большинства строительных сыпучих материалов можно принять к =1,8);
- площадь лобового сдвига, м
.
= 1,43
(
+ 1,3
(20)
= 1,430,87(0,87 +1,32,085) = 4,45
.
Где
- глубина внедрения режущей кромки ковша в штабель материала (рисунок 3.1), м;
= 1,15
(21)
= 1.15 0,75 = 0.87 м
Глубина ковша определяется по формуле:
, м (22)
= 1,08
= 0,75 м
Суммарная сила сопротивления сдвигу материала по боковым поверхностям
определяется по формуле:
= c
= 748Н. (23)
= 400
= 748Н.
Где
- площадь боковых площадок, м.
Боковая площадь сдвига определяется по формуле:
= 0.93
(24)
= 0.93
= 0,52
Вес материала в призме сдвига
:
=
: Н (25)
= 1,61 1,6 = 2,576 т :
= 2576 9,8 = 25244 Н
Где -
объём призмы сдвигаемого материала, м
;
- плотность материала, в среднем =16 кН/м
.
Для сыпучего материала объём призмы сдвигаемого материала при повороте ковша определяется по формуле:
= 0,93
cos 22.5 (
+ 1.24
sin 22.5)
(26)
= 0,93
0,92 (
+ 1.24
0,38) = 1,61
Объем и вес сдвигаемого материала могут быть меньше объема ковша и номинальной грузоподъемности погрузчика.
Рассчитываем усилие
в начале поворота ковша (14)
=
= 66735,7 Н
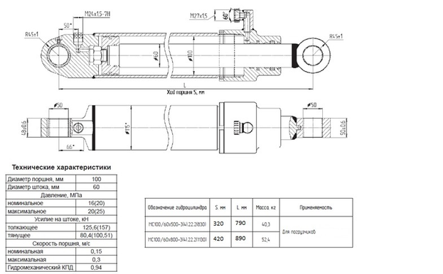
2.3 Расчет гидроцилиндров поворота ковша
Диаметр штока гидроцилиндра определяется по формуле:
(27)
Для двух цилиндров = 0,059 м
Принимается гидроцилиндр двухстороннего действия (рис.26) МC 100/60хS-3(4).22.2
Рисунок 26. Цилиндр поворота ковша.
Диаметр штока цилиндров = 0,060 м
2.4 Расчет грузоподъемника вилочного погрузчика
2.4.1 Расчет механизма подъема груза
Рисунок 27. Механизм подъема автопогрузчика. Схема действия сил.
Таблица 2
Целью данного расчета является определение основных параметров исполнительных механизмов подъема груза и подбор параметров грузовых вил.
Необходимое условие подъема по плунжеру определяется по формуле:
(28)
где
- сопротивление подъёму груза и подъёмной каретки с вилами, вызванное действием их сил тяжести;
- сопротивление подъёму выдвижной рамы с плунжером, траверсой и с
грузовыми цепями, вызванное действием их сил тяжести;
- сопротивление качению основных катков рам и каретки по направляющим;
- сопротивление качению боковых катков рам и каретки по направляющим.
Сопротивление подъёму груза, подъёмной каретки с вилами, выдвижной рамы с плунжером, траверсой и грузовыми цепями определяется по выражению:















