АС ПЗ Администрация (1189879), страница 9
Текст из файла (страница 9)
Рисунок А.1 План на отм. 0.000
Рисунок А.2 План на отм.+3.300
Рисунок А.3 План на отм.+6.600
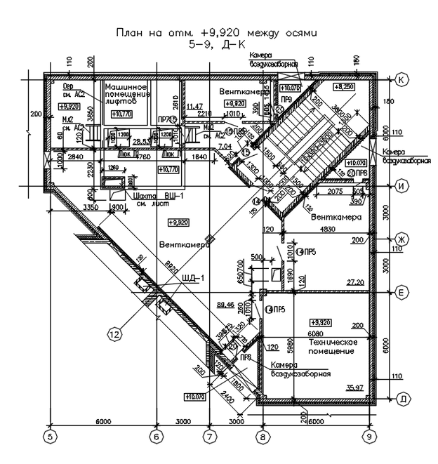
Рисунок А.4 План на отм.+9,920 между осями 5-9,Д-К
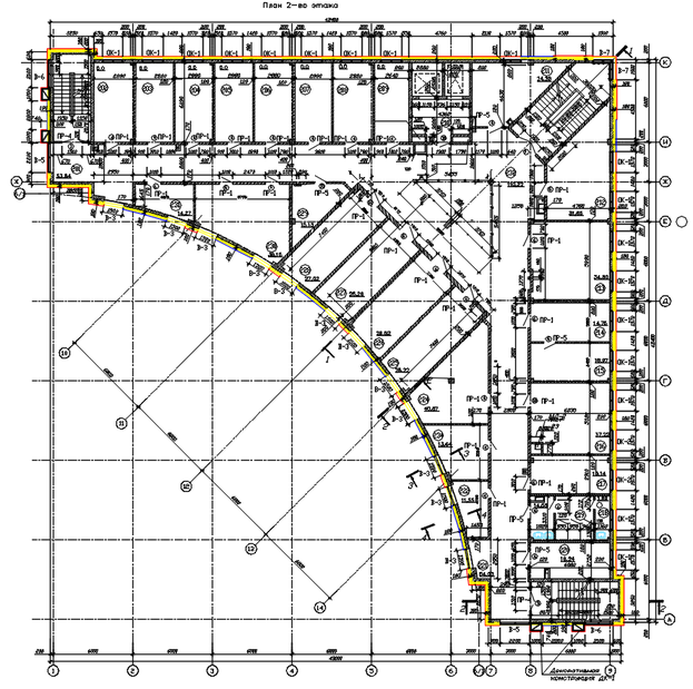
Рисунок А.5 План на отм. +9,900 между осями 1-2.
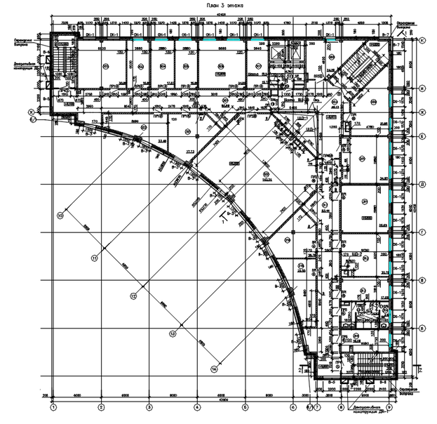
Рисунок А.6 План на отм. +9,900 между осями 7-9.
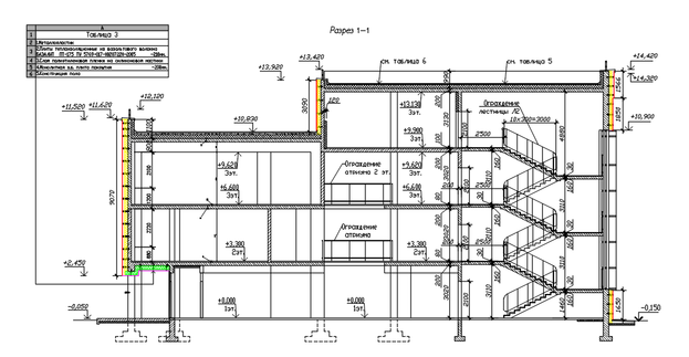
Рисунок А.7 Разрез 1-1
Рисунок А.8 Разрез 2-2
Рисунок А.9 Фасад в осях 1-9
Рисунок А.10 Фасад в осях А-К
Рисунок А.11 Фасад в осях 9-1
ПРИЛОЖЕНИЕ Б
Таблица Б.1 – Навесной вентилируемый фасад
Продолжение таблица Б.1
Продолжение таблица Б.1
Окончание таблица Б.1
ПРИЛОЖЕНИЕ В
Рисунок В.1 деталь устройства водостока ВВ2
ПРИЛОЖЕНИЕ Г
Таблица Г.1 – Расчет индекса изоляции воздушного шума
| Параметры | Среднегеометрическая частота 1/3 октавной полосы, Гц | |||||||||||||||||
| 100 | 125 | 160 | 200 | 250 | 315 | 400 | 500 | 630 | 800 | 1000 | 1250 | 1600 | 2000 | 2500 | 3125 | |||
| Расчетная частотная характеристика, R, дБ | 34,5 | 34,5 | 34,5 | 34,5 | 34,5 | 36,5 | 38,5 | 40,5 | 42,5 | 44,5 | 46,5 | 48,5 | 50,5 | 52,5 | 54,5 | 56,5 | ||
| Оценочная кривая, дБ | 33 | 36 | 39 | 42 | 45 | 48 | 51 | 52 | 53 | 54 | 55 | 56 | 56 | 56 | 56 | 56 | ||
| Неблагоприятные отклонения, дБ | - | 1,5 | 4,5 | 7,5 | 10,5 | 11,5 | 12,5 | 11,5 | 10,5 | 9,5 | 8,5 | 7,5 | 5,5 | 3,5 | 1,5 | - | ||
| Оценочная кривая, смещенная вниз на 7 дБ | 26 | 29 | 32 | 35 | 38 | 41 | 44 | 45 | 46 | 47 | 48 | 49 | 49 | 49 | 49 | 49 | ||
| Неблагоприятные отклонения, дБ | - | - | - | 0,5 | 3,5 | 4,5 | 5,5 | 4,5 | 3,5 | 2,5 | 1,5 | 0,5 | - | - | - | - | ||
| Индекс изоляции воздушного шума Rw, дБ | 45 | |||||||||||||||||
ПРИЛОЖЕНИЕ Д
Таблица Д.1 – Расчет элементов перегородок санузлов первого этажа
Таблица Д.2 – Расчет элементов перегородок санузлов второго этажа
Таблица Д.2 – Расчет элементов перегородок санузлов третьего этажа















