Сварка_готовая работа (1166338)
Текст из файла
Содержание
Введение 3
1 Основная часть 4
1.1 Описание изделия 4
1.2 Материал изделия 6
2 Выбор способа сварки 7
2.1 Выбор сварочных материалов 7
2.2 Выбор сварочного оборудования 8
2.2.1 Инвертор 8
2.2.2 Электрододержатель 10
2.2.3 Маски 11
2.2.4 Сварочные провода 13
2.2.5 Инструменты электросварщика 13
2.3 Подготовка металла к сборке и сварке 14
2.4 Техника и технология сварки 15
2.4.1 Техника сварки 15
2.4.2 Технология сварки 16
2.5 Контроль качества сварных соединений 17
3 Охрана труда, техника безопасности и пожарная безопасность 20
3.1 Мероприятия по охране труда 20
3.2 Мероприятия по технике безопасности 22
3.3 Мероприятия по пожарной безопасности 25
Заключение 26
Список литературы 27
Введение
В настоящее время широкое распространение при изготовлении изделий нашел технологический процесс соединения деталей - сварка. Практически на любом производстве он нашел свое применение благодаря простоте и дешевизне готового изделия.
Для рассматриваемого изделия «Кронштейн», сварка обеспечивает следующие особенности:
- жесткость;
- точность;
- надежность;
- дешевизна;
- небольшие трудозатраты на выполнении сварочных работ.
На примере изделия «Кронштейн» будет приведена следующая информацию:
- назначение сварной конструкции;
- характеристики основного металла изготовления сварной конструкции;
- выбор сварочных материалов;
- выбор сварочного оборудования;
- подготовка металла деталей к сборке и сварке;
- техника и технология сварки;
- контроль качества сварных соединений;
- охрана труда, техника безопасности и пожарная безопасность.
Тема работы является очень важной, поскольку сварка позволяет изготавливать достаточно сложные изделия (в нашем случае, сборочная единица «Кронштейн»), которые зачастую, затруднительно изготовить другими способами, а иногда и просто невозможно.
1 Основная часть
1.1 Описание изделия
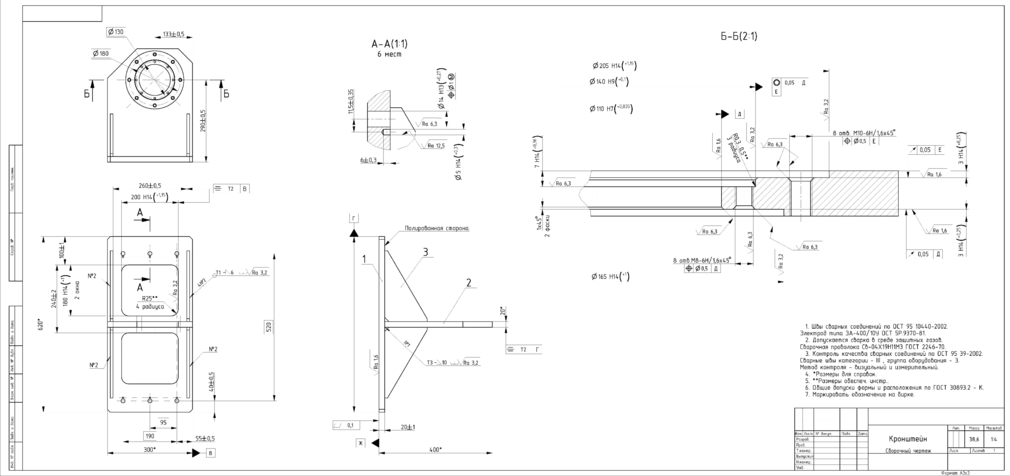
Кронштейн представляет собой сварную конструкцию, состоящую из основания поз. 1 (см. прилагаемый чертеж), к которому приваривается лист поз. 2 и с помощью уголков поз. 3 детали поз. 1 и 2 скрепляются между собой.
Кронштейн устанавливается в хранилище отработавшего ядерного топлива (ОЯТ) и служит для установки на него токоподвода манипулятора, с помощью которого перемещаются пеналы с ОЯТ.
Кронштейн имеет привалочную поверхность для установки на закладную детали, а также точное отверстие (гладкое) для центрирования и резьбовые отверстия для закрепления, устанавливаемого на кронштейн оборудования.
Отметим, что для изготовления кронштейна конструктор указал ручную дуговую сварку, но при этом допускается сварка в среде защитных газов.
Общий вид изделия «Кронштейн» представлен на рисунке 1.1.
Рисунок 1.1 – Общий вид изделия «Кронштейн»
1.2 Материал изделия
Материал изготовления кронштейна – сталь 12Х18Н10Т.
Сталь 12Х18Н10Т - нержавеющая стали аустенитного класса.
Применяется для изготовления деталей, работающих до
, сварных аппаратов и сосудов, работающих в разбавленных растворах азотной, фосфорной и других видов кислот.
Химический состав, механический свойства и технологические свойства – см. таблицы 1.1, 1.2, 1.3.
Таблица 1.1 - Химический состав в % материала 12Х18Н10Т
| C | Si | Mn | Ni | S | P | Cr | Cu |
|
|
|
|
| |
|
| |
Таблица 1.2 - Механические свойства при Т=20oС материала 12Х18Н10Т
| Сортамент | Размер | Напр. | в | T | 5 | | KCU | Термообр. |
| - | мм | - | МПа | МПа | % | % | кДж / м2 | - |
| Сталь горячекатаная | 20 - 40 |
|
|
|
|
|
|
|
Таблица 1.3 - Технологические свойства материала 12Х18Н10Т
| Свариваемость: | без ограничений. |
| Склонность к отпускной хрупкости: | не склонна. |
| Флокеночувствительность: | не чувствительна. |
2 Выбор способа сварки
2.1 Выбор сварочных материалов
В качестве способа сварки будем использовать ручную дуговую сварку. Он обеспечивает необходимое качество сварного шва, является экономичным (относительно других типов сварки) и не требует специального оборудования. Отметим, что в чертеже конструктор указал тип электрод, поэтому ручная дуговая сварка оправдана.
Под режимами сварки понимается совокупность параметров, которые обеспечивают горение дуги (устойчивое), при одновременном получении сварных швов заданных форм, размеров и свойств. Известно, что параметры режимов сварки подразделяются на:
- основные;
- дополнительные.
Основные параметры характеризуются:
- полярностью и родом сварочного тока;
- диаметром электрода;
- силой сварочного тока;
- напряжением дуги.
Дополнительные параметры характеризуются:
- числом проходов;
- составом и толщиной покрытий;
- положением сварного шва в пространстве.
Диаметр электродов зависти от толщины металла, положения шва в пространстве и катета шва. Примерное соотношение между толщиной металла S и диаметром электрода d при сварке шва в нижнем положении приведены в таблице 2.1.
Таблица 2.1 – Соотношение между толщиной металла S и диаметром электрода d
| №№ | S (толщина листа), мм | d (диаметр электрода), мм |
| 1 | 1-2 | 2-3 |
| 2 | 3-5 | 3-4 |
| 3 | 4-10 | 4-5 |
| 4 | 12-24 | 5-6 |
| 5 | 30-60 | 6 и более |
Горизонтальные, вертикальные и потолочные швы вне зависимости от толщины свариваемого металла, как правило, выполняются электродами небольшого диаметра (до 5 мм), поскольку происходит меньше стекания жидкого металла, а также шлака из сварочной ванны. Для обеспечения лучшего провара корня шва при сварке многослойных швов - первый шов сваривают электродом диаметром 3-4 мм, а последующие - электродами большего диаметра.
Толщина основания и листа в сборочной единице «Кронштейн» равна 20 мм.
По таблице 2.1 выбираем толщину электрода – 5 мм.
По ОСТ 5Р.9370-81 «Электроды покрытые металлические специального назначения для ручной дуговой сварки стали аустенитного класса. Технические условия» - выбираем электрод марки –
.
2.2 Выбор сварочного оборудования
2.2.1 Инвертор
В качестве инвертора будем применять ВДУ506С.
ВДУ506С обеспечивает работу в импульсном и непрерывном режимах, а также плавное, автоматическое и регулируемое нарастание тока в начале процесса сварки – от минимального до заданного значений.
Для обеспечения бесконтактного возбуждения дуги в приборах ВДУ установлен осциллятор последовательного включения.
Общий вид с габаритными размерами и массой инвертора ВДУ506С представлены на рисунке 2.1.
Универсальность ВДУ506С заключается в том, что он работает на естественных жестких и крутопадающих характеристиках, которые формируются системой авторегулирования. В силовом блоке ВДУ506С используются две простые трехфазные схемы выпрямления, которые соединены между собой через уравнительный реактор (дроссель Кюблера) [4].
Силовой блок ВДУ506С – это трансформатор нормального рассеяния, который имеет две группы вторичных обмоток (
и
), каждая из которых соединена в звезду; при этом, нулевая точка звезды первой группы образована концами обмоток, в то время, как второй группы – началами обмоток.
Рисунок 2.1 - Общий вид, габаритные размеры и масса инвертора ВДУ506С
2.2.2 Электрододержатель
Электрододержатель предназначен для обеспечения зажатия сварочного электрода, а также подвода к нему сварочного тока.
Электрододержатель должен обеспечивать следующие требования [1]:
- быстрое и надежное закрепление сварочного электрода;
- небольшая масса для удобства работы сварщика (до 0,5 кг);
- надежная изоляция от нагревания;
- надежная изоляция от электрического тока;
- полное расплавление сварочного электрода;
- прочное присоединение сварочного провода, а также надежность электрического контакта.
Применяется несколько различных типов электрододержателей для выполнения ручной дуговой сварки, а именно [3]:
- пружинные;
- вилочные;
- зажимные и т.д.
Некоторые электрододержатели оснащаются ручным или автоматическим отключением тока в момент прекращения процесса сварки для обеспечения повышения безопасности при сварочных работах. Общий вид различных электрододержателей представлен на рисунке 2.2. Электрододержатели подразделяются на 3 основные группы, в зависимости от силы сварочного тока:
- I тип – до 125 А;
- II тип – в пределах 125-315 А;
- III тип – в пределах 315 до 500 А.
А - пружинный, Б - вилочный, В - пластичный, Г - винтовой
Рисунок 2.2 – Электрододержатели
Для выполнения сварочных работ принимаем винтовой электрододержатель модели ESAB-500.
2.2.3 Маски
Сварочные маски применяются для защиты лица и глаз сварщика от прямого излучения электрической дуги, а также искр и брызг расплавленного металла. Сварочные маски изготовляют по ГОСТ 12.4.035 — 78, из нетоксичного, токонепроводящего и невоспламеняющегося материала. В настоящее время очень распространены маски таких мировых лидеров, как ESAB, Fubag Ultima, Brima, Quattro Elementi.
Одно из требований по безопасной работе является масса маски, которая должна быть не более 0,6 кг. Маски комплектуются светофильтрами. Светофильтр выбирается в зависимости от мощности дуги (сварочного тока).
Характеристики
Тип файла документ
Документы такого типа открываются такими программами, как Microsoft Office Word на компьютерах Windows, Apple Pages на компьютерах Mac, Open Office - бесплатная альтернатива на различных платформах, в том числе Linux. Наиболее простым и современным решением будут Google документы, так как открываются онлайн без скачивания прямо в браузере на любой платформе. Существуют российские качественные аналоги, например от Яндекса.
Будьте внимательны на мобильных устройствах, так как там используются упрощённый функционал даже в официальном приложении от Microsoft, поэтому для просмотра скачивайте PDF-версию. А если нужно редактировать файл, то используйте оригинальный файл.
Файлы такого типа обычно разбиты на страницы, а текст может быть форматированным (жирный, курсив, выбор шрифта, таблицы и т.п.), а также в него можно добавлять изображения. Формат идеально подходит для рефератов, докладов и РПЗ курсовых проектов, которые необходимо распечатать. Кстати перед печатью также сохраняйте файл в PDF, так как принтер может начудить со шрифтами.
















