lect_11 (1119089), страница 2
Текст из файла (страница 2)
Если посмотреть на текстурированную поверхность, находящуюся на большом расстоянии, то вместо рисунка текстуры мы увидим фактически случайный набор точек. Это связано с тем, что здесь одному пикселу экрана соответствует сразу несколько пикселов текстуры, поэтому для корректного отображения данного пиксела его цвет должен быть усреднением цветов этих пикселов (вместо этого выбирается практически случайным образом один из этих пикселов текстуры).
Ясно, что нереально проводить точное усреднение пикселов в реальном времени практически: это потребовало бы слишом больших затрат. Однако существует простой метод, позволяющий бороться с подобными ошибками сравнительно легко.
П
усть исходное изображение имеет размер 2n на 2n. Построим по нему последовательность изображений, являющихся копиями данного и имеющими размеры 2n-1, 2n-2 и т. д. Размер последнего изображения будет 1 на 1 пиксел. В результате получим пирамиду (mip-map), состоящую из (n+1) уровня, где на нижнем (0-м) уровне находится исходное изибражение. Вся пирамида занимает объем памяти, необходимый для размещения 22n-1 пикселей.
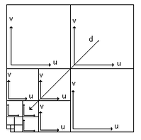
Доступ к пирамиде осуществляется с помощью трех координат: u, v, d, где u и v – координаты текстуры, а d (compression) – мера компрессии текстуры, и может быть рассмотрена как вертикальная координата пирамиды.
Изображение к-того уровня строится из изображения (к-1)-ого уровня следующим образом: цвет пиксела определяется билинейной интерполяцией цветов соответствующих 4-ех пикселов изображения п
редшествующего уровня.
















