краны№19 (1053165)
Текст из файла
Министерство высшего и среднего специального образования Российской Федерации
Московский ордена Ленина, ордена Октябрьской Революции и ордена Трудового Красного Знамени
ГОСУДАРСТВЕННЫЙ ТЕХНИЧЕСКИЙ УНИВЕРСИТЕТ имени Н. Э. БАУМАНА
ФАКУЛЬТЕТ РК (Робототехника и комплексная автоматизация)
КАФЕДРА РК3(Детали машин)
РАСЧЕТНО-ПОЯСНИТЕЛЬНАЯ ЗАПИСКА
К КУРСОВОМУ ПРОЕКТУ НА ТЕМУ:
Разработка конструкции
подвесного поворотного крана
Студент ( Кангезова Е.) МТ8-71
(фамилия, инициалы) (индекс)
Руководитель проекта ( Варламов В.П.)
(фамилия, инициалы)
Москва 2002год.
Содержание:
Введение
Техническое задание
1. Расчет механизма подъема груза ………………………………………….3
1.1 Двигатель ………………………………………….4
1.2. Канат ……………………………………………………………………4
1.3 Выбор крюка …………………………………………………………….5
1.4 Барабан …………………………………………………………………..5
1.5 Выбор редуктора ………………………………………………………..5
1.6Выбор тормоза……………………………………………………………..7
1.7 Расчет крепления каната к барабану …………………………………..7
1.8 Муфта …………………………………………………………………….8
2. Металлоконструкция…………………………………………………………8
2.1 Выбор основных размеров…………………………………………….…8
2.2 Проверка статического прогиба…………………………………………9
2.3 Проверка прочности……………………………………………………..10
2.4 Расчет подшипников опорного узла………………………………….…12
3. Расчет соединений …………………………………………………………14
3.1 Шпоночные соединения…………………………………………………14
3.2 Расчет соединения стрелы крана с опорным узлом ………………….15
3.3 Расчет болтового соединения……………………………………………16
3.4 Блоки …………………………………………………………………….19
4. Выбор смазочного материала……………………………………………......20
Список литературы……………………………………………………………...21
ВВЕДЕНИЕ
В данном курсовом проекте предлагается разработать консольный неполноповоротный кран с постоянным вылетом, который состоит из механизма подъема, металлоконструкции. Кран крепится к стене.
Консольный неполноповоротный кран применяют для проведения подъемно-транспортных работ в производственных помещениях, цехах и на открытом воздухе при обслуживании технологического оборудования и пр. Управление краном осуществляется с пульта управления на уровне 1,5 м до пола.
Технические требования:
Типовой режим работы – 6М;
Электропитание от сети переменного 3-х фазного тока с частотой 50 Гц и напряжением 380 (220) В;
1. Механизм подъема
Грузоподъемная сила Q=5кН
Скорость подъема V=8м/мин
Высота подъема H=3,0м
Режим работы 6
Машинное время t=8000
Рекомендации по выбору полиспаста: стреловые краны и электротали обычно выбирают двукратные (а=2) одинарные(m=1) полиспасты. Отклоняющих блоков (t=1)
1.1Двигатель
Мощность при установившемся движении:
=0.9 т.к предполагаем использовать зубчатый редуктор
V- установившаяся скорость (м/мин)
Выбираем двигатель 4АС80А6У3 Р=0.8 кВт, n=860 мин-1
1.2 Канат
Канат выбирают из условия Fразk
Fмах, где k-коэффициент запаса прочности (таблица 7), Fраз - разрушающая нагрузка в (Н), Fмах-наибольшая сила натяжения в канате (Н)
Для режима 6М k=6
Fразр 62.65=16кН
Выбираем: канат двойной свивки типа ЛК-Р конструкции 619(1+6+6/6+16)+1 по ГОСТ 7668-80
Характеристики каната: d=5.6мм, Fразр=17кН
Канат крепим к барабану прижимными планками.
1.3 Подбор крюка
Крюк выбираем по грузоподъемности
= 5кН подходит крюк №4 (атлас стр14)
1.4 Барабан
Основные размеры:
Dбарdканe-1) для 6М е=25
Dбар5.625-1) 134.4мм принимаем Dбар=135мм
Толщина стенки для чугуна (СЧ15): =1.2
dкан6.8мм принимаем =8мм
Шаг нарезки Р для барабана (по канату) Р=(1.1…1.2)
dкан=1.25.6=6.7мм
Длина барабана:
Длина барабана при одинарном полиспасте (m=1)
Zp –число рабочих витков
Lбар=lн+lp+ lразр+lкр=P
(Zp+6)=5.6(14+6)=112мм
Где lн =1.5 P=1.56.7=10мм –расстояние до начала нарезки
lp= Zp
–длина рабочей части барабана
lразр=1.5 P=1.56.7=10мм–длина на которой помещаются разгружающие витки
lкр=3P=36.7=20.1мм–длина на которой размещается крепление каната
Примем суммарную длину Lбар=134мм
Прочность барабана
Напряжение сжатия в стенке барабана (напряжениями изгиба и кручения пренебрегаем)
см130Мпа –допускаемое напряжение для чугуна СЧ15
см см - условие выполняется
1.5 Выбор редуктора.
Исходя из скорости подъема груза найдем требуемую скорость вращения тихоходного вала редуктора
частота вращения выходного вала электродвигателя nдв=860мин-1 отсюда найдем передаточное отношение редуктора:
принимаем передаточное отношение равным 25 и проверяем фактическую скорость подьема груза:
Передаточное отношение 25 проходит т.к разница в скорости подьема меньше 10%
Номинальный вращающий момент на выходном валу редуктора
Наибольший момент на тихоходном валу редуктора
Для режима работы 6М примем t=8000ч ,Kне=1.0(таблица), ПВ=40%
Энергетической характеристикой современного редуктора является номинальный момент Тном, под которым понимается допустимый вращающий момент ни тихоходном валу при постоянной нагрузке и числе циклов нагружений лимитирующего зубчатого колеса, равном базовому числу циклов контактных напряжений NHG. Номинальный вращающий момент на выходном валу выбранного редуктора должен удовлетворять условию
Тном ТНЕ,
где эквивалентный момент
ТНЕ=kНДТmax.
Тmax наибольший вращающий момент на тихоходном валу редуктора при нормально протекающем технологическом процессе.
Для червячных редукторов
ТНЕ=0,928*233=216 Нм
Выбираем редуктор типа Ч-100 с передаточным числом 25 и Т=417Нм.
1.6 Выбор тормоза.
Тип тормоза для режима 3М ТКП или ТКГ.Необходимый момент тормоза Tm=kmTгр.
kmкоэффициент запаса торможения ; km=3 для 6М
Определение требуемого момента тормоза:
Грузовой момент на валу тормозного шкива
КПД при подъеме
=пбарм2ред
=0,840,980,99=0,815
обр=0,5(1+0,815)=0,9075
Тт Тгрkторм=10.593=31.77 Нм
Выбираем ТКП200/100 с Тт=40 Н м
1.7 Винты для крепления каната на барабане.
Определим силу затяжки винтов:
где z – кол – во болтов.
Принимаем класс прочности винтов 3.6, тогда предел текучести
=200МПа. Допустимое напряжение сжатия
МПа
Расчётный диаметр винтов:
Окончательно выбираем винты М12.
1.8 Муфта.
Расчет основных характеристик.
Номинальный момент:
Выбираем муфту МУВП
2. Металлоконструкция.
2.1 Выбор основных размеров.
Высота балки:
Высота балки по условиям жесткости:
h=L/25=4000/25=160мм
Принимаем стандартный швеллер №16 ГОСТ8240-89
Для него: b=64мм, S=5.0мм, t=8.4мм, А=1810мм2
Ширина скчения стрелы: b=0.5h=0.5*160=80мм
Масса 1 погонного метра швеллера 14.2кг
Определение веса металлоконструкции:
Материал стрелы – Ст3. Удельные вес стали =78.5 * 10-6 Н/мм3
Для определения веса стрелы, необходимо подсчитать вес швеллеров и массу приваренных пластин.
Обьем приваренных пластин:
Вес пластин:
Gпл. = V * = 13.86*105 * 78.5 * 10-6 = 108 H
Вес металлоконструкции:
G/мк=2*(1м,кг*4)+Gпл=2*(14.2*4)+10.8 =124.4кг =1244Н
Полученное значение увеличим на 10%, учитывая таким образом массу сварных швов.
Gмк. = G/*0.1 + G/=124.4*0.1 +124.4=136.8кг=1368 H
2.2 Проверка статического прогиба:
Определим координаты центра тяжести сечения стрелы:
т.к. сечение имеет симметричную форму
y0= t1/2 + h/2=14/2 + 160/2 = 87мм
= 52.9 * 106мм4
Прогиб стрелы не должен превышать допустимый прогиб. Для данного типа крана допустимый прогиб - [fcт] = L / 400 = 4000 / 400 = 10 мм
Прогиб:
Прогиб меньше допустимого.
Формула взята стандартная для нашей расчетной схемы из книги 6 списка литературы.
2.3 Проверка прочности.
Допускаемое нормальное напряжение [] = 140 МПа
Допускаемое касательное напряжения для сварных швов:
[] = 0,6[]= 0,6 * 140 = 84 МПа
Напряжение изгиба в вертикальной плоскости:
Момент в вертикальной плоскости равен:
Напряжение изгиба в горизонтальной плоскости.
Момент инерции сечения:
Момент в горизонтальной плоскости равен:
Напряжение изгиба:
Н
аибольшее нормальное напряжение в стреле:
= в + г = 67,2 + 32 = 99,2 МПа [] = 140МПа
Следовательно стрела с приведёнными выше геометрическими размерами обладает достаточной прочностью.
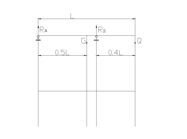
2.4 Расчет подшипников опорного узла.
Расчет нагрузки действующей на подшипники.
Схема нагрузки балки силами:
Характеристики
Тип файла документ
Документы такого типа открываются такими программами, как Microsoft Office Word на компьютерах Windows, Apple Pages на компьютерах Mac, Open Office - бесплатная альтернатива на различных платформах, в том числе Linux. Наиболее простым и современным решением будут Google документы, так как открываются онлайн без скачивания прямо в браузере на любой платформе. Существуют российские качественные аналоги, например от Яндекса.
Будьте внимательны на мобильных устройствах, так как там используются упрощённый функционал даже в официальном приложении от Microsoft, поэтому для просмотра скачивайте PDF-версию. А если нужно редактировать файл, то используйте оригинальный файл.
Файлы такого типа обычно разбиты на страницы, а текст может быть форматированным (жирный, курсив, выбор шрифта, таблицы и т.п.), а также в него можно добавлять изображения. Формат идеально подходит для рефератов, докладов и РПЗ курсовых проектов, которые необходимо распечатать. Кстати перед печатью также сохраняйте файл в PDF, так как принтер может начудить со шрифтами.















