ТНУ-Бояркин (1052926)
Текст из файла
Министерство высшего и среднего специального образования Российской Федерации
Московский ордена Ленина, ордена Октябрьской Революции и ордена Трудового Красного Знамени
ГОСУДАРСТВЕННЫЙ ТЕХНИЧЕСКИЙ УНИВЕРСИТЕТ имени Н. Э. БАУМАНА
ФАКУЛЬТЕТ РК (Робототехника и комплексная автоматизация)
КАФЕДРА РК3(Детали машин)
РАСЧЕТНО-ПОЯСНИТЕЛЬНАЯ ЗАПИСКА
К КУРСОВОМУ ПРОЕКТУ НА ТЕМУ:
Разработка конструкции
тележки
ТНУ 03.05–00.00 ПЗ
Студент______________________________( Бояркин А.О.) Группа МТ13-71
(фамилия, инициалы) (индекс)
Руководитель проекта ______ ( Зворыкин В.И.)
(фамилия, инициалы)
Москва 2001год.
ВВЕДЕНИЕ
В данном курсовом проекте предлагается разработать тележку, которая состоит из механизма подъема и передвижения, металлоконструкции. Тележка устанавливается на рельсы.
Тележку применяют для проведения подъемно-транспортных работ в производственных помещениях, цехах при обслуживании технологического оборудования и пр. Кран представляет собой тележку, на которой размещаются механизмы передвижения и подъема. Управление краном осуществляется с пульта управления опущенного из электрического блока на уровень 1,2 м до пола.
Технические требования:
Типовой режим работы – 5М;
Электропитание от сети переменного 3-х фазного тока с частотой 50 Гц и напряжением 380 (220) В;
Необходимо разработать:
Общий вид тележки;
Механизм подъема;
Механизм передвижения;
Металлоконструкцию;
Спецификации и расчетно-пояснительную записку.
Исходные данные для расчета:
Грузоподъемность FQ = 10,0 кН;
Скорость подъема Vп = 10.0 м/мин;
Скорость передвижения Vпер = 32 м/мин;
Высота подъема H = 4,5 м;
1.Механизм подъема.
Исходные данные:
Грузоподъемная сила FQ=10,0 кН
Скорость подъема V=10 м/мин
Высота подъема H=4.5 м
Режим работы 5
Машинное время t=8000
1.1.Схемы и полиспасты.
КПД полиспаста и отклоняющих блоков
п=
, где =бл=0,98 КПД блока; а=2 кратность полиспаста; t=0 число; m=1 число полиспастов на КПД не влияет.
1.2.Двигатель.
Мощность (кВт) при подъеме номинального груза весом FQ (Н) с установившейся скоростью V (м/мин) статическая мощность
Предварительно значения коэффициентов полезного действия принимают 0,9 при зубчатом редукторе.
По каталогу выбираем двигатель 4АС100L6У3 с Рн=2,6кВт (ПВ=40) и n=900 мин-1.
1.3.Канат.
Наибольшая сила натяжения в канате
Тип каната выбирают по ГОСТ 7668-80.
Рекомендуемый предел прочности материала проволок В=1600…1800 Н/мм2.
Выбор размера каната, т.е. его диаметра dкан , проводят по разрушающей нагрузке. Разрушающая нагрузка каната должна удовлетворять условию Fразр KFmax. Коэффициент запаса прочности К=6 в соответствии с режимом работы.
Fразр 6*5722=34332 Н.
Выбрала канат двойной свивки типа ЛК-РО по ГОСТ 7668-80:
Dкан=8.1 мм;
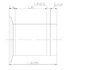
1.4.Барабан.
Диаметр барабана по дну канавки Dбар dкан(e-1), где е=30 – коэффициент, принятый в зависимости от режима работы и типа крана.
Dбар= 8.1*(30-1) = 235 мм.
Принимаем диаметр барабана по стандартному ряду чисел Ra10 Dбар=250мм.
Длина барабана Lбар= lн+ lp+lраз+lкр= p(zp+6), где lн=1,5p расстояние до начала нарезки; lp=zpp длина рабочей части барабана; zp=
число рабочих витков; H высота подъема; lраз = zразp = 1,5p длина части барабана, на которой размещаются разгружающие витки; lкр = zкр p=3p длина части барабана, на которой размещается крепление каната; p=(1,1…1,2) dкан шаг нарезки.
Принимаем шаг нарезки p=1,15dкан9мм; zp=
мм.
Таким образом длина барабана Lбар= 9(11,1+6)=154 мм.
1.6.Передаточное отношение привода.
Частота вращения барабана, мин-1
Необходимое передаточное отношение привода
Принимаем передаточное отношение 40
1.7.Прочность барабана.
Напряжениями изгиба и кручения в стенке барабана можно пренебречь.
Напряжения сжатия в стенке барабана
.Для стального барабана [сж]=110Н/мм2
dкан=8,1мм
p=(1.1…..1,2)dкан=9,315
1.8.Редуктор.
Момент на барабане
Где F – наибольшее натяжение в канате; m- число канатов, наматываемых на барабан
( число полиспастов).
Наибольший момент на тихоходном валу редуктора
Энергетической характеристикой современного редуктора является номинальный момент Тном, под которым понимается допустимый вращающий момент ни тихоходном валу при постоянной нагрузке и числе циклов нагружений лимитирующего зубчатого колеса, равном базовому числу циклов контактных напряжений NHG. Номинальный вращающий момент на выходном валу выбранного редуктора должен удовлетворять условию
Тном ТНЕ,
где эквивалентный момент
ТНЕ=kНДТmax.
Тmax наибольший вращающий момент на тихоходном валу редуктора при нормально протекающем технологическом процессе.
Для зубчатых редукторов
Коэффициент долговечности должен удовлетворять условию
1>= K>=0.5
Число циклов N зубчатого колеса, лимитирующего нагрузку, за срок службы равно:
n-частота вращения быстроходного вала редуктора;
u- передаточное число быстроходной пары (так как оно не известно, то принимаем u=5); i– передаточное отношение редуктора; N – базовое число циклов перемены контактных напряжений.
ТНЕ=0,5*810=405 Нм
Выбрали редуктор по ГОСТу 21164-75 типа Ц2У-250 с передаточным числом 40.
Далее пересчитывая размеры барабана относительно передаточного числа редуктора получаем Lбар=270мм. а Dбар=125.
Рассчитаем его прочность:
Условие выполняется. Принимаем барабан с данными размерами.
1.9.Тормоз.
Тип тормоза для режима 5М ТКП. Необходимый момент тормоза Tm=kmTгр.
kmкоэффициент запаса торможения ; km=2,24 для 5М.
Определение требуемого момента тормоза:
Грузовой момент на валу тормозного шкива
КПД при подъеме
=пбарм2ред
=0,9
обр=0,5(1+0.9)=0.95
Тт Тгрkторм=9*2,24=20,16 Нм
Выбираем ТКП200/100 с Тт=40 Н м
1.10. Муфта.
Так как тормоз расположен между двигателем и редуктором, то тормозной шкив должен быть жестко соединен с полумуфтой, установленной на валу редуктора. При установке тормозного шкива на валу двигателя применяем МУВП для соединения двигателя с редуктором.
Нормализованную муфту выбираем в соответствии с условиями
где d- диаметр вала;
-наибольший допустимый диаметр отверстия в полумуфте или втулке;
- номинальный момент муфты ( по каталогу);
- наибольший момент, передаваемый муфтой.
Из атласа по ПТМ выбираем МУВП с тормозным шкивом , с
=130 Нм ,D=200мм, n=4000
.
1.11. Крюковая подвеска.
Выбираем крюк однорогий по ГОСТ 6627-74 для грузоподъемных машин и механизмов с машинным приводом исполнение 1.
№ крюка – 8
Наибольшая грузоподъемность – 1,25 т
2.Механизм передвижения.
Исходные данные:
F=10000 kH- грузоподъемность;
V=32 м /мин – скорость передвижения;
=0.63- коэффициент эквивалентности;
t=8000 – машинное время работы.
2.1.Вес крана.
Вес механизма складывается из весов тележки, механизма передвижения, механизма подъема. Вес тележки Gтел 0,25Q ; вес механизма передвижения Gмех.пер.0,1Q, вес механизма подъема Gмех.п.=Gред.+Gторм.+Gбар.+Gм+Gдв.
Gтел=2500Н;
Gмех.пер.=1000Н;
2.2.Колеса
Предварительный диаметр стальных колес выбираем по следующей формуле:
Fmax- наибольшая нагрузка на колесо.
Контактное напряжение стальном контакте
где FHE =FmaxKHV – эквивалентная нагрузка,
=0,8 … 0,92 – коэффициент эквивалентности,
KHV=1+2,510-3v= 1,8 – коэффициент динамичности.
н=381,276 Н/мм2
Выбираем Сталь 55Л.
Допускаемое напряжение определяем по формуле
где Н - допускаемое напряжение при наработке N=104 циклов, определяемое по табл.14.
Наработка колеса
где t - машинное время работы, ч; nкол – частота вращения колеса, мин-1; = 0.85 – коэффициент, учитывающий уменьшение средней частоты вращения в периоды неустановившихся движений.
Так как контактное напряжение не удолетворяет условию, то принимаем диаметр колеса D= 200 мм. и берём Сталь75
При этом НО = 920 МПа,
Частота вращения колеса n= 51 мин-1; наработка колеса N=20,8*106 циклов;
2.3. Сопротивление передвижению.
Сопротивление передвижению при установившейся скорости и ходовых колесах с ребордами без направляющих роликов, Н
где =0,125 – при материале колес – сталь.
Приведенный коэффициент трения f в подшипниках качения принимаем f=0,02 – роликовый подшипник.
Коэффициент Кр, учитывает трение реборд о рельс
Кр=2,5 – механизм с тележкой.
2.4. Двигатель.
Мощность при установившемся движении, кВт
Характеристики
Тип файла документ
Документы такого типа открываются такими программами, как Microsoft Office Word на компьютерах Windows, Apple Pages на компьютерах Mac, Open Office - бесплатная альтернатива на различных платформах, в том числе Linux. Наиболее простым и современным решением будут Google документы, так как открываются онлайн без скачивания прямо в браузере на любой платформе. Существуют российские качественные аналоги, например от Яндекса.
Будьте внимательны на мобильных устройствах, так как там используются упрощённый функционал даже в официальном приложении от Microsoft, поэтому для просмотра скачивайте PDF-версию. А если нужно редактировать файл, то используйте оригинальный файл.
Файлы такого типа обычно разбиты на страницы, а текст может быть форматированным (жирный, курсив, выбор шрифта, таблицы и т.п.), а также в него можно добавлять изображения. Формат идеально подходит для рефератов, докладов и РПЗ курсовых проектов, которые необходимо распечатать. Кстати перед печатью также сохраняйте файл в PDF, так как принтер может начудить со шрифтами.















