ТНУ-1 (1052925)
Текст из файла
Министерство высшего и среднего специального образования Российской Федерации
Московский ордена Ленина, ордена Октябрьской Революции и ордена Трудового Красного Знамени
ГОСУДАРСТВЕННЫЙ ТЕХНИЧЕСКИЙ УНИВЕРСИТЕТ имени Н. Э. БАУМАНА
ФАКУЛЬТЕТ РК (Робототехника и комплексная автоматизация)
КАФЕДРА РК3(Детали машин)
РАСЧЕТНО-ПОЯСНИТЕЛЬНАЯ ЗАПИСКА
К КУРСОВОМУ ПРОЕКТУ НА ТЕМУ:
Разработка конструкции
тележки
ТНУ 03.04–00.00 ПЗ
Студент ( КиреенкоО.М. ) Группа МТ2-72
(фамилия, инициалы) (индекс)
Руководитель проекта ( Язева Е.А.)
(фамилия, инициалы)
Москва 2001год.
|
СОДЕРЖАНИЕ
| ||||||||||||||
ТНУ 03.04-00.00 ПЗ | ||||||||||||||
| Изм | Лист | № докум. | Подпись | Дата | ||||||||||
| Разраб. | Киреенко ОМ. | Тележка | Лит. | Лист | Листов | |||||||||
| Пров. | Язева Е.А. | у | 2 | 46 | ||||||||||
| Т. контр. | МГТУ им. Н.Э. БауманаКаф. «Детали машин» РК3Группа МТ2-72 | |||||||||||||
| Н. контр. | ||||||||||||||
ВВЕДЕНИЕ
В данном курсовом проекте предлагается разработать тележку, которая состоит из механизма подъема и передвижения, механизма передвижения, металлоконструкции. Тележка устанавливается на рельсы.
Тележку применяют для проведения подъемно-транспортных работ в производственных помещениях, цехах при обслуживании технологического оборудования и пр. Кран представляет собой тележку, на которой размещаются механизмы передвижения и подъема. Управление краном осуществляется с пульта управления опущенного из электрического блока на уровень 1,2 м до пола.
Технические требования:
Типовой режим работы – 4М;
Электропитание от сети переменного 3-х фазного тока с частотой 50 Гц и напряжением 380 (220) В;
Необходимо разработать:
Общий вид тележки;
Механизм подъема;
Механизм передвижения;
Металлоконструкцию;
Спецификации и расчетно-пояснительную записку.
Исходные данные для расчета:
Грузоподъемность FQ = 8,0 кН;
Скорость подъема Vп = 12.5 м/мин;
Скорость передвижения Vпер = 40 м/мин;
Высота подъема H = 5 м;
1.Механизм подъема.
Исходные данные:
Грузоподъемная сила FQ=8,0кН
Скорость подъема V=12,5м/мин
Высота подъема H=5м
Режим работы 4
Машинное время t=8000
1.1.Схемы и полиспасты.
КПД полиспаста и отклоняющих блоков
п=
, где =бл=0,97 КПД блока; а=2 кратность полиспаста; t=0 число; m=1 число полиспастов на КПД не влияет.
1.2.Двигатель.
Мощность (кВт) при подъеме номинального груза весом FQ (Н) с установившейся скоростью V (м/мин) статическая мощность
Предварительно значения коэффициентов полезного действия принимают 0,9 при зубчатом редукторе.
Gзахв=0,038000=240Н
При мощности Рн двигателя менее 1,4 кВт применяют двигатели типа 4АС (трехфазные, асинхронные повышенного скольжения). Синхронная частота nс=1500 мин-1 так как отсутствует двигатель необходимой мощности с n=1000 мин.
По каталогу выбираем двигатель 4АС90L4У3 с Рн=2,4кВт (ПВ=25) и n=1360 мин-1.
1.3.Канат.
Наибольшая сила натяжения в канате
Тип каната выбирают по ГОСТ 2688-80.
Рекомендуемый предел прочности материала проволок В=1600…1800 Н/мм2.
Выбор размера каната, т.е. его диаметра dкан , проводят по разрушающей нагрузке. Разрушающая нагрузка каната должна удовлетворять условию Fразр KFmax. Коэффициент запаса прочности К=5,5 в соответствии с режимом работы.
Fразр 5,54182,7=23004,86 Н.
Выбрала канат двойной свивки типа ЛК-Р по ГОСТу 2688-80:
Dкан=6,9мм; Fразр=24 кН; группа 1568(160).
1.4.Барабан.
Диаметр барабана по дну канавки Dбар dкан(e-1), где е=25 – коэффициент, принятый в зависимости от режима работы и типа крана.
Dбар= 6,9(25-1) = 165,6 мм.
Принимаем диаметр барабана по стандартному ряду чисел Ra40 Dбар=170мм.
Т.к. применен сдвоенный полиспаст, с двумя барабанами, то размеры каждого из них и их взаимное положение определяют исходя из условия непривышения допустимого угла (3) между осью каната и касательной к оси винтовой канавки.
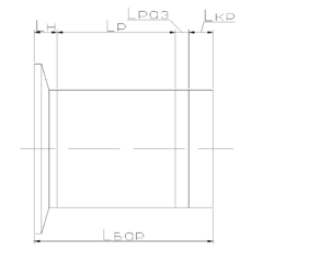
Длина барабана Lбар= lн+ lp+lраз+lкр= p(zp+6), где lн=1,5p расстояние до начала нарезки; lp=zpp длина рабочей части барабана; zp=
число рабочих витков; H высота подъема; lраз = zразp = 1,5p длина части барабана, на которой размещаются разгружающие витки; lкр = zкр p=3p длина части барабана, на которой размещается крепление каната; p=(1,1…1,2) dкан шаг нарезки.
Принимаем шаг нарезки p=1,15dкан8мм; zp=
мм.
Прочность барабана.
Напряжениями изгиба и кручения в стенке барабана можно пренебречь.
Напряжения сжатия в стенке барабана
.Для стального барабана [сж]=110Н/мм2
p=(1.1…..1,2)dкан=7,935
1.6.Передаточное отношение привода.
Частота вращения барабана, мин-1
Необходимое передаточное отношение привода
Принимаем по Ra20 передаточное отношение 31,5.
Фактическая скорость подъема
Утверждаем i по Ra20 =31,5.
1.7.Редуктор.
Момент на барабане
Где F – наибольшее натяжение в канате; m- число канатов, наматываемых на барабан
( число полиспастов).
Наибольший момент на тихоходном валу редуктора
Энергетической характеристикой современного редуктора является номинальный момент Тном, под которым понимается допустимый вращающий момент ни тихоходном валу при постоянной нагрузке и числе циклов нагружений лимитирующего зубчатого колеса, равном базовому числу циклов контактных напряжений NHG. Номинальный вращающий момент на выходном валу выбранного редуктора должен удовлетворять условию
Тном ТНЕ,
где эквивалентный момент
ТНЕ=kНДТmax.
Тmax наибольший вращающий момент на тихоходном валу редуктора при нормально протекающем технологическом процессе.
Для зубчатых редукторов
Коэффициент долговечности должен удовлетворять условию
1>= K>=0.5
Число циклов N зубчатого колеса, лимитирующего нагрузку, за срок службы равно:
n-частота вращения быстроходного вала редуктора;
u- передаточное число быстроходной пары (так как оно не известно, то принимаем u=5); i– передаточное отношение редуктора; N – базовое число циклов перемены контактных напряжений.
ТНЕ=0,5373,69=186,845 Нм
Выбрала редуктор по ГОСТу 21164-75 типа Ц2У-100 с передаточным числом 31,5 и Т=250Нм.
1.8.Тормоз.
Тип тормоза для режима 4М ТКП или ТКГ.Необходимый момент тормоза Tm=kmTгр.
kmкоэффициент запаса торможения ; km=2 для 4М
Определение требуемого момента тормоза:
Грузовой момент на валу тормозного шкива
КПД при подъеме
=пбарм2ред
=0,9850,970,99=0,946
обр=0,5(1+0.946)=0.973
Тт Тгрkторм=11,262=22,52 Нм
Выбираем ТКП200/100 с Тт=40 Н м
1.9. Муфта.
Так как тормоз расположен между двигателем и редуктором, то тормозной шкив должен быть жестко соединен с полумуфтой, установленной на валу редуктора. При установке тормозного шкива на валу двигателя применяем МУВП для соединения двигателя с редуктором.
Нормализованную муфту выбираем в соответствии с условиями
где d- диаметр вала;
-наибольший допустимый диаметр отверстия в полумуфте или втулке;
- номинальный момент муфты ( по каталогу);
- наибольший момент, передаваемый муфтой.
Из атласа по ПТМ выбираем МУВП с тормозным шкивом , с
=130 Нм ,D=200мм, n=4000
.
1.10. Крюковая подвеска.
Выбираем крюк однорогий по ГОСТ 6627-74 для грузоподъемных машин и механизмов с машинным приводом исполнение 1.
Характеристики
Тип файла документ
Документы такого типа открываются такими программами, как Microsoft Office Word на компьютерах Windows, Apple Pages на компьютерах Mac, Open Office - бесплатная альтернатива на различных платформах, в том числе Linux. Наиболее простым и современным решением будут Google документы, так как открываются онлайн без скачивания прямо в браузере на любой платформе. Существуют российские качественные аналоги, например от Яндекса.
Будьте внимательны на мобильных устройствах, так как там используются упрощённый функционал даже в официальном приложении от Microsoft, поэтому для просмотра скачивайте PDF-версию. А если нужно редактировать файл, то используйте оригинальный файл.
Файлы такого типа обычно разбиты на страницы, а текст может быть форматированным (жирный, курсив, выбор шрифта, таблицы и т.п.), а также в него можно добавлять изображения. Формат идеально подходит для рефератов, докладов и РПЗ курсовых проектов, которые необходимо распечатать. Кстати перед печатью также сохраняйте файл в PDF, так как принтер может начудить со шрифтами.















