Инженерная графика (1016950)
Текст из файла
для студентов всех специальностей инженерного потока
заочного факультета
КАФЕДРА ИНЖЕНЕРНОЙ И КОМПЬЮТЕРНОЙ ГРАФИКИ
московская ГОСУДАРСТВЕННАЯ АКАДЕМИЯ
ПРИБОРОСТРОЕНИЯ И ИНФОРМАТИКИ
Т.А.САХАРОВА
ИНЖЕНЕРНАЯ
ГРАФИКА
МЕТОДИЧЕСКИЕ УКАЗАНИЯ
К
в 1-м семестре
КОНТРОЛЬНЫМ РАБОТАМв
2001 г.
НЕКОТОРЫЕ ПРАВИЛА ОФОРМЛЕНИЯ ЧЕРТЕЖЕЙ
1. Штрих-пунктирные и штриховые линии должны начинаться и оканчиваться штрихами, а не промежутками. Точки штрих-пунктирных линий выполняются в виде коротких штрихов (~1 мм).
2. Концы осевых линий должны выступать за пределы изображения не более чем на 3...5 мм.
3. Расстояние размерной линии от параллельной ей линии контура или другой размерной линии должно быть 7...10 мм.
4. Необходимо избегать пересечения размерных и выносных линий между собой. Для этого меньшие размеры наносят ближе к изображению, а бόльшие дальше от него.
5. При нанесении нескольких параллельных размерных линий размерные числа над ними следует располагать в шахматном порядке.
6. Размерные числа наносят над размерной линией (или слева от вертикальной размерной линии) возможно ближе к ее середине.
7. Форма и размеры стрелок, ограничивающих размерные линии, должны соответствовать приведенному чертежу. Величина стрелок должна быть приблизительно одинаковой для всех размерных линий. Высота размерных чисел 3,5 мм.
8. Выносные линии должны выходить за концы стрелок размерных линий на 2...3 мм.
9. При указании размера диаметра перед размерным числом ставится знак , высота которого равна высоте цифр размерных чисел. Знак представляет собой окружность диаметром 6/10 высоты цифры, пересеченную чертой под углом 60° к размерной линии.
10. При нанесении размера радиуса перед размерным числом ставят прописную букву R.
11. При нанесении размеров на элементах призматической формы, имеющих квадратные основания, применяют знак □
12. Все линии чертежа должны быть черными: линии видимого контура - сплошные толстые; линии построения, выносные, размерные и линии штриховки - сплошные тонкие.
13. Как правило, размеры следует наносить вне контура изображения.
14. На изображении, включающем разрез, размеры, относящиеся к внешним
очертаниям, наносят со стороны вида, а размеры внутренних очертаний – со стороны
разреза.
15. Размеры должны быть по возможности равномерно нанесены на всех имеющихся на чертеже изображениях предмета. Не рекомендуется оставлять какое-либо изображение хотя бы без одного размера. Однако повторение одного и того же размера предмета на разных его изображениях не допускается.
16. Размер диаметра цилиндра предпочтительно наносить на его образующих, а не на том изображении, где цилиндр проецируется в окружность.
17. Размерные числа всегда указывают в миллиметрах без обозначения единиц измерения.
- 1 -
УКАЗАНИЯ К ОТДЕЛЬНЫМ ЗАДАНИЯМ
ЛИСТ 1
Геометрические построения
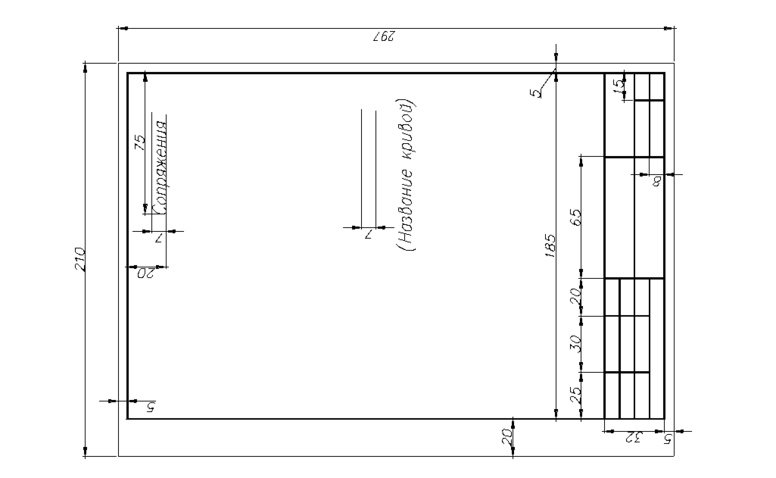
Лист выполняется на формате А4 (210 х 297 мм).
Пример выполнения и компоновка листа приведены на стр. 3.
Сопряжением называется плавный переход с помощью дуги прямой линии в дугу окружности или одной дуги в другую. Общая точка двух сопрягаемых линий называется точкой сопряжения. Центр дуги перехода называется центром сопряжения.
Точка сопряжения лежит на перпендикуляре, опущенном из центра дуги на сопрягаемую прямую (точка А) или на линии, соединяющей центры сопрягаемых дуг (точки В, С, D, Е, F).
Для выполнения сопряжений при помощи некоторой дуги необходимо иметь три элемента построения: радиус дуги перехода, центр сопряжения и точка сопряжения.
В данной работе радиусы сопряжений заданы, необходимо определить центры и точки сопряжения. Линии построения этих точек при обводке чертежа следует обвести тонкой черной линией.
Лекальная кривая. Перед вычерчиванием заданной кривой (эллипс, парабола и др.) необходимо по рекомендованной литературе ознакомиться с ее определением, свойствами и способом построения. Когда будет построено необходимое число точек, следует соединить эти точки тонкой плавной линией от руки и лишь после этого подобрать лекала. Для получения плавной кривой надо подогнать участок лекала к возможно бόльшему числу точек, обвести часть кривой, не доводя ее до последней подобранной точки. Подобрать новый участок лекала, который должен касаться части уже обведенной кривой.
Линии построения точек кривой обвести тонкой черной линией.
- 2 -
- 3 -
ШРИФТЫ ЧЕРТЕЖНЫЕ
по ГОСТ 2.304-81(СТ СЭВ 851- 78 – СТ СЭВ 855-78)
ШРИФТ ТИПА Б С НАКЛОНОМ
Устанавливаются следующие размеры шрифтов:
2,5 3,5 5 7 10
| Параметры шрифта | Обозна-чение | Относительный размер | Размер в мм | |||||||
| Размер шрифта - высота прописных букв высота строчных букв | h | (10/10)h | 1,8 | 2,5 | 3,5 | 5,0 | 7,0 | 10,0 | 14,0 | 20 |
| c | (7/10)h | 1,3 | 1,8 | 2,5 | 3,5 | 5,0 | 7,0 | 10,0 | 14 | |
| Расстояние между буквами | a | (2/10)h | 0,35 | 0,5 | 0,7 | 1,0 | 1,4 | 2,0 | 2,8 | 4 |
| Минимальный шаг строк | b | (17/10)h | 3,1 | 4,3 | 6,0 | 8,5 | 12,0 | 17,0 | 24,0 | 34 |
| Минимальное расстояние между словами | e | (6/10)h | 1,1 | 1,5 | 2,1 | 3,0 | 4,2 | 6,0 | 8,4 | 12 |
| Толщина линии шрифта | d | (1/10)h | 0,18 | 0,25 | 0,35 | 0,5 | 0,7 | 1,0 | 1,4 | 22 |
| Ширина букв | g | Зависит от размера шрифта и определяетсяпо начертанию букв на вспомогательной сетке (стр. 9 и 10) | ||||||||
ЦИФРЫ
Применяется при
необходимости отличать от буквы « з » кириллицы
- 4 -
РУССКИЙ АЛФАВИТ (КИРИЛЛИЦА)
- 5 -
Л
АТИНСКИЙ АЛФАВИТ
ЗНАКИ
ГРЕЧЕСКИЕ БУКВЫ
АЛЬФА БЕТА ГАММА ДЕЛЬТА ТЭТА ЛАМБДА
ПИ СИГМА ТАУ ФИ ОМЕГА
ЛИСТ 2
По двум данным видам построить третий вид.
Задание выполняется на листе формата А3 (420 х 297 мм).
Заданные фигуры являются многогранниками, грани которых - плоские многоугольные фигуры, расположенные параллельно или перпендикулярно какой-либо плоскости проекций, т.е. грани являются плоскостями уровня или проецирующими.
При выполнении задания:
1. Перечертить заданные два изображения (главный вид и вид сверху). При этом в большинстве случаев вычерчивание следует начинать с вида сверху (с горизонтальной проекции).
2. Построить третий вид фигуры (вид слева) путем построения профильных проекций отдельных ее элементов (вершин, ребер, граней).
3. Нанести размеры, используя для этого и третий вид, но не забывая, что не допускается повторять размеры одного и того же элемента на разных изображениях. Не рекомендуется наносить размер от штриховых линий.
- 6 -
ЛИСТ 3
По двум данным видам построить третий, выполнить разрезы и построить натуральный вид наклонного сечения
Пример оформления листа приведен на стр. 12.
Задание выполняется на листе формата А3.
Перед выполнением этого задания необходимо ознакомиться с разделом "Разрезы" ГОСТ 2.305-68, а также с некоторыми условностями и упрощениями, допускаемыми при выполнении разрезов.
Основные сведения о разрезах
Чертеж должен давать полное представление как о внешней, так и о внутренней форме фигуры. Если внутреннюю форму изобразить штриховыми линиями, чтение чертежа затрудняется, особенно, если внутреннее строение предмета сложное. Чтобы избежать этого, для выявления внутренней формы фигуры применяют способ разрезов.
Способ разрезов состоит в том, что фигуру мысленно рассекают мнимой плоскостью, часть фигуры, ближайшую к наблюдателю, мысленно отбрасывают, а оставшуюся часть проецируют на плоскость, параллельную секущей плоскости.
Характеристики
Тип файла документ
Документы такого типа открываются такими программами, как Microsoft Office Word на компьютерах Windows, Apple Pages на компьютерах Mac, Open Office - бесплатная альтернатива на различных платформах, в том числе Linux. Наиболее простым и современным решением будут Google документы, так как открываются онлайн без скачивания прямо в браузере на любой платформе. Существуют российские качественные аналоги, например от Яндекса.
Будьте внимательны на мобильных устройствах, так как там используются упрощённый функционал даже в официальном приложении от Microsoft, поэтому для просмотра скачивайте PDF-версию. А если нужно редактировать файл, то используйте оригинальный файл.
Файлы такого типа обычно разбиты на страницы, а текст может быть форматированным (жирный, курсив, выбор шрифта, таблицы и т.п.), а также в него можно добавлять изображения. Формат идеально подходит для рефератов, докладов и РПЗ курсовых проектов, которые необходимо распечатать. Кстати перед печатью также сохраняйте файл в PDF, так как принтер может начудить со шрифтами.
















