Для студентов МГТУ им. Н.Э.Баумана по предмету Устройства СВЧ и антенны (УСВЧиА)Двухзеркальная антеннаДвухзеркальная антенна
5,00571
2021-03-302024-09-03СтудИзба
Курсовая работа: Двухзеркальная антенна
-41%
Описание
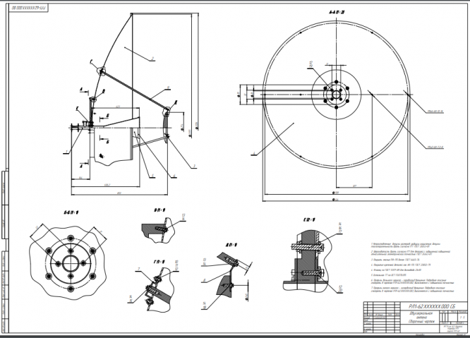
В рамках данной работы решалась задача разработки на уровне технического предложения приемно-передающей антенны типа Кассегрена абонентского терминала земной станции системы спутниковой связи, удовлетворяющая ТЗ. При решении этой задачи использовались пакеты программ Mathcad и SolidWorks.
Цель работы – разработать приёмо-передающую антенну типа Кассегрена для системы спутниковой связи в соответствии с техническим заданием. В процессе работы проводились расчёты геометрических и физических параметров антенны, подбор облучателя антенны, на основе которых была построена диаграмма направленности антенны, а также расчет селектора поляризации и элементов волноводного тракта. Разработана приёмо-передающая антенна типа Кассегрена для системы спутниковой связи. Геометрические параметры определились геометролучевым методом, для расчета электрических характеристик использовался апертурный метод. Конструирование антенной системы проводилось в пакете программ SolidWorks.
ТЕХНИЧЕСКОЕ ЗАДАНИЕ
Разработать на уровне технического предложения приемо-передающую антенну типа Кассегрена или АДЭ абонентского терминала земной станции (ЗС) системы спутниковой связи. Антенна должна удовлетворять следующим основным требованиям: 1. рабочая полоса частот приема
Цель работы – разработать приёмо-передающую антенну типа Кассегрена для системы спутниковой связи в соответствии с техническим заданием. В процессе работы проводились расчёты геометрических и физических параметров антенны, подбор облучателя антенны, на основе которых была построена диаграмма направленности антенны, а также расчет селектора поляризации и элементов волноводного тракта. Разработана приёмо-передающая антенна типа Кассегрена для системы спутниковой связи. Геометрические параметры определились геометролучевым методом, для расчета электрических характеристик использовался апертурный метод. Конструирование антенной системы проводилось в пакете программ SolidWorks.




Разработать на уровне технического предложения приемо-передающую антенну типа Кассегрена или АДЭ абонентского терминала земной станции (ЗС) системы спутниковой связи. Антенна должна удовлетворять следующим основным требованиям: 1. рабочая полоса частот приема
Характеристики курсовой работы
Учебное заведение
Семестр
Просмотров
131
Размер
1,09 Mb
Список файлов
Двухзеркальная антенна
Двухзеркальная антенна.pdf
Чертеж.pdf

Друзья, спасибо за доверие! Если вам понравилась работа – поставьте 5⭐ и напишите отзыв. Это поможет другим студентам, а мне даст силы делать ещё больше качественных материалов для вас 🔥
Комментарии

Отзыв
Курсач хороший, только еще хотелось бы и другие варианты увидеть)