Курсовая работа: Разработка управляющей программы на деталь крышка подшипника
Описание
| | стр. |
| ВВЕДЕНИЕ……………………………………………….……. 1 раздел. Теоретическая часть……………………………………… 1.1 Анализ чертежа детали и технические требования………… 1.2 Анализ заготовки 1.3 Анализ станка 1.4 выбор режущего инструмента 1.5 назначение режимов резанья 2 раздел. Технологический процесс изготовления детали 2.1 понятие технологического процесса 2.2 разработка операционной карты на деталь крышка подшипника 3 раздел. Разработка УП на детали крышка подшипника 3.1 исходные данные 3.2 Система CAM Mastercam 3.3 Разработка УП на первом останове | 3 4 4 5 6 7 8 9 9 10 11 12 13 14 15 |
ВВЕДЕНИЕ
Управляющая программа –составляющая станочного оборудования с ЧПУ (числовое программное управление). С ее помощью обеспечивается автономная или полуавтономная обработка заготовок. Этот компонент позволяет получить качественное и точное изготовление деталей, имеющих сложные формы. Разработка УП требует специальных навыков.
УП обеспечивает контроль над станками с ЧПУ (числовым программным управлением) без необходимости постоянной слежки за ними.
Она представляет собой комплекс команд, которые подаются рабочему оборудованию. Написание команд осуществляется под конкретные заготовки. Для её создания необходимо установить на компьютер специальную программу. Наличие подобного софта позволит создать методики самостоятельного контроля при наличии базовых навыков.
Актуальность
Актуальность УП для станков с ЧПУ растет с каждым годом, современное машиностроительное производство невозможно представить без широкого использования станков с ЧПУ. Программно управляемые станки обеспечивают высокую точность и производительность обработки за счёт высокой концентрации различных типов технологических операций на одном станке и за один установ.
Цель работы
С помощью программы Mastercam разработать УП для обработки детали на металлорежущем и аддитивном оборудовании.
1 раздел. Теоретическая часть
1.1 Анализ чертежа детали и технические требования
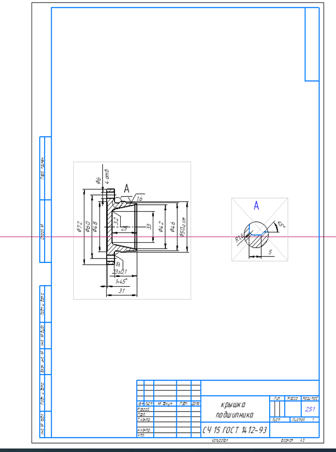
Для того чтобы написать управляющую программу для детали крышка подшипника нам для начала надо проанализировать чертеж самой детали

Рис 1. Чертеж детали крышки подшипника
all_at_700












