ДЗ 2: Технология изготовление сварных конструкций - Шкив вариант 52
-12%
Описание
- Выполнено согласно методике, лекциям и семинарам Дрижова.
- Проверено Дрижовым и сдано с первого раза.
- При обнаружении недочетов ДЗ возможна доработка.
- Возможно решение вашего варианта в индивидуальном порядке, пишите в Услуги/ЛС Студизба
- Выполнено в идеальном компьютерном качестве!

Характеристики домашнего задания
Учебное заведение
Номер задания
Вариант
Просмотров
25
Качество
Идеальное компьютерное
Размер
550,98 Kb
Преподаватели
Список файлов
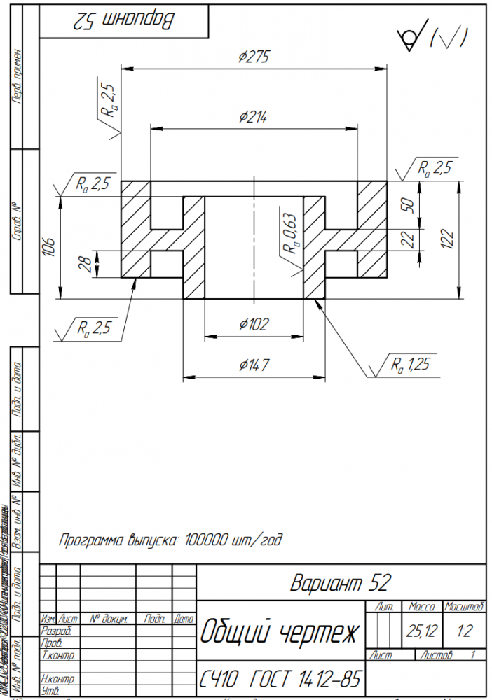
Общий чертеж.pdf
Схема изготовления элементов сварной заготовки.pdf
Схема изготовления элементов сварной заготовки2.pdf
Схема сборки свариваемых элементов.pdf
Схема сварки с изображением сварного шва.pdf
Чертеж сварной заготовки.pdf
Удачи в сдаче заданий и зачётов! Успехов!
Комментарии
Нет комментариев
Стань первым, кто что-нибудь напишет!
МГТУ им. Н.Э.Баумана
Author1
















