Для студентов МГТУ им. Н.Э.Баумана по предмету Технология конструкционных материалов (ТКМ)Разработка технологии изготовления отливок - ГидроцилиндрРазработка технологии изготовления отливок - Гидроцилиндр
5,00526
2018-03-082024-09-01СтудИзба
ДЗ 1: Разработка технологии изготовления отливок - Гидроцилиндр вариант 17, 25
Бестселлер
-51%
Описание
Содержание
- Анализ конструкции литой детали 2
- Уточнение чертежа детали 2
- Выбор расположения отливки в форме 2
- Расчёт припуска на механическую обработку 3
- Выбор литейных уклонов 4
- Расчет радиусов скруглений сопрягаемых поверхностей 4
- Разработка чертежа отливки 4
- Определение границ стержней, их количества и размеров стержневых знаков 4
- Разработка чертежа литейной формы 5
- Обеспечение припуска на усадку при изготовлении моделей 5
- Отработка на технологичность конструкции литой детали «Гидроцилиндр » 6
- Использованная литература 7
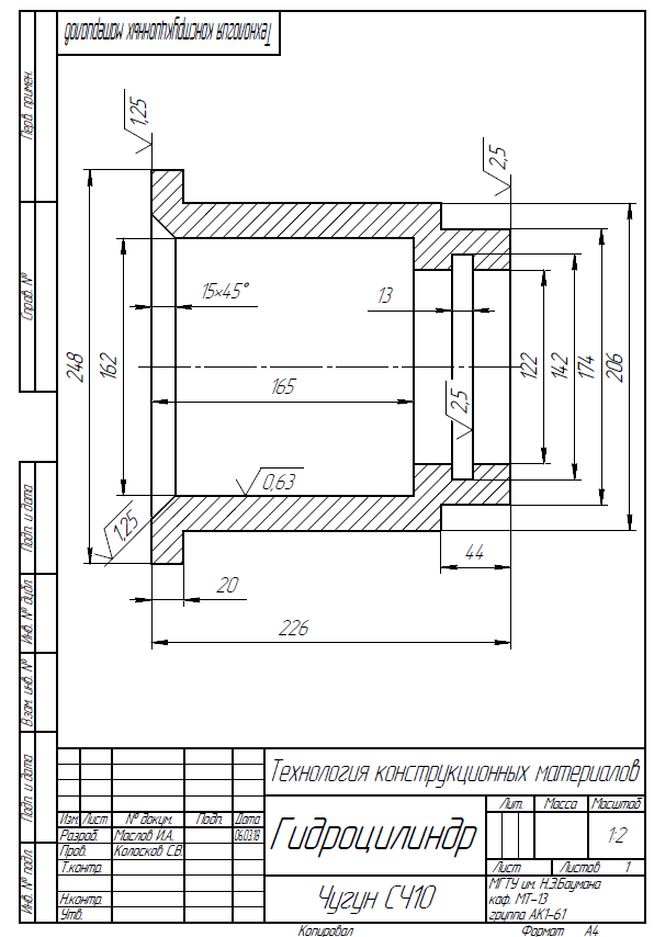
Чертежи
- Деталь
- Модель
- Отливка
- Литейная форма

Характеристики домашнего задания
Учебное заведение
Номер задания
Программы
Просмотров
2256
Качество
Идеальное компьютерное
Размер
502,8 Kb
Список файлов
Разработка технологии изготовления литых заготовок - Гидроцилиндр
Гидроцилиндр.cdw
Гидроцилиндр.pdf
Модель.cdw
Модель.pdf
Отливка со стержнем (припуски).cdw
Отливка со стержнем (припуски).pdf
РПЗ.docx
Форма.cdw
Форма.pdf

Вам все понравилось? Получите кэшбэк - 40 рублей на Ваш счёт при покупке. Поставьте оценку и напишите положительный комментарий к купленному файлу. После Вы получите деньги на ваш счет.