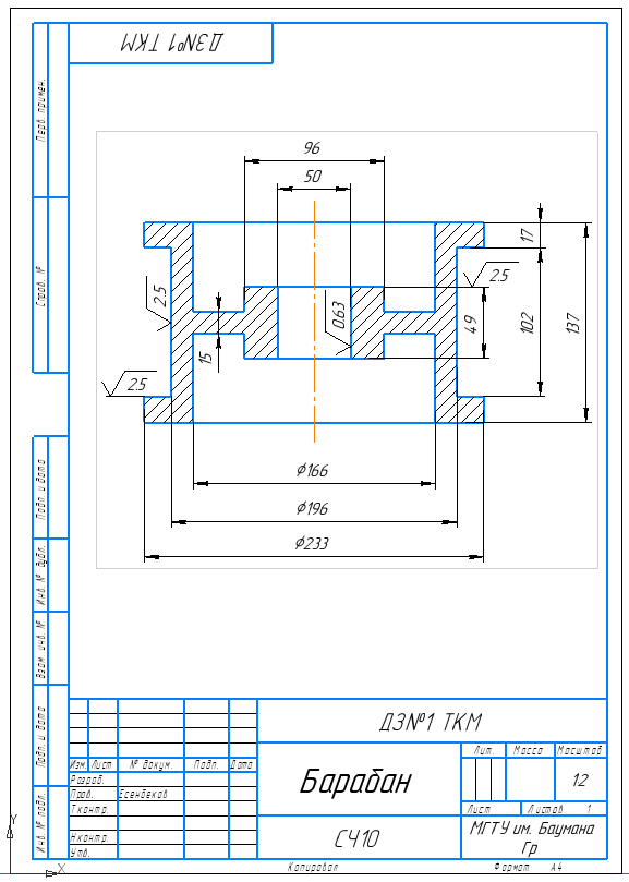
Для студентов МГТУ им. Н.Э.Баумана по предмету Технология конструкционных материалов (ТКМ)Разработка технологии изготовления отливок - БарабанРазработка технологии изготовления отливок - Барабан
5,00524
2016-10-302024-09-01СтудИзба
ДЗ 1: Разработка технологии изготовления отливок - Барабан вариант 7, 9
-51%
Описание
Содержание
- Анализ чертежа детали
- Выбор метода и способа изготовления отливок
- Разработка чертежа элементов литейной формы. Уточнение чертежа детали
- Выбор расположения модели и отливки в литейной форме
- Расчет припуска на механическую обработку
- Выберем величину формовочных уклонов
- Расчет скруглений между пересекающимися поверхностями
- Определение количества стержней, их границ и размеров стержневых знаков
- Выбор припуска на усадку
- Отработка на технологичность конструкции литой детали
Чертежи
- Исходная деталь
- Отливка
- Литейная форма
Характеристики домашнего задания
Учебное заведение
Номер задания
Программы
Просмотров
2519
Качество
Идеальное компьютерное
Размер
170,31 Kb
Список файлов
Разработка технологии изготовления отливок - Барабан
Исходная деталь.cdw
Лит форма.cdw
Модель отливки.cdw
Разработка технологии изготовления отливок - Барабан.docx

Вам все понравилось? Получите кэшбэк - 40 рублей на Ваш счёт при покупке. Поставьте оценку и напишите положительный комментарий к купленному файлу. После Вы получите деньги на ваш счет.