Для студентов МГТУ им. Н.Э.Баумана по предмету Технология конструкционных материалов (ТКМ)Разработка технологии изготовления отливок - СтойкаРазработка технологии изготовления отливок - Стойка
4,96529775
2015-11-102024-09-01СтудИзба
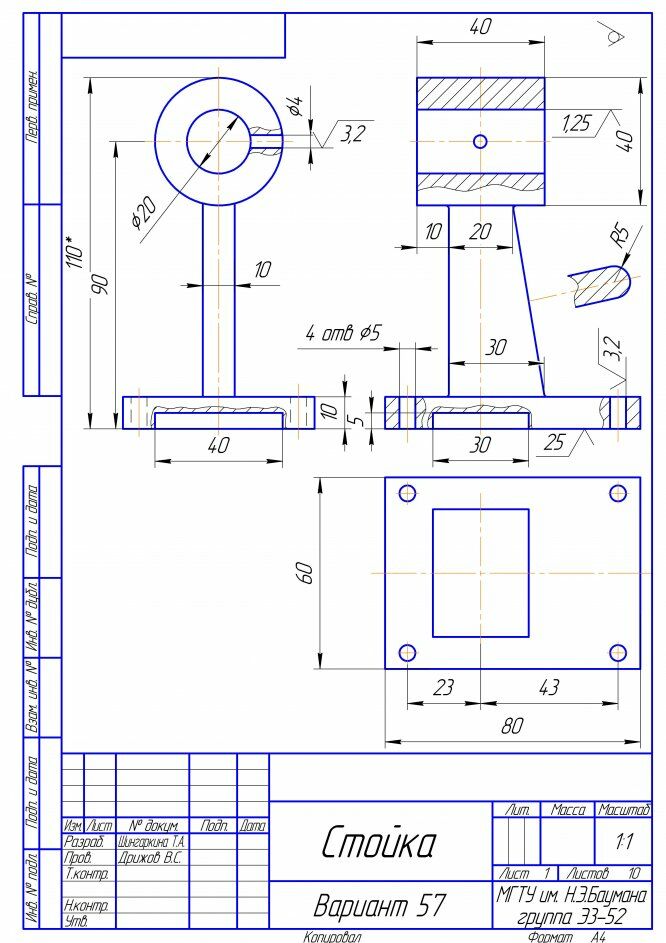
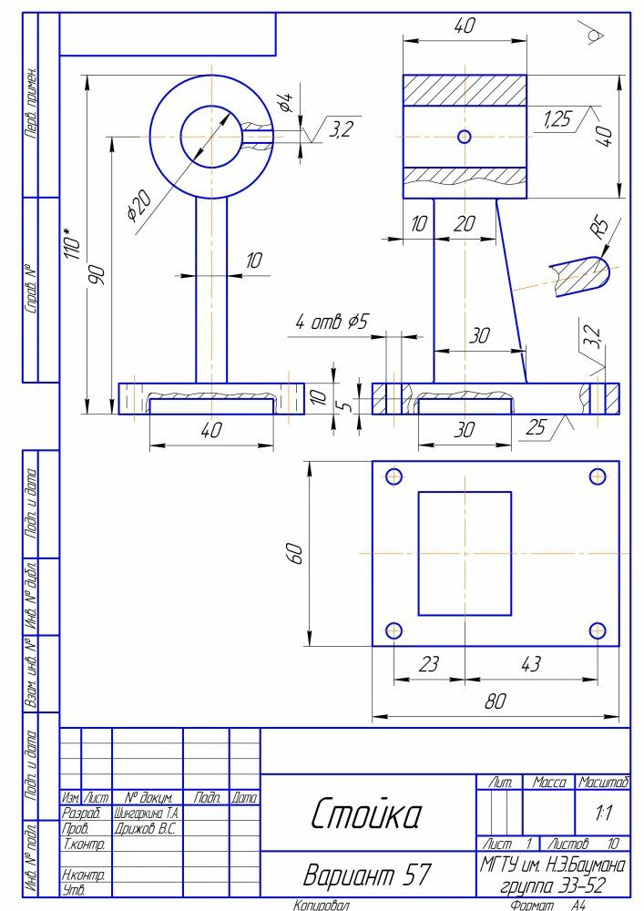
ДЗ 1: Разработка технологии изготовления отливок - Стойка вариант 57
-51%
Описание

- Анализ чертежа детали
Раздел I. Литье
- Уточнение чертежа детали, расположение отливки в форме
- Выбор способа изготовления отливки
- Расчет припуска на механическую обработку.
- Выбор величины формовочных уклонов
- Расчет скруглений между пересекающимися поверхностями
- Выбор припуска на усадку
- Проектирование литниковой системы
- Назначение температуры заливки
- Обработка детали после отливки
Раздел II. Комплексная обработка
- Уточнение чертежа детали
- Порядок операций
Характеристики домашнего задания
Учебное заведение
Номер задания
Вариант
Программы
Просмотров
793
Качество
Идеальное компьютерное
Размер
16,44 Mb
Список файлов
Разработка технологии изготовления отливок - Стойка.docx
Чертеж (1).jpg
Чертеж (2).jpg
Чертеж (3).jpg
Чертеж (4).jpg
Чертеж (5).jpg
Чертеж (6).jpg
Чертеж (7).jpg
Чертеж (8).jpg
Чертеж (9).jpg
Чертеж (10).jpg

Вам все понравилось? Получите кэшбэк - 40 рублей на Ваш счёт при покупке. Поставьте оценку и напишите положительный комментарий к купленному файлу. После Вы получите деньги на ваш счет.