Курсовая работа: Технологическая карта на устройство вертикальных монолитных железобетонных конструкций типового этажа.
Описание
Оглавление
ОБЛАСТЬ ПРИМЕНЕНИЯ. 2
2. Технология и организация строительных процессов. 3
2.1. Начало работы.. 3
2.2. Устройство вертикальных конструкций типового этажа. 4
2.2.1. Расчет №1. Определение геометрических объемов вертикальных конструкций 4
2.2.2. Устройство арматурного каркаса. 5
2.2.3. Расчет №2. Определение количества арматуры для вертикальных конструкций 5
2.2.4. Монтаж опалубки. 7
2.2.5. Демонтаж опалубки. 10
2.2.6. Бетонирование стеновых конструкций. 11
2.2.7. Расчет №3. Выбор механизмов для подачи арматуры, опалубки и бетонной смеси к месту производства работ. 13
2.2.8. Размер технологической зоны бетонирования. 16
2.2.9. Назначение захваток. 18
3. Требования к качеству приемки работ. 21
4. Материально-технические ресурсы.. 29
4.1. Ведомость потребности в конструкциях и материалах. 29
5. Требования безопасности и охрана труда. 30
5.1. Бетонные и железобетонные работы.. 31
5.2. Монтажные работы. 34
6. Технико-экономические показатели. 36
7. Библиографический список. 36
ОБЛАСТЬ ПРИМЕНЕНИЯ
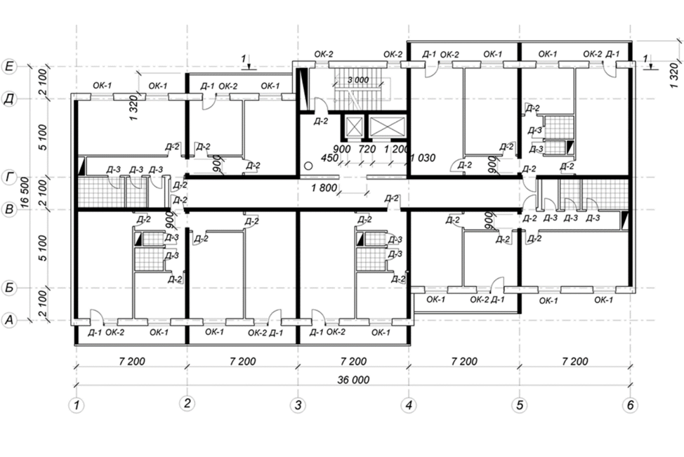
Объект – жилое 12-ти этажное здание с каркасом из монолитного железобетона, с размерами осей в плане 36000×16500 мм (рис. 1).![]()
ОБЛАСТЬ ПРИМЕНЕНИЯ. 2
2. Технология и организация строительных процессов. 3
2.1. Начало работы.. 3
2.2. Устройство вертикальных конструкций типового этажа. 4
2.2.1. Расчет №1. Определение геометрических объемов вертикальных конструкций 4
2.2.2. Устройство арматурного каркаса. 5
2.2.3. Расчет №2. Определение количества арматуры для вертикальных конструкций 5
2.2.4. Монтаж опалубки. 7
2.2.5. Демонтаж опалубки. 10
2.2.6. Бетонирование стеновых конструкций. 11
2.2.7. Расчет №3. Выбор механизмов для подачи арматуры, опалубки и бетонной смеси к месту производства работ. 13
2.2.8. Размер технологической зоны бетонирования. 16
2.2.9. Назначение захваток. 18
3. Требования к качеству приемки работ. 21
4. Материально-технические ресурсы.. 29
4.1. Ведомость потребности в конструкциях и материалах. 29
5. Требования безопасности и охрана труда. 30
5.1. Бетонные и железобетонные работы.. 31
5.2. Монтажные работы. 34
6. Технико-экономические показатели. 36
7. Библиографический список. 36
ОБЛАСТЬ ПРИМЕНЕНИЯ
Объект – жилое 12-ти этажное здание с каркасом из монолитного железобетона, с размерами осей в плане 36000×16500 мм (рис. 1).

Характеристики курсовой работы
Предмет
Учебное заведение
Семестр
Просмотров
2
Размер
1,37 Mb
Список файлов
Строительство (2).docx
Строительство.dwg
Тех карта.pdf
Комментарии
Нет комментариев
Стань первым, кто что-нибудь напишет!
НИУ МГСУ в г. Мытищи
Преподаватель1
















