Курсовая работа: Проектирование металлокоснтрукции мостового крана
Описание
Характеристики курсовой работы
Учебное заведение
Просмотров
11
Размер
2,9 Mb
Список файлов
._1_list_Obschiy_vid.pdf
._2_list_Glavnaya_balka.pdf
._3_list_Kontsevaya_balka.pdf
._4_list_Most_crana.pdf
._5_list_Cabina_upravleniya.pdf
._РПЗ.docx
1_list_Obschiy_vid.pdf
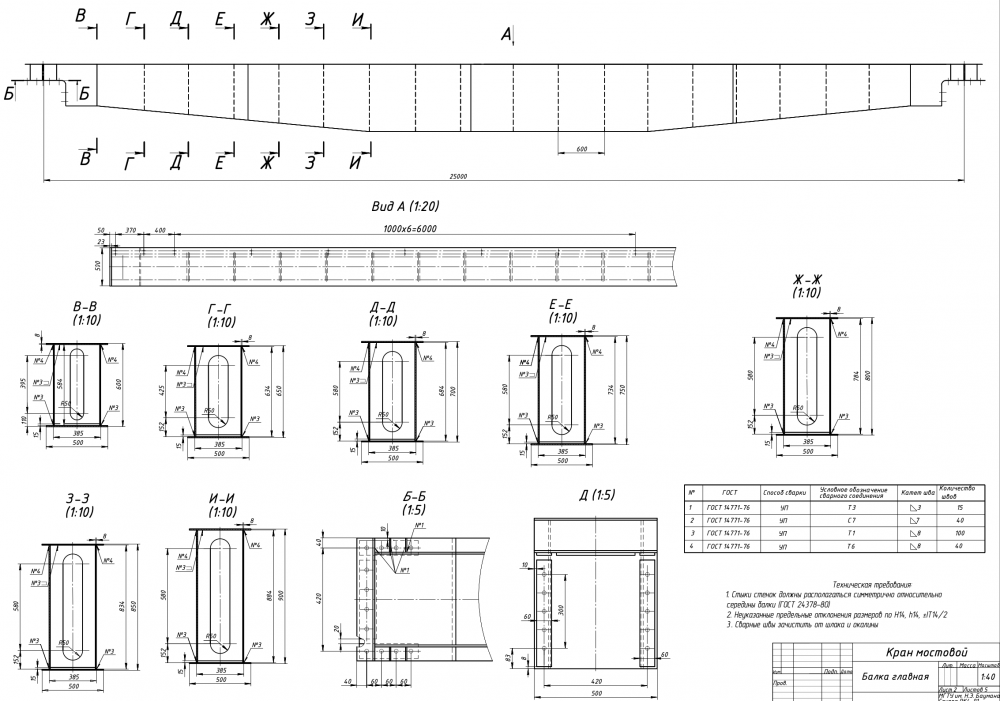
2_list_Glavnaya_balka.pdf
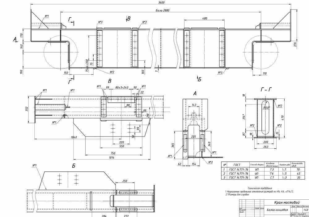
3_list_Kontsevaya_balka.pdf
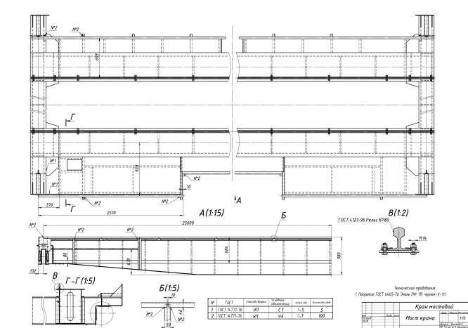
4_list_Most_crana.pdf
5_list_Cabina_upravleniya.pdf
Glavnaya_balka.dwg
Kabina.dwg
Kontsevaya_balka.dwg
Most_crana.dwg
Obshiy_vid.dwg
РПЗ.docx
Комментарии
Нет комментариев
Стань первым, кто что-нибудь напишет!
МГТУ им. Н.Э.Баумана
dolgota46


















