Курсовая работа: Модульная установка химико-гальванической обработки
Описание

Расчетно-пояснительная записка к курсовому проекту по курсу:
«Системы автоматического управления технологического оборудования »
на тему:
«Модульная установка химико-гальванической микрообработки»
Москва 2015 г.
ЗАДАНИЕ
на курсовой проект по курсу «Основы проектирования систем автоматического управления оборудования электронных технологий».
Тема проекта: Модульная установка химико-гальванической микрообработки_
1. Проработать описание работы машины, выбрать и обосновать состав его основных целевых функций, сервисных функций, функций коррекции цели.
2. Разработать комплексную принципиальную схему, как совокупность системы целевых механизмов, системы их энергообеспечения и системы управления, связанных материальными, энергетическими и информационными потоками.
3. Описать механический, энергетический и информационный интерфейс компонентов машины. Дать техническое задание и техническое предложение на САУ и основные элементы машины.
4. Разработать принципиальную электрическую схему элемента САУ или САУ в целом.
Содержание графической части.
- Комплексная принципиальная схема исполнительных механизмов.......................1 л.
- Комплексная принципиальная схема системы энергообеспечения и управления....................................................................................................................1 л.
- Комплексная принципиальная пневматическая система.......................................1 л.
- Процессная модель машины...................................................................................... 1 л.
- Принципиальная электрическая схема.....................................................................1 л.
Содержание расчетно-пояснительной записки.
- Введение. Описание целевого, механического и энергетического интерфейса спроектированной технологической машины.
- Описание процессной модели. Выбор и обоснование целевых, сервисных функций, и функций коррекции цели.
- Техническое задание и техническое предложение на систему управления машины по приведенной в Приложении 1 форме.
- Описание комплексной принципиальной схемы ФС. Обоснование структурно-компоновочного решения, выбор и согласование уровней потоков элементов.
- Документы, сопровождающие комплексную принципиальную схему:
- перечень элементов ПЭ;
- перечень потоков и сигналов ПС;
- технические задания на основные подсистемы и узлы машины ТЗ.
- Информационный поиск датчиков и исполнительных элементов машины и ее САУ, описание целевого, механического, энергетического и информационного интерфейса этих элементов ОЭ.
- Расчет и описание принципиальной электрической схемы.
- Заключение.
Реферат
к курсовому проекту на тему:
«Модульная установка химико-гальванической микрообработки»
В данном курсовом проекте представлена САУ модульной установки химико-гальванической микрообработки.
Расчётно-пояснительная записка выполнена в среде Microsoft Word и содержит 36 страниц, 21 таблицу, 28 рисунков.
Графическую часть проекта составляют 5 листов формата A1, выполненные в среде Компас – 3D V13.
МОДУЛЬНАЯ УСТАНОВКА ХИМИКО-ГАЛЬВАНИЧЕСКОЙ МИКРООБРАБОТКИ, СИСТЕМА ПИТАНИЯ И УПРАВЛЕНИЯ, ПНЕВМАТИЧЕСКАЯ СИСТЕМА, ФУНКЦИОНАЛЬНАЯ СХЕМА, ЭЛЕКТРИЧЕСКАЯ ПРИНЦИПИАЛЬНАЯ СХЕМА
Целью проекта является автоматизация модульной установки ХГМ, предназначенной для обработки подложек на основании из нитрида алюминия.
В ходе проекта описаны основные технологические единицы установки и подобраны элементы, с помощью которых реализуется требуемый процесс. Описаны сигналы, поступающие на эти устройства, их целевой, механический, энергетический и информационный интерфейсы. Построена комплексная принципиальная схема с описанием потоков и их уровней.
На основании выбранных элементов и цели техпроцесса проработана процессная модель установки. Приведены схемы каждого процесса, последовательности действий и событий.
Создана электрическая схема установки, описана связь элементов между собой. В результате возможна физическая сборка устройств и организация их взаимодействия.
Основные употребляемые сокращения:
- ХГМ - химико-гальваническая микрообработка
Содержание
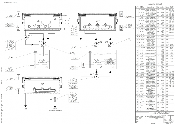
1 Устройство модульной установки ХГМ и ее функционирование. 8
2 Назначение, описание систем и их элементов. 10
2.1 Модуль окончательной промывки M1. 10
2.1.1 Пневматический клапан VE1. 10
2.1.2 Датчик положения крышки DPK1. 11
2.1.3 Датчик уровня жидкости DUV1. 12
2.2 Модуль гальванической обработки заготовок M2. 13
2.2.2 Насос для электролита N1. 14
2.2.3 Датчик температуры DT1. 15
2.2.4 Нагреватель для электролита Na1. 16
2.2.5 Пневматический клапан VE2. 17
2.2.6 Датчик положения крышки DPK2. 17
2.2.7 Датчик уровня жидкости DUV2. 17
2.3 Модуль травления и предварительной промывки M3. 18
2.3.1 Насос для предварительной промывки заготовки N3. 18
2.3.2 Пневматический трехходовой распределитель VE3. 19
2.3.3 Датчик положения крышки DPK3. 20
2.3.4 Датчик уровня жидкости DUV3. 20
2.3.5 Датчик температуры DT2. 20
2.3.6 Нагреватель для раствора травления Na2. 21
2.5 Перечень элементов модульной установки ХГМ... 23
2.6 Система питания и управления SPU.. 24
2.6.1 Контроллер ADAM 5510/TCP. 24
2.6.2 Блоки питания BP24_1 и BP24_2. 25
2.6.3 Автоматические выключатели FD1 - FD8. 26
2.6.5 Твердотельные реле SSR1 – SSR3. 28
3.1 Процесс гальванического осаждения. 30
3.2 Процесс травления и промывки дистиллированной водой. 31
3.3 Процесс промывки деионизированной водой. 32
4 Электрическая принципиальная схема. 33
Перечень файлов документации на комплектующие. 38
Введение
Модульная установка химико-гальванической микрообработки коммутационных плат на основании из нитрида-алюминия (рисунок 1) состоит из трех основных частей. Первая часть – модуль промывки заготовок (поз.8), вторая – модуль гальванического нанесения меди (поз.9), третья часть – модуль травления меди с поверхности заготовок и предварительной промывки (поз.10).
Рисунок 1 – Общий вид модульной установки ХГМ
Характеристики курсовой работы
Список файлов

Начать зарабатывать