Курсовая работа: Автооператор для линии химико-гальванической обработки
Описание
Чертежи в TIF

Реферат
Расчетно-пояснительная записка к курсовому проекту по курсу «Основы проектирования систем автоматического управления оборудования электронных технологий» содержит 27 страниц машинописного текста, 6 рисунков, 5 таблиц.
Графические работы в объеме 4 листов А1 выполнены на ПК с помощью программы КОМПАС-3D V13. Записка выполнена с использованием среды Word 2007.
В расчетно-пояснительной записке приведено: назначение автооператора; устройство автооператора и его функционирование; описание элементов САУ автооператора; описание процессов автооператора; система управления; система электропитания.
Оглавление
Введение. Назначение автооператора. 3
Устройство автооператора и его функционирование. 4
Описание элементов САУ автооператора. 8
Описание процессов автооператора. 11
Введение. Назначение автооператора
Целью моего проекта является разработка САУ автооператора для линии химико-гальванической обработки многослойных печатных плат (до 6 слоев) с глухими отверстиями.
Главным признаком гибкой линии химико-гальванической обработки является наличие в ней одного или нескольких манипуляторов – автоматизированных подъемно-транспортных средств, управление которыми осуществляется с помощью перепрограммируемых устройств управления.
Основное назначение манипулятора – транспортирование заготовок (подъем, перенос, опускание) по позициям линии химико-гальванической обработки в последовательности, определяемой технологическим процессом и реализуемой в циклограмме.
Применение манипуляторов позволяет строго соблюдать последовательность перемещения заготовок по ваннам и точно выдерживать время нахождения в них, избавляет рабочего от присутствия в зоне интенсивных вредных испарений, улучшает качество МПП, увеличивает производительность труда.
Техническая характеристика автооператора:
- эффективная нагрузка 25 кг;
- максимальный размер обрабатываемых заготовок ;
- длина обслуживаемых ванн ;
- высота обслуживаемых ванн 500 мм;
- максимальная длина линии 8500 мм.
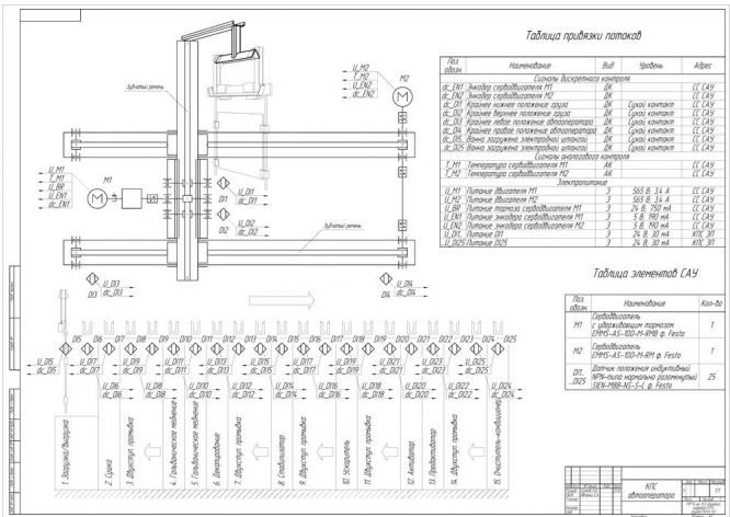
Устройство автооператора и его функционирование
С учетом размеров линии химико-гальванической обработки и требуемой грузоподъемности был спроектирован консольный тип автооператора. Так как направляющие для горизонтального перемещения консольных манипуляторов располагаются сбоку от ванн, то они менее подвергаются вредным воздействиям испарений растворов.
Спроектированный автооператор полностью состоит из унифицированных деталей и сборочных единиц фирмы Festo за исключением консоли с грузозахватом и может перемещаться по двум координатам.
Привод горизонтального перемещения состоит из двух электромеханических приводов с зубчатым ремнем и шариковой направляющей EGC-120-TB-KF-GK фирмы Festo.
Характеристики курсовой работы
Список файлов

Начать зарабатывать