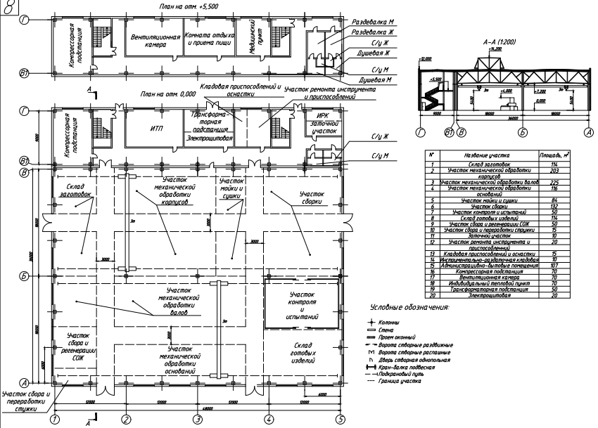
Для студентов МГТУ им. Н.Э.Баумана по предмету Проектирование технологических комплексов механосборочного производства (МТ-3)Технологический комплекс механосборочного производства (МСП) водяных насосовТехнологический комплекс механосборочного производства (МСП) водяных насосов
5,0051
2021-07-132021-07-13СтудИзба
Курсовая работа: Технологический комплекс механосборочного производства (МСП) водяных насосов
-50%
Описание
Характеристики курсовой работы
Учебное заведение
Просмотров
10
Размер
8,23 Mb
Список файлов
32
Листы.pdf
РПЗ.pdf
Комментарии
Нет комментариев
Стань первым, кто что-нибудь напишет!

МГТУ им. Н.Э.Баумана


















