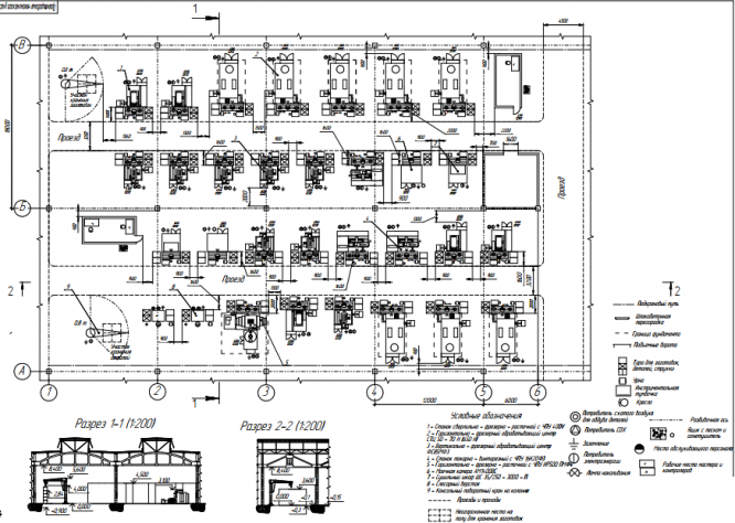
Для студентов МГТУ им. Н.Э.Баумана по предмету Проектирование технологических комплексов механосборочного производства (МТ-3)Комплекс по изготовлению рычаговКомплекс по изготовлению рычагов
4,88561
2021-07-132021-07-13СтудИзба
Курсовая работа: Комплекс по изготовлению рычагов
-40%
Описание
Характеристики курсовой работы
Учебное заведение
Просмотров
14
Размер
10,97 Mb
Список файлов
27
Анализ исходных данных.pdf
Анализ трудоемкости изготовления номенклатуры деталей.pdf
Исследовательская часть.pdf
Лист idef (схема).pdf
Лист_Компоновочный план — копия.pdf
Листы.pptx
МТП обработки детали.pdf
Планировка.pdf
Приспособление.pdf
РПЗ.pdf
Сравнение компоновочных схем.pdf
Чертеж детали - представителя 1.pdf
Комментарии
Нет комментариев
Стань первым, кто что-нибудь напишет!

МГТУ им. Н.Э.Баумана


















