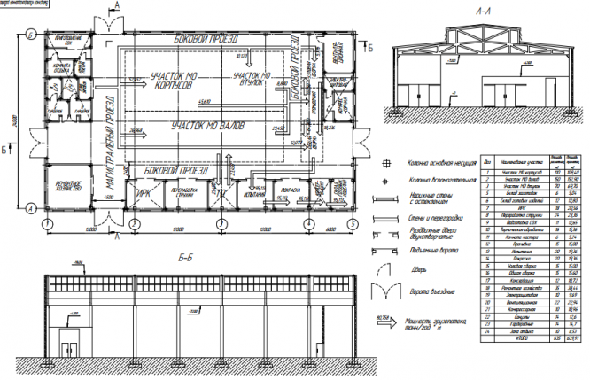
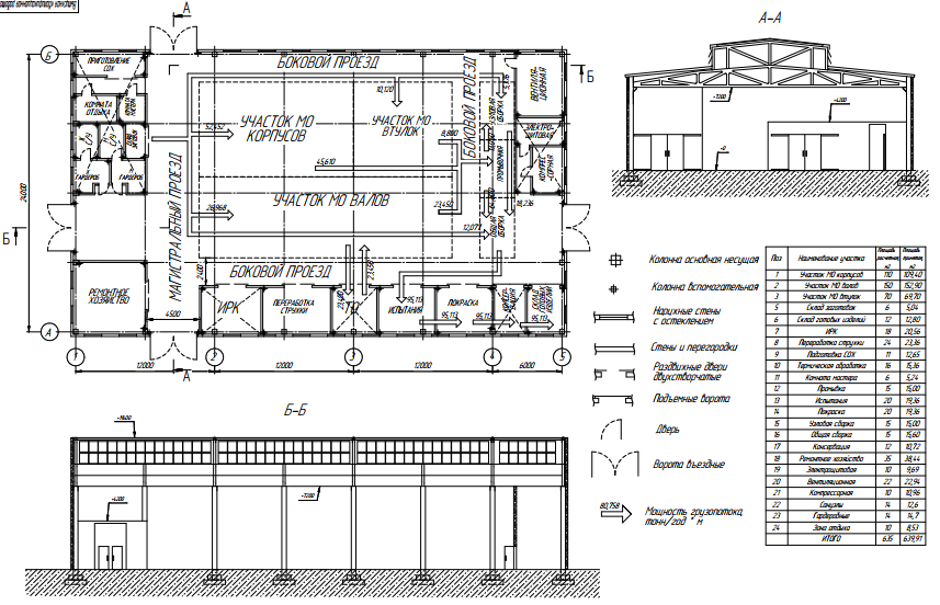
Для студентов МГТУ им. Н.Э.Баумана по предмету Проектирование технологических комплексов механосборочного производства (МТ-3)Комплекс изготовления деталей насосов гидроприводов 2Комплекс изготовления деталей насосов гидроприводов 2
4,88561
2021-07-132021-07-13СтудИзба
Курсовая работа: Комплекс изготовления деталей насосов гидроприводов 2
-50%
Описание
Характеристики курсовой работы
Учебное заведение
Просмотров
12
Размер
6,31 Mb
Список файлов
24
Листы.pdf
РПЗ.pdf
Комментарии
Нет комментариев
Стань первым, кто что-нибудь напишет!

МГТУ им. Н.Э.Баумана


















