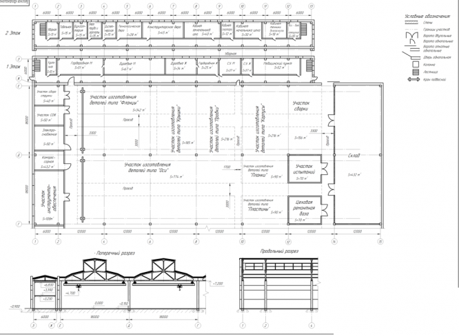
Для студентов МГТУ им. Н.Э.Баумана по предмету Проектирование технологических комплексов механосборочного производства (МТ-3)Технологический комплекс по производству крановых тележекТехнологический комплекс по производству крановых тележек
4,88560
2021-07-082021-07-08СтудИзба
Курсовая работа: Технологический комплекс по производству крановых тележек
-50%
Описание
Характеристики курсовой работы
Учебное заведение
Просмотров
11
Размер
12,22 Mb
Список файлов
18
Листы.pptx
РПЗ.pdf

МГТУ им. Н.Э.Баумана



















