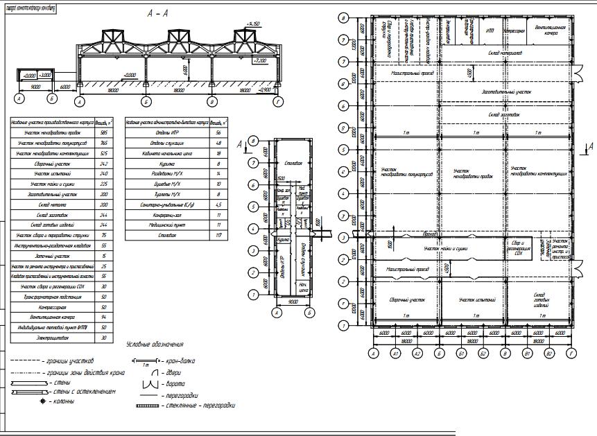
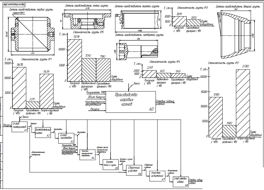
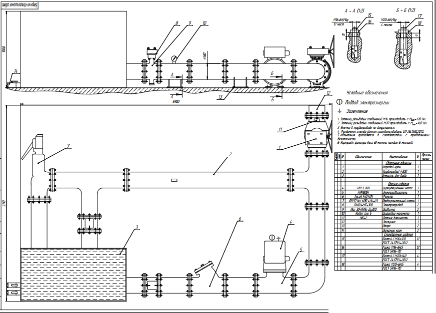
Для студентов МГТУ им. Н.Э.Баумана по предмету Проектирование технологических комплексов механосборочного производства (МТ-3)Технологический комплекс по изготовлению деталей трубопроводной арматурыТехнологический комплекс по изготовлению деталей трубопроводной арматуры
4,88561
2021-07-082021-07-08СтудИзба
Курсовая работа: Технологический комплекс по изготовлению деталей трубопроводной арматуры
-50%
Описание
Характеристики курсовой работы
Учебное заведение
Просмотров
12
Размер
7,07 Mb
Список файлов
11
Листы.pdf
РПЗ.pdf
Комментарии
Нет комментариев
Стань первым, кто что-нибудь напишет!

МГТУ им. Н.Э.Баумана


















