Для студентов МГТУ им. Н.Э.Баумана по предмету Проектирование сварных соединений (МТ-7)Технология изготовления технологического трубопровода в заводских условияхТехнология изготовления технологического трубопровода в заводских условиях
4,90546516
2022-09-092024-09-03СтудИзба
ДЗ: Технология изготовления технологического трубопровода в заводских условиях вариант 8
-66%
Описание
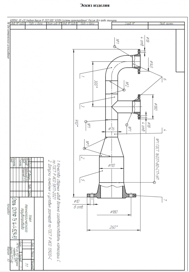
Домашнее задание По теме: Технология изготовления сварных конструкций «Технология изготовления технологического трубопровода в заводских условиях»
Вариант 8
![]()
Вариант 8



Файлы условия, демо
Характеристики домашнего задания
Учебное заведение
Вариант
Просмотров
38
Размер
1,03 Mb
Список файлов
Технология изготовления технологического трубопровода в заводских условиях.pdf

Друзья, спасибо за доверие! Если вам понравилась работа – поставьте 5⭐ и напишите отзыв. Это поможет другим студентам, а мне даст силы делать ещё больше качественных материалов для вас 🔥